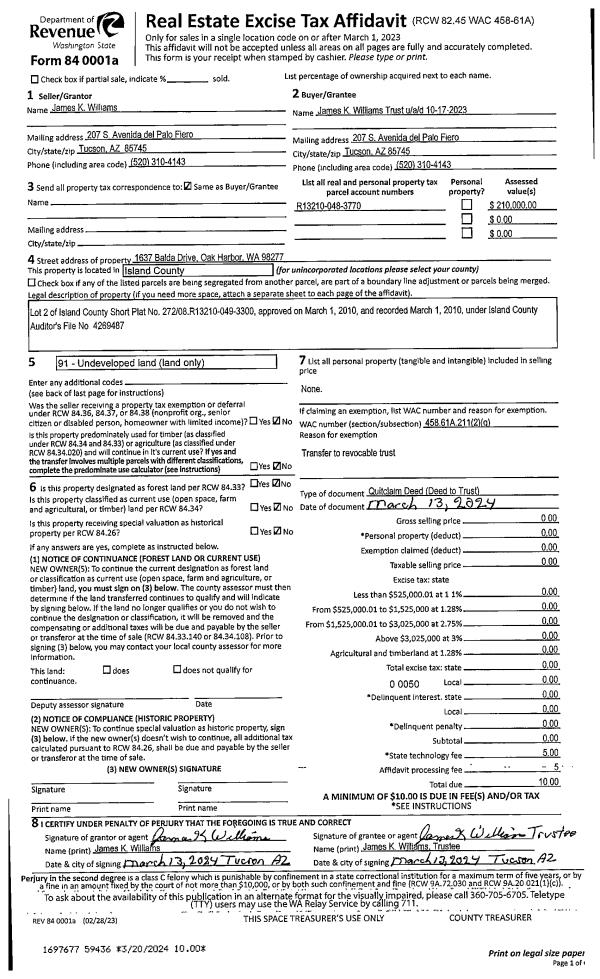
Property
Account |
| Property ID: | 733647 | Abbreviated Legal Description: | LOT 2 SP 46-94.13218.067-1480 V3 SP P57 AF#95019863 |
| Geographic ID: | R13218-095-1500 | Agent Code: | |
| Type: | Real | | |
| Tax Area: | 112 - APPRAISER-OH Schl Dist, outside OH, improved, greater than 1 acre | Land Use Code | 11 |
| Open Space: | N | DFL | N |
| Historic Property: | N | Remodel Property: | N |
| Multi-Family Redevelopment: | N | | |
| Township: | 32 | Section: | 18 |
| Range: | R1 |
Location |
| Address: | 2298 VAN DAM RD COUPEVILLE, WA 98239 | Mapsco: | |
| Neighborhood: | Cycle 1 | Map ID: | 137 |
| Neighborhood CD: | 1 |
Owner |
| Name: | WEST, CODY D | Owner ID: | 289453 |
| Mailing Address: | 2298 VAN DAM RD COUPEVILLE, WA 98239 | % Ownership: | 100.0000000000% |
| | | Exemptions: | |
Taxes and Assessment Details
Values
| (+) Improvement Homesite Value: | + | $0 | |
| (+) Improvement Non-Homesite Value: | + | $201,021 | |
| (+) Land Homesite Value: | + | $0 | |
| (+) Land Non-Homesite Value: | + | $290,000 | |
| (+) Curr Use (HS): | + | $0 | $0 |
| (+) Curr Use (NHS): | + | $0 | $0 |
| | | -------------------------- | |
| (=) Market Value: | = | $491,021 | |
| (–) Productivity Loss: | – | $0 | |
| | | -------------------------- | |
| (=) Subtotal: | = | $491,021 | |
| (+) Senior Appraised Value: | + | $0 | |
| (+) Non-Senior Appraised Value: | + | $491,021 | |
| | | -------------------------- | |
| (=) Total Appraised Value: | = | $491,021 | |
| (–) Senior Exemption Loss: | – | $0 | |
| (–) Exemption Loss: | – | $0 | |
| | | -------------------------- | |
| (=) Taxable Value: | = | $491,021 | |
Taxing Jurisdiction
| Owner: | WEST, CODY D | | |
| % Ownership: | 100.0000000000% | | |
| Total Value: | $491,021 | | |
| Tax Area: | 112 - APPRAISER-OH Schl Dist, outside OH, improved, greater than 1 acre |
| CF | Conservation Futures | 0.0313996660 | $491,021 | $491,021 | $15.42 | | |
| CEM1 | Cemetery #1 | 0.0040018856 | $491,021 | $491,021 | $1.97 | | |
| FIRE2 | Fire & Rescue Dist #2 N Whidbey GEN | 0.5381486274 | $491,021 | $491,021 | $264.24 | | |
| HOBOND | Hospital BOND | 0.1893405597 | $491,021 | $491,021 | $92.97 | | |
| HOGEN | Hospital GEN | 0.3848777722 | $491,021 | $491,021 | $188.98 | | |
| CE | County Current Expense | 0.3674210519 | $491,021 | $491,021 | $180.41 | | |
| CR | County Roads | 0.4614296361 | $491,021 | $491,021 | $226.57 | | |
| ISLANDEMS | Hospital GEN (EMS) | 0.4952018576 | $491,021 | $491,021 | $243.15 | | |
| LIB | Library Sno-Isle GEN | 0.3039084203 | $491,021 | $491,021 | $149.23 | | |
| NWHIDPRMT | P & R N Whidbey GEN | 0.1990272349 | $491,021 | $491,021 | $97.73 | | |
| SCH201MO | School 201 Enrichment | 2.3851112745 | $491,021 | $491,021 | $1,171.14 | | |
| ST | State School | 1.4761226122 | $491,021 | $491,021 | $724.81 | | |
| ST2 | State School Part 2 | 0.7953803475 | $491,021 | $491,021 | $390.55 | | |
| | Total Tax Rate: | 7.6313709459 | | | | | |
| | | | | Taxes w/Current Exemptions: | $3,747.17 | | |
| | | | | Taxes w/o Exemptions: | $3,747.17 | | |
Improvement / Building
| Improvement #1: | MANUFACTURED HOME | State Code: | Y | 1984.0 sqft | Value: | $201,021 |
| Bathrooms: | 2 | Bedrooms: | 3 | | Ceiling: | PLASTER PAINTED | Cooling: | EVAP NO DUCT | | Exterior Wall/Cover: | VINYL | Floor Covering: | CARPET 100% | | Floor Structure: | SLAB ON GRADE | Foundation: | SLAB | | Heating: | FHA ELECTRIC | Interior Finish: | PLASTER | | Plumbing Fixture Cnt: | 1 | Roof Slope: | FLAT | | Roof Structure/Cover: | CJ ALUMINIUM HEAVY |   |   |
|
| | Type | Description | Class CD | Sub Class CD | Year Built | Area |
| | BAS | BASE/MAIN FLOOR | 4 | 0 | 2001 | 1984.0 |
| | OWC | OPEN WOOD PORCH W/STEPS/ROOF/C | 4 | 0 | 2001 | 96.0 |
| | UTY | STORAGE/UTILITY | 4 | 0 | 2001 | 192.0 |
| | UTY | STORAGE/UTILITY | 4 | 0 | 2001 | 864.0 |
| | OWP | OPEN WOOD PORCH W/STEPS | 4 | 0 | 2001 | 224.0 |
| | OCP | OPEN CARPORT | 4 | 0 | 2001 | 1296.0 |
| | CPD | OPEN CARPORT DIRT FLOOR | 4 | 0 | 2001 | 288.0 |
Sketch
Property Image
Land
| 1 | 32 | AC (03.01-09.99) | 5.0000 | 0.00 | 0.00 | 0.00 | 1.00 | $290,000 | $0 |
Roll Value History
| 2026 | N/A | N/A | N/A | N/A | N/A |
| 2025 | $201,021 | $290,000 | $0 | $491,021 | $491,021 |
| 2024 | $206,111 | $260,000 | $0 | $466,111 | $466,111 |
| 2023 | $142,322 | $250,000 | $0 | $392,322 | $392,322 |
| 2022 | $132,409 | $220,000 | $0 | $352,409 | $352,409 |
| 2021 | $118,216 | $190,000 | $0 | $308,216 | $308,216 |
| 2020 | $117,747 | $140,000 | $0 | $257,747 | $257,747 |
| 2019 | $143,534 | $200,000 | $0 | $343,534 | $343,534 |
| 2018 | $147,078 | $170,000 | $0 | $317,078 | $317,078 |
| 2017 | $113,100 | $160,000 | $0 | $273,100 | $273,100 |
| 2016 | $115,247 | $160,000 | $0 | $275,247 | $275,247 |
| 2015 | $117,394 | $135,000 | $0 | $252,394 | $252,394 |
| 2014 | $119,541 | $125,000 | $0 | $244,541 | $244,541 |
| 2013 | $121,688 | $114,750 | $0 | $236,438 | $236,438 |
| 2012 | $122,761 | $114,750 | $0 | $237,511 | $237,511 |
| 2011 | $127,890 | $135,000 | $0 | $262,890 | $262,890 |
| 2010 | $137,479 | $135,000 | $0 | $272,479 | $272,479 |
| 2009 | $142,337 | $175,000 | $0 | $317,337 | $317,337 |
| 2008 | $144,180 | $187,500 | $0 | $331,680 | $331,680 |
| 2007 | $145,831 | $187,500 | $0 | $333,331 | $333,331 |
Deed and Sales History
| 1 | 04/24/2019 | WD | Warranty Deed | PELROY, PAUL D | WEST, CODY D | | | $386,000.00 | 38186 | 4461948 |
| 2 | 09/17/2007 | WD | Warranty Deed | DEL PRETE, JOHN O | PELROY, PAUL D | | | $349,000.00 | 73162 | 4212223 |
| 3 | 07/31/2002 | WD | Warranty Deed | JOHNSON, LLOYD | DEL PRETE, JOHN O | | | $69,000.00 | 22992 | 4027144 |
| 4 | 01/01/1900 | OTHER | Other - Misc. Documents | Unknown | JOHNSON, LLOYD | | | $0.00 | 4272 | 90014103 |
Payout Agreement
| No payout information available.. |