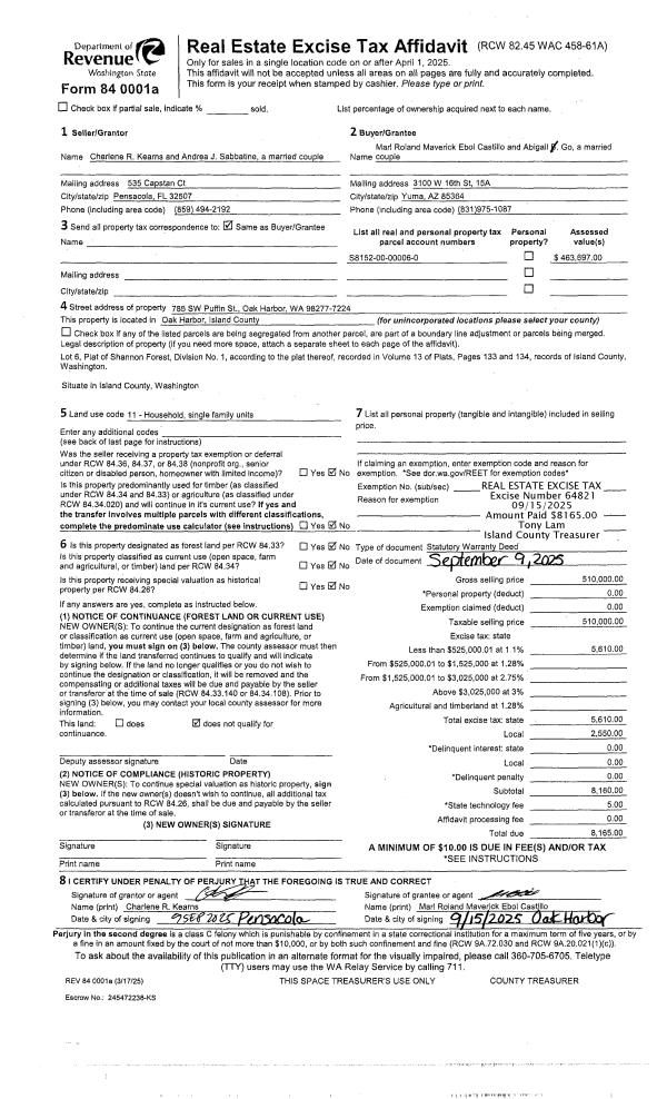
Property
Account |
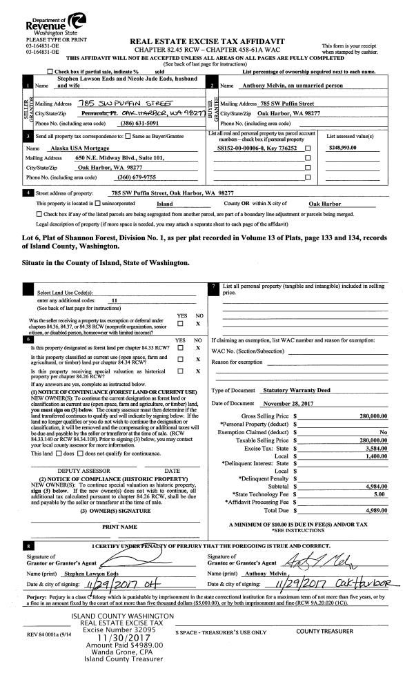
| Property ID: | 736252 | Abbreviated Legal Description: | SHANNON FOREST #1 LOT 6 |
| Geographic ID: | S8152-00-00006-0 | Agent Code: | |
| Type: | Real | | |
| Tax Area: | 100 - APPRAISER-OH Schl Dist, in OH | Land Use Code | 11 |
| Open Space: | N | DFL | N |
| Historic Property: | N | Remodel Property: | N |
| Multi-Family Redevelopment: | N | | |
| Township: | | Section: | |
| Range: | |
Location |
| Address: | 785 SW PUFFIN ST OAK HARBOR, WA 98277 | Mapsco: | |
| Neighborhood: | Cycle 1 | Map ID: | 92 |
| Neighborhood CD: | 1 |
Owner |
| Name: | KEARNS, CHARLENE R | Owner ID: | 295965 |
| Mailing Address: | ANDREA J SABBATINE 535 CAPSTAN COURT PENSACOLA, FL 32507 | % Ownership: | 100.0000000000% |
| | | Exemptions: | |
Taxes and Assessment Details
Values
| (+) Improvement Homesite Value: | + | $0 | |
| (+) Improvement Non-Homesite Value: | + | $253,697 | |
| (+) Land Homesite Value: | + | $0 | |
| (+) Land Non-Homesite Value: | + | $210,000 | |
| (+) Curr Use (HS): | + | $0 | $0 |
| (+) Curr Use (NHS): | + | $0 | $0 |
| | | -------------------------- | |
| (=) Market Value: | = | $463,697 | |
| (–) Productivity Loss: | – | $0 | |
| | | -------------------------- | |
| (=) Subtotal: | = | $463,697 | |
| (+) Senior Appraised Value: | + | $0 | |
| (+) Non-Senior Appraised Value: | + | $463,697 | |
| | | -------------------------- | |
| (=) Total Appraised Value: | = | $463,697 | |
| (–) Senior Exemption Loss: | – | $0 | |
| (–) Exemption Loss: | – | $0 | |
| | | -------------------------- | |
| (=) Taxable Value: | = | $463,697 | |
Taxing Jurisdiction
| Owner: | KEARNS, CHARLENE R | | |
| % Ownership: | 100.0000000000% | | |
| Total Value: | $463,697 | | |
| Tax Area: | 100 - APPRAISER-OH Schl Dist, in OH |
| CF | Conservation Futures | 0.0313996660 | $463,697 | $463,697 | $14.56 | | |
| CEM1 | Cemetery #1 | 0.0040018856 | $463,697 | $463,697 | $1.86 | | |
| COH | City of Oak Harbor | 2.3090730572 | $463,697 | $463,697 | $1,070.71 | | |
| OAKBOND | City of Oak Harbor BOND | 0.1902260131 | $463,697 | $463,697 | $88.21 | | |
| HOBOND | Hospital BOND | 0.1893405597 | $463,697 | $463,697 | $87.80 | | |
| HOGEN | Hospital GEN | 0.3848777722 | $463,697 | $463,697 | $178.47 | | |
| CE | County Current Expense | 0.3674210519 | $463,697 | $463,697 | $170.37 | | |
| ISLANDEMS | Hospital GEN (EMS) | 0.4952018576 | $463,697 | $463,697 | $229.62 | | |
| LIB | Library Sno-Isle GEN | 0.3039084203 | $463,697 | $463,697 | $140.92 | | |
| NWHIDPRMT | P & R N Whidbey GEN | 0.1990272349 | $463,697 | $463,697 | $92.29 | | |
| SCH201MO | School 201 Enrichment | 2.3851112745 | $463,697 | $463,697 | $1,105.97 | | |
| ST | State School | 1.4761226122 | $463,697 | $463,697 | $684.47 | | |
| ST2 | State School Part 2 | 0.7953803475 | $463,697 | $463,697 | $368.82 | | |
| | Total Tax Rate: | 9.1310917527 | | | | | |
| | | | | Taxes w/Current Exemptions: | $4,234.07 | | |
| | | | | Taxes w/o Exemptions: | $4,234.07 | | |
Improvement / Building
| Improvement #1: | RESIDENTIAL | State Code: | Y | 1292.8 sqft | Value: | $253,697 |
| Bathrooms: | 2 | Bedrooms: | 3 | | Ceiling: | DRYWALL PAINTED | Exterior Wall/Cover: | PLY/HARDBOARD T-111 | | Floor Covering: | CARPET/VINYL 80-20 | Floor Structure: | WOOD W/SUBFLOOR | | Foundation: | CONCRETE | Heating: | FHA GAS | | Interior Finish: | DRYWALL PAINT | Plumbing Fixture Cnt: | 9 | | Roof Slope: | 6" IN 12" | Roof Structure/Cover: | CJ ASPHALT |
|
| | Type | Description | Class CD | Sub Class CD | Year Built | Area |
| | BAS | BASE/MAIN FLOOR | 3 | 0 | 1997 | 1292.8 |
| | AGR | ATTACHED GARAGE | 3 | 0 | 1997 | 466.0 |
| | OWP | OPEN WOOD PORCH W/STEPS | 3 | 0 | 1997 | 72.0 |
| | OWC | OPEN WOOD PORCH W/STEPS/ROOF/C | 3 | 0 | 1997 | 97.5 |
Sketch
Property Image
Land
| 1 | 13 | SQ (06001-08000) | 0.0000 | 0.00 | 0.00 | 0.00 | 1.00 | $210,000 | $0 |
Roll Value History
| 2026 | N/A | N/A | N/A | N/A | N/A |
| 2025 | $253,697 | $210,000 | $0 | $463,697 | $463,697 |
| 2024 | $256,745 | $200,000 | $0 | $456,745 | $456,745 |
| 2023 | $259,792 | $190,000 | $0 | $449,792 | $449,792 |
| 2022 | $237,998 | $180,000 | $0 | $417,998 | $417,998 |
| 2021 | $209,362 | $120,000 | $0 | $329,362 | $329,362 |
| 2020 | $196,712 | $100,000 | $0 | $296,712 | $296,712 |
| 2019 | $140,622 | $150,000 | $0 | $290,622 | $290,622 |
| 2018 | $141,029 | $130,000 | $0 | $271,029 | $271,029 |
| 2017 | $132,883 | $110,000 | $0 | $242,883 | $242,883 |
| 2016 | $134,484 | $90,000 | $0 | $224,484 | $224,484 |
| 2015 | $136,085 | $70,000 | $0 | $206,085 | $206,085 |
| 2014 | $137,685 | $55,000 | $0 | $192,685 | $192,685 |
| 2013 | $139,287 | $55,000 | $0 | $194,287 | $194,287 |
| 2012 | $140,888 | $50,000 | $0 | $190,888 | $190,888 |
| 2011 | $124,091 | $50,000 | $0 | $174,091 | $174,091 |
| 2010 | $125,575 | $50,000 | $0 | $175,575 | $175,575 |
| 2009 | $130,904 | $75,000 | $0 | $205,904 | $205,904 |
| 2008 | $132,385 | $100,000 | $0 | $232,385 | $232,385 |
| 2007 | $133,858 | $100,000 | $0 | $233,858 | $233,858 |
Deed and Sales History
| 1 | 09/09/2025 | WD | Warranty Deed | KEARNS, CHARLENE R | CASTILLO, MARL ROLAND MAVERICK EBOL | | | $510,000.00 | 64821 | 4590942 |
| 2 | 08/30/2020 | WD | Warranty Deed | MELVIN, ANTHONY | KEARNS, CHARLENE R | | | $378,000.00 | 44595 | 4495705 |
| 3 | 11/28/2017 | WD | Warranty Deed | EADS, STEPHEN LAWSON | MELVIN, ANTHONY | | | $280,000.00 | 32095 | 4434948 |
| 4 | 12/11/2013 | WD | Warranty Deed | REIS, RONALD & NANCY K | EADS, STEPHEN LAWSON | | | $192,000.00 | 13719 | 4352664 |
| 5 | 06/01/1997 | WD | Warranty Deed | JONES, BRUCE M | REIS, RONALD & | | | $136,000.00 | 72155 | 97010119 |
| 6 | 02/01/1997 | WD | Warranty Deed | FORESIGHT, INVESTMENTS I | JONES, BRUCE M | | | $40,000.00 | 70530 | 97002394 |
| 7 | 01/01/1900 | OTHER | Other - Misc. Documents | Unknown | FORESIGHT, INVESTMENTS I | | | $0.00 | 66678 | 0 |
Payout Agreement
| No payout information available.. |