Property
Account |
| Property ID: | 737297 | Abbreviated Legal Description: | LOT 2 SP 99-95.33220.330-4970 V3 SP P73-4 AF#96004366 |
| Geographic ID: | R33220-325-5150 | Agent Code: | |
| Type: | Real | | |
| Tax Area: | 592 - APPRAISER-Stan/Cam Schl Dist, Special Dist, improved, greater than 1 acre | Land Use Code | 11 |
| Open Space: | N | DFL | N |
| Historic Property: | N | Remodel Property: | N |
| Multi-Family Redevelopment: | N | | |
| Township: | 32 | Section: | 20 |
| Range: | R3 |
Location |
| Address: | 1015 MALLARD LN CAMANO ISLAND, WA 98282 | Mapsco: | |
| Neighborhood: | North Camano | Map ID: | 967 |
| Neighborhood CD: | 06-C |
Owner |
| Name: | BRIDESON, JESSICA M | Owner ID: | 315171 |
| Mailing Address: | 1015 MALLARD LN CAMANO ISLAND, WA 98282 | % Ownership: | 100.0000000000% |
| | | Exemptions: | |
Taxes and Assessment Details
Values
| (+) Improvement Homesite Value: | + | $0 | |
| (+) Improvement Non-Homesite Value: | + | $48,978 | |
| (+) Land Homesite Value: | + | $0 | |
| (+) Land Non-Homesite Value: | + | $330,000 | |
| (+) Curr Use (HS): | + | $0 | $0 |
| (+) Curr Use (NHS): | + | $0 | $0 |
| | | -------------------------- | |
| (=) Market Value: | = | $378,978 | |
| (–) Productivity Loss: | – | $0 | |
| | | -------------------------- | |
| (=) Subtotal: | = | $378,978 | |
| (+) Senior Appraised Value: | + | $0 | |
| (+) Non-Senior Appraised Value: | + | $378,978 | |
| | | -------------------------- | |
| (=) Total Appraised Value: | = | $378,978 | |
| (–) Senior Exemption Loss: | – | $0 | |
| (–) Exemption Loss: | – | $0 | |
| | | -------------------------- | |
| (=) Taxable Value: | = | $378,978 | |
Taxing Jurisdiction
| Owner: | BRIDESON, JESSICA M | | |
| % Ownership: | 100.0000000000% | | |
| Total Value: | $378,978 | | |
| Tax Area: | 592 - APPRAISER-Stan/Cam Schl Dist, Special Dist, improved, greater than 1 acre |
| CF | Conservation Futures | 0.0313996660 | $378,978 | $378,978 | $11.90 | | |
| EMS1 | Fire & Rescue Dist #1 Camano GEN (EMS) | 0.4998471806 | $378,978 | $378,978 | $189.43 | | |
| FIRE1 | Fire & Rescue Dist #1 Camano GEN | 1.2496603404 | $378,978 | $378,978 | $473.59 | | |
| FIRE1BOND | Fire & Rescue Dist #1 Camano BOND | 0.1630371212 | $378,978 | $378,978 | $61.79 | | |
| CE | County Current Expense | 0.3674210519 | $378,978 | $378,978 | $139.24 | | |
| CR | County Roads | 0.4614296361 | $378,978 | $378,978 | $174.87 | | |
| LIB | Library Sno-Isle GEN | 0.3039084203 | $378,978 | $378,978 | $115.17 | | |
| SCH205_401 | School 205-401 Enrichment | 1.3697998934 | $378,978 | $378,978 | $519.12 | | |
| SCH205BOND | School 205-401 BOND | 0.9354199323 | $378,978 | $378,978 | $354.50 | | |
| ST | State School | 1.4761226122 | $378,978 | $378,978 | $559.42 | | |
| ST2 | State School Part 2 | 0.7953803475 | $378,978 | $378,978 | $301.43 | | |
| | Total Tax Rate: | 7.6534262019 | | | | | |
| | | | | Taxes w/Current Exemptions: | $2,900.46 | | |
| | | | | Taxes w/o Exemptions: | $2,900.46 | | |
Improvement / Building
| Improvement #1: | MANUFACTURED HOME | State Code: | Y | 1248.0 sqft | Value: | $48,978 |
| Bathrooms: | 0 | Bedrooms: | 0 | | Ceiling: | PLASTER PAINTED | Cooling: | EVAP NO DUCT | | Exterior Wall/Cover: | VINYL | Floor Covering: | CARPET 100% | | Floor Structure: | SLAB ON GRADE | Foundation: | SLAB | | Heating: | FHA ELECTRIC | Interior Finish: | PLASTER | | Plumbing Fixture Cnt: | 1 | Roof Slope: | FLAT | | Roof Structure/Cover: | CJ ALUMINIUM HEAVY |   |   |
|
Sketch
Property Image
Land
| 1 | 32 | AC (03.01-09.99) | 5.0000 | 0.00 | 0.00 | 0.00 | 1.00 | $330,000 | $0 |
Roll Value History
| 2026 | N/A | N/A | N/A | N/A | N/A |
| 2025 | $48,978 | $330,000 | $0 | $378,978 | $378,978 |
| 2024 | $53,176 | $340,000 | $0 | $393,176 | $393,176 |
| 2023 | $48,677 | $320,000 | $0 | $368,677 | $368,677 |
| 2022 | $23,141 | $300,000 | $0 | $323,141 | $323,141 |
| 2021 | $20,960 | $190,000 | $0 | $210,960 | $210,960 |
| 2020 | $21,977 | $190,000 | $0 | $211,977 | $211,977 |
| 2019 | $17,951 | $220,000 | $0 | $237,951 | $237,951 |
| 2018 | $19,233 | $190,000 | $0 | $209,233 | $209,233 |
| 2017 | $19,874 | $170,000 | $0 | $189,874 | $189,874 |
| 2016 | $21,156 | $135,000 | $0 | $156,156 | $156,156 |
| 2015 | $22,439 | $125,000 | $0 | $147,439 | $147,439 |
| 2014 | $24,362 | $125,000 | $0 | $149,362 | $149,362 |
| 2013 | $25,644 | $140,000 | $0 | $165,644 | $165,644 |
| 2012 | $26,926 | $140,000 | $0 | $166,926 | $166,926 |
| 2011 | $28,208 | $175,000 | $0 | $203,208 | $203,208 |
| 2010 | $38,556 | $175,000 | $0 | $213,556 | $213,556 |
| 2009 | $41,078 | $225,000 | $0 | $266,078 | $266,078 |
| 2008 | $42,708 | $225,000 | $0 | $267,708 | $267,708 |
| 2007 | $44,256 | $225,000 | $0 | $269,256 | $269,256 |
Deed and Sales History
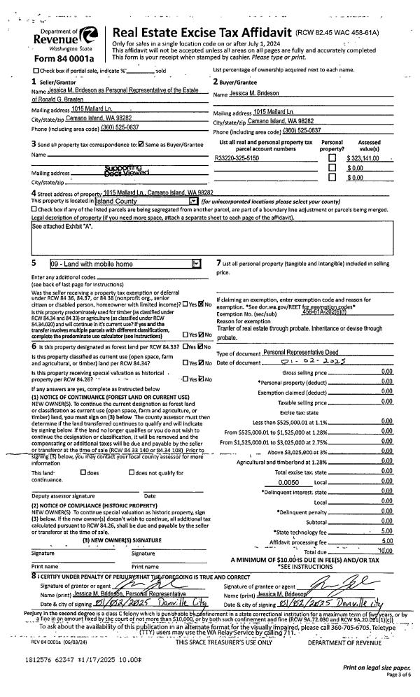
| 1 | 01/02/2025 | PRD | Personal Representatives Deed | JESSICA M BRIDENSON, PR | BRIDESON, JESSICA M | | | $0.00 | 62347 | 4581400 |
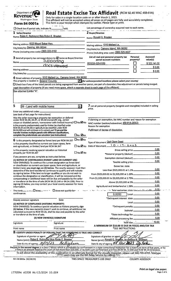
| 2 | 10/17/2023 | QCD | Quit Claim Deed | RICHMOND, ROBIN E | BRAATEN, RONALD G | | | $0.00 | 60308 | 4573411 |
| 3 | 07/21/2003 | WD | Warranty Deed | WEAVER, MICHAEL P | BRAATEN, RONALD | | | $152,500.00 | 33620 | 4071480 |
| 4 | 09/01/1996 | OTHER | Other - Misc. Documents | Unknown | WEAVER, MICHAEL P | | | $15,000.00 | 11111111 | 0 |
| 5 | 01/01/1996 | WD | Warranty Deed | HERSHEY, JAMES M | WEAVER, MICHAEL P | | | $110,000.00 | 61017 | 96005236 |
| 6 | 01/01/1900 | OTHER | Other - Misc. Documents | WEAVER, MICHAEL P | HERSHEY, JAMES M | | | $0.00 | 50382 | 95001757 |
Payout Agreement
| No payout information available.. |