Property
Account |
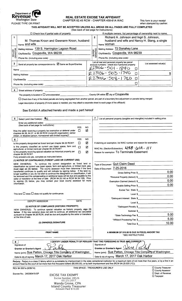
| Property ID: | 73823 | Abbreviated Legal Description: | 0.2800 Acres ins Section 06s Township 31s Range R2s LOT B BLA 242-16 AF# 4413597 TL 38 - IN GL1;s |
| Geographic ID: | R23106-501-1840 | Agent Code: | |
| Type: | Real | | |
| Tax Area: | 310 - APPRAISER-Cpvl Schl Dist, outside Cpvl, improved & 1 acre or less | Land Use Code | 11 |
| Open Space: | N | DFL | N |
| Historic Property: | N | Remodel Property: | N |
| Multi-Family Redevelopment: | N | | |
| Township: | 31 | Section: | 06 |
| Range: | R2 |
Location |
| Address: | 136 NORDIC LN COUPEVILLE, WA 98239 | Mapsco: | |
| Neighborhood: | Area 2 Waterfront Eastside Res | Map ID: | 461 |
| Neighborhood CD: | 2WFTE01R |
Owner |
| Name: | KROON, M. THOMAS | Owner ID: | 84050 |
| Mailing Address: | GWENANN KROON 5005 NE PARK PLACE SEATTLE, WA 98115-5239 | % Ownership: | 100.0000000000% |
| | | Exemptions: | |
Taxes and Assessment Details
Values
| (+) Improvement Homesite Value: | + | $0 | |
| (+) Improvement Non-Homesite Value: | + | $71,586 | |
| (+) Land Homesite Value: | + | $0 | |
| (+) Land Non-Homesite Value: | + | $675,700 | |
| (+) Curr Use (HS): | + | $0 | $0 |
| (+) Curr Use (NHS): | + | $0 | $0 |
| | | -------------------------- | |
| (=) Market Value: | = | $747,286 | |
| (–) Productivity Loss: | – | $0 | |
| | | -------------------------- | |
| (=) Subtotal: | = | $747,286 | |
| (+) Senior Appraised Value: | + | $0 | |
| (+) Non-Senior Appraised Value: | + | $747,286 | |
| | | -------------------------- | |
| (=) Total Appraised Value: | = | $747,286 | |
| (–) Senior Exemption Loss: | – | $0 | |
| (–) Exemption Loss: | – | $0 | |
| | | -------------------------- | |
| (=) Taxable Value: | = | $747,286 | |
Taxing Jurisdiction
| Owner: | KROON, M. THOMAS | | |
| % Ownership: | 100.0000000000% | | |
| Total Value: | $747,286 | | |
| Tax Area: | 310 - APPRAISER-Cpvl Schl Dist, outside Cpvl, improved & 1 acre or less |
| CF | Conservation Futures | 0.0313996660 | $747,286 | $747,286 | $23.46 | | |
| CEM2 | Cemetery #2 | 0.0092609791 | $747,286 | $747,286 | $6.92 | | |
| FIRE5 | Fire & Rescue Dist #5 C Whidbey GEN | 1.1892169230 | $747,286 | $747,286 | $888.69 | | |
| FIRE5BOND | Fire & Rescue Dist #5 C Whidbey BOND | 0.1394359503 | $747,286 | $747,286 | $104.20 | | |
| HOBOND | Hospital BOND | 0.1893405597 | $747,286 | $747,286 | $141.49 | | |
| HOGEN | Hospital GEN | 0.3848777722 | $747,286 | $747,286 | $287.61 | | |
| CE | County Current Expense | 0.3674210519 | $747,286 | $747,286 | $274.57 | | |
| CR | County Roads | 0.4614296361 | $747,286 | $747,286 | $344.82 | | |
| ISLANDEMS | Hospital GEN (EMS) | 0.4952018576 | $747,286 | $747,286 | $370.06 | | |
| LIB | Library Sno-Isle GEN | 0.3039084203 | $747,286 | $747,286 | $227.11 | | |
| LIBCAP | Library Sno-Isle BOND (Cap Fac Imp Area) | 0.0528562629 | $747,286 | $747,286 | $39.50 | | |
| POCOUP | Port of Coupeville GEN | 0.1065226063 | $747,286 | $747,286 | $79.60 | | |
| POCOUPIDD | Port of Coupeville IDD | 0.3353038577 | $747,286 | $747,286 | $250.57 | | |
| COUPSDTECH | School 204 CP (TECH) | 0.1215123397 | $747,286 | $747,286 | $90.80 | | |
| SCH204MO | School 204 Enrichment | 0.6416662518 | $747,286 | $747,286 | $479.51 | | |
| ST | State School | 1.4761226122 | $747,286 | $747,286 | $1,103.09 | | |
| ST2 | State School Part 2 | 0.7953803475 | $747,286 | $747,286 | $594.38 | | |
| | Total Tax Rate: | 7.1008570943 | | | | | |
| | | | | Taxes w/Current Exemptions: | $5,306.38 | | |
| | | | | Taxes w/o Exemptions: | $5,306.38 | | |
Improvement / Building
| Improvement #1: | RESIDENTIAL | State Code: | Y | 1221.0 sqft | Value: | $71,586 |
| Bathrooms: | 1 | Bedrooms: | 2 | | Ceiling: | TONGUE & GROOVE | Exterior Wall/Cover: | LOG TO 10" | | Floor Covering: | SOFTWOOD 100% | Floor Structure: | SLAB ON GRADE | | Foundation: | SLAB/CONCRETE | Heating: | (NONE) | | Interior Finish: | DRYWALL PAINT | Plumbing Fixture Cnt: | 6 | | Roof Slope: | 6" IN 12" | Roof Structure/Cover: | BEAM WOOD SHAKES |
|
| | Type | Description | Class CD | Sub Class CD | Year Built | Area |
| | BAS | BASE/MAIN FLOOR | 2 | 0 | 1934 | 702.0 |
| | OP3 | OPEN PORCH W/ROOF | 2 | 0 | 1934 | 108.0 |
| | UPS | UPPER STORY | 2 | 0 | 1934 | 519.0 |
| | OWP | OPEN WOOD PORCH W/STEPS | 2 | 0 | 1934 | 270.0 |
Sketch
| No sketches available for this property. |
Property Image
Land
| 1 | LB | LOW BANK | 0.2800 | 12196.80 | 70.00 | 0.00 | 1.00 | $675,000 | $0 |
| 2 | 55 | TIDES | 0.0000 | 0.00 | 0.00 | 0.00 | 1.00 | $700 | $0 |
Roll Value History
| 2026 | N/A | N/A | N/A | N/A | N/A |
| 2025 | $71,586 | $675,700 | $0 | $747,286 | $747,286 |
| 2024 | $62,258 | $650,700 | $0 | $712,958 | $712,958 |
| 2023 | $64,252 | $625,700 | $0 | $689,952 | $689,952 |
| 2022 | $59,982 | $500,700 | $0 | $560,682 | $560,682 |
| 2021 | $53,726 | $475,700 | $0 | $529,426 | $529,426 |
| 2020 | $53,365 | $350,700 | $0 | $404,065 | $404,065 |
| 2019 | $40,530 | $400,700 | $0 | $441,230 | $441,230 |
| 2018 | $31,504 | $250,500 | $0 | $282,004 | $282,004 |
| 2017 | $31,504 | $200,500 | $0 | $232,004 | $232,004 |
| 2016 | $31,504 | $200,500 | $0 | $232,004 | $232,004 |
| 2015 | $31,504 | $200,500 | $0 | $232,004 | $232,004 |
| 2014 | $31,504 | $200,500 | $0 | $232,004 | $232,004 |
| 2013 | $32,554 | $158,864 | $0 | $191,418 | $191,418 |
| 2012 | $28,746 | $158,864 | $0 | $187,610 | $187,610 |
| 2011 | $29,601 | $158,864 | $0 | $188,465 | $188,465 |
| 2010 | $40,085 | $158,864 | $0 | $198,949 | $198,949 |
| 2009 | $41,320 | $196,871 | $0 | $238,191 | $238,191 |
| 2008 | $42,326 | $196,871 | $0 | $239,197 | $239,197 |
| 2007 | $43,350 | $344,633 | $0 | $387,983 | $387,983 |
Deed and Sales History
| 1 | 03/14/2017 | QCD | Quit Claim Deed | KROON, M. THOMAS | KROON, M. THOMAS | | | $0.00 | 28526 | 4419267 |
| 2 | 03/14/2017 | QCD | Quit Claim Deed | KROON, M. THOMAS | | | | | 0 | 4418941 |
| 3 | 01/29/2007 | WD | Warranty Deed | PARKER TRUSTEE, BEULAH MARIE | KROON, M. THOMAS | | | $225,120.00 | 70278 | 4192818 |
| 4 | 06/18/2005 | 5 | DNU - Marriage License/Name Change | PARKER, BEULAH M | PARKER TRUSTEE, BEULAH MARIE | | | $0.00 | 54549 | 4147318 |
| 5 | 02/01/1982 | REC | Real Estate Contract | PARKER, WILLARD J | PARKER, BEULAH M | | | $1.00 | 59389 | 393228 |
| 6 | 01/01/1900 | OTHER | Other - Misc. Documents | Unknown | PARKER, WILLARD J | | | $0.00 | 0 | 0 |
Payout Agreement
| No payout information available.. |