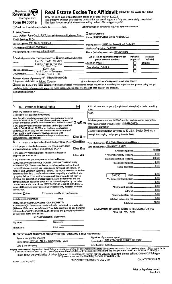
Property
Account |
| Property ID: | 741709 | Abbreviated Legal Description: | 1974 TAMARACK 14X60 VIN# D8143 TPO @21642 FROM K-508686 |
| Geographic ID: | M90500000004-1 | Agent Code: | |
| Type: | Mobile Home | | |
| Tax Area: | 100 - APPRAISER-OH Schl Dist, in OH | Land Use Code | 11 |
| Open Space: | N | DFL | N |
| Historic Property: | N | Remodel Property: | N |
| Multi-Family Redevelopment: | N | | |
| Township: | | Section: | |
| Range: | |
Location |
| Address: | 1320 N OAK HARBOR ST # 13 OAK HARBOR, WA 98277 | Mapsco: | |
| Neighborhood: | Cycle 1 | Map ID: | |
| Neighborhood CD: | 1 |
Owner |
| Name: | OCHOA, NOE | Owner ID: | 283182 |
| Mailing Address: | 1320 N OAK HARBOR ST #13 OAK HARBOR, WA 98277 | % Ownership: | 100.0000000000% |
| | | Exemptions: | |
Taxes and Assessment Details
Values
| (+) Improvement Homesite Value: | + | $0 | |
| (+) Improvement Non-Homesite Value: | + | $7,129 | |
| (+) Land Homesite Value: | + | $0 | |
| (+) Land Non-Homesite Value: | + | $0 | |
| (+) Curr Use (HS): | + | $0 | $0 |
| (+) Curr Use (NHS): | + | $0 | $0 |
| | | -------------------------- | |
| (=) Market Value: | = | $7,129 | |
| (–) Productivity Loss: | – | $0 | |
| | | -------------------------- | |
| (=) Subtotal: | = | $7,129 | |
| (+) Senior Appraised Value: | + | $0 | |
| (+) Non-Senior Appraised Value: | + | $7,129 | |
| | | -------------------------- | |
| (=) Total Appraised Value: | = | $7,129 | |
| (–) Senior Exemption Loss: | – | $0 | |
| (–) Exemption Loss: | – | $0 | |
| | | -------------------------- | |
| (=) Taxable Value: | = | $7,129 | |
Taxing Jurisdiction
| Owner: | OCHOA, NOE | | |
| % Ownership: | 100.0000000000% | | |
| Total Value: | $7,129 | | |
| Tax Area: | 100 - APPRAISER-OH Schl Dist, in OH |
| CF | Conservation Futures | 0.0313996660 | $7,129 | $7,129 | $0.22 | | |
| CEM1 | Cemetery #1 | 0.0040018856 | $7,129 | $7,129 | $0.03 | | |
| COH | City of Oak Harbor | 2.3090730572 | $7,129 | $7,129 | $16.46 | | |
| OAKBOND | City of Oak Harbor BOND | 0.1902260131 | $7,129 | $7,129 | $1.36 | | |
| HOBOND | Hospital BOND | 0.1893405597 | $7,129 | $7,129 | $1.35 | | |
| HOGEN | Hospital GEN | 0.3848777722 | $7,129 | $7,129 | $2.74 | | |
| CE | County Current Expense | 0.3674210519 | $7,129 | $7,129 | $2.62 | | |
| ISLANDEMS | Hospital GEN (EMS) | 0.4952018576 | $7,129 | $7,129 | $3.53 | | |
| LIB | Library Sno-Isle GEN | 0.3039084203 | $7,129 | $7,129 | $2.17 | | |
| NWHIDPRMT | P & R N Whidbey GEN | 0.1990272349 | $7,129 | $7,129 | $1.42 | | |
| SCH201MO | School 201 Enrichment | 2.3851112745 | $7,129 | $7,129 | $17.00 | | |
| ST | State School | 1.4761226122 | $7,129 | $7,129 | $10.52 | | |
| ST2 | State School Part 2 | 0.7953803475 | $7,129 | $7,129 | $5.67 | | |
| | Total Tax Rate: | 9.1310917527 | | | | | |
| | | | | Taxes w/Current Exemptions: | $65.09 | | |
| | | | | Taxes w/o Exemptions: | $65.09 | | |
Improvement / Building
| Improvement #1: | MANUFACTURED HOME | State Code: | Y | 824.0 sqft | Value: | $7,129 |
| Bathrooms: | 0 | Bedrooms: | 0 | | Ceiling: | PLASTER PAINTED | Cooling: | EVAP NO DUCT | | Exterior Wall/Cover: | VINYL | Floor Covering: | CARPET 100% | | Floor Structure: | SLAB ON GRADE | Foundation: | SLAB | | Heating: | FHA ELECTRIC | Interior Finish: | PLASTER | | Plumbing Fixture Cnt: | 1 | Roof Slope: | FLAT | | Roof Structure/Cover: | CJ ALUMINIUM HEAVY |   |   |
|
Sketch
Property Image
Land
No land segments exist for this property.
Roll Value History
| 2026 | N/A | N/A | N/A | N/A | N/A |
| 2025 | $7,129 | $0 | $0 | $7,129 | $7,129 |
| 2024 | $7,129 | $0 | $0 | $7,129 | $7,129 |
| 2023 | $3,952 | $0 | $0 | $3,952 | $3,952 |
| 2022 | $3,578 | $0 | $0 | $3,578 | $3,578 |
| 2021 | $3,112 | $0 | $0 | $3,112 | $3,112 |
| 2020 | $3,021 | $0 | $0 | $3,021 | $3,021 |
| 2019 | $2,380 | $0 | $0 | $2,380 | $2,380 |
| 2018 | $2,618 | $0 | $0 | $2,618 | $2,618 |
| 2017 | $2,856 | $0 | $0 | $2,856 | $2,856 |
| 2016 | $2,975 | $0 | $0 | $2,975 | $2,975 |
| 2015 | $3,213 | $0 | $0 | $3,213 | $3,213 |
| 2014 | $3,332 | $0 | $0 | $3,332 | $3,332 |
| 2013 | $3,569 | $0 | $0 | $3,569 | $3,569 |
| 2012 | $3,688 | $0 | $0 | $3,688 | $3,688 |
| 2011 | $5,016 | $0 | $0 | $5,016 | $5,016 |
| 2010 | $5,825 | $0 | $0 | $5,825 | $5,825 |
| 2009 | $6,119 | $0 | $0 | $6,119 | $6,119 |
| 2008 | $6,119 | $0 | $0 | $6,119 | $6,119 |
| 2007 | $6,119 | $0 | $0 | $6,119 | $6,119 |
Deed and Sales History
| 1 | 12/07/2017 | MANHOME | Manufactured Home | JOHNSON, DENISE M | OCHOA, NOE | | | $5,000.00 | 32188 | |
| 2 | 03/01/2016 | MHMISC | Misc. Manufactured Home Docs | SIRES, ELAINE M | JOHNSON, DENISE M | | | $1,500.00 | 23964 | |
| 3 | 12/09/2002 | PACD | Purchaser's Assignment | BURTCHETT, SHIRLEY / | SIRES, ELAINE M | | | $1,800.00 | 24939 | 0 |
| 4 | 07/01/1997 | OTHER | Other - Misc. Documents | PARKER, ALAN D | BURTCHETT, SHIRLEY / | | | $12,200.00 | 72509 | 0 |
| 5 | 02/01/1982 | OTHER | Other - Misc. Documents | Unknown | PARKER, ALAN D | | | $10,000.00 | 20286 | 0 |
Payout Agreement
| No payout information available.. |