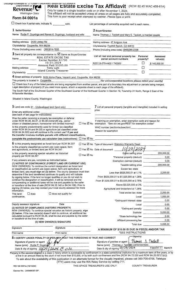
Property
Account |
| Property ID: | 742502 | Abbreviated Legal Description: | S/2 SW SE NE TGW & SUB EZ AF#96010872 FR PT 296-4240 & PT 297-4560 |
| Geographic ID: | R23119-279-4400 | Agent Code: | |
| Type: | Real | | |
| Tax Area: | 319 - APPRAISER-Cpvl Schl Dist, outside Cpvl, vacant & 50 acres or less | Land Use Code | 91 |
| Open Space: | N | DFL | N |
| Historic Property: | N | Remodel Property: | N |
| Multi-Family Redevelopment: | N | | |
| Township: | 31 | Section: | 19 |
| Range: | R2 |
Location |
| Address: | 298 ALOHA PLACE COUPEVILLE, WA 98239 | Mapsco: | |
| Neighborhood: | Cycle 2 | Map ID: | 496 |
| Neighborhood CD: | 2 |
Owner |
| Name: | TACKETT, THOMAS J | Owner ID: | 199880 |
| Mailing Address: | MARY E TACKETT 47 AVIGNON AVE FOOTHILL RANCH, CA 92610-1910 | % Ownership: | 100.0000000000% |
| | | Exemptions: | |
Taxes and Assessment Details
Values
| (+) Improvement Homesite Value: | + | $0 | |
| (+) Improvement Non-Homesite Value: | + | $0 | |
| (+) Land Homesite Value: | + | $0 | |
| (+) Land Non-Homesite Value: | + | $157,500 | |
| (+) Curr Use (HS): | + | $0 | $0 |
| (+) Curr Use (NHS): | + | $0 | $0 |
| | | -------------------------- | |
| (=) Market Value: | = | $157,500 | |
| (–) Productivity Loss: | – | $0 | |
| | | -------------------------- | |
| (=) Subtotal: | = | $157,500 | |
| (+) Senior Appraised Value: | + | $0 | |
| (+) Non-Senior Appraised Value: | + | $157,500 | |
| | | -------------------------- | |
| (=) Total Appraised Value: | = | $157,500 | |
| (–) Senior Exemption Loss: | – | $0 | |
| (–) Exemption Loss: | – | $0 | |
| | | -------------------------- | |
| (=) Taxable Value: | = | $157,500 | |
Taxing Jurisdiction
| Owner: | TACKETT, THOMAS J | | |
| % Ownership: | 100.0000000000% | | |
| Total Value: | $157,500 | | |
| Tax Area: | 319 - APPRAISER-Cpvl Schl Dist, outside Cpvl, vacant & 50 acres or less |
| CF | Conservation Futures | 0.0313996660 | $157,500 | $157,500 | $4.95 | | |
| CEM2 | Cemetery #2 | 0.0092609791 | $157,500 | $157,500 | $1.46 | | |
| HOBOND | Hospital BOND | 0.1893405597 | $157,500 | $157,500 | $29.82 | | |
| HOGEN | Hospital GEN | 0.3848777722 | $157,500 | $157,500 | $60.62 | | |
| CE | County Current Expense | 0.3674210519 | $157,500 | $157,500 | $57.87 | | |
| CR | County Roads | 0.4614296361 | $157,500 | $157,500 | $72.68 | | |
| ISLANDEMS | Hospital GEN (EMS) | 0.4952018576 | $157,500 | $157,500 | $77.99 | | |
| LIB | Library Sno-Isle GEN | 0.3039084203 | $157,500 | $157,500 | $47.87 | | |
| LIBCAP | Library Sno-Isle BOND (Cap Fac Imp Area) | 0.0528562629 | $157,500 | $157,500 | $8.32 | | |
| POCOUP | Port of Coupeville GEN | 0.1065226063 | $157,500 | $157,500 | $16.78 | | |
| POCOUPIDD | Port of Coupeville IDD | 0.3353038577 | $157,500 | $157,500 | $52.81 | | |
| COUPSDTECH | School 204 CP (TECH) | 0.1215123397 | $157,500 | $157,500 | $19.14 | | |
| SCH204MO | School 204 Enrichment | 0.6416662518 | $157,500 | $157,500 | $101.06 | | |
| ST | State School | 1.4761226122 | $157,500 | $157,500 | $232.49 | | |
| ST2 | State School Part 2 | 0.7953803475 | $157,500 | $157,500 | $125.27 | | |
| | Total Tax Rate: | 5.7722042210 | | | | | |
| | | | | Taxes w/Current Exemptions: | $909.13 | | |
| | | | | Taxes w/o Exemptions: | $909.13 | | |
Improvement / Building
Sketch
| No sketches available for this property. |
Property Image
Land
| 1 | 32 | AC (03.01-09.99) | 5.0000 | 0.00 | 0.00 | 0.00 | 1.00 | $157,500 | $0 |
Roll Value History
| 2026 | N/A | N/A | N/A | N/A | N/A |
| 2025 | $0 | $157,500 | $0 | $157,500 | $157,500 |
| 2024 | $0 | $140,000 | $0 | $140,000 | $140,000 |
| 2023 | $0 | $140,000 | $0 | $140,000 | $140,000 |
| 2022 | $0 | $130,000 | $0 | $130,000 | $130,000 |
| 2021 | $0 | $130,000 | $0 | $130,000 | $130,000 |
| 2020 | $0 | $120,000 | $0 | $120,000 | $120,000 |
| 2019 | $0 | $100,000 | $0 | $100,000 | $100,000 |
| 2018 | $0 | $75,000 | $0 | $75,000 | $75,000 |
| 2017 | $0 | $75,000 | $0 | $75,000 | $75,000 |
| 2016 | $0 | $75,000 | $0 | $75,000 | $75,000 |
| 2015 | $0 | $100,000 | $0 | $100,000 | $100,000 |
| 2014 | $0 | $100,000 | $0 | $100,000 | $100,000 |
| 2013 | $0 | $100,000 | $0 | $100,000 | $100,000 |
| 2012 | $0 | $100,000 | $0 | $100,000 | $100,000 |
| 2011 | $0 | $100,000 | $0 | $100,000 | $100,000 |
| 2010 | $0 | $100,000 | $0 | $100,000 | $100,000 |
| 2009 | $0 | $122,500 | $0 | $122,500 | $122,500 |
| 2008 | $0 | $138,000 | $0 | $138,000 | $138,000 |
| 2007 | $0 | $138,000 | $0 | $138,000 | $138,000 |
Deed and Sales History
| 1 | 10/29/2024 | WD | Warranty Deed | DUYSINGS, RUDIE P | TACKETT, THOMAS J | | | $200,000.00 | 61730 | 4578915 |
| 2 | 01/21/2020 | QCD | Quit Claim Deed | DUYSINGS, WILLY | DUYSINGS, RUDIE P | | | $0.00 | 41892 | 4479930 |
| 3 | 10/05/2004 | WD | Warranty Deed | ROBERTS, STANFORD D | DUYSINGS, WILLY | | | $75,000.00 | 44793 | 4115334 |
| 4 | 07/02/2004 | WD | Warranty Deed | , | ROBERTS, STANFORD D | | | $55,000.00 | 43003 | 4106015 |
| 5 | 08/30/1999 | WD | Warranty Deed | Unknown | , | | | $65,000.00 | 93667 | 99020692 |
| 6 | 07/01/1996 | OTHER | Other - Misc. Documents | ROBERTS, STANFORD D | ROBERTS, STANFORD D | | | $0.00 | 67065 | 96012412 |
| 7 | 01/01/1900 | OTHER | Other - Misc. Documents | Unknown | ROBERTS, STANFORD D | | | $0.00 | 50022 | 95000124 |
| 8 | 01/01/1900 | OTHER | Other - Misc. Documents | ROBERTS, STANFORD D | ROBERTS, STANFORD D | | | $0.00 | 0 | 0 |
Payout Agreement
| No payout information available.. |