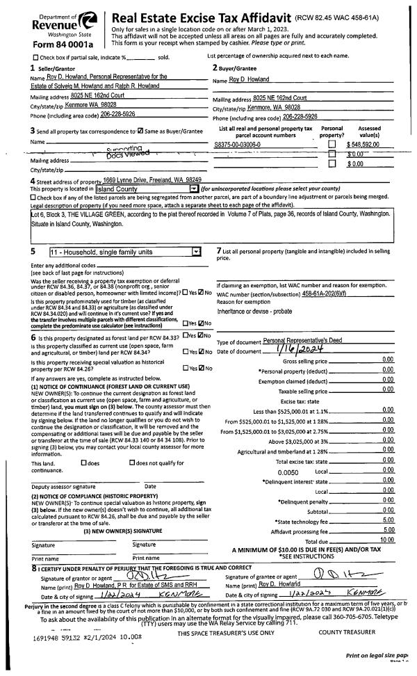
Property
Account |
| Property ID: | 743958 | Abbreviated Legal Description: | VILLAGE GRN LOT 6 BLK 3 |
| Geographic ID: | S8375-00-03006-0 | Agent Code: | |
| Type: | Real | | |
| Tax Area: | 760 - APPRAISER-S Whid Schl Dist, Special District, improved & less than 1 acre | Land Use Code | 11 |
| Open Space: | N | DFL | N |
| Historic Property: | N | Remodel Property: | N |
| Multi-Family Redevelopment: | N | | |
| Township: | | Section: | |
| Range: | |
Location |
| Address: | | Mapsco: | |
| Neighborhood: | Cycle 3 | Map ID: | 313 |
| Neighborhood CD: | 3 |
Owner |
| Name: | HOWLAND, ROY | Owner ID: | 311335 |
| Mailing Address: | 8025 NE 162ND COURT KENMORE, WA 98028 | % Ownership: | 100.0000000000% |
| | | Exemptions: | |
Taxes and Assessment Details
Values
| (+) Improvement Homesite Value: | + | $0 | |
| (+) Improvement Non-Homesite Value: | + | $264,262 | |
| (+) Land Homesite Value: | + | $0 | |
| (+) Land Non-Homesite Value: | + | $330,000 | |
| (+) Curr Use (HS): | + | $0 | $0 |
| (+) Curr Use (NHS): | + | $0 | $0 |
| | | -------------------------- | |
| (=) Market Value: | = | $594,262 | |
| (–) Productivity Loss: | – | $0 | |
| | | -------------------------- | |
| (=) Subtotal: | = | $594,262 | |
| (+) Senior Appraised Value: | + | $0 | |
| (+) Non-Senior Appraised Value: | + | $594,262 | |
| | | -------------------------- | |
| (=) Total Appraised Value: | = | $594,262 | |
| (–) Senior Exemption Loss: | – | $0 | |
| (–) Exemption Loss: | – | $0 | |
| | | -------------------------- | |
| (=) Taxable Value: | = | $594,262 | |
Taxing Jurisdiction
| Owner: | HOWLAND, ROY | | |
| % Ownership: | 100.0000000000% | | |
| Total Value: | $594,262 | | |
| Tax Area: | 760 - APPRAISER-S Whid Schl Dist, Special District, improved & less than 1 acre |
| CF | Conservation Futures | 0.0313996660 | $594,262 | $594,262 | $18.66 | | |
| FIRE3 | Fire & Rescue Dist #3 S Whidbey GEN | 1.2130821753 | $594,262 | $594,262 | $720.89 | | |
| HOBOND | Hospital BOND | 0.1893405597 | $594,262 | $594,262 | $112.52 | | |
| HOGEN | Hospital GEN | 0.3848777722 | $594,262 | $594,262 | $228.72 | | |
| CE | County Current Expense | 0.3674210519 | $594,262 | $594,262 | $218.34 | | |
| CR | County Roads | 0.4614296361 | $594,262 | $594,262 | $274.21 | | |
| ISLANDEMS | Hospital GEN (EMS) | 0.4952018576 | $594,262 | $594,262 | $294.28 | | |
| LIB | Library Sno-Isle GEN | 0.3039084203 | $594,262 | $594,262 | $180.60 | | |
| PORTWHID | Port of S Whidbey GEN | 0.1086004714 | $594,262 | $594,262 | $64.54 | | |
| SCH206BOND | School 206 BOND | 0.5960237832 | $594,262 | $594,262 | $354.19 | | |
| SCH206CAP | School 206 CP | 0.3066144020 | $594,262 | $594,262 | $182.21 | | |
| SCH206MO | School 206 Enrichment | 0.4808755445 | $594,262 | $594,262 | $285.77 | | |
| ST | State School | 1.4761226122 | $594,262 | $594,262 | $877.20 | | |
| ST2 | State School Part 2 | 0.7953803475 | $594,262 | $594,262 | $472.66 | | |
| SWHIDPRBD | P & R S Whidbey BOND | 0.0144185398 | $594,262 | $594,262 | $8.57 | | |
| SWHIDPRBD3 | P & R S Whidbey BOND3 | 0.1483535547 | $594,262 | $594,262 | $88.16 | | |
| SWHIDPRMT | P & R S Whidbey GEN | 0.4600000000 | $594,262 | $594,262 | $273.36 | | |
| | Total Tax Rate: | 7.8330503944 | | | | | |
| | | | | Taxes w/Current Exemptions: | $4,654.88 | | |
| | | | | Taxes w/o Exemptions: | $4,654.88 | | |
Improvement / Building
| Improvement #1: | RESIDENTIAL | State Code: | Y | 1448.0 sqft | Value: | $264,262 |
| Bathrooms: | 2 | Bedrooms: | 2 | | Ceiling: | DRYWALL PAINTED | Exterior Wall/Cover: | PLY/HARDBOARD T-111 | | Floor Covering: | CARPET/VINYL 80-20 | Floor Structure: | WOOD W/SUBFLOOR | | Foundation: | CONCRETE | Heating: | WALL HEAT ELECTRIC | | Interior Finish: | DRYWALL PAINT | Plumbing Fixture Cnt: | 9 | | Roof Slope: | 6" IN 12" | Roof Structure/Cover: | CJ ASPHALT |
|
| | Type | Description | Class CD | Sub Class CD | Year Built | Area |
| | BAS | BASE/MAIN FLOOR | 3 | 0 | 1993 | 1448.0 |
| | OP4 | OPEN PORCH W/CEILING-ROOF | 3 | 0 | 1993 | 45.0 |
| | BIG | BUILT IN GARAGE | 3 | 0 | 1993 | 672.0 |
| | OWP | OPEN WOOD PORCH W/STEPS | 3 | 0 | 1993 | 112.0 |
| | OWP | OPEN WOOD PORCH W/STEPS | 3 | 0 | 1993 | 96.0 |
Sketch
Property Image
Land
| 1 | 14 | SQ (08001-12000) | 0.0000 | 0.00 | 0.00 | 0.00 | 1.00 | $330,000 | $0 |
Roll Value History
| 2026 | N/A | N/A | N/A | N/A | N/A |
| 2025 | $264,262 | $330,000 | $0 | $594,262 | $594,262 |
| 2024 | $267,684 | $300,000 | $0 | $567,684 | $567,684 |
| 2023 | $271,104 | $350,000 | $0 | $621,104 | $621,104 |
| 2022 | $248,592 | $300,000 | $0 | $548,592 | $548,592 |
| 2021 | $218,862 | $190,000 | $0 | $408,862 | $57,338 |
| 2020 | $213,155 | $160,000 | $0 | $373,155 | $57,338 |
| 2019 | $138,516 | $170,000 | $0 | $308,516 | $57,338 |
| 2018 | $138,969 | $130,000 | $0 | $268,969 | $57,338 |
| 2017 | $139,878 | $120,000 | $0 | $259,878 | $57,338 |
| 2016 | $141,695 | $90,000 | $0 | $231,695 | $57,338 |
| 2015 | $143,513 | $90,000 | $0 | $233,513 | $57,338 |
| 2014 | $145,327 | $90,000 | $0 | $235,327 | $57,338 |
| 2013 | $140,511 | $80,000 | $0 | $220,511 | $57,338 |
| 2012 | $142,287 | $97,750 | $0 | $240,037 | $57,338 |
| 2011 | $144,061 | $115,000 | $0 | $259,061 | $57,338 |
| 2010 | $151,160 | $115,000 | $0 | $266,160 | $57,338 |
| 2009 | $157,670 | $140,000 | $0 | $297,670 | $57,338 |
| 2008 | $159,596 | $164,826 | $0 | $324,422 | $57,338 |
| 2007 | $163,665 | $164,826 | $0 | $328,491 | $57,338 |
Deed and Sales History
| 1 | 01/16/2024 | PRD | Personal Representatives Deed | HOWLAND, RALPH R/SOLVEIG M | HOWLAND, ROY | | | $0.00 | 59132 | 4569079 |
| 2 | 05/01/1993 | WD | Warranty Deed | RUSSELL, JOYCE T | HOWLAND, RALPH R | | | $28,500.00 | 31980 | 93010289 |
| 3 | 09/01/1989 | QCD | Quit Claim Deed | CARRYER, BONNI L | RUSSELL, JOYCE T | | | $0.00 | 94220 | 89013874 |
| 4 | 10/01/1985 | QCD | Quit Claim Deed | CARRYER, BONNI L | CARRYER, BONNI L | | | $0.00 | 53089 | 85012240 |
| 5 | 03/01/1980 | TRUSTEED | Trustee's Deed | POLLARD, WILLIAM J | CARRYER, BONNI L | | | $12,000.00 | 1076 | 367059 |
| 6 | 01/01/1900 | OTHER | Other - Misc. Documents | Unknown | POLLARD, WILLIAM J | | | $0.00 | 0 | 0 |
Payout Agreement
| No payout information available.. |