Property
Account |
| Property ID: | 744966 | Abbreviated Legal Description: | LOT 4 SP 22-93.23305.343-1990 V3 SP P112 AF#96017899 |
| Geographic ID: | R23305-329-2460 | Agent Code: | |
| Type: | Real | | |
| Tax Area: | 110 - APPRAISER-OH Schl Dist, outside OH, improved & 1 acre or less | Land Use Code | 11 |
| Open Space: | N | DFL | N |
| Historic Property: | N | Remodel Property: | N |
| Multi-Family Redevelopment: | N | | |
| Township: | 33 | Section: | 05 |
| Range: | R2 |
Location |
| Address: | 4648 JONES RD OAK HARBOR, WA 98277 | Mapsco: | |
| Neighborhood: | Cycle 6 | Map ID: | 585 |
| Neighborhood CD: | 6 |
Owner |
| Name: | PEIZER, SUZANNE | Owner ID: | 282177 |
| Mailing Address: | 4648 JONES RD OAK HARBOR, WA 98277 | % Ownership: | 100.0000000000% |
| | | Exemptions: | |
Taxes and Assessment Details
Values
| (+) Improvement Homesite Value: | + | N/A | |
| (+) Improvement Non-Homesite Value: | + | N/A | |
| (+) Land Homesite Value: | + | N/A | |
| (+) Land Non-Homesite Value: | + | N/A | Ag / Timber Use Value |
| (+) Curr Use (HS): | + | N/A | N/A |
| (+) Curr Use (NHS): | + | N/A | N/A |
| | | -------------------------- | |
| (=) Market Value: | = | N/A | |
| (–) Productivity Loss: | – | N/A | |
| | | -------------------------- | |
| (=) Subtotal: | = | N/A | |
| (+) Senior Appraised Value: | + | N/A | |
| (+) Non-Senior Appraised Value: | + | N/A | |
| | | -------------------------- | |
| (=) Total Appraised Value: | = | N/A | |
| (–) Senior Exemption Loss: | – | N/A | |
| (–) Exemption Loss: | – | N/A | |
| | | -------------------------- | |
| (=) Taxable Value: | = | N/A | |
Taxing Jurisdiction
| Owner: | PEIZER, SUZANNE | | |
| % Ownership: | 100.0000000000% | | |
| Total Value: | N/A | | |
| Tax Area: | 110 - APPRAISER-OH Schl Dist, outside OH, improved & 1 acre or less |
| CF | Conservation Futures | N/A | N/A | N/A | N/A | | |
| WCD | Whidbey Conservation District | N/A | N/A | N/A | N/A | | |
| CEM1 | Cemetery #1 | N/A | N/A | N/A | N/A | | |
| FIRE2 | Fire & Rescue Dist #2 N Whidbey GEN | N/A | N/A | N/A | N/A | | |
| HOBOND | Hospital BOND | N/A | N/A | N/A | N/A | | |
| HOGEN | Hospital GEN | N/A | N/A | N/A | N/A | | |
| CE | County Current Expense | N/A | N/A | N/A | N/A | | |
| CR | County Roads | N/A | N/A | N/A | N/A | | |
| ISLANDEMS | Hospital GEN (EMS) | N/A | N/A | N/A | N/A | | |
| LIB | Library Sno-Isle GEN | N/A | N/A | N/A | N/A | | |
| NWHIDPRMT | P & R N Whidbey GEN | N/A | N/A | N/A | N/A | | |
| SCH201MO | School 201 Enrichment | N/A | N/A | N/A | N/A | | |
| ST | State School | N/A | N/A | N/A | N/A | | |
| ST2 | State School Part 2 | N/A | N/A | N/A | N/A | | |
| | Total Tax Rate: | N/A | | | | | |
| | | | | Taxes w/Current Exemptions: | N/A | | |
| | | | | Taxes w/o Exemptions: | N/A | | |
Improvement / Building
| Improvement #1: | RESIDENTIAL | State Code: | Y | 1289.9 sqft | Value: | N/A |
| Bathrooms: | 1.75 | Bedrooms: | 3 | | Ceiling: | DRYWALL PAINTED | Cooling: | HEAT PUMP/CONV/V | | Exterior Wall/Cover: | CEMENT FIBER | Floor Covering: | HARDWOOD/CARP 60-40 | | Floor Structure: | WOOD W/SUBFLOOR | Foundation: | CONCRETE | | Interior Finish: | DRYWALL PAINT | Plumbing Fixture Cnt: | 11 | | Roof Slope: | 6" IN 12" | Roof Structure/Cover: | CJ ASPHALT |
|
| | Type | Description | Class CD | Sub Class CD | Year Built | Area |
| | BAS | BASE/MAIN FLOOR | 4 | 0 | 2008 | 1289.9 |
| | AGR | ATTACHED GARAGE | 4 | 0 | 2008 | 527.8 |
| | OWR | OPEN WOOD PORCH W/STEPS/ROOF | 4 | 0 | 2008 | 23.2 |
| | OWP | OPEN WOOD PORCH W/STEPS | 4 | 0 | 2008 | 224.4 |
Sketch
Property Image
Land
| 1 | HB | HIGH BLUFF | 0.8700 | 37897.20 | 90.00 | 0.00 | 1.00 | N/A | N/A |
Roll Value History
| 2026 | N/A | N/A | N/A | N/A | N/A |
| 2025 | $354,713 | $515,000 | $0 | $869,713 | $869,713 |
| 2024 | $357,866 | $500,000 | $0 | $857,866 | $857,866 |
| 2023 | $360,626 | $475,000 | $0 | $835,626 | $835,626 |
| 2022 | $324,059 | $450,000 | $0 | $774,059 | $774,059 |
| 2021 | $274,600 | $250,000 | $0 | $524,600 | $524,600 |
| 2020 | $265,637 | $230,000 | $0 | $495,637 | $495,637 |
| 2019 | $190,971 | $300,000 | $0 | $490,971 | $490,971 |
| 2018 | $191,477 | $200,000 | $0 | $391,477 | $391,477 |
| 2017 | $170,018 | $150,000 | $0 | $320,018 | $320,018 |
| 2016 | $170,018 | $150,000 | $0 | $320,018 | $320,018 |
| 2015 | $171,808 | $150,000 | $0 | $321,808 | $321,808 |
| 2014 | $161,737 | $150,000 | $0 | $311,737 | $311,737 |
| 2013 | $153,806 | $152,378 | $0 | $306,184 | $306,184 |
| 2012 | $78,560 | $152,378 | $0 | $230,938 | $230,938 |
| 2011 | $79,386 | $152,378 | $0 | $231,764 | $231,764 |
| 2010 | $78,683 | $152,378 | $0 | $231,061 | $231,061 |
| 2009 | $81,110 | $125,479 | $0 | $206,589 | $206,589 |
| 2008 | $81,929 | $125,479 | $0 | $207,408 | $207,408 |
| 2007 | $0 | $94,129 | $0 | $94,129 | $94,129 |
Deed and Sales History
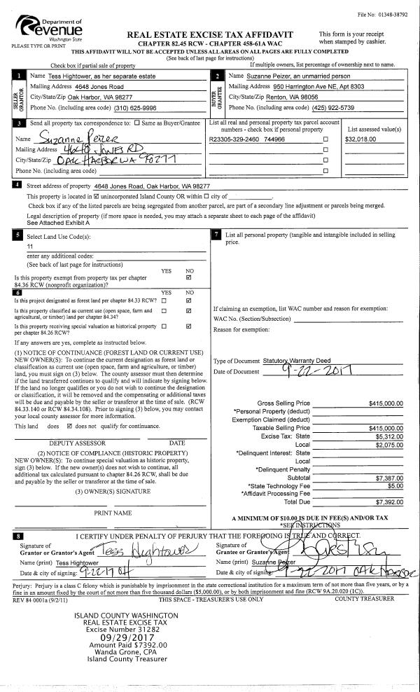
| 1 | 09/22/2017 | WD | Warranty Deed | HIGHTOWER, TESS | PEIZER, SUZANNE | | | $415,000.00 | 31282 | 4431034 |
| 2 | 12/28/2016 | QCD | Quit Claim Deed | HIGHTOWER JTWROS, TESS | HIGHTOWER, TESS | | | $0.00 | 27680 | 4414899 |
| 3 | 05/21/2015 | JTWROS | Adding JTWROS | HIGHTOWER, TESS | HIGHTOWER JTWROS, TESS | | | $0.00 | 20119 | 4380717 |
| 4 | 08/21/2014 | ESTSEPPROP | Establish Separate Property | HIGHTOWER, TESS | HIGHTOWER, TESS | | | $0.00 | 16680 | 4365050 |
| 5 | 09/02/2014 | WD | Warranty Deed | WALLGREN, EDWARD J | HIGHTOWER, TESS | | | $335,000.00 | 16679 | 4365049 |
| 6 | 12/05/2013 | ESTSEPPROP | Establish Separate Property | WALLGREN, EDWARD J | WALLGREN, EDWARD J | | | $0.00 | 13627 | 4352214 |
| 7 | 07/25/2013 | EZ | Easement | WALLGREN, EDWARD J | WALLGREN, EDWARD J | | | $1,899.00 | 12381 | 4346306 |
| 8 | 02/19/2013 | WD | Warranty Deed | CHURCHILL, GEORGE B | WALLGREN, EDWARD J | | | $650,000.00 | 10457 | 4333936 |
|   | |
| 9 | 12/22/2004 | WD | Warranty Deed | CHURCHILL, GEORGE B | CHURCHILL, GEORGE B | | | $0.00 | 50028 | 4122406 |
| 10 | 12/22/2004 | WD | Warranty Deed | DEY, KAREN E | CHURCHILL, GEORGE B | | | $117,990.00 | 45973 | 4121632 |
| 11 | 01/01/1900 | OTHER | Other - Misc. Documents | Unknown | DEY, KAREN E | | | $0.00 | 60804 | 0 |
Payout Agreement
| No payout information available.. |