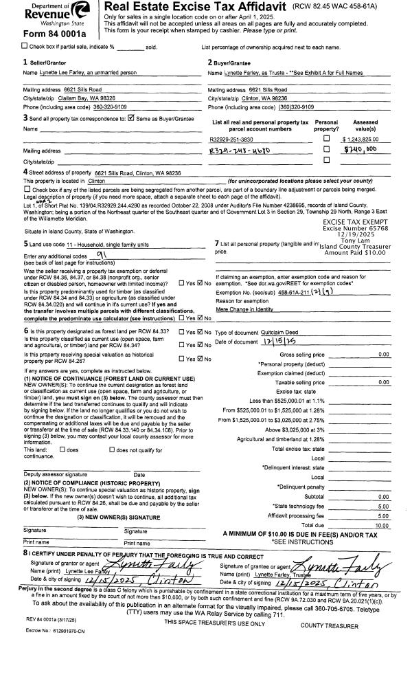
Property
Account |
| Property ID: | 745518 | Abbreviated Legal Description: | SYNDICATE ADD LOT 1 SP 28-93.8290.00-00024-4 V3 SP P113 AF#96018254 |
| Geographic ID: | S8290-00-00024-7 | Agent Code: | |
| Type: | Real | | |
| Tax Area: | 760 - APPRAISER-S Whid Schl Dist, Special District, improved & less than 1 acre | Land Use Code | 11 |
| Open Space: | N | DFL | N |
| Historic Property: | N | Remodel Property: | N |
| Multi-Family Redevelopment: | N | | |
| Township: | | Section: | |
| Range: | |
Location |
| Address: | | Mapsco: | |
| Neighborhood: | Cycle 3 | Map ID: | 331 |
| Neighborhood CD: | 3 |
Owner |
| Name: | LUBY TTEE, MICHAEL A | Owner ID: | 286198 |
| Mailing Address: | TERRI L LUBY TTEE 14357 GLENAYRE CIR PARKER, CO 80134 | % Ownership: | 100.0000000000% |
| | | Exemptions: | |
Taxes and Assessment Details
Values
| (+) Improvement Homesite Value: | + | $0 | |
| (+) Improvement Non-Homesite Value: | + | $25,000 | |
| (+) Land Homesite Value: | + | $0 | |
| (+) Land Non-Homesite Value: | + | $110,000 | |
| (+) Curr Use (HS): | + | $0 | $0 |
| (+) Curr Use (NHS): | + | $0 | $0 |
| | | -------------------------- | |
| (=) Market Value: | = | $135,000 | |
| (–) Productivity Loss: | – | $0 | |
| | | -------------------------- | |
| (=) Subtotal: | = | $135,000 | |
| (+) Senior Appraised Value: | + | $0 | |
| (+) Non-Senior Appraised Value: | + | $135,000 | |
| | | -------------------------- | |
| (=) Total Appraised Value: | = | $135,000 | |
| (–) Senior Exemption Loss: | – | $0 | |
| (–) Exemption Loss: | – | $0 | |
| | | -------------------------- | |
| (=) Taxable Value: | = | $135,000 | |
Taxing Jurisdiction
| Owner: | LUBY TTEE, MICHAEL A | | |
| % Ownership: | 100.0000000000% | | |
| Total Value: | $135,000 | | |
| Tax Area: | 760 - APPRAISER-S Whid Schl Dist, Special District, improved & less than 1 acre |
| CF | Conservation Futures | 0.0313996660 | $135,000 | $135,000 | $4.24 | | |
| FIRE3 | Fire & Rescue Dist #3 S Whidbey GEN | 1.2130821753 | $135,000 | $135,000 | $163.77 | | |
| HOBOND | Hospital BOND | 0.1893405597 | $135,000 | $135,000 | $25.56 | | |
| HOGEN | Hospital GEN | 0.3848777722 | $135,000 | $135,000 | $51.96 | | |
| CE | County Current Expense | 0.3674210519 | $135,000 | $135,000 | $49.60 | | |
| CR | County Roads | 0.4614296361 | $135,000 | $135,000 | $62.29 | | |
| ISLANDEMS | Hospital GEN (EMS) | 0.4952018576 | $135,000 | $135,000 | $66.85 | | |
| LIB | Library Sno-Isle GEN | 0.3039084203 | $135,000 | $135,000 | $41.03 | | |
| PORTWHID | Port of S Whidbey GEN | 0.1086004714 | $135,000 | $135,000 | $14.66 | | |
| SCH206BOND | School 206 BOND | 0.5960237832 | $135,000 | $135,000 | $80.46 | | |
| SCH206CAP | School 206 CP | 0.3066144020 | $135,000 | $135,000 | $41.39 | | |
| SCH206MO | School 206 Enrichment | 0.4808755445 | $135,000 | $135,000 | $64.92 | | |
| ST | State School | 1.4761226122 | $135,000 | $135,000 | $199.28 | | |
| ST2 | State School Part 2 | 0.7953803475 | $135,000 | $135,000 | $107.38 | | |
| SWHIDPRBD | P & R S Whidbey BOND | 0.0144185398 | $135,000 | $135,000 | $1.95 | | |
| SWHIDPRBD3 | P & R S Whidbey BOND3 | 0.1483535547 | $135,000 | $135,000 | $20.03 | | |
| SWHIDPRMT | P & R S Whidbey GEN | 0.4600000000 | $135,000 | $135,000 | $62.10 | | |
| | Total Tax Rate: | 7.8330503944 | | | | | |
| | | | | Taxes w/Current Exemptions: | $1,057.47 | | |
| | | | | Taxes w/o Exemptions: | $1,057.47 | | |
Improvement / Building
| Improvement #1: | RESIDENTIAL | State Code: | Y | 0.0 sqft | Value: | $25,000 |
Sketch
| No sketches available for this property. |
Property Image
Land
| 1 | 16 | AC (00.51-01.00) | 0.0000 | 0.00 | 0.00 | 0.00 | 1.00 | $110,000 | $0 |
Roll Value History
| 2026 | N/A | N/A | N/A | N/A | N/A |
| 2025 | $25,000 | $110,000 | $0 | $135,000 | $135,000 |
| 2024 | $25,000 | $110,000 | $0 | $135,000 | $135,000 |
| 2023 | $25,000 | $110,000 | $0 | $135,000 | $135,000 |
| 2022 | $25,000 | $110,000 | $0 | $135,000 | $135,000 |
| 2021 | $25,000 | $150,000 | $0 | $175,000 | $175,000 |
| 2020 | $25,000 | $135,000 | $0 | $160,000 | $160,000 |
| 2019 | $25,000 | $170,000 | $0 | $195,000 | $195,000 |
| 2018 | $25,000 | $140,000 | $0 | $165,000 | $165,000 |
| 2017 | $25,000 | $100,000 | $0 | $125,000 | $125,000 |
| 2016 | $25,000 | $100,000 | $0 | $125,000 | $125,000 |
| 2015 | $25,000 | $100,000 | $0 | $125,000 | $125,000 |
| 2014 | $25,000 | $100,000 | $0 | $125,000 | $125,000 |
| 2013 | $32,235 | $83,088 | $0 | $115,323 | $115,323 |
| 2012 | $32,235 | $83,088 | $0 | $115,323 | $115,323 |
| 2011 | $32,235 | $97,750 | $0 | $129,985 | $129,985 |
| 2010 | $32,235 | $97,750 | $0 | $129,985 | $129,985 |
| 2009 | $33,082 | $153,000 | $0 | $186,082 | $186,082 |
| 2008 | $33,929 | $153,000 | $0 | $186,929 | $186,929 |
| 2007 | $34,777 | $153,000 | $0 | $187,777 | $187,777 |
Deed and Sales History
| 1 | 07/25/2018 | WD | Warranty Deed | WILKERSON, LEONARD LEE | LUBY TTEE, MICHAEL A | | | $825,000.00 | 35200 | 4448852 |
|   | |
| 2 | 02/06/2017 | QCD | Quit Claim Deed | WILKERSON, LEONARD LEE | WILKERSON, LEONARD LEE | | | $0.00 | 28001 | 4416697 |
| 3 | 06/01/1997 | WD | Warranty Deed | MEGORDEN, HERBERT T | WILKERSON, LEONARD L | | | $60,000.00 | 72040 | 97009526 |
Payout Agreement
| No payout information available.. |