Property
Account |
| Property ID: | 74564 | Abbreviated Legal Description: | 1-1 - LOT 1 BLK 1 DESC A28563 SURVEY VOL 4 P84-85 IN WELCHER DLC BG N/4 CR SD SEC E289.57' TO NW CR OF WELCHER DLC S90' S4*W1026. 52' N4*E74.18' S89*E TO SHORELN SLY ALG SHORELN TO PT S89*E TPB N89*W ALG SD N LN TPB & BG N/4 CR OF SD SEC E289.57' TO NW CR |
| Geographic ID: | R23107-419-3230 | Agent Code: | |
| Type: | Real | | |
| Tax Area: | 310 - APPRAISER-Cpvl Schl Dist, outside Cpvl, improved & 1 acre or less | Land Use Code | 11 |
| Open Space: | N | DFL | N |
| Historic Property: | N | Remodel Property: | N |
| Multi-Family Redevelopment: | N | | |
| Township: | 31 | Section: | 07 |
| Range: | R2 |
Location |
| Address: | 487 RACE RD COUPEVILLE, WA 98239 | Mapsco: | |
| Neighborhood: | Cycle 2 | Map ID: | 465 |
| Neighborhood CD: | 2 |
Owner |
| Name: | ANDERSON JR, TTEE, JOHN EDWARD | Owner ID: | 296056 |
| Mailing Address: | CHERYL ANN ANDERSON, TTEE PO BOX 416 MORRISTOWN, AZ 85342 | % Ownership: | 100.0000000000% |
| | | Exemptions: | |
Taxes and Assessment Details
Values
| (+) Improvement Homesite Value: | + | $0 | |
| (+) Improvement Non-Homesite Value: | + | $4,000 | |
| (+) Land Homesite Value: | + | $0 | |
| (+) Land Non-Homesite Value: | + | $400,000 | |
| (+) Curr Use (HS): | + | $0 | $0 |
| (+) Curr Use (NHS): | + | $0 | $0 |
| | | -------------------------- | |
| (=) Market Value: | = | $404,000 | |
| (–) Productivity Loss: | – | $0 | |
| | | -------------------------- | |
| (=) Subtotal: | = | $404,000 | |
| (+) Senior Appraised Value: | + | $0 | |
| (+) Non-Senior Appraised Value: | + | $404,000 | |
| | | -------------------------- | |
| (=) Total Appraised Value: | = | $404,000 | |
| (–) Senior Exemption Loss: | – | $0 | |
| (–) Exemption Loss: | – | $0 | |
| | | -------------------------- | |
| (=) Taxable Value: | = | $404,000 | |
Taxing Jurisdiction
| Owner: | ANDERSON JR, TTEE, JOHN EDWARD | | |
| % Ownership: | 100.0000000000% | | |
| Total Value: | $404,000 | | |
| Tax Area: | 310 - APPRAISER-Cpvl Schl Dist, outside Cpvl, improved & 1 acre or less |
| CF | Conservation Futures | 0.0313996660 | $404,000 | $404,000 | $12.69 | | |
| CEM2 | Cemetery #2 | 0.0092609791 | $404,000 | $404,000 | $3.74 | | |
| FIRE5 | Fire & Rescue Dist #5 C Whidbey GEN | 1.1892169230 | $404,000 | $404,000 | $480.44 | | |
| FIRE5BOND | Fire & Rescue Dist #5 C Whidbey BOND | 0.1394359503 | $404,000 | $404,000 | $56.33 | | |
| HOBOND | Hospital BOND | 0.1893405597 | $404,000 | $404,000 | $76.49 | | |
| HOGEN | Hospital GEN | 0.3848777722 | $404,000 | $404,000 | $155.49 | | |
| CE | County Current Expense | 0.3674210519 | $404,000 | $404,000 | $148.44 | | |
| CR | County Roads | 0.4614296361 | $404,000 | $404,000 | $186.42 | | |
| ISLANDEMS | Hospital GEN (EMS) | 0.4952018576 | $404,000 | $404,000 | $200.06 | | |
| LIB | Library Sno-Isle GEN | 0.3039084203 | $404,000 | $404,000 | $122.78 | | |
| LIBCAP | Library Sno-Isle BOND (Cap Fac Imp Area) | 0.0528562629 | $404,000 | $404,000 | $21.35 | | |
| POCOUP | Port of Coupeville GEN | 0.1065226063 | $404,000 | $404,000 | $43.04 | | |
| POCOUPIDD | Port of Coupeville IDD | 0.3353038577 | $404,000 | $404,000 | $135.46 | | |
| COUPSDTECH | School 204 CP (TECH) | 0.1215123397 | $404,000 | $404,000 | $49.09 | | |
| SCH204MO | School 204 Enrichment | 0.6416662518 | $404,000 | $404,000 | $259.23 | | |
| ST | State School | 1.4761226122 | $404,000 | $404,000 | $596.35 | | |
| ST2 | State School Part 2 | 0.7953803475 | $404,000 | $404,000 | $321.33 | | |
| | Total Tax Rate: | 7.1008570943 | | | | | |
| | | | | Taxes w/Current Exemptions: | $2,868.73 | | |
| | | | | Taxes w/o Exemptions: | $2,868.73 | | |
Improvement / Building
| Improvement #1: | RESIDENTIAL | State Code: | Y | 0.0 sqft | Value: | $4,000 |
Sketch
Property Image
Land
| 1 | LB | LOW BANK | 0.6300 | 27442.80 | 74.00 | 0.00 | 1.00 | $400,000 | $0 |
Roll Value History
| 2026 | N/A | N/A | N/A | N/A | N/A |
| 2025 | $4,000 | $400,000 | $0 | $404,000 | $404,000 |
| 2024 | $4,000 | $400,000 | $0 | $404,000 | $404,000 |
| 2023 | $4,000 | $375,000 | $0 | $379,000 | $379,000 |
| 2022 | $4,000 | $325,000 | $0 | $329,000 | $329,000 |
| 2021 | $4,000 | $325,000 | $0 | $329,000 | $329,000 |
| 2020 | $4,000 | $275,000 | $0 | $279,000 | $279,000 |
| 2019 | $4,000 | $300,000 | $0 | $304,000 | $304,000 |
| 2018 | $4,000 | $200,000 | $0 | $204,000 | $204,000 |
| 2017 | $4,000 | $200,000 | $0 | $204,000 | $204,000 |
| 2016 | $4,000 | $200,000 | $0 | $204,000 | $204,000 |
| 2015 | $1 | $200,000 | $0 | $200,001 | $200,001 |
| 2014 | $1 | $200,000 | $0 | $200,001 | $200,001 |
| 2013 | $1 | $250,000 | $0 | $250,001 | $250,001 |
| 2012 | $1 | $250,000 | $0 | $250,001 | $250,001 |
| 2011 | $4,000 | $291,313 | $0 | $295,313 | $295,313 |
| 2010 | $4,000 | $291,313 | $0 | $295,313 | $295,313 |
| 2009 | $4,000 | $320,444 | $0 | $324,444 | $324,444 |
| 2008 | $4,000 | $320,444 | $0 | $324,444 | $324,444 |
| 2007 | $4,000 | $255,109 | $0 | $259,109 | $259,109 |
Deed and Sales History
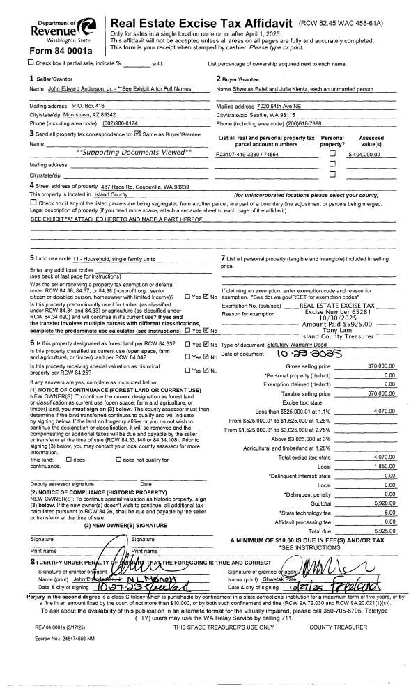
| 1 | 10/25/2025 | WD | Warranty Deed | ANDERSON JR, TTEE, JOHN EDWARD | PATEL, SHWETAK | | | $370,000.00 | 65281 | 4592835 |
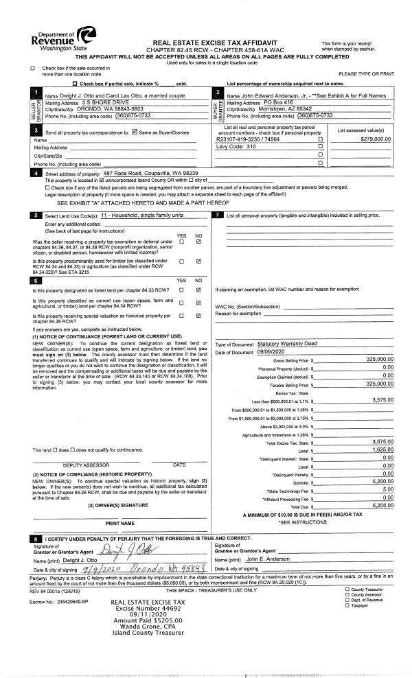
| 2 | 09/09/2020 | WD | Warranty Deed | OTTO, DWIGHT J | ANDERSON JR, TTEE, JOHN EDWARD | | | $325,000.00 | 44692 | 4496222 |
| 3 | 07/15/2019 | WD | Warranty Deed | BOWYER, JOHN O | OTTO, DWIGHT J | | | $245,000.00 | 39478 | 4467551 |
| 4 | 06/08/2017 | WD | Warranty Deed | UNGER, DARRELL D | BOWYER, JOHN O | | | $185,000.00 | 29806 | 4424538 |
| 5 | 11/09/2004 | WD | Warranty Deed | PRESSNALL, JAMES R | UNGER, DOARRELL D | | | $185,000.00 | 45509 | 4118948 |
| 6 | 02/10/2000 | WD | Warranty Deed | SHEPARD, KENNETH Q | PRESSNALL, JAMES R | | | $169,000.00 | 588 | 20003112 |
| 7 | 10/01/1979 | EXECUTORD | Executor Deed | KELLEM, T V | SHEPARD, KENNETH Q | | | $25,000.00 | 95017 | 360246 |
| 8 | 07/01/1979 | TRUSTEED | Trustee's Deed | RACE, R H | KELLEM, T V | | | $6,600.00 | 933710 | 3554310 |
| 9 | 01/01/1900 | OTHER | Other - Misc. Documents | Unknown | RACE, R H | | | $0.00 | 0 | 0 |
Payout Agreement
| No payout information available.. |