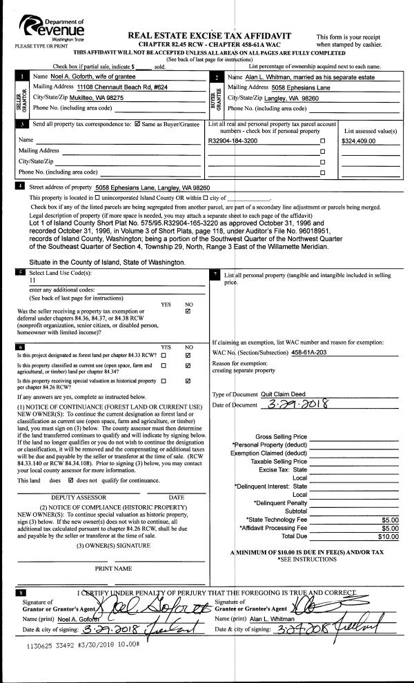
Property
Account |
| Property ID: | 746553 | Abbreviated Legal Description: | 5.4000 Acres ins Section 04s Township 29s Range R3s LOT B BLA 223-18 LOT 1 SP 575-95.32904-165-3220 AF#4451361;s |
| Geographic ID: | R32904-184-3200 | Agent Code: | |
| Type: | Real | | |
| Tax Area: | 712 - APPRAISER-S Whid Schl Dist, outside Langley, improved, greater than 1 acre | Land Use Code | 11 |
| Open Space: | N | DFL | N |
| Historic Property: | N | Remodel Property: | N |
| Multi-Family Redevelopment: | N | | |
| Township: | 29 | Section: | 04 |
| Range: | R3 |
Location |
| Address: | 5058 EPHESIANS LN LANGLEY, WA 98260 | Mapsco: | |
| Neighborhood: | Cycle 4 | Map ID: | 729 |
| Neighborhood CD: | 4 |
Owner |
| Name: | WHITMAN, ALAN L | Owner ID: | 284424 |
| Mailing Address: | PO BOX 174 LANGLEY, WA 98260 | % Ownership: | 100.0000000000% |
| | | Exemptions: | |
Taxes and Assessment Details
Values
| (+) Improvement Homesite Value: | + | $0 | |
| (+) Improvement Non-Homesite Value: | + | $275,881 | |
| (+) Land Homesite Value: | + | $0 | |
| (+) Land Non-Homesite Value: | + | $380,000 | |
| (+) Curr Use (HS): | + | $0 | $0 |
| (+) Curr Use (NHS): | + | $0 | $0 |
| | | -------------------------- | |
| (=) Market Value: | = | $655,881 | |
| (–) Productivity Loss: | – | $0 | |
| | | -------------------------- | |
| (=) Subtotal: | = | $655,881 | |
| (+) Senior Appraised Value: | + | $0 | |
| (+) Non-Senior Appraised Value: | + | $655,881 | |
| | | -------------------------- | |
| (=) Total Appraised Value: | = | $655,881 | |
| (–) Senior Exemption Loss: | – | $0 | |
| (–) Exemption Loss: | – | $0 | |
| | | -------------------------- | |
| (=) Taxable Value: | = | $655,881 | |
Taxing Jurisdiction
| Owner: | WHITMAN, ALAN L | | |
| % Ownership: | 100.0000000000% | | |
| Total Value: | $655,881 | | |
| Tax Area: | 712 - APPRAISER-S Whid Schl Dist, outside Langley, improved, greater than 1 acre |
| CF | Conservation Futures | 0.0313996660 | $655,881 | $655,881 | $20.59 | | |
| FIRE3 | Fire & Rescue Dist #3 S Whidbey GEN | 1.2130821753 | $655,881 | $655,881 | $795.64 | | |
| HOBOND | Hospital BOND | 0.1893405597 | $655,881 | $655,881 | $124.18 | | |
| HOGEN | Hospital GEN | 0.3848777722 | $655,881 | $655,881 | $252.43 | | |
| CE | County Current Expense | 0.3674210519 | $655,881 | $655,881 | $240.98 | | |
| CR | County Roads | 0.4614296361 | $655,881 | $655,881 | $302.64 | | |
| ISLANDEMS | Hospital GEN (EMS) | 0.4952018576 | $655,881 | $655,881 | $324.79 | | |
| LIB | Library Sno-Isle GEN | 0.3039084203 | $655,881 | $655,881 | $199.33 | | |
| PORTWHID | Port of S Whidbey GEN | 0.1086004714 | $655,881 | $655,881 | $71.23 | | |
| SCH206BOND | School 206 BOND | 0.5960237832 | $655,881 | $655,881 | $390.92 | | |
| SCH206CAP | School 206 CP | 0.3066144020 | $655,881 | $655,881 | $201.10 | | |
| SCH206MO | School 206 Enrichment | 0.4808755445 | $655,881 | $655,881 | $315.40 | | |
| ST | State School | 1.4761226122 | $655,881 | $655,881 | $968.16 | | |
| ST2 | State School Part 2 | 0.7953803475 | $655,881 | $655,881 | $521.67 | | |
| SWHIDPRBD | P & R S Whidbey BOND | 0.0144185398 | $655,881 | $655,881 | $9.46 | | |
| SWHIDPRBD3 | P & R S Whidbey BOND3 | 0.1483535547 | $655,881 | $655,881 | $97.30 | | |
| SWHIDPRMT | P & R S Whidbey GEN | 0.4600000000 | $655,881 | $655,881 | $301.71 | | |
| | Total Tax Rate: | 7.8330503944 | | | | | |
| | | | | Taxes w/Current Exemptions: | $5,137.53 | | |
| | | | | Taxes w/o Exemptions: | $5,137.53 | | |
Improvement / Building
| Improvement #1: | RESIDENTIAL | State Code: | Y | 1374.5 sqft | Value: | $275,881 |
| Bathrooms: | 2 | Bedrooms: | 2 | | Ceiling: | DRYWALL PAINTED | Cooling: | HEAT PUMP/CONV/V | | Exterior Wall/Cover: | VINYL | Floor Covering: | CARPET/VINYL 80-20 | | Floor Structure: | WOOD W/SUBFLOOR | Foundation: | CONCRETE BLOCKS | | Interior Finish: | DRYWALL PAINT | Plumbing Fixture Cnt: | 9 | | Roof Slope: | 8" IN 12" | Roof Structure/Cover: | ALUM LIGHT |
|
| | Type | Description | Class CD | Sub Class CD | Year Built | Area |
| | BAS | BASE/MAIN FLOOR | 3 | 0 | 1979 | 1038.5 |
| | UPS | UPPER STORY | 3 | 0 | 1979 | 336.0 |
| | OWR | OPEN WOOD PORCH W/STEPS/ROOF | 3 | 0 | 1979 | 99.0 |
| | DGR | DETACHED GARAGE | 3 | 0 | 1979 | 1472.4 |
| | OWP | OPEN WOOD PORCH W/STEPS | 3 | 0 | 1979 | 190.0 |
Sketch
Property Image
Land
| 1 | 32 | AC (03.01-09.99) | 5.4000 | 235224.00 | 0.00 | 0.00 | 1.00 | $380,000 | $0 |
Roll Value History
| 2026 | N/A | N/A | N/A | N/A | N/A |
| 2025 | $275,881 | $380,000 | $0 | $655,881 | $655,881 |
| 2024 | $279,407 | $350,000 | $0 | $629,407 | $629,407 |
| 2023 | $282,932 | $330,000 | $0 | $612,932 | $612,932 |
| 2022 | $259,405 | $290,000 | $0 | $549,405 | $549,405 |
| 2021 | $228,337 | $230,000 | $0 | $458,337 | $458,337 |
| 2020 | $193,892 | $190,000 | $0 | $383,892 | $383,892 |
| 2019 | $138,587 | $250,000 | $0 | $388,587 | $388,587 |
| 2018 | $133,558 | $210,000 | $0 | $343,558 | $343,558 |
| 2017 | $134,409 | $190,000 | $0 | $324,409 | $324,409 |
| 2016 | $136,111 | $135,000 | $0 | $271,111 | $271,111 |
| 2015 | $137,811 | $135,000 | $0 | $272,811 | $272,811 |
| 2014 | $110,496 | $141,480 | $0 | $251,976 | $251,976 |
| 2013 | $111,852 | $141,480 | $0 | $253,332 | $253,332 |
| 2012 | $113,209 | $141,480 | $0 | $254,689 | $254,689 |
| 2011 | $114,564 | $141,480 | $0 | $256,044 | $256,044 |
| 2010 | $122,294 | $141,480 | $0 | $263,774 | $263,774 |
| 2009 | $127,386 | $230,560 | $0 | $357,946 | $357,946 |
| 2008 | $129,091 | $262,838 | $0 | $391,929 | $391,929 |
| 2007 | $130,796 | $262,838 | $0 | $393,634 | $393,634 |
Deed and Sales History
| 1 | 10/17/2018 | QCD | Quit Claim Deed | WHITMAN, ALAN L | | | | | 36382 | 4453802 |
| 2 | 03/29/2018 | QCD | Quit Claim Deed | WHITMAN, ALAN L | WHITMAN, ALAN L | | | $0.00 | 33492 | 4441747 |
| 3 | 03/29/2018 | WD | Warranty Deed | HAINES, HELEN E | WHITMAN, ALAN L | | | $399,500.00 | 33491 | 4441746 |
| 4 | 09/10/1998 | WD | Warranty Deed | PETOSA, JACK & KRISTIN | HAINES, HELEN E | | | $169,000.00 | 83686 | 98019248 |
| 5 | 01/01/1900 | OTHER | Other - Misc. Documents | Unknown | PETOSA, JACK & KRISTIN | | | $0.00 | 0 | 0 |
Payout Agreement
| No payout information available.. |