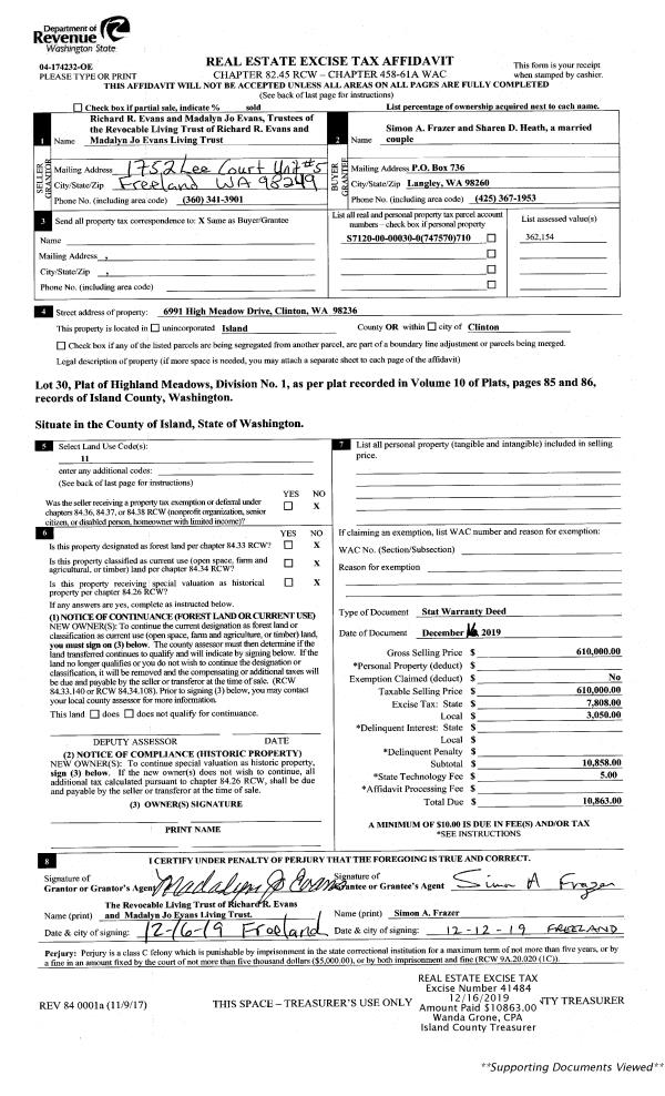
Property
Account |
| Property ID: | 747570 | Abbreviated Legal Description: | HIGHLAND MEADOWS #1 LOT 30 |
| Geographic ID: | S7120-00-00030-0 | Agent Code: | |
| Type: | Real | | |
| Tax Area: | 710 - APPRAISER-S Whid Schl Dist, outside Langley, improved & 1 acre or less | Land Use Code | 11 |
| Open Space: | N | DFL | N |
| Historic Property: | N | Remodel Property: | N |
| Multi-Family Redevelopment: | N | | |
| Township: | | Section: | |
| Range: | |
Location |
| Address: | 6991 HIGH MEADOW DR CLINTON, WA 98236 | Mapsco: | |
| Neighborhood: | Cycle 4 | Map ID: | 848 |
| Neighborhood CD: | 4 |
Owner |
| Name: | FRAZER, SIMON A | Owner ID: | 196048 |
| Mailing Address: | SHAREN D HEATH 6991 HIGH MEADOW DR CLINTON, WA 98236 | % Ownership: | 100.0000000000% |
| | | Exemptions: | |
Taxes and Assessment Details
Values
| (+) Improvement Homesite Value: | + | $0 | |
| (+) Improvement Non-Homesite Value: | + | $401,557 | |
| (+) Land Homesite Value: | + | $0 | |
| (+) Land Non-Homesite Value: | + | $280,000 | |
| (+) Curr Use (HS): | + | $0 | $0 |
| (+) Curr Use (NHS): | + | $0 | $0 |
| | | -------------------------- | |
| (=) Market Value: | = | $681,557 | |
| (–) Productivity Loss: | – | $0 | |
| | | -------------------------- | |
| (=) Subtotal: | = | $681,557 | |
| (+) Senior Appraised Value: | + | $0 | |
| (+) Non-Senior Appraised Value: | + | $681,557 | |
| | | -------------------------- | |
| (=) Total Appraised Value: | = | $681,557 | |
| (–) Senior Exemption Loss: | – | $0 | |
| (–) Exemption Loss: | – | $0 | |
| | | -------------------------- | |
| (=) Taxable Value: | = | $681,557 | |
Taxing Jurisdiction
| Owner: | FRAZER, SIMON A | | |
| % Ownership: | 100.0000000000% | | |
| Total Value: | $681,557 | | |
| Tax Area: | 710 - APPRAISER-S Whid Schl Dist, outside Langley, improved & 1 acre or less |
| CF | Conservation Futures | 0.0313996660 | $681,557 | $681,557 | $21.40 | | |
| FIRE3 | Fire & Rescue Dist #3 S Whidbey GEN | 1.2130821753 | $681,557 | $681,557 | $826.78 | | |
| HOBOND | Hospital BOND | 0.1893405597 | $681,557 | $681,557 | $129.05 | | |
| HOGEN | Hospital GEN | 0.3848777722 | $681,557 | $681,557 | $262.32 | | |
| CE | County Current Expense | 0.3674210519 | $681,557 | $681,557 | $250.42 | | |
| CR | County Roads | 0.4614296361 | $681,557 | $681,557 | $314.49 | | |
| ISLANDEMS | Hospital GEN (EMS) | 0.4952018576 | $681,557 | $681,557 | $337.51 | | |
| LIB | Library Sno-Isle GEN | 0.3039084203 | $681,557 | $681,557 | $207.13 | | |
| PORTWHID | Port of S Whidbey GEN | 0.1086004714 | $681,557 | $681,557 | $74.02 | | |
| SCH206BOND | School 206 BOND | 0.5960237832 | $681,557 | $681,557 | $406.22 | | |
| SCH206CAP | School 206 CP | 0.3066144020 | $681,557 | $681,557 | $208.98 | | |
| SCH206MO | School 206 Enrichment | 0.4808755445 | $681,557 | $681,557 | $327.74 | | |
| ST | State School | 1.4761226122 | $681,557 | $681,557 | $1,006.06 | | |
| ST2 | State School Part 2 | 0.7953803475 | $681,557 | $681,557 | $542.10 | | |
| SWHIDPRBD | P & R S Whidbey BOND | 0.0144185398 | $681,557 | $681,557 | $9.83 | | |
| SWHIDPRBD3 | P & R S Whidbey BOND3 | 0.1483535547 | $681,557 | $681,557 | $101.11 | | |
| SWHIDPRMT | P & R S Whidbey GEN | 0.4600000000 | $681,557 | $681,557 | $313.52 | | |
| | Total Tax Rate: | 7.8330503944 | | | | | |
| | | | | Taxes w/Current Exemptions: | $5,338.68 | | |
| | | | | Taxes w/o Exemptions: | $5,338.68 | | |
Improvement / Building
| Improvement #1: | RESIDENTIAL | State Code: | Y | 1746.0 sqft | Value: | $401,557 |
| Bathrooms: | 2 | Bedrooms: | 2 | | Ceiling: | BEAM PAINTED | Cooling: | HEAT PUMP/CONV/V | | Exterior Wall/Cover: | WOOD SIDING | Floor Covering: | CERAMIC TILE/HWD 40/60 | | Floor Structure: | WOOD W/SUBFLOOR | Foundation: | CONCRETE | | Interior Finish: | DRYWALL PAINT | Plumbing Fixture Cnt: | 10 | | Roof Slope: | 5" IN 12" | Roof Structure/Cover: | BEAM ASPHALT |
|
| | Type | Description | Class CD | Sub Class CD | Year Built | Area |
| | BAS | BASE/MAIN FLOOR | 4 | 0 | 1976 | 802.0 |
| | UPS | UPPER STORY | 4 | 0 | 1976 | 460.0 |
| | OWP | OPEN WOOD PORCH W/STEPS | 4 | 0 | 1976 | 64.0 |
| | OWP | OPEN WOOD PORCH W/STEPS | 4 | 0 | 1976 | 301.0 |
| | ENP | ENCLOSED PORCH | 4 | 0 | 1976 | 80.0 |
| | DWN | DOWNSTAIRS LIVING AREA | 4 | 0 | 1976 | 484.0 |
| | DGR | DETACHED GARAGE | 4 | 0 | 1976 | 768.0 |
| | BAW | BALCONY WOOD RAIL | 4 | 0 | 1976 | 52.7 |
| | CPD | OPEN CARPORT DIRT FLOOR | 4 | 0 | 1976 | 416.0 |
Sketch
| No sketches available for this property. |
Property Image
Land
| 1 | 17 | AC (01.01-02.00) | 0.0000 | 0.00 | 0.00 | 0.00 | 1.00 | $280,000 | $0 |
Roll Value History
| 2026 | N/A | N/A | N/A | N/A | N/A |
| 2025 | $401,557 | $280,000 | $0 | $681,557 | $681,557 |
| 2024 | $405,885 | $270,000 | $0 | $675,885 | $675,885 |
| 2023 | $411,349 | $260,000 | $0 | $671,349 | $671,349 |
| 2022 | $377,436 | $250,000 | $0 | $627,436 | $627,436 |
| 2021 | $332,509 | $175,000 | $0 | $507,509 | $507,509 |
| 2020 | $282,242 | $165,000 | $0 | $447,242 | $447,242 |
| 2019 | $162,154 | $200,000 | $0 | $362,154 | $362,154 |
| 2018 | $162,738 | $170,000 | $0 | $332,738 | $332,738 |
| 2017 | $163,910 | $150,000 | $0 | $313,910 | $313,910 |
| 2016 | $166,252 | $130,000 | $0 | $296,252 | $296,252 |
| 2015 | $168,592 | $100,000 | $0 | $268,592 | $268,592 |
| 2014 | $168,655 | $100,000 | $0 | $268,655 | $268,655 |
| 2013 | $171,013 | $85,000 | $0 | $256,013 | $256,013 |
| 2012 | $173,373 | $69,700 | $0 | $243,073 | $243,073 |
| 2011 | $175,732 | $82,000 | $0 | $257,732 | $257,732 |
| 2010 | $179,243 | $82,000 | $0 | $261,243 | $261,243 |
| 2009 | $186,915 | $155,000 | $0 | $341,915 | $341,915 |
| 2008 | $194,575 | $110,000 | $0 | $304,575 | $304,575 |
| 2007 | $197,309 | $110,000 | $0 | $307,309 | $307,309 |
Deed and Sales History
| 1 | 12/16/2019 | WD | Warranty Deed | EVANS TRUSTEE, RICHARD R | FRAZER, SIMON A | | | $610,000.00 | 41484 | 4477617 |
| 2 | 04/19/2010 | QCD | Quit Claim Deed | EVANS, RICHARD R | EVANS TRUSTEE, RICHARD R | | | $0.00 | 946 | 4272637 |
| 3 | 04/01/1989 | WD | Warranty Deed | PRATHER, STEVEN | EVANS, RICHARD R | | | $122,500.00 | 91193 | 89004175 |
| 4 | 10/01/1982 | QCD | Quit Claim Deed | PRATHER, STEVEN | PRATHER, STEVEN | | | $0.00 | 59704 | 401878 |
| 5 | 08/01/1982 | QCD | Quit Claim Deed | BANCROFT, PAUL W | PRATHER, STEVEN | | | $0.00 | 22521 | 401878 |
| 6 | 08/01/1981 | WD | Warranty Deed | Unknown | BANCROFT, PAUL W | | | $160,000.00 | 12431 | 386471 |
Payout Agreement
| No payout information available.. |