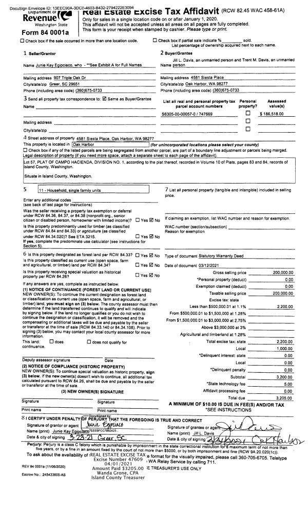
Property
Account |
| Property ID: | 747669 | Abbreviated Legal Description: | CAMPO HAC 1 LOT 57 |
| Geographic ID: | S6305-00-00057-0 | Agent Code: | |
| Type: | Real | | |
| Tax Area: | 110 - APPRAISER-OH Schl Dist, outside OH, improved & 1 acre or less | Land Use Code | 11 |
| Open Space: | N | DFL | N |
| Historic Property: | N | Remodel Property: | N |
| Multi-Family Redevelopment: | N | | |
| Township: | | Section: | |
| Range: | |
Location |
| Address: | 4581 SIESTA PLACE OAK HARBOR, WA 98277 | Mapsco: | |
| Neighborhood: | Cycle 6 | Map ID: | 190 |
| Neighborhood CD: | 6 |
Owner |
| Name: | PARSONS, TIM | Owner ID: | 308036 |
| Mailing Address: | JENNIFER PARSONS 1600 PENN COVE RD OAK HARBOR, WA 98277 | % Ownership: | 100.0000000000% |
| | | Exemptions: | |
Taxes and Assessment Details
Values
| (+) Improvement Homesite Value: | + | $54,727 | |
| (+) Improvement Non-Homesite Value: | + | $0 | |
| (+) Land Homesite Value: | + | $220,000 | |
| (+) Land Non-Homesite Value: | + | $0 | |
| (+) Curr Use (HS): | + | $0 | $0 |
| (+) Curr Use (NHS): | + | $0 | $0 |
| | | -------------------------- | |
| (=) Market Value: | = | $274,727 | |
| (–) Productivity Loss: | – | $0 | |
| | | -------------------------- | |
| (=) Subtotal: | = | $274,727 | |
| (+) Senior Appraised Value: | + | $0 | |
| (+) Non-Senior Appraised Value: | + | $274,727 | |
| | | -------------------------- | |
| (=) Total Appraised Value: | = | $274,727 | |
| (–) Senior Exemption Loss: | – | $0 | |
| (–) Exemption Loss: | – | $0 | |
| | | -------------------------- | |
| (=) Taxable Value: | = | $274,727 | |
Taxing Jurisdiction
| Owner: | PARSONS, TIM | | |
| % Ownership: | 100.0000000000% | | |
| Total Value: | $274,727 | | |
| Tax Area: | 110 - APPRAISER-OH Schl Dist, outside OH, improved & 1 acre or less |
| CF | Conservation Futures | 0.0313996660 | $274,727 | $274,727 | $8.63 | | |
| CEM1 | Cemetery #1 | 0.0040018856 | $274,727 | $274,727 | $1.10 | | |
| FIRE2 | Fire & Rescue Dist #2 N Whidbey GEN | 0.5381486274 | $274,727 | $274,727 | $147.84 | | |
| HOBOND | Hospital BOND | 0.1893405597 | $274,727 | $274,727 | $52.02 | | |
| HOGEN | Hospital GEN | 0.3848777722 | $274,727 | $274,727 | $105.74 | | |
| CE | County Current Expense | 0.3674210519 | $274,727 | $274,727 | $100.94 | | |
| CR | County Roads | 0.4614296361 | $274,727 | $274,727 | $126.77 | | |
| ISLANDEMS | Hospital GEN (EMS) | 0.4952018576 | $274,727 | $274,727 | $136.05 | | |
| LIB | Library Sno-Isle GEN | 0.3039084203 | $274,727 | $274,727 | $83.49 | | |
| NWHIDPRMT | P & R N Whidbey GEN | 0.1990272349 | $274,727 | $274,727 | $54.68 | | |
| SCH201MO | School 201 Enrichment | 2.3851112745 | $274,727 | $274,727 | $655.25 | | |
| ST | State School | 1.4761226122 | $274,727 | $274,727 | $405.53 | | |
| ST2 | State School Part 2 | 0.7953803475 | $274,727 | $274,727 | $218.51 | | |
| | Total Tax Rate: | 7.6313709459 | | | | | |
| | | | | Taxes w/Current Exemptions: | $2,096.55 | | |
| | | | | Taxes w/o Exemptions: | $2,096.55 | | |
Improvement / Building
| Improvement #1: | MANUFACTURED HOME | State Code: | Y | 960.0 sqft | Value: | $54,727 |
| Bathrooms: | 0 | Bedrooms: | 0 | | Ceiling: | PLASTER PAINTED | Cooling: | EVAP NO DUCT | | Exterior Wall/Cover: | VINYL | Floor Covering: | CARPET 100% | | Floor Structure: | SLAB ON GRADE | Foundation: | SLAB | | Heating: | FHA ELECTRIC | Interior Finish: | PLASTER | | Plumbing Fixture Cnt: | 1 | Roof Slope: | FLAT | | Roof Structure/Cover: | CJ ALUMINIUM HEAVY |   |   |
|
| | Type | Description | Class CD | Sub Class CD | Year Built | Area |
| | BAS | BASE/MAIN FLOOR | 3 | 0 | 1975 | 960.0 |
| | OWP | OPEN WOOD PORCH W/STEPS | 3 | 0 | 1975 | 100.0 |
| | OWP | OPEN WOOD PORCH W/STEPS | 3 | 0 | 1975 | 192.0 |
Sketch
Property Image
Land
| 1 | 15 | SQ (12001-21780) | 0.0000 | 0.00 | 0.00 | 0.00 | 1.00 | $220,000 | $0 |
Roll Value History
| 2026 | N/A | N/A | N/A | N/A | N/A |
| 2025 | $54,727 | $220,000 | $0 | $274,727 | $274,727 |
| 2024 | $56,717 | $200,000 | $0 | $256,717 | $256,717 |
| 2023 | $59,702 | $190,000 | $0 | $249,702 | $249,702 |
| 2022 | $57,334 | $170,000 | $0 | $227,334 | $227,334 |
| 2021 | $51,464 | $150,000 | $0 | $201,464 | $201,464 |
| 2020 | $51,518 | $135,000 | $0 | $186,518 | $186,518 |
| 2019 | $41,814 | $170,000 | $0 | $211,814 | $211,814 |
| 2018 | $43,044 | $130,000 | $0 | $173,044 | $173,044 |
| 2017 | $27,847 | $110,000 | $0 | $137,847 | $137,847 |
| 2016 | $17,994 | $85,000 | $0 | $102,994 | $102,994 |
| 2015 | $19,084 | $65,000 | $0 | $84,084 | $84,084 |
| 2014 | $20,720 | $50,000 | $0 | $70,720 | $20,720 |
| 2013 | $21,810 | $72,250 | $0 | $94,060 | $24,528 |
| 2012 | $22,901 | $72,250 | $0 | $95,151 | $24,528 |
| 2011 | $23,991 | $85,000 | $0 | $108,991 | $24,528 |
| 2010 | $34,707 | $85,000 | $0 | $119,707 | $24,528 |
| 2009 | $36,919 | $94,933 | $0 | $131,852 | $24,527 |
| 2008 | $38,559 | $104,252 | $0 | $142,811 | $24,527 |
| 2007 | $40,374 | $103,818 | $0 | $144,192 | $25,062 |
Deed and Sales History
| 1 | 03/13/2023 | WD | Warranty Deed | DAVIS, JILL L | PARSONS, TIM | | | $265,000.00 | 56159 | 4557937 |
| 2 | 03/12/2021 | WD | Warranty Deed | WHITSON, JUNIE KAY | DAVIS, JILL L | | | $200,000.00 | 47609 | 4515339 |
| 3 | 01/25/2018 | WD | Warranty Deed | MASSEY JR, WILLIAM L | WHITSON, JUNIE KAY | | | $174,000.00 | 32785 | 4438362 |
| 4 | 08/22/2017 | WD | Warranty Deed | HERITAGE BANK | MASSEY JR, WILLIAM L | | | $79,000.00 | 30788 | 4428868 |
| 5 | 02/09/2017 | TRUSTEED | Trustee's Deed | OLIVIERO, ROBERTA | HERITAGE BANK | | | $0.00 | 28055 | 4416892 |
| 6 | 08/30/2002 | WD | Warranty Deed | GOGARTY, ROBERT | OLIVIERO, ROBERTA J | | | $104,950.00 | 23474 | 4030060 |
| 7 | 08/28/2002 | WD | Warranty Deed | OLIVIERO, ROBERTA J | OLIVIERO, ROBERTA J | | | $104,950.00 | 23623 | 4031010 |
| 8 | 02/08/2002 | ESTSEPPROP | Establish Separate Property | GOGARTY, ROBERT | GOGARTY, ROBERT | | | $0.00 | 21112 | 4015151 |
| 9 | 12/01/1996 | OTHER | Other - Misc. Documents | Unknown | GOGARTY, ROBERT | | | $47,000.00 | 64315 | 0 |
| 10 | 12/01/1996 | WD | Warranty Deed | GOGARTY, ROBERT | GOGARTY, ROBERT | | | $34,500.00 | 64314 | 96021084 |
| 11 | 12/01/1996 | WD | Warranty Deed | GRITTON, BRUCE W | GOGARTY, ROBERT | | | $34,500.00 | 64314 | 96021084 |
| 12 | 12/01/1993 | WD | Warranty Deed | WEATHERBY, STEVE E | GRITTON, BRUCE W | | | $44,500.00 | 35062 | 93026399 |
| 13 | 11/01/1990 | WD | Warranty Deed | WILSON, JERRY R | WEATHERBY, STEVE E | | | $13,000.00 | 6188 | 90021213 |
| 14 | 08/01/1987 | WD | Warranty Deed | HAWKE, STEVEN B | WILSON, JERRY R | | | $33,900.00 | 72616 | 87011875 |
| 15 | 09/01/1986 | WD | Warranty Deed | MULLIN, LAWRENCE E | HAWKE, STEVEN B | | | $15,600.00 | 62797 | 86012647 |
| 16 | 01/01/1900 | OTHER | Other - Misc. Documents | GOGARTY, ROBERT | MULLIN, LAWRENCE E | | | $0.00 | 0 | 0 |
Payout Agreement
| No payout information available.. |