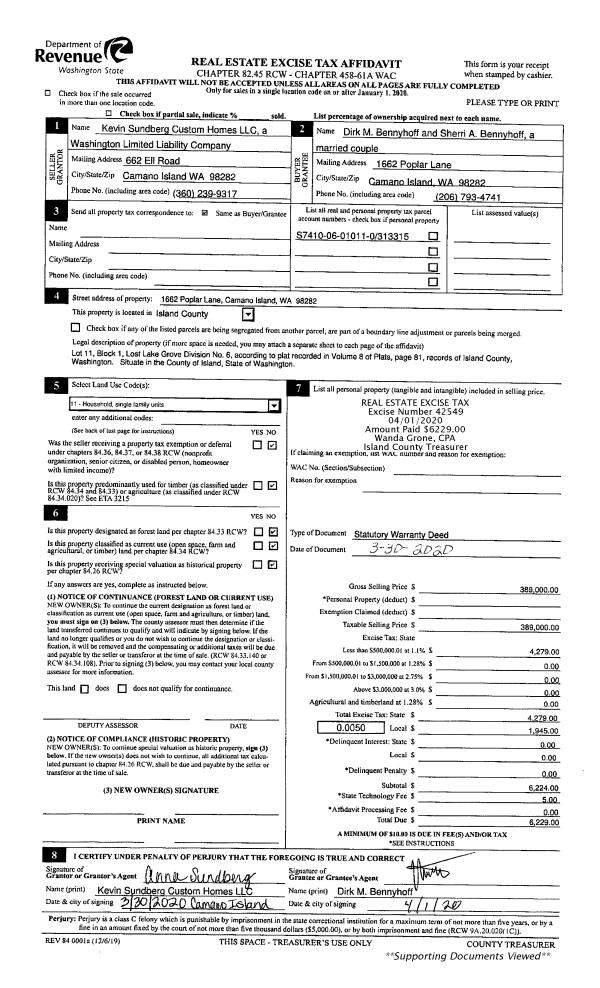
Property
Account |
| Property ID: | 747730 | Abbreviated Legal Description: | SARATOGA LOT 36 BLK B TGW PT VAC PINE ST LY BETW LOTS 35 & 36 BLK B INCL BEACH RIGHTS DESC 383D372 |
| Geographic ID: | S8085-00-0B036-1 | Agent Code: | |
| Type: | Real | | |
| Tax Area: | 730 - APPRAISER-S Whid Schl Dist, Special District, improved & less than 1 acre | Land Use Code | 11 |
| Open Space: | N | DFL | N |
| Historic Property: | N | Remodel Property: | N |
| Multi-Family Redevelopment: | N | | |
| Township: | | Section: | |
| Range: | |
Location |
| Address: | 3785 MORNING GLORY LN LANGLEY, WA 98260 | Mapsco: | |
| Neighborhood: | Cycle 4 | Map ID: | 880 |
| Neighborhood CD: | 4 |
Owner |
| Name: | CRAMER, KYLE | Owner ID: | 274722 |
| Mailing Address: | 11619 33RD DR SE EVERETT, WA 98208-6133 | % Ownership: | 100.0000000000% |
| | | Exemptions: | |
Taxes and Assessment Details
Values
| (+) Improvement Homesite Value: | + | $0 | |
| (+) Improvement Non-Homesite Value: | + | $199,111 | |
| (+) Land Homesite Value: | + | $0 | |
| (+) Land Non-Homesite Value: | + | $370,000 | |
| (+) Curr Use (HS): | + | $0 | $0 |
| (+) Curr Use (NHS): | + | $0 | $0 |
| | | -------------------------- | |
| (=) Market Value: | = | $569,111 | |
| (–) Productivity Loss: | – | $0 | |
| | | -------------------------- | |
| (=) Subtotal: | = | $569,111 | |
| (+) Senior Appraised Value: | + | $0 | |
| (+) Non-Senior Appraised Value: | + | $569,111 | |
| | | -------------------------- | |
| (=) Total Appraised Value: | = | $569,111 | |
| (–) Senior Exemption Loss: | – | $0 | |
| (–) Exemption Loss: | – | $0 | |
| | | -------------------------- | |
| (=) Taxable Value: | = | $569,111 | |
Taxing Jurisdiction
| Owner: | CRAMER, KYLE | | |
| % Ownership: | 100.0000000000% | | |
| Total Value: | $569,111 | | |
| Tax Area: | 730 - APPRAISER-S Whid Schl Dist, Special District, improved & less than 1 acre |
| CF | Conservation Futures | 0.0313996660 | $569,111 | $569,111 | $17.87 | | |
| FIRE3 | Fire & Rescue Dist #3 S Whidbey GEN | 1.2130821753 | $569,111 | $569,111 | $690.38 | | |
| HOBOND | Hospital BOND | 0.1893405597 | $569,111 | $569,111 | $107.76 | | |
| HOGEN | Hospital GEN | 0.3848777722 | $569,111 | $569,111 | $219.04 | | |
| CE | County Current Expense | 0.3674210519 | $569,111 | $569,111 | $209.10 | | |
| CR | County Roads | 0.4614296361 | $569,111 | $569,111 | $262.60 | | |
| ISLANDEMS | Hospital GEN (EMS) | 0.4952018576 | $569,111 | $569,111 | $281.82 | | |
| LIB | Library Sno-Isle GEN | 0.3039084203 | $569,111 | $569,111 | $172.96 | | |
| PORTWHID | Port of S Whidbey GEN | 0.1086004714 | $569,111 | $569,111 | $61.81 | | |
| SCH206BOND | School 206 BOND | 0.5960237832 | $569,111 | $569,111 | $339.20 | | |
| SCH206CAP | School 206 CP | 0.3066144020 | $569,111 | $569,111 | $174.50 | | |
| SCH206MO | School 206 Enrichment | 0.4808755445 | $569,111 | $569,111 | $273.67 | | |
| ST | State School | 1.4761226122 | $569,111 | $569,111 | $840.08 | | |
| ST2 | State School Part 2 | 0.7953803475 | $569,111 | $569,111 | $452.66 | | |
| SWHIDPRBD | P & R S Whidbey BOND | 0.0144185398 | $569,111 | $569,111 | $8.21 | | |
| SWHIDPRBD3 | P & R S Whidbey BOND3 | 0.1483535547 | $569,111 | $569,111 | $84.43 | | |
| SWHIDPRMT | P & R S Whidbey GEN | 0.4600000000 | $569,111 | $569,111 | $261.79 | | |
| | Total Tax Rate: | 7.8330503944 | | | | | |
| | | | | Taxes w/Current Exemptions: | $4,457.88 | | |
| | | | | Taxes w/o Exemptions: | $4,457.88 | | |
Improvement / Building
| Improvement #1: | RESIDENTIAL | State Code: | Y | 996.0 sqft | Value: | $199,111 |
| Bathrooms: | 1 | Bedrooms: | 2 | | Ceiling: | TONGUE & GROOVE | Cooling: | HEAT PUMP/CONV/V | | Exterior Wall/Cover: | WOOD SIDING | Floor Covering: | CARPET/VINYL 80-20 | | Floor Structure: | WOOD W/SUBFLOOR | Foundation: | CONCRETE | | Interior Finish: | DRYWALL PAINT | Plumbing Fixture Cnt: | 6 | | Roof Slope: | 5" IN 12" | Roof Structure/Cover: | CJ ALUMINIUM HEAVY |
|
| | Type | Description | Class CD | Sub Class CD | Year Built | Area |
| | BAS | BASE/MAIN FLOOR | 3 | 0 | 1949 | 996.0 |
| | UB6 | BASEMENT UNFINISHED 6" | 3 | 0 | 1949 | 564.0 |
| | OWP | OPEN WOOD PORCH W/STEPS | 3 | 0 | 1949 | 102.0 |
| | DGR | DETACHED GARAGE | 3 | 0 | 1949 | 528.0 |
| | OWP | OPEN WOOD PORCH W/STEPS | 3 | 0 | 1949 | 208.0 |
Sketch
Property Image
Land
| 1 | 15 | SQ (12001-21780) | 0.0000 | 0.00 | 0.00 | 0.00 | 1.00 | $370,000 | $0 |
Roll Value History
| 2026 | N/A | N/A | N/A | N/A | N/A |
| 2025 | $199,111 | $370,000 | $0 | $569,111 | $569,111 |
| 2024 | $201,988 | $370,000 | $0 | $571,988 | $571,988 |
| 2023 | $204,862 | $210,000 | $0 | $414,862 | $414,862 |
| 2022 | $188,112 | $210,000 | $0 | $398,112 | $398,112 |
| 2021 | $165,839 | $180,000 | $0 | $345,839 | $345,839 |
| 2020 | $146,670 | $180,000 | $0 | $326,670 | $326,670 |
| 2019 | $104,965 | $250,000 | $0 | $354,965 | $354,965 |
| 2018 | $105,348 | $150,000 | $0 | $255,348 | $255,348 |
| 2017 | $105,704 | $160,000 | $0 | $265,704 | $265,704 |
| 2016 | $102,361 | $125,000 | $0 | $227,361 | $227,361 |
| 2015 | $88,812 | $100,000 | $0 | $188,812 | $188,812 |
| 2014 | $76,725 | $75,000 | $0 | $151,725 | $151,725 |
| 2013 | $78,230 | $85,000 | $0 | $163,230 | $163,230 |
| 2012 | $76,915 | $97,750 | $0 | $174,665 | $174,665 |
| 2011 | $78,209 | $115,000 | $0 | $193,209 | $193,209 |
| 2010 | $87,715 | $115,000 | $0 | $202,715 | $202,715 |
| 2009 | $91,428 | $120,000 | $0 | $211,428 | $211,428 |
| 2008 | $91,978 | $120,000 | $0 | $211,978 | $211,978 |
| 2007 | $93,355 | $120,000 | $0 | $213,355 | $213,355 |
Deed and Sales History
| 1 | 07/14/2020 | QCD | Quit Claim Deed | CRAMER, KYLE | CRAMER, KYLE | | | $0.00 | 43967 | 4492289 |
| 2 | 05/16/2019 | QCD | Quit Claim Deed | CRAMER, KYLE | CRAMER, KYLE | | | $0.00 | 38750 | 4464387 |
| 3 | 05/03/2016 | ESTSEPPROP | Establish Separate Property | CRAMER, KYLE | CRAMER, KYLE | | | $0.00 | 24193 | 4398838 |
| 4 | 04/29/2016 | SPWARDEED | Special Warranty Deed | OVERTURF, CLARENCE L | CRAMER, KYLE | | | $280,000.00 | 24196 | 4398837 |
| 5 | 03/01/1997 | SEG | DNU - Segregation | OVERTURF, CLARENCE L | OVERTURF, CLARENCE L | | | $0.00 | 67278 | 0 |
| 6 | 01/01/1900 | OTHER | Other - Misc. Documents | Unknown | OVERTURF, CLARENCE L | | | $0.00 | 0 | 0 |
Payout Agreement
| No payout information available.. |