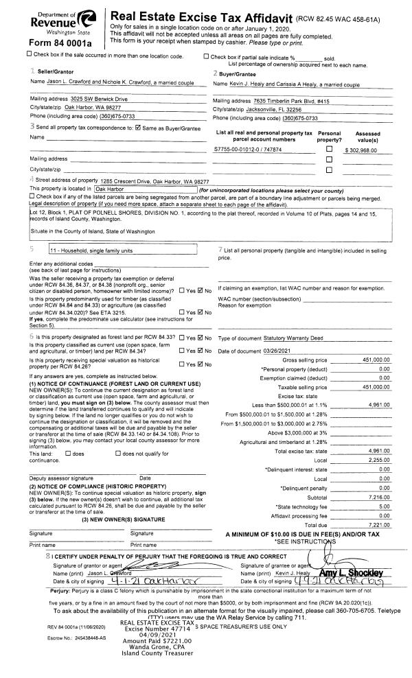
Property
Account |
| Property ID: | 747874 | Abbreviated Legal Description: | POLNELL SH LOT 12 BLK 1 |
| Geographic ID: | S7755-00-01012-0 | Agent Code: | |
| Type: | Real | | |
| Tax Area: | 110 - APPRAISER-OH Schl Dist, outside OH, improved & 1 acre or less | Land Use Code | 11 |
| Open Space: | N | DFL | N |
| Historic Property: | N | Remodel Property: | N |
| Multi-Family Redevelopment: | N | | |
| Township: | | Section: | |
| Range: | |
Location |
| Address: | 1285 CRESCENT DR OAK HARBOR, WA 98277 | Mapsco: | |
| Neighborhood: | Cycle 6 | Map ID: | 540 |
| Neighborhood CD: | 6 |
Owner |
| Name: | HEALY, KEVIN J | Owner ID: | 298836 |
| Mailing Address: | CARISSIA A HEALY 1285 CRESCENT DR OAK HARBOR, WA 98277-8612 | % Ownership: | 100.0000000000% |
| | | Exemptions: | |
Taxes and Assessment Details
Values
| (+) Improvement Homesite Value: | + | $0 | |
| (+) Improvement Non-Homesite Value: | + | $303,179 | |
| (+) Land Homesite Value: | + | $0 | |
| (+) Land Non-Homesite Value: | + | $190,000 | |
| (+) Curr Use (HS): | + | $0 | $0 |
| (+) Curr Use (NHS): | + | $0 | $0 |
| | | -------------------------- | |
| (=) Market Value: | = | $493,179 | |
| (–) Productivity Loss: | – | $0 | |
| | | -------------------------- | |
| (=) Subtotal: | = | $493,179 | |
| (+) Senior Appraised Value: | + | $0 | |
| (+) Non-Senior Appraised Value: | + | $493,179 | |
| | | -------------------------- | |
| (=) Total Appraised Value: | = | $493,179 | |
| (–) Senior Exemption Loss: | – | $0 | |
| (–) Exemption Loss: | – | $0 | |
| | | -------------------------- | |
| (=) Taxable Value: | = | $493,179 | |
Taxing Jurisdiction
| Owner: | HEALY, KEVIN J | | |
| % Ownership: | 100.0000000000% | | |
| Total Value: | $493,179 | | |
| Tax Area: | 110 - APPRAISER-OH Schl Dist, outside OH, improved & 1 acre or less |
| CF | Conservation Futures | 0.0313996660 | $493,179 | $493,179 | $15.49 | | |
| CEM1 | Cemetery #1 | 0.0040018856 | $493,179 | $493,179 | $1.97 | | |
| FIRE2 | Fire & Rescue Dist #2 N Whidbey GEN | 0.5381486274 | $493,179 | $493,179 | $265.40 | | |
| HOBOND | Hospital BOND | 0.1893405597 | $493,179 | $493,179 | $93.38 | | |
| HOGEN | Hospital GEN | 0.3848777722 | $493,179 | $493,179 | $189.81 | | |
| CE | County Current Expense | 0.3674210519 | $493,179 | $493,179 | $181.20 | | |
| CR | County Roads | 0.4614296361 | $493,179 | $493,179 | $227.57 | | |
| ISLANDEMS | Hospital GEN (EMS) | 0.4952018576 | $493,179 | $493,179 | $244.22 | | |
| LIB | Library Sno-Isle GEN | 0.3039084203 | $493,179 | $493,179 | $149.88 | | |
| NWHIDPRMT | P & R N Whidbey GEN | 0.1990272349 | $493,179 | $493,179 | $98.16 | | |
| SCH201MO | School 201 Enrichment | 2.3851112745 | $493,179 | $493,179 | $1,176.29 | | |
| ST | State School | 1.4761226122 | $493,179 | $493,179 | $727.99 | | |
| ST2 | State School Part 2 | 0.7953803475 | $493,179 | $493,179 | $392.26 | | |
| | Total Tax Rate: | 7.6313709459 | | | | | |
| | | | | Taxes w/Current Exemptions: | $3,763.62 | | |
| | | | | Taxes w/o Exemptions: | $3,763.62 | | |
Improvement / Building
| Improvement #1: | RESIDENTIAL | State Code: | Y | 1896.0 sqft | Value: | $303,179 |
| Bathrooms: | 2.5 | Bedrooms: | 4 | | Ceiling: | DRY WALL SPRAYED | Exterior Wall/Cover: | PLY/HARDBOARD T-111 | | Floor Covering: | SOFTWOOD/VINYL 60-40 | Floor Structure: | WOOD W/SUBFLOOR | | Foundation: | CONCRETE | Heating: | FHA GAS | | Interior Finish: | DRYWALL PAINT | Plumbing Fixture Cnt: | 12 | | Roof Slope: | 4" IN 12" | Roof Structure/Cover: | CJ ASPHALT |
|
| | Type | Description | Class CD | Sub Class CD | Year Built | Area |
| | BAS | BASE/MAIN FLOOR | 3 | 0 | 1975 | 1392.0 |
| | AGR | ATTACHED GARAGE | 3 | 0 | 1975 | 264.0 |
| | BIG | BUILT IN GARAGE | 3 | 0 | 1975 | 264.0 |
| | DWN | DOWNSTAIRS LIVING AREA | 3 | 0 | 1975 | 504.0 |
Sketch
Property Image
Land
| 1 | 15 | SQ (12001-21780) | 0.0000 | 0.00 | 0.00 | 0.00 | 1.00 | $190,000 | $0 |
Roll Value History
| 2026 | N/A | N/A | N/A | N/A | N/A |
| 2025 | $303,179 | $190,000 | $0 | $493,179 | $493,179 |
| 2024 | $306,957 | $170,000 | $0 | $476,957 | $476,957 |
| 2023 | $310,735 | $170,000 | $0 | $480,735 | $480,735 |
| 2022 | $267,696 | $160,000 | $0 | $427,696 | $427,696 |
| 2021 | $235,761 | $125,000 | $0 | $360,761 | $360,761 |
| 2020 | $192,968 | $110,000 | $0 | $302,968 | $302,968 |
| 2019 | $145,130 | $150,000 | $0 | $295,130 | $295,130 |
| 2018 | $145,623 | $130,000 | $0 | $275,623 | $275,623 |
| 2017 | $146,609 | $110,000 | $0 | $256,609 | $256,609 |
| 2016 | $119,937 | $100,000 | $0 | $219,937 | $219,937 |
| 2015 | $121,871 | $85,000 | $0 | $206,871 | $206,871 |
| 2014 | $123,805 | $85,000 | $0 | $208,805 | $208,805 |
| 2013 | $125,742 | $70,000 | $0 | $195,742 | $195,742 |
| 2012 | $127,676 | $77,400 | $0 | $205,076 | $205,076 |
| 2011 | $129,610 | $86,000 | $0 | $215,610 | $215,610 |
| 2010 | $144,192 | $86,000 | $0 | $230,192 | $230,192 |
| 2009 | $150,538 | $100,000 | $0 | $250,538 | $250,538 |
| 2008 | $152,547 | $100,000 | $0 | $252,547 | $252,547 |
| 2007 | $134,915 | $119,642 | $0 | $254,557 | $254,557 |
Deed and Sales History
| 1 | 03/26/2021 | WD | Warranty Deed | CRAWFORD, JASON L | HEALY, KEVIN J | | | $451,000.00 | 47714 | 4516121 |
| 2 | 09/03/2015 | WD | Warranty Deed | VILLEGAS, RUDOLPH NEIL | CRAWFORD, JASON L | | | $276,000.00 | 21275 | 4385628 |
| 3 | 07/13/2012 | QCD | Quit Claim Deed | PERRY, EVELYN D | VILLEGAS, RUDOLPH NEIL | | | $0.00 | 8637 | 4321747 |
| 4 | 04/14/2010 | OTHER | Other - Misc. Documents | PERRY, FREDERICK S | PERRY, EVELYN D | | | $0.00 | 81614 | 0 |
| 5 | 01/01/1900 | QCD | Quit Claim Deed | Unknown | PERRY, FREDERICK S | | | $0.00 | 0 | 0 |
Payout Agreement
| No payout information available.. |