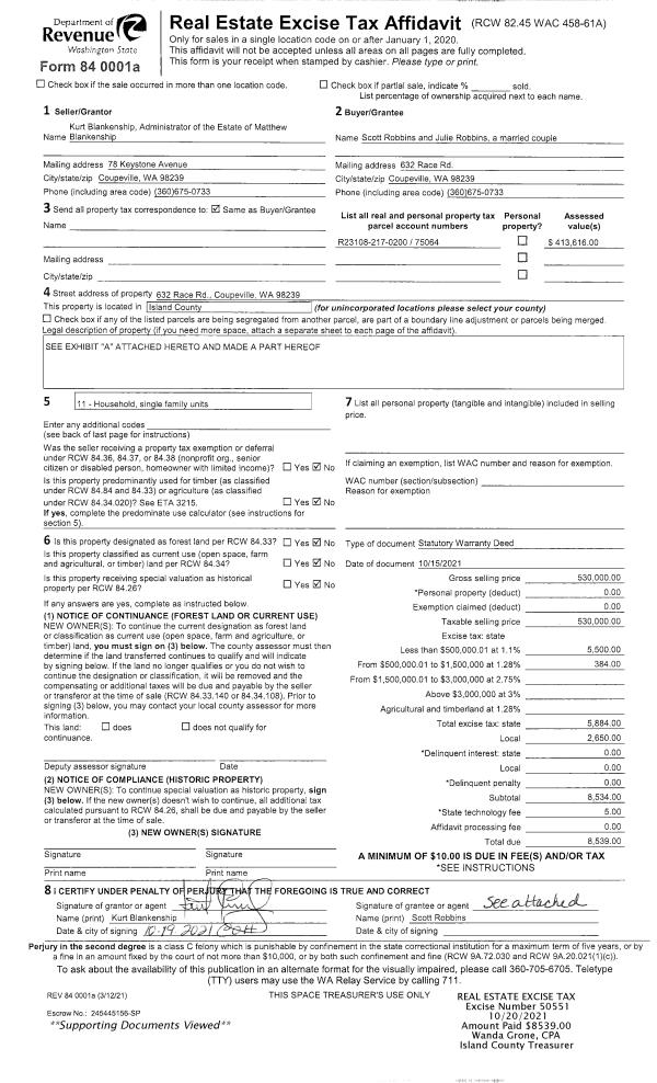
Property
Account |
| Property ID: | 75064 | Abbreviated Legal Description: | N250' OF S1000' OF GL1 LY WLY OF RACE RD SUB TO EZ |
| Geographic ID: | R23108-217-0200 | Agent Code: | |
| Type: | Real | | |
| Tax Area: | 312 - APPRAISER-Cpvl Schl Dist, outside Cpvl, improved, greater than 1 acre | Land Use Code | 11 |
| Open Space: | N | DFL | N |
| Historic Property: | N | Remodel Property: | N |
| Multi-Family Redevelopment: | N | | |
| Township: | 31 | Section: | 08 |
| Range: | R2 |
Location |
| Address: | 632 RACE RD COUPEVILLE, WA 98239 | Mapsco: | |
| Neighborhood: | Cycle 2 | Map ID: | 466 |
| Neighborhood CD: | 2 |
Owner |
| Name: | ROBBINS, SCOTT | Owner ID: | 301645 |
| Mailing Address: | JULIE ROBBINS 632 RACE RD COUPEVILLE, WA 98239 | % Ownership: | 100.0000000000% |
| | | Exemptions: | |
Taxes and Assessment Details
Values
| (+) Improvement Homesite Value: | + | $0 | |
| (+) Improvement Non-Homesite Value: | + | $330,658 | |
| (+) Land Homesite Value: | + | $0 | |
| (+) Land Non-Homesite Value: | + | $268,832 | |
| (+) Curr Use (HS): | + | $0 | $0 |
| (+) Curr Use (NHS): | + | $0 | $0 |
| | | -------------------------- | |
| (=) Market Value: | = | $599,490 | |
| (–) Productivity Loss: | – | $0 | |
| | | -------------------------- | |
| (=) Subtotal: | = | $599,490 | |
| (+) Senior Appraised Value: | + | $0 | |
| (+) Non-Senior Appraised Value: | + | $599,490 | |
| | | -------------------------- | |
| (=) Total Appraised Value: | = | $599,490 | |
| (–) Senior Exemption Loss: | – | $0 | |
| (–) Exemption Loss: | – | $0 | |
| | | -------------------------- | |
| (=) Taxable Value: | = | $599,490 | |
Taxing Jurisdiction
| Owner: | ROBBINS, SCOTT | | |
| % Ownership: | 100.0000000000% | | |
| Total Value: | $599,490 | | |
| Tax Area: | 312 - APPRAISER-Cpvl Schl Dist, outside Cpvl, improved, greater than 1 acre |
| CF | Conservation Futures | 0.0313996660 | $599,490 | $599,490 | $18.82 | | |
| CEM2 | Cemetery #2 | 0.0092609791 | $599,490 | $599,490 | $5.55 | | |
| FIRE5 | Fire & Rescue Dist #5 C Whidbey GEN | 1.1892169230 | $599,490 | $599,490 | $712.92 | | |
| FIRE5BOND | Fire & Rescue Dist #5 C Whidbey BOND | 0.1394359503 | $599,490 | $599,490 | $83.59 | | |
| HOBOND | Hospital BOND | 0.1893405597 | $599,490 | $599,490 | $113.51 | | |
| HOGEN | Hospital GEN | 0.3848777722 | $599,490 | $599,490 | $230.73 | | |
| CE | County Current Expense | 0.3674210519 | $599,490 | $599,490 | $220.27 | | |
| CR | County Roads | 0.4614296361 | $599,490 | $599,490 | $276.62 | | |
| ISLANDEMS | Hospital GEN (EMS) | 0.4952018576 | $599,490 | $599,490 | $296.87 | | |
| LIB | Library Sno-Isle GEN | 0.3039084203 | $599,490 | $599,490 | $182.19 | | |
| LIBCAP | Library Sno-Isle BOND (Cap Fac Imp Area) | 0.0528562629 | $599,490 | $599,490 | $31.69 | | |
| POCOUP | Port of Coupeville GEN | 0.1065226063 | $599,490 | $599,490 | $63.86 | | |
| POCOUPIDD | Port of Coupeville IDD | 0.3353038577 | $599,490 | $599,490 | $201.01 | | |
| COUPSDTECH | School 204 CP (TECH) | 0.1215123397 | $599,490 | $599,490 | $72.85 | | |
| SCH204MO | School 204 Enrichment | 0.6416662518 | $599,490 | $599,490 | $384.67 | | |
| ST | State School | 1.4761226122 | $599,490 | $599,490 | $884.92 | | |
| ST2 | State School Part 2 | 0.7953803475 | $599,490 | $599,490 | $476.82 | | |
| | Total Tax Rate: | 7.1008570943 | | | | | |
| | | | | Taxes w/Current Exemptions: | $4,256.89 | | |
| | | | | Taxes w/o Exemptions: | $4,256.89 | | |
Improvement / Building
| Improvement #1: | RESIDENTIAL | State Code: | Y | 1280.0 sqft | Value: | $330,658 |
| Bathrooms: | 2.5 | Bedrooms: | 3 | | Ceiling: | DRYWALL PAINTED | Exterior Wall/Cover: | PLY/HARDBOARD T-111 | | Floor Covering: | CARPET/VINYL 60-40 | Floor Structure: | WOOD W/SUBFLOOR | | Foundation: | CONCRETE | Heating: | FHA GAS | | Interior Finish: | DRYWALL PAINT | Plumbing Fixture Cnt: | 11 | | Roof Slope: | 6" IN 12" | Roof Structure/Cover: | BEAM ASPHALT |
|
| | Type | Description | Class CD | Sub Class CD | Year Built | Area |
| | BAS | BASE/MAIN FLOOR | 3 | 0 | 1992 | 1280.0 |
| | UB8 | BASEMENT UNFINISHED 8" | 3 | 0 | 1992 | 1036.0 |
| | BIG | BUILT IN GARAGE | 3 | 0 | 1992 | 550.0 |
| | OWP | OPEN WOOD PORCH W/STEPS | 3 | 0 | 1992 | 280.0 |
| | OWC | OPEN WOOD PORCH W/STEPS/ROOF/C | 3 | 0 | 1992 | 168.0 |
Sketch
Property Image
Land
| 1 | HS | HOMESITE | 1.0000 | 43560.00 | 0.00 | 0.00 | 1.00 | $220,000 | $0 |
| 2 | 91 | UNDEVELOPED LAND-METES AND BOUNDS | 0.2800 | 12196.80 | 0.00 | 0.00 | 1.00 | $48,832 | $0 |
Roll Value History
| 2026 | N/A | N/A | N/A | N/A | N/A |
| 2025 | $330,658 | $268,832 | $0 | $599,490 | $599,490 |
| 2024 | $322,418 | $270,000 | $0 | $592,418 | $592,418 |
| 2023 | $326,538 | $260,000 | $0 | $586,538 | $586,538 |
| 2022 | $299,411 | $250,000 | $0 | $549,411 | $549,411 |
| 2021 | $263,616 | $150,000 | $0 | $413,616 | $413,616 |
| 2020 | $256,212 | $150,000 | $0 | $406,212 | $406,212 |
| 2019 | $181,431 | $180,000 | $0 | $361,431 | $361,431 |
| 2018 | $182,088 | $160,000 | $0 | $342,088 | $342,088 |
| 2017 | $183,234 | $130,000 | $0 | $313,234 | $313,234 |
| 2016 | $185,523 | $120,000 | $0 | $305,523 | $305,523 |
| 2015 | $187,816 | $95,000 | $0 | $282,816 | $282,816 |
| 2014 | $190,105 | $95,000 | $0 | $285,105 | $285,105 |
| 2013 | $192,394 | $95,000 | $0 | $287,394 | $287,394 |
| 2012 | $195,475 | $85,000 | $0 | $280,475 | $280,475 |
| 2011 | $197,774 | $95,000 | $0 | $292,774 | $292,774 |
| 2010 | $202,893 | $95,000 | $0 | $297,893 | $297,893 |
| 2009 | $211,435 | $100,000 | $0 | $311,435 | $311,435 |
| 2008 | $213,787 | $100,000 | $0 | $313,787 | $313,787 |
| 2007 | $216,223 | $100,000 | $0 | $316,223 | $316,223 |
Deed and Sales History
| 1 | 10/15/2021 | WD | Warranty Deed | BLANKENSHIP, MATTHEW MORGAN | ROBBINS, SCOTT | | | $530,000.00 | 50551 | 4531804 |
| 2 | 11/15/2017 | WD | Warranty Deed | JONES TRUSTEE, CLARENCE P | BLANKENSHIP, MATTHEW MORGAN | | | $330,000.00 | 32075 | 4434891 |
| 3 | 05/19/2004 | 5 | DNU - Marriage License/Name Change | JONES, PAUL & | JONES TRUSTEE, CLARENCE P | | | $0.00 | 42100 | 4101120 |
| 4 | 04/01/1992 | WD | Warranty Deed | HICKS, CURTIS H | JONES, PAUL & | | | $22,000.00 | 21476 | 92007118 |
| 5 | 03/01/1979 | OTHER | Other - Misc. Documents | KN, | HICKS, CURTIS H | | | $9,000.00 | 91274 | 349470 |
| 6 | 01/01/1979 | OTHER | Other - Misc. Documents | Unknown | KN, | | | $0.00 | 901250 | 3457450 |
Payout Agreement
| No payout information available.. |