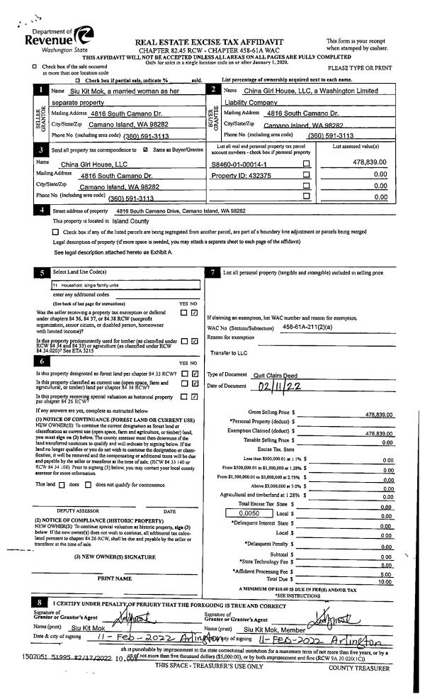
Property
Account |
| Property ID: | 750789 | Abbreviated Legal Description: | CAVALERO ESTATES - PRD LOT 34 |
| Geographic ID: | S6347-00-00034-0 | Agent Code: | |
| Type: | Real | | |
| Tax Area: | 510 - APPRAISER-Stan/Cam Schl Dist, improved & 1 acre or less | Land Use Code | 11 |
| Open Space: | N | DFL | N |
| Historic Property: | N | Remodel Property: | N |
| Multi-Family Redevelopment: | N | | |
| Township: | | Section: | |
| Range: | |
Location |
| Address: | 1141 CAVALERO RD CAMANO ISLAND, WA 98282 | Mapsco: | |
| Neighborhood: | Cycle 5 | Map ID: | 927 |
| Neighborhood CD: | 5 |
Owner |
| Name: | WATSON, JOHN C | Owner ID: | 146294 |
| Mailing Address: | DONNA L WATSON 1141 CAVALERO RD CAMANO ISLAND, WA 98282-8450 | % Ownership: | 100.0000000000% |
| | | Exemptions: | |
Taxes and Assessment Details
Values
| (+) Improvement Homesite Value: | + | $0 | |
| (+) Improvement Non-Homesite Value: | + | $531,459 | |
| (+) Land Homesite Value: | + | $0 | |
| (+) Land Non-Homesite Value: | + | $950,000 | |
| (+) Curr Use (HS): | + | $0 | $0 |
| (+) Curr Use (NHS): | + | $0 | $0 |
| | | -------------------------- | |
| (=) Market Value: | = | $1,481,459 | |
| (–) Productivity Loss: | – | $0 | |
| | | -------------------------- | |
| (=) Subtotal: | = | $1,481,459 | |
| (+) Senior Appraised Value: | + | $0 | |
| (+) Non-Senior Appraised Value: | + | $1,481,459 | |
| | | -------------------------- | |
| (=) Total Appraised Value: | = | $1,481,459 | |
| (–) Senior Exemption Loss: | – | $0 | |
| (–) Exemption Loss: | – | $0 | |
| | | -------------------------- | |
| (=) Taxable Value: | = | $1,481,459 | |
Taxing Jurisdiction
| Owner: | WATSON, JOHN C | | |
| % Ownership: | 100.0000000000% | | |
| Total Value: | $1,481,459 | | |
| Tax Area: | 510 - APPRAISER-Stan/Cam Schl Dist, improved & 1 acre or less |
| CF | Conservation Futures | 0.0313996660 | $1,481,459 | $1,481,459 | $46.52 | | |
| EMS1 | Fire & Rescue Dist #1 Camano GEN (EMS) | 0.4998471806 | $1,481,459 | $1,481,459 | $740.50 | | |
| FIRE1 | Fire & Rescue Dist #1 Camano GEN | 1.2496603404 | $1,481,459 | $1,481,459 | $1,851.32 | | |
| FIRE1BOND | Fire & Rescue Dist #1 Camano BOND | 0.1630371212 | $1,481,459 | $1,481,459 | $241.53 | | |
| CE | County Current Expense | 0.3674210519 | $1,481,459 | $1,481,459 | $544.32 | | |
| CR | County Roads | 0.4614296361 | $1,481,459 | $1,481,459 | $683.59 | | |
| LIB | Library Sno-Isle GEN | 0.3039084203 | $1,481,459 | $1,481,459 | $450.23 | | |
| SCH205_401 | School 205-401 Enrichment | 1.3697998934 | $1,481,459 | $1,481,459 | $2,029.30 | | |
| SCH205BOND | School 205-401 BOND | 0.9354199323 | $1,481,459 | $1,481,459 | $1,385.79 | | |
| ST | State School | 1.4761226122 | $1,481,459 | $1,481,459 | $2,186.82 | | |
| ST2 | State School Part 2 | 0.7953803475 | $1,481,459 | $1,481,459 | $1,178.32 | | |
| | Total Tax Rate: | 7.6534262019 | | | | | |
| | | | | Taxes w/Current Exemptions: | $11,338.24 | | |
| | | | | Taxes w/o Exemptions: | $11,338.24 | | |
Improvement / Building
| Improvement #1: | RESIDENTIAL | State Code: | Y | 2693.0 sqft | Value: | $531,459 |
| Bathrooms: | 3 | Bedrooms: | 3 | | Ceiling: | DRYWALL PAINTED | Cooling: | HEAT PUMP/CONV/V | | Exterior Wall/Cover: | WOOD SIDING | Floor Covering: | CERAMIC TILE/CPT 40-60 | | Floor Structure: | WOOD W/SUBFLOOR | Foundation: | CONCRETE | | Interior Finish: | DRYWALL PAINT | Plumbing Fixture Cnt: | 12 | | Roof Slope: | 6" IN 12" | Roof Structure/Cover: | CJ ASPHALT |
|
| | Type | Description | Class CD | Sub Class CD | Year Built | Area |
| | BAS | BASE/MAIN FLOOR | 4 | 0 | 2001 | 2046.2 |
| | AGR | ATTACHED GARAGE | 4 | 0 | 2001 | 676.0 |
| | UPS | UPPER STORY | 4 | 0 | 2001 | 646.8 |
| | OWC | OPEN WOOD PORCH W/STEPS/ROOF/C | 4 | 0 | 2001 | 279.9 |
| | OWP | OPEN WOOD PORCH W/STEPS | 4 | 0 | 2001 | 500.0 |
| | OWP | OPEN WOOD PORCH W/STEPS | 4 | 0 | 2001 | 79.3 |
Sketch
Property Image
Land
| 1 | HB | HIGH BLUFF | 0.0000 | 0.00 | 101.00 | 0.00 | 1.00 | $950,000 | $0 |
Roll Value History
| 2026 | N/A | N/A | N/A | N/A | N/A |
| 2025 | $531,459 | $950,000 | $0 | $1,481,459 | $1,481,459 |
| 2024 | $537,693 | $950,000 | $0 | $1,487,693 | $1,487,693 |
| 2023 | $543,927 | $950,000 | $0 | $1,493,927 | $1,493,927 |
| 2022 | $498,172 | $800,000 | $0 | $1,298,172 | $1,298,172 |
| 2021 | $408,664 | $500,000 | $0 | $908,664 | $908,664 |
| 2020 | $398,902 | $500,000 | $0 | $898,902 | $898,902 |
| 2019 | $303,682 | $600,000 | $0 | $903,682 | $903,682 |
| 2018 | $304,573 | $300,000 | $0 | $604,573 | $604,573 |
| 2017 | $306,296 | $300,000 | $0 | $606,296 | $606,296 |
| 2016 | $309,858 | $300,000 | $0 | $609,858 | $609,858 |
| 2015 | $285,230 | $300,000 | $0 | $585,230 | $585,230 |
| 2014 | $288,506 | $250,000 | $0 | $538,506 | $538,506 |
| 2013 | $291,779 | $271,790 | $0 | $563,569 | $563,569 |
| 2012 | $295,053 | $271,790 | $0 | $566,843 | $566,843 |
| 2011 | $298,328 | $271,790 | $0 | $570,118 | $570,118 |
| 2010 | $310,420 | $271,790 | $0 | $582,210 | $582,210 |
| 2009 | $323,729 | $370,623 | $0 | $694,352 | $694,352 |
| 2008 | $324,616 | $292,664 | $0 | $617,280 | $617,280 |
| 2007 | $328,745 | $292,664 | $0 | $621,409 | $621,409 |
Deed and Sales History
| 1 | 08/04/2000 | WD | Warranty Deed | Unknown | WATSON, JOHN C | | | $170,000.00 | 3045 | 20014310 |
| 2 | 04/01/1997 | WD | Warranty Deed | PORT, SUSAN I | RASUL, KHALIL & | | | $165,000.00 | 71375 | 97006237 |
| 3 | 01/01/1900 | OTHER | Other - Misc. Documents | Unknown | PORT, SUSAN I | | | $0.00 | 51950 | 95009011 |
Payout Agreement
| No payout information available.. |