Property
Account |
| Property ID: | 750841 | Abbreviated Legal Description: | Cavalero Ests - PRD,s Lot 40,s Blk 0;s ALTERATION OF A PT OF PRD 004-93 AF#4092602s |
| Geographic ID: | S6347-00-00040-0 | Agent Code: | |
| Type: | Real | | |
| Tax Area: | 510 - APPRAISER-Stan/Cam Schl Dist, improved & 1 acre or less | Land Use Code | 11 |
| Open Space: | N | DFL | N |
| Historic Property: | N | Remodel Property: | N |
| Multi-Family Redevelopment: | N | | |
| Township: | | Section: | |
| Range: | |
Location |
| Address: | 1191 ORCAS DR CAMANO ISLAND, WA 98282 | Mapsco: | |
| Neighborhood: | Cycle 5 | Map ID: | 927 |
| Neighborhood CD: | 5 |
Owner |
| Name: | SHAY, STEPHEN W | Owner ID: | 300403 |
| Mailing Address: | ROSANNE D SHAY 12660 ADAIR CREEK WAY NE REDMOND, WA 98053 | % Ownership: | 100.0000000000% |
| | | Exemptions: | |
Taxes and Assessment Details
Values
| (+) Improvement Homesite Value: | + | $0 | |
| (+) Improvement Non-Homesite Value: | + | $1,099,604 | |
| (+) Land Homesite Value: | + | $0 | |
| (+) Land Non-Homesite Value: | + | $950,000 | |
| (+) Curr Use (HS): | + | $0 | $0 |
| (+) Curr Use (NHS): | + | $0 | $0 |
| | | -------------------------- | |
| (=) Market Value: | = | $2,049,604 | |
| (–) Productivity Loss: | – | $0 | |
| | | -------------------------- | |
| (=) Subtotal: | = | $2,049,604 | |
| (+) Senior Appraised Value: | + | $0 | |
| (+) Non-Senior Appraised Value: | + | $2,049,604 | |
| | | -------------------------- | |
| (=) Total Appraised Value: | = | $2,049,604 | |
| (–) Senior Exemption Loss: | – | $0 | |
| (–) Exemption Loss: | – | $0 | |
| | | -------------------------- | |
| (=) Taxable Value: | = | $2,049,604 | |
Taxing Jurisdiction
| Owner: | SHAY, STEPHEN W | | |
| % Ownership: | 100.0000000000% | | |
| Total Value: | $2,049,604 | | |
| Tax Area: | 510 - APPRAISER-Stan/Cam Schl Dist, improved & 1 acre or less |
| CF | Conservation Futures | 0.0313996660 | $2,049,604 | $2,049,604 | $64.36 | | |
| EMS1 | Fire & Rescue Dist #1 Camano GEN (EMS) | 0.4998471806 | $2,049,604 | $2,049,604 | $1,024.49 | | |
| FIRE1 | Fire & Rescue Dist #1 Camano GEN | 1.2496603404 | $2,049,604 | $2,049,604 | $2,561.31 | | |
| FIRE1BOND | Fire & Rescue Dist #1 Camano BOND | 0.1630371212 | $2,049,604 | $2,049,604 | $334.16 | | |
| CE | County Current Expense | 0.3674210519 | $2,049,604 | $2,049,604 | $753.07 | | |
| CR | County Roads | 0.4614296361 | $2,049,604 | $2,049,604 | $945.75 | | |
| LIB | Library Sno-Isle GEN | 0.3039084203 | $2,049,604 | $2,049,604 | $622.89 | | |
| SCH205_401 | School 205-401 Enrichment | 1.3697998934 | $2,049,604 | $2,049,604 | $2,807.55 | | |
| SCH205BOND | School 205-401 BOND | 0.9354199323 | $2,049,604 | $2,049,604 | $1,917.24 | | |
| ST | State School | 1.4761226122 | $2,049,604 | $2,049,604 | $3,025.47 | | |
| ST2 | State School Part 2 | 0.7953803475 | $2,049,604 | $2,049,604 | $1,630.21 | | |
| | Total Tax Rate: | 7.6534262019 | | | | | |
| | | | | Taxes w/Current Exemptions: | $15,686.50 | | |
| | | | | Taxes w/o Exemptions: | $15,686.50 | | |
Improvement / Building
| Improvement #1: | RESIDENTIAL | State Code: | Y | 3725.0 sqft | Value: | $1,099,604 |
| Bathrooms: | 2.5 | Bedrooms: | 3 | | Ceiling: | DRYWALL PAINTED | Cooling: | HEAT PUMP/CONV/V | | Exterior Wall/Cover: | SHINGLE | Floor Covering: | HARDWOOD/CARP 80-20 | | Floor Structure: | WOOD W/SUBFLOOR | Foundation: | CONCRETE | | Interior Finish: | DRYWALL PAINT | Plumbing Fixture Cnt: | 19 | | Roof Slope: | 5" IN 12" | Roof Structure/Cover: | CJ ASPHALT |
|
| | Type | Description | Class CD | Sub Class CD | Year Built | Area |
| | BAS | BASE/MAIN FLOOR | 6 | 0 | 2005 | 1655.0 |
| | UPH | HALF STORY | 6 | 0 | 2005 | 200.0 |
| | OP3 | OPEN PORCH W/ROOF | 6 | 0 | 2005 | 75.0 |
| | OP3 | OPEN PORCH W/ROOF | 6 | 0 | 2005 | 480.0 |
| | OP4 | OPEN PORCH W/CEILING-ROOF | 6 | 0 | 2005 | 207.6 |
| | AGR | ATTACHED GARAGE | 6 | 0 | 2005 | 875.0 |
| | UPS | UPPER STORY | 6 | 0 | 2005 | 940.0 |
| | BAW | BALCONY WOOD RAIL | 6 | 0 | 2005 | 35.0 |
| | OWP | OPEN WOOD PORCH W/STEPS | 6 | 0 | 2005 | 320.0 |
| | DWN | DOWNSTAIRS LIVING AREA | 6 | 0 | 2005 | 930.0 |
Sketch
Property Image
Land
| 1 | HB | HIGH BLUFF | 0.6000 | 26136.00 | 100.00 | 0.00 | 1.00 | $950,000 | $0 |
Roll Value History
| 2026 | N/A | N/A | N/A | N/A | N/A |
| 2025 | $1,099,604 | $950,000 | $0 | $2,049,604 | $2,049,604 |
| 2024 | $1,112,208 | $950,000 | $0 | $2,062,208 | $2,062,208 |
| 2023 | $1,124,812 | $950,000 | $0 | $2,074,812 | $2,074,812 |
| 2022 | $1,027,090 | $800,000 | $0 | $1,827,090 | $1,827,090 |
| 2021 | $763,534 | $500,000 | $0 | $1,263,534 | $1,263,534 |
| 2020 | $741,810 | $500,000 | $0 | $1,241,810 | $1,241,810 |
| 2019 | $654,053 | $600,000 | $0 | $1,254,053 | $1,254,053 |
| 2018 | $661,284 | $300,000 | $0 | $961,284 | $961,284 |
| 2017 | $664,939 | $300,000 | $0 | $964,939 | $964,939 |
| 2016 | $672,326 | $300,000 | $0 | $972,326 | $972,326 |
| 2015 | $669,996 | $300,000 | $0 | $969,996 | $969,996 |
| 2014 | $677,527 | $250,000 | $0 | $927,527 | $927,527 |
| 2013 | $685,053 | $272,056 | $0 | $957,109 | $957,109 |
| 2012 | $692,581 | $272,056 | $0 | $964,637 | $964,637 |
| 2011 | $700,108 | $272,056 | $0 | $972,164 | $972,164 |
| 2010 | $722,698 | $272,056 | $0 | $994,754 | $994,754 |
| 2009 | $724,889 | $370,985 | $0 | $1,095,874 | $1,095,874 |
| 2008 | $752,789 | $292,951 | $0 | $1,045,740 | $1,045,740 |
| 2007 | $760,917 | $292,951 | $0 | $1,053,868 | $1,053,868 |
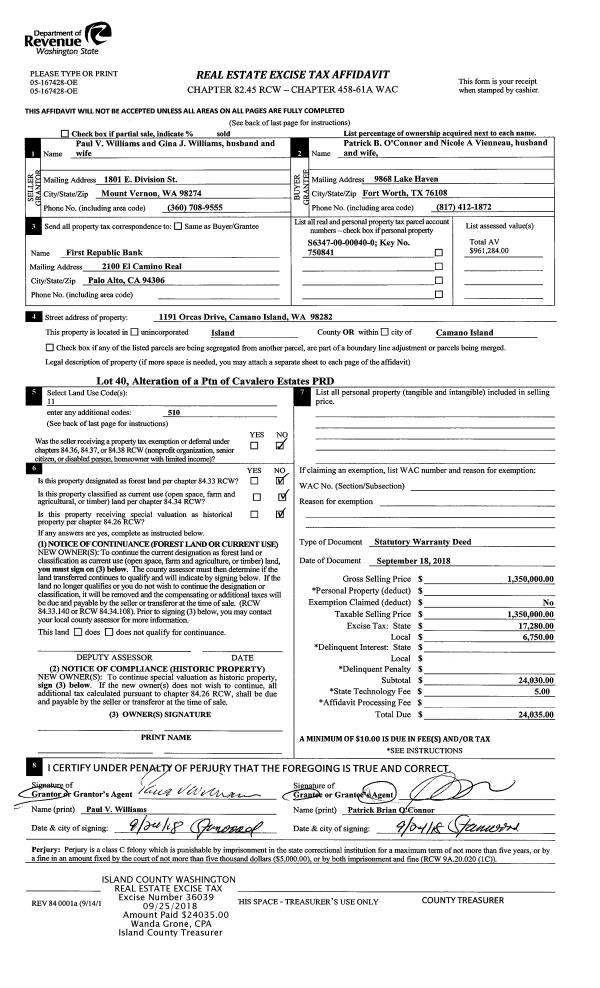
Deed and Sales History
| 1 | 07/22/2021 | WD | Warranty Deed | O'CONNOR, PATRICK B | SHAY, STEPHEN W | | | $2,475,000.00 | 49388 | 4525595 |
| 2 | 09/18/2018 | WD | Warranty Deed | WILLIAMS, PAUL V | O'CONNOR, PATRICK B | | | $1,350,000.00 | 36039 | 4452333 |
| 3 | 03/02/2004 | WD | Warranty Deed | HOMES POULSBO LLC, TERHUNE CUS | WILLIAMS, PAUL V | | | $225,880.00 | 40830 | 4093120 |
| 4 | 08/06/2002 | QCD | Quit Claim Deed | TERHUNE HOMES POULSBO, LLC, | HOMES POULSBO LLC, TERHUNE CUS | | | $195,000.00 | 24852 | 4039535 |
| 5 | 10/15/2001 | WD | Warranty Deed | STOTTS, RONALD F | TERHUNE HOMES POULSBO, LLC, | | | $214,900.00 | 14001 | 4000149 |
| 6 | 08/03/2000 | WD | Warranty Deed | PORT, SUSAN I | STOTTS, RONALD F | | | $185,000.00 | 3392 | 20015733 |
| 7 | 01/01/1900 | OTHER | Other - Misc. Documents | Unknown | PORT, SUSAN I | | | $0.00 | 51950 | 95009011 |
Payout Agreement
| No payout information available.. |