Property
Account |
| Property ID: | 751145 | Abbreviated Legal Description: | CHRISMAR VISTA LOT 1 |
| Geographic ID: | S6377-00-00001-0 | Agent Code: | |
| Type: | Real | | |
| Tax Area: | 760 - APPRAISER-S Whid Schl Dist, Special District, improved & less than 1 acre | Land Use Code | 11 |
| Open Space: | N | DFL | N |
| Historic Property: | N | Remodel Property: | N |
| Multi-Family Redevelopment: | N | | |
| Township: | | Section: | |
| Range: | |
Location |
| Address: | 5579 CHRIS MAR LN FREELAND, WA 98249 | Mapsco: | |
| Neighborhood: | Cycle 3 | Map ID: | 309 |
| Neighborhood CD: | 3 |
Owner |
| Name: | PAYNE TTEE, CHERYL L | Owner ID: | 303415 |
| Mailing Address: | JOHN S DEMOSKI TTEE 5579 CHRIS MAR LN FREELAND, WA 98249 | % Ownership: | 100.0000000000% |
| | | Exemptions: | |
Taxes and Assessment Details
Values
| (+) Improvement Homesite Value: | + | $0 | |
| (+) Improvement Non-Homesite Value: | + | $706,543 | |
| (+) Land Homesite Value: | + | $0 | |
| (+) Land Non-Homesite Value: | + | $240,000 | |
| (+) Curr Use (HS): | + | $0 | $0 |
| (+) Curr Use (NHS): | + | $0 | $0 |
| | | -------------------------- | |
| (=) Market Value: | = | $946,543 | |
| (–) Productivity Loss: | – | $0 | |
| | | -------------------------- | |
| (=) Subtotal: | = | $946,543 | |
| (+) Senior Appraised Value: | + | $0 | |
| (+) Non-Senior Appraised Value: | + | $946,543 | |
| | | -------------------------- | |
| (=) Total Appraised Value: | = | $946,543 | |
| (–) Senior Exemption Loss: | – | $0 | |
| (–) Exemption Loss: | – | $0 | |
| | | -------------------------- | |
| (=) Taxable Value: | = | $946,543 | |
Taxing Jurisdiction
| Owner: | PAYNE TTEE, CHERYL L | | |
| % Ownership: | 100.0000000000% | | |
| Total Value: | $946,543 | | |
| Tax Area: | 760 - APPRAISER-S Whid Schl Dist, Special District, improved & less than 1 acre |
| CF | Conservation Futures | 0.0313996660 | $946,543 | $946,543 | $29.72 | | |
| FIRE3 | Fire & Rescue Dist #3 S Whidbey GEN | 1.2130821753 | $946,543 | $946,543 | $1,148.23 | | |
| HOBOND | Hospital BOND | 0.1893405597 | $946,543 | $946,543 | $179.22 | | |
| HOGEN | Hospital GEN | 0.3848777722 | $946,543 | $946,543 | $364.30 | | |
| CE | County Current Expense | 0.3674210519 | $946,543 | $946,543 | $347.78 | | |
| CR | County Roads | 0.4614296361 | $946,543 | $946,543 | $436.76 | | |
| ISLANDEMS | Hospital GEN (EMS) | 0.4952018576 | $946,543 | $946,543 | $468.73 | | |
| LIB | Library Sno-Isle GEN | 0.3039084203 | $946,543 | $946,543 | $287.66 | | |
| PORTWHID | Port of S Whidbey GEN | 0.1086004714 | $946,543 | $946,543 | $102.80 | | |
| SCH206BOND | School 206 BOND | 0.5960237832 | $946,543 | $946,543 | $564.16 | | |
| SCH206CAP | School 206 CP | 0.3066144020 | $946,543 | $946,543 | $290.22 | | |
| SCH206MO | School 206 Enrichment | 0.4808755445 | $946,543 | $946,543 | $455.17 | | |
| ST | State School | 1.4761226122 | $946,543 | $946,543 | $1,397.21 | | |
| ST2 | State School Part 2 | 0.7953803475 | $946,543 | $946,543 | $752.86 | | |
| SWHIDPRBD | P & R S Whidbey BOND | 0.0144185398 | $946,543 | $946,543 | $13.65 | | |
| SWHIDPRBD3 | P & R S Whidbey BOND3 | 0.1483535547 | $946,543 | $946,543 | $140.42 | | |
| SWHIDPRMT | P & R S Whidbey GEN | 0.4600000000 | $946,543 | $946,543 | $435.41 | | |
| | Total Tax Rate: | 7.8330503944 | | | | | |
| | | | | Taxes w/Current Exemptions: | $7,414.30 | | |
| | | | | Taxes w/o Exemptions: | $7,414.30 | | |
Improvement / Building
| Improvement #1: | RESIDENTIAL | State Code: | Y | 3340.2 sqft | Value: | $706,543 |
| Bathrooms: | 3.5 | Bedrooms: | 3 | | Ceiling: | DRYWALL PAINTED | Exterior Wall/Cover: | SHINGLE | | Floor Covering: | CERAMIC TILE/HWD 40/60 | Floor Structure: | WOOD W/SUBFLOOR | | Foundation: | CONCRETE | Heating: | FHA GAS | | Interior Finish: | DRYWALL PAINT | Plumbing Fixture Cnt: | 13 | | Roof Slope: | 3" IN 12" | Roof Structure/Cover: | CJ ASPHALT |
|
| | Type | Description | Class CD | Sub Class CD | Year Built | Area |
| | BAS | BASE/MAIN FLOOR | 5 | 0 | 2005 | 1632.7 |
| | OP3 | OPEN PORCH W/ROOF | 5 | 0 | 2005 | 52.0 |
| | OP4 | OPEN PORCH W/CEILING-ROOF | 5 | 0 | 2005 | 48.0 |
| | BIG | BUILT IN GARAGE | 5 | 0 | 2005 | 745.0 |
| | UPS | UPPER STORY | 5 | 0 | 2005 | 808.2 |
| | BAW | BALCONY WOOD RAIL | 5 | 0 | 2005 | 67.5 |
| | OWP | OPEN WOOD PORCH W/STEPS | 5 | 0 | 2005 | 200.0 |
| | DWN | DOWNSTAIRS LIVING AREA | 5 | 0 | 2005 | 899.3 |
Sketch
Property Image
Land
| 1 | 15 | SQ (12001-21780) | 0.3869 | 16853.36 | 0.00 | 0.00 | 1.00 | $240,000 | $0 |
Roll Value History
| 2026 | N/A | N/A | N/A | N/A | N/A |
| 2025 | $706,543 | $240,000 | $0 | $946,543 | $946,543 |
| 2024 | $715,031 | $230,000 | $0 | $945,031 | $945,031 |
| 2023 | $723,517 | $230,000 | $0 | $953,517 | $953,517 |
| 2022 | $662,822 | $210,000 | $0 | $872,822 | $872,822 |
| 2021 | $583,052 | $140,000 | $0 | $723,052 | $723,052 |
| 2020 | $568,845 | $115,000 | $0 | $683,845 | $683,845 |
| 2019 | $559,581 | $170,000 | $0 | $729,581 | $729,581 |
| 2018 | $561,201 | $130,000 | $0 | $691,201 | $691,201 |
| 2017 | $564,427 | $120,000 | $0 | $684,427 | $684,427 |
| 2016 | $570,915 | $120,000 | $0 | $690,915 | $690,915 |
| 2015 | $577,402 | $123,250 | $0 | $700,652 | $700,652 |
| 2014 | $583,891 | $123,250 | $0 | $707,141 | $707,141 |
| 2013 | $504,345 | $123,250 | $0 | $627,595 | $627,595 |
| 2012 | $509,853 | $123,250 | $0 | $633,103 | $633,103 |
| 2011 | $515,361 | $145,000 | $0 | $660,361 | $660,361 |
| 2010 | $538,916 | $145,000 | $0 | $683,916 | $683,916 |
| 2009 | $555,689 | $199,720 | $0 | $755,409 | $755,409 |
| 2008 | $561,702 | $199,720 | $0 | $761,422 | $761,422 |
| 2007 | $584,744 | $159,720 | $0 | $744,464 | $744,464 |
Deed and Sales History
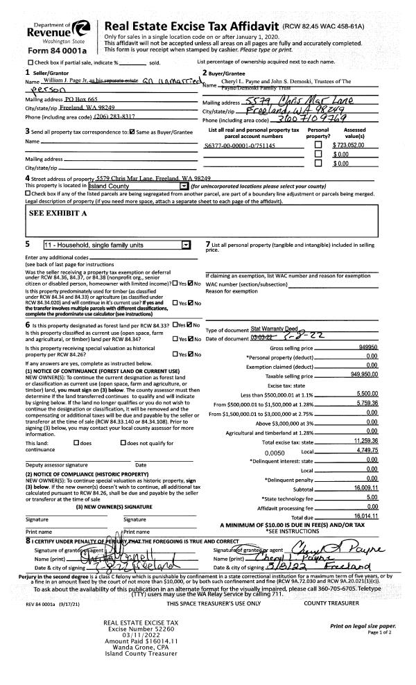
| 1 | 03/08/2022 | WD | Warranty Deed | PAGE, WILLIAM J | PAYNE TTEE, CHERYL L | | | $949,950.00 | 52260 | 4541330 |
| 2 | 01/03/2005 | WD | Warranty Deed | GABELEIN, VERLANE & MARILYN | PAGE, WILLIAM J | | | $85,000.00 | 50370 | 4124406 |
| 3 | 12/27/2004 | QCD | Quit Claim Deed | GABELEIN, VERNON E | GABELEIN, VERLANE & MARILYN | | | $0.00 | 46070 | 4122071 |
| 4 | 01/01/1900 | OTHER | Other - Misc. Documents | Unknown | GABELEIN, VERNON E | | | $0.00 | 24676 | 92023050 |
Payout Agreement
| No payout information available.. |