Property
Account |
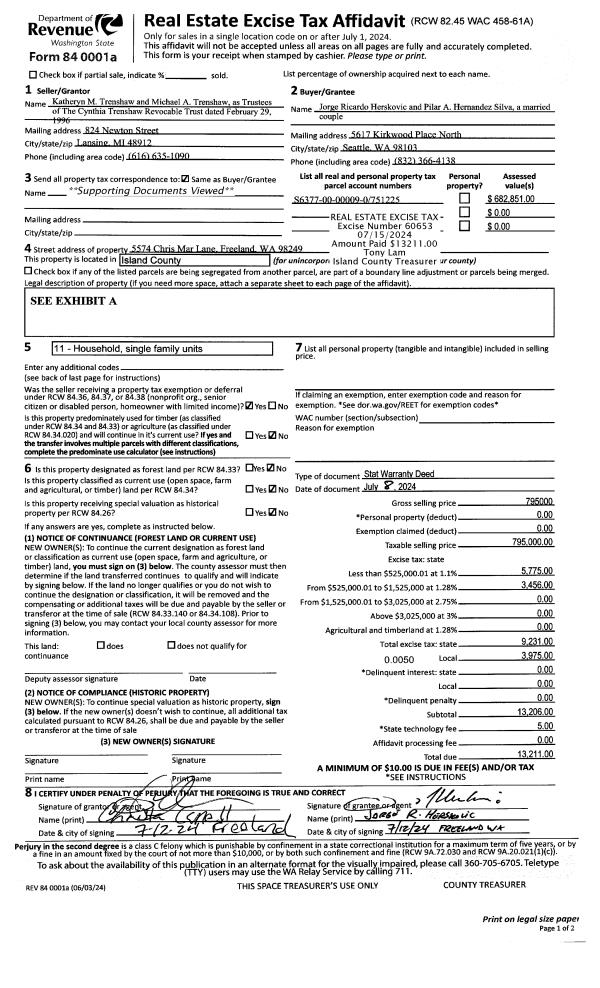
| Property ID: | 751225 | Abbreviated Legal Description: | CHRISMAR VISTA LOT 9 |
| Geographic ID: | S6377-00-00009-0 | Agent Code: | |
| Type: | Real | | |
| Tax Area: | 760 - APPRAISER-S Whid Schl Dist, Special District, improved & less than 1 acre | Land Use Code | 11 |
| Open Space: | N | DFL | N |
| Historic Property: | N | Remodel Property: | N |
| Multi-Family Redevelopment: | N | | |
| Township: | | Section: | |
| Range: | |
Location |
| Address: | 5574 CHRIS MAR LN FREELAND, WA 98249 | Mapsco: | |
| Neighborhood: | Cycle 3 | Map ID: | 309 |
| Neighborhood CD: | 3 |
Owner |
| Name: | HERSKOVIC, JORGE R. | Owner ID: | 313230 |
| Mailing Address: | PILAR A. HERNANDEZ SILVA 5617 KIRKWOOD PL N SEATTLE, WA 98103 | % Ownership: | 100.0000000000% |
| | | Exemptions: | |
Taxes and Assessment Details
Values
| (+) Improvement Homesite Value: | + | $0 | |
| (+) Improvement Non-Homesite Value: | + | $457,982 | |
| (+) Land Homesite Value: | + | $0 | |
| (+) Land Non-Homesite Value: | + | $240,000 | |
| (+) Curr Use (HS): | + | $0 | $0 |
| (+) Curr Use (NHS): | + | $0 | $0 |
| | | -------------------------- | |
| (=) Market Value: | = | $697,982 | |
| (–) Productivity Loss: | – | $0 | |
| | | -------------------------- | |
| (=) Subtotal: | = | $697,982 | |
| (+) Senior Appraised Value: | + | $0 | |
| (+) Non-Senior Appraised Value: | + | $697,982 | |
| | | -------------------------- | |
| (=) Total Appraised Value: | = | $697,982 | |
| (–) Senior Exemption Loss: | – | $0 | |
| (–) Exemption Loss: | – | $0 | |
| | | -------------------------- | |
| (=) Taxable Value: | = | $697,982 | |
Taxing Jurisdiction
| Owner: | HERSKOVIC, JORGE R. | | |
| % Ownership: | 100.0000000000% | | |
| Total Value: | $697,982 | | |
| Tax Area: | 760 - APPRAISER-S Whid Schl Dist, Special District, improved & less than 1 acre |
| CF | Conservation Futures | 0.0313996660 | $697,982 | $697,982 | $21.92 | | |
| FIRE3 | Fire & Rescue Dist #3 S Whidbey GEN | 1.2130821753 | $697,982 | $697,982 | $846.71 | | |
| HOBOND | Hospital BOND | 0.1893405597 | $697,982 | $697,982 | $132.16 | | |
| HOGEN | Hospital GEN | 0.3848777722 | $697,982 | $697,982 | $268.64 | | |
| CE | County Current Expense | 0.3674210519 | $697,982 | $697,982 | $256.45 | | |
| CR | County Roads | 0.4614296361 | $697,982 | $697,982 | $322.07 | | |
| ISLANDEMS | Hospital GEN (EMS) | 0.4952018576 | $697,982 | $697,982 | $345.64 | | |
| LIB | Library Sno-Isle GEN | 0.3039084203 | $697,982 | $697,982 | $212.12 | | |
| PORTWHID | Port of S Whidbey GEN | 0.1086004714 | $697,982 | $697,982 | $75.80 | | |
| SCH206BOND | School 206 BOND | 0.5960237832 | $697,982 | $697,982 | $416.01 | | |
| SCH206CAP | School 206 CP | 0.3066144020 | $697,982 | $697,982 | $214.01 | | |
| SCH206MO | School 206 Enrichment | 0.4808755445 | $697,982 | $697,982 | $335.64 | | |
| ST | State School | 1.4761226122 | $697,982 | $697,982 | $1,030.31 | | |
| ST2 | State School Part 2 | 0.7953803475 | $697,982 | $697,982 | $555.16 | | |
| SWHIDPRBD | P & R S Whidbey BOND | 0.0144185398 | $697,982 | $697,982 | $10.06 | | |
| SWHIDPRBD3 | P & R S Whidbey BOND3 | 0.1483535547 | $697,982 | $697,982 | $103.55 | | |
| SWHIDPRMT | P & R S Whidbey GEN | 0.4600000000 | $697,982 | $697,982 | $321.07 | | |
| | Total Tax Rate: | 7.8330503944 | | | | | |
| | | | | Taxes w/Current Exemptions: | $5,467.32 | | |
| | | | | Taxes w/o Exemptions: | $5,467.32 | | |
Improvement / Building
| Improvement #1: | RESIDENTIAL | State Code: | Y | 2145.0 sqft | Value: | $457,982 |
| Bathrooms: | 2 | Bedrooms: | 3 | | Ceiling: | DRYWALL PAINTED | Exterior Wall/Cover: | CEMENT FIBER | | Floor Covering: | HARDWOOD/CARP 60-40 | Floor Structure: | WOOD W/SUBFLOOR | | Foundation: | CONCRETE | Heating: | FHA GAS | | Interior Finish: | DRYWALL PAINT | Plumbing Fixture Cnt: | 11 | | Roof Slope: | 6" IN 12" | Roof Structure/Cover: | CJ ASPHALT |
|
| | Type | Description | Class CD | Sub Class CD | Year Built | Area |
| | BAS | BASE/MAIN FLOOR | 4 | 0 | 2006 | 2145.0 |
| | OP3 | OPEN PORCH W/ROOF | 4 | 0 | 2006 | 21.0 |
| | AGR | ATTACHED GARAGE | 4 | 0 | 2006 | 473.0 |
| | OWP | OPEN WOOD PORCH W/STEPS | 4 | 0 | 2006 | 464.0 |
Sketch
Property Image
Land
| 1 | 15 | SQ (12001-21780) | 0.0000 | 0.00 | 0.00 | 0.00 | 1.00 | $240,000 | $0 |
Roll Value History
| 2026 | N/A | N/A | N/A | N/A | N/A |
| 2025 | $457,982 | $240,000 | $0 | $697,982 | $697,982 |
| 2024 | $452,851 | $230,000 | $0 | $682,851 | $682,851 |
| 2023 | $457,982 | $230,000 | $0 | $687,982 | $144,086 |
| 2022 | $418,213 | $210,000 | $0 | $628,213 | $360,214 |
| 2021 | $366,886 | $140,000 | $0 | $506,886 | $360,214 |
| 2020 | $356,209 | $115,000 | $0 | $471,209 | $360,214 |
| 2019 | $235,742 | $170,000 | $0 | $405,742 | $360,214 |
| 2018 | $236,388 | $130,000 | $0 | $366,388 | $360,214 |
| 2017 | $237,631 | $120,000 | $0 | $357,631 | $287,631 |
| 2016 | $240,214 | $120,000 | $0 | $360,214 | $290,214 |
| 2015 | $242,795 | $123,250 | $0 | $366,045 | $366,045 |
| 2014 | $245,379 | $123,250 | $0 | $368,629 | $368,629 |
| 2013 | $256,593 | $123,250 | $0 | $379,843 | $379,843 |
| 2012 | $259,382 | $123,250 | $0 | $382,632 | $382,632 |
| 2011 | $262,171 | $145,000 | $0 | $407,171 | $407,171 |
| 2010 | $266,863 | $145,000 | $0 | $411,863 | $411,863 |
| 2009 | $277,957 | $158,565 | $0 | $436,522 | $436,522 |
| 2008 | $280,883 | $158,565 | $0 | $439,448 | $439,448 |
| 2007 | $285,750 | $92,047 | $0 | $377,797 | $377,797 |
Deed and Sales History
| 1 | 07/08/2024 | WD | Warranty Deed | TRENSHAW TRUSTEE, CYNTHIA | HERSKOVIC, JORGE R. | | | $795,000.00 | 60653 | 4574624 |
| 2 | 08/27/2009 | PRD | Personal Representatives Deed | MELNIK, IRMA E | TRENSHAW TRUSTEE, CYNTHIA | | | $280,000.00 | 92093 | 4259693 |
| 3 | 11/14/2008 | QCD | Quit Claim Deed | MELNIK TTEE, IRMA E | MELNIK, IRMA E | | | $0.00 | 82956 | 4240079 |
| 4 | 01/26/2007 | QCD | Quit Claim Deed | MELNIK, IRMA E | MELNIK TTEE, IRMA E | | | $0.00 | 70320 | 4193004 |
| 5 | 09/25/2006 | WD | Warranty Deed | CHISM, STEVE | MELNIK, IRMA E | | | $405,000.00 | 64177 | 4182926 |
| 6 | 09/19/2005 | WD | Warranty Deed | LEHMAN, ERIC | CHISM, STEVE | | | $80,000.00 | 54873 | 4149164 |
| 7 | 01/19/2005 | WD | Warranty Deed | GABELEIN, VERLANE & MARILYN | LEHMAN, ERIC | | | $55,000.00 | 50381 | 4124527 |
| 8 | 12/27/2004 | QCD | Quit Claim Deed | GABELEIN, VERNON E | GABELEIN, VERLANE & MARILYN | | | $0.00 | 46070 | 4122071 |
| 9 | 01/01/1900 | OTHER | Other - Misc. Documents | Unknown | GABELEIN, VERNON E | | | $0.00 | 24676 | 92023050 |
Payout Agreement
| No payout information available.. |