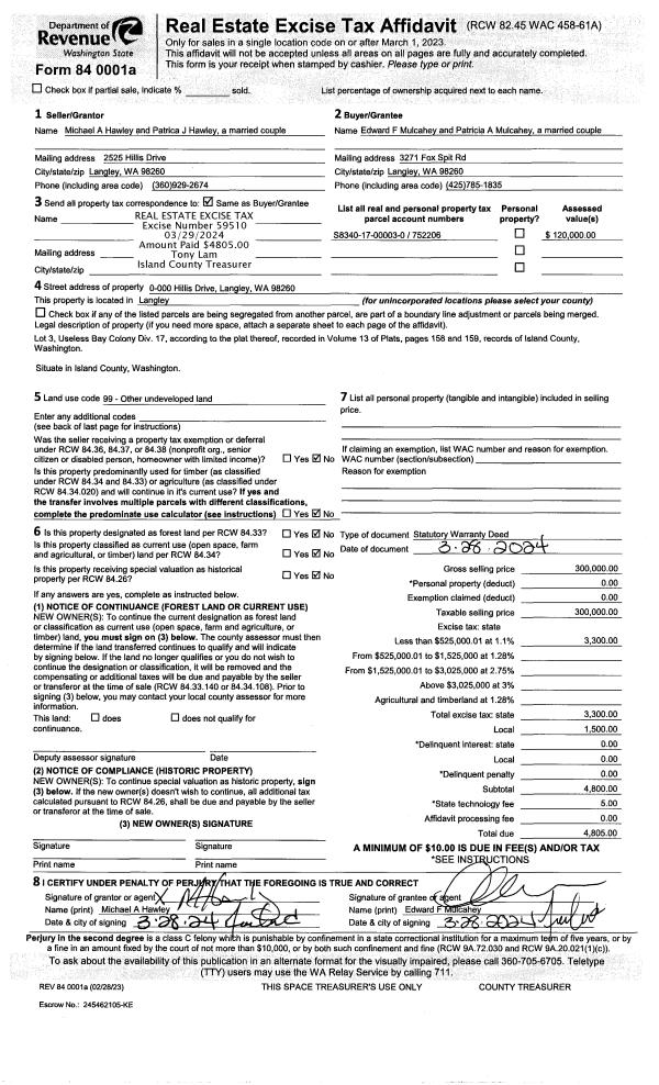
Property
Account |
| Property ID: | 752206 | Abbreviated Legal Description: | USELESS BAY COLONY # 17 LOT 3 |
| Geographic ID: | S8340-17-00003-0 | Agent Code: | |
| Type: | Real | | |
| Tax Area: | 750 - APPRAISER-S Whid Schl Dist, Special District, improved & less than 1 acre | Land Use Code | 11 |
| Open Space: | N | DFL | N |
| Historic Property: | N | Remodel Property: | N |
| Multi-Family Redevelopment: | N | | |
| Township: | | Section: | |
| Range: | |
Location |
| Address: | 2428 HILLS DR LANGLEY, WA 98260 | Mapsco: | |
| Neighborhood: | Cycle 3 | Map ID: | 785 |
| Neighborhood CD: | 3 |
Owner |
| Name: | MULCAHEY, EDWARD F | Owner ID: | 311808 |
| Mailing Address: | 2428 HILLIS DR LANGLEY, WA 98260 | % Ownership: | 100.0000000000% |
| | | Exemptions: | |
Taxes and Assessment Details
Values
| (+) Improvement Homesite Value: | + | $0 | |
| (+) Improvement Non-Homesite Value: | + | $413,070 | |
| (+) Land Homesite Value: | + | $0 | |
| (+) Land Non-Homesite Value: | + | $311,250 | |
| (+) Curr Use (HS): | + | $0 | $0 |
| (+) Curr Use (NHS): | + | $0 | $0 |
| | | -------------------------- | |
| (=) Market Value: | = | $724,320 | |
| (–) Productivity Loss: | – | $0 | |
| | | -------------------------- | |
| (=) Subtotal: | = | $724,320 | |
| (+) Senior Appraised Value: | + | $0 | |
| (+) Non-Senior Appraised Value: | + | $724,320 | |
| | | -------------------------- | |
| (=) Total Appraised Value: | = | $724,320 | |
| (–) Senior Exemption Loss: | – | $0 | |
| (–) Exemption Loss: | – | $0 | |
| | | -------------------------- | |
| (=) Taxable Value: | = | $724,320 | |
Taxing Jurisdiction
| Owner: | MULCAHEY, EDWARD F | | |
| % Ownership: | 100.0000000000% | | |
| Total Value: | $724,320 | | |
| Tax Area: | 750 - APPRAISER-S Whid Schl Dist, Special District, improved & less than 1 acre |
| CF | Conservation Futures | 0.0313996660 | $724,320 | $724,320 | $22.74 | | |
| FIRE3 | Fire & Rescue Dist #3 S Whidbey GEN | 1.2130821753 | $724,320 | $724,320 | $878.66 | | |
| HOBOND | Hospital BOND | 0.1893405597 | $724,320 | $724,320 | $137.14 | | |
| HOGEN | Hospital GEN | 0.3848777722 | $724,320 | $724,320 | $278.77 | | |
| CE | County Current Expense | 0.3674210519 | $724,320 | $724,320 | $266.13 | | |
| CR | County Roads | 0.4614296361 | $724,320 | $724,320 | $334.22 | | |
| ISLANDEMS | Hospital GEN (EMS) | 0.4952018576 | $724,320 | $724,320 | $358.68 | | |
| LIB | Library Sno-Isle GEN | 0.3039084203 | $724,320 | $724,320 | $220.13 | | |
| PORTWHID | Port of S Whidbey GEN | 0.1086004714 | $724,320 | $724,320 | $78.66 | | |
| SCH206BOND | School 206 BOND | 0.5960237832 | $724,320 | $724,320 | $431.71 | | |
| SCH206CAP | School 206 CP | 0.3066144020 | $724,320 | $724,320 | $222.09 | | |
| SCH206MO | School 206 Enrichment | 0.4808755445 | $724,320 | $724,320 | $348.31 | | |
| ST | State School | 1.4761226122 | $724,320 | $724,320 | $1,069.19 | | |
| ST2 | State School Part 2 | 0.7953803475 | $724,320 | $724,320 | $576.11 | | |
| SWHIDPRBD | P & R S Whidbey BOND | 0.0144185398 | $724,320 | $724,320 | $10.44 | | |
| SWHIDPRBD3 | P & R S Whidbey BOND3 | 0.1483535547 | $724,320 | $724,320 | $107.46 | | |
| SWHIDPRMT | P & R S Whidbey GEN | 0.4600000000 | $724,320 | $724,320 | $333.19 | | |
| | Total Tax Rate: | 7.8330503944 | | | | | |
| | | | | Taxes w/Current Exemptions: | $5,673.63 | | |
| | | | | Taxes w/o Exemptions: | $5,673.63 | | |
Improvement / Building
| Improvement #1: | RESIDENTIAL | State Code: | Y | 2741.0 sqft | Value: | $413,070 |
| Bathrooms: | 2.5 | Bedrooms: | 2 | | Ceiling: | (NONE) | Exterior Wall/Cover: | CEMENT FIBER | | Floor Covering: | HARDWOOD/CARP 20-80 | Floor Structure: | WOOD W/SUBFLOOR | | Foundation: | CONCRETE | Heating: | HEAT PUMP | | Interior Finish: | (NONE) | Plumbing Fixture Cnt: | 13 | | Roof Slope: | 8" IN 12" | Roof Structure/Cover: | CJ METAL |
|
| | Type | Description | Class CD | Sub Class CD | Year Built | Area |
| | BAS | BASE/MAIN FLOOR | 4 | 0 | 2025 | 1795.0 |
| | AGR | ATTACHED GARAGE | 4 | 0 | 2025 | 140.0 |
| | DGR | DETACHED GARAGE | 4 | 0 | 2025 | 624.0 |
| | DWN | DOWNSTAIRS LIVING AREA | 4 | 0 | 2025 | 946.0 |
| | OWP | OPEN WOOD PORCH W/STEPS | 4 | 0 | 2025 | 347.0 |
| | OWR | OPEN WOOD PORCH W/STEPS/ROOF | 4 | 0 | 2025 | 80.0 |
Sketch
| No sketches available for this property. |
Property Image
Land
| 1 | 16 | AC (00.51-01.00) | 0.0000 | 0.00 | 0.00 | 0.00 | 1.00 | $311,250 | $0 |
Roll Value History
| 2026 | N/A | N/A | N/A | N/A | N/A |
| 2025 | $413,070 | $311,250 | $0 | $724,320 | $724,320 |
| 2024 | $0 | $155,000 | $0 | $155,000 | $155,000 |
| 2023 | $0 | $120,000 | $0 | $120,000 | $120,000 |
| 2022 | $0 | $110,000 | $0 | $110,000 | $110,000 |
| 2021 | $0 | $90,000 | $0 | $90,000 | $90,000 |
| 2020 | $0 | $90,000 | $0 | $90,000 | $90,000 |
| 2019 | $0 | $90,000 | $0 | $90,000 | $90,000 |
| 2018 | $0 | $85,000 | $0 | $85,000 | $85,000 |
| 2017 | $0 | $85,000 | $0 | $85,000 | $85,000 |
| 2016 | $0 | $85,000 | $0 | $85,000 | $85,000 |
| 2015 | $0 | $85,000 | $0 | $85,000 | $85,000 |
| 2014 | $0 | $85,000 | $0 | $85,000 | $85,000 |
| 2013 | $0 | $59,140 | $0 | $59,140 | $59,140 |
| 2012 | $0 | $59,140 | $0 | $59,140 | $59,140 |
| 2011 | $0 | $59,140 | $0 | $59,140 | $59,140 |
| 2010 | $0 | $67,200 | $0 | $67,200 | $67,200 |
| 2009 | $0 | $166,750 | $0 | $166,750 | $166,750 |
| 2008 | $0 | $166,750 | $0 | $166,750 | $166,750 |
| 2007 | $0 | $166,750 | $0 | $166,750 | $166,750 |
Deed and Sales History
| 1 | 03/28/2024 | WD | Warranty Deed | HAWLEY, MICHAEL | MULCAHEY, EDWARD F | | | $300,000.00 | 59510 | 4570689 |
| 2 | 02/23/2021 | QCD | Quit Claim Deed | HAWLEY, MICHAEL A | HAWLEY, MICHAEL | | | $0.00 | 47047 | 4511681 |
| 3 | 06/05/2001 | WD | Warranty Deed | FRANDSEN, KENNETH R | HAWLEY, MICHAEL A | | | $90,000.00 | 12042 | 20033957 |
| 4 | 06/01/1997 | WD | Warranty Deed | H, & H | FRANDSEN, KENNETH R | | | $120,000.00 | 72051 | 97009582 |
| 5 | 01/01/1900 | OTHER | Other - Misc. Documents | Unknown | H, & H | | | $0.00 | 33436 | 417867 |
Payout Agreement
| No payout information available.. |