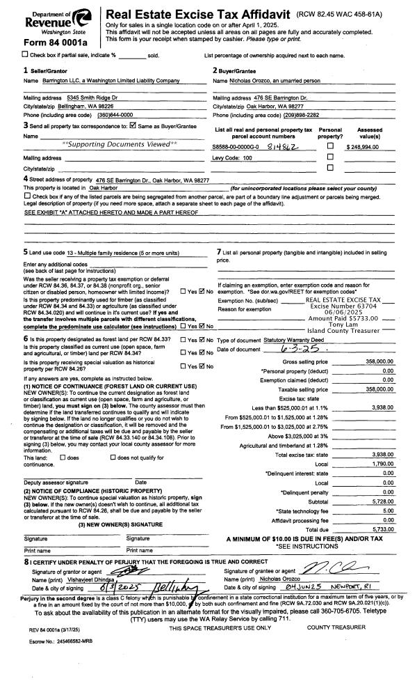
Property
Account |
| Property ID: | 75260 | Abbreviated Legal Description: | S109.54' OF N881.33' OF GL4 INCL ADJ TIDES EX E20' (LOT 8 V4 SUR P349 AF#347840) |
| Geographic ID: | R23110-444-4550 | Agent Code: | |
| Type: | Real | | |
| Tax Area: | 512 - APPRAISER-Stan/Cam Schl Dist, improved, greater than 1 acre | Land Use Code | 11 |
| Open Space: | N | DFL | N |
| Historic Property: | N | Remodel Property: | N |
| Multi-Family Redevelopment: | N | | |
| Township: | 31 | Section: | 10 |
| Range: | R2 |
Location |
| Address: | 462 EAGLE CREST RD CAMANO ISLAND, WA 98282 | Mapsco: | |
| Neighborhood: | Cycle 5 | Map ID: | 468 |
| Neighborhood CD: | 5 |
Owner |
| Name: | ROSTAD TTEE, STEVEN W. | Owner ID: | 306406 |
| Mailing Address: | STEPHANIE L. ROSTAD TTEE 24803 SE OLD BLACK NUGGET RD ISSAQUAH, WA 98029 | % Ownership: | 100.0000000000% |
| | | Exemptions: | |
Taxes and Assessment Details
Values
| (+) Improvement Homesite Value: | + | $0 | |
| (+) Improvement Non-Homesite Value: | + | $1,452,972 | |
| (+) Land Homesite Value: | + | $0 | |
| (+) Land Non-Homesite Value: | + | $600,900 | |
| (+) Curr Use (HS): | + | $0 | $0 |
| (+) Curr Use (NHS): | + | $0 | $0 |
| | | -------------------------- | |
| (=) Market Value: | = | $2,053,872 | |
| (–) Productivity Loss: | – | $0 | |
| | | -------------------------- | |
| (=) Subtotal: | = | $2,053,872 | |
| (+) Senior Appraised Value: | + | $0 | |
| (+) Non-Senior Appraised Value: | + | $2,053,872 | |
| | | -------------------------- | |
| (=) Total Appraised Value: | = | $2,053,872 | |
| (–) Senior Exemption Loss: | – | $0 | |
| (–) Exemption Loss: | – | $0 | |
| | | -------------------------- | |
| (=) Taxable Value: | = | $2,053,872 | |
Taxing Jurisdiction
| Owner: | ROSTAD TTEE, STEVEN W. | | |
| % Ownership: | 100.0000000000% | | |
| Total Value: | $2,053,872 | | |
| Tax Area: | 512 - APPRAISER-Stan/Cam Schl Dist, improved, greater than 1 acre |
| CF | Conservation Futures | 0.0313996660 | $2,053,872 | $2,053,872 | $64.49 | | |
| EMS1 | Fire & Rescue Dist #1 Camano GEN (EMS) | 0.4998471806 | $2,053,872 | $2,053,872 | $1,026.62 | | |
| FIRE1 | Fire & Rescue Dist #1 Camano GEN | 1.2496603404 | $2,053,872 | $2,053,872 | $2,566.64 | | |
| FIRE1BOND | Fire & Rescue Dist #1 Camano BOND | 0.1630371212 | $2,053,872 | $2,053,872 | $334.86 | | |
| CE | County Current Expense | 0.3674210519 | $2,053,872 | $2,053,872 | $754.64 | | |
| CR | County Roads | 0.4614296361 | $2,053,872 | $2,053,872 | $947.72 | | |
| LIB | Library Sno-Isle GEN | 0.3039084203 | $2,053,872 | $2,053,872 | $624.19 | | |
| SCH205_401 | School 205-401 Enrichment | 1.3697998934 | $2,053,872 | $2,053,872 | $2,813.39 | | |
| SCH205BOND | School 205-401 BOND | 0.9354199323 | $2,053,872 | $2,053,872 | $1,921.23 | | |
| ST | State School | 1.4761226122 | $2,053,872 | $2,053,872 | $3,031.77 | | |
| ST2 | State School Part 2 | 0.7953803475 | $2,053,872 | $2,053,872 | $1,633.61 | | |
| | Total Tax Rate: | 7.6534262019 | | | | | |
| | | | | Taxes w/Current Exemptions: | $15,719.16 | | |
| | | | | Taxes w/o Exemptions: | $15,719.16 | | |
Improvement / Building
| Improvement #1: | RESIDENTIAL | State Code: | Y | 3549.0 sqft | Value: | $1,452,972 |
| Bathrooms: | 3.5 | Bedrooms: | 3 | | Ceiling: | DRYWALL PAINTED | Cooling: | HEAT PUMP/CONV/V | | Exterior Wall/Cover: | CEMENT FIBER | Floor Covering: | HARDWOOD/CARP 80-20 | | Floor Structure: | WOOD W/SUBFLOOR | Foundation: | CONCRETE | | Interior Finish: | DRYWALL PAINT | Plumbing Fixture Cnt: | 18 | | Roof Slope: | 6" IN 12" | Roof Structure/Cover: | CJ ASPHALT |
|
| | Type | Description | Class CD | Sub Class CD | Year Built | Area |
| | BAS | BASE/MAIN FLOOR | 6 | 0 | 2006 | 2228.0 |
| | OP4 | OPEN PORCH W/CEILING-ROOF | 6 | 0 | 2006 | 96.0 |
| | DGR | DETACHED GARAGE | 6 | 0 | 2006 | 1624.0 |
| | BIG | BUILT IN GARAGE | 6 | 0 | 2006 | 691.0 |
| | UPS | UPPER STORY | 6 | 0 | 2006 | 741.0 |
| | OWP | OPEN WOOD PORCH W/STEPS | 6 | 0 | 2006 | 608.3 |
| | OWP | OPEN WOOD PORCH W/STEPS | 6 | 0 | 2006 | 120.0 |
| | OWP | OPEN WOOD PORCH W/STEPS | 6 | 0 | 2006 | 90.0 |
| | OWC | OPEN WOOD PORCH W/STEPS/ROOF/C | 6 | 0 | 2006 | 120.0 |
| | DWN | DOWNSTAIRS LIVING AREA | 6 | 0 | 2006 | 580.0 |
| | OP2 | OPEN PORCH W/STEPS | 6 | 0 | 2006 | 4448.0 |
Sketch
Property Image
Land
| 1 | HB | HIGH BLUFF | 5.4700 | 238273.20 | 109.00 | 0.00 | 1.00 | $600,000 | $0 |
| 2 | 55 | TIDES | 0.0000 | 0.00 | 110.00 | 0.00 | 1.00 | $900 | $0 |
Roll Value History
| 2026 | N/A | N/A | N/A | N/A | N/A |
| 2025 | $1,452,972 | $600,900 | $0 | $2,053,872 | $2,053,872 |
| 2024 | $1,464,786 | $600,900 | $0 | $2,065,686 | $2,065,686 |
| 2023 | $1,476,599 | $600,900 | $0 | $2,077,499 | $2,077,499 |
| 2022 | $975,276 | $550,900 | $0 | $1,526,176 | $1,526,176 |
| 2021 | $840,998 | $400,900 | $0 | $1,241,898 | $1,241,898 |
| 2020 | $816,209 | $400,900 | $0 | $1,217,109 | $1,217,109 |
| 2019 | $748,199 | $400,900 | $0 | $1,149,099 | $1,149,099 |
| 2018 | $750,247 | $400,900 | $0 | $1,151,147 | $1,151,147 |
| 2017 | $754,346 | $300,900 | $0 | $1,055,246 | $1,055,246 |
| 2016 | $717,103 | $300,900 | $0 | $1,018,003 | $1,018,003 |
| 2015 | $641,891 | $300,900 | $0 | $942,791 | $942,791 |
| 2014 | $648,806 | $350,900 | $0 | $999,706 | $999,706 |
| 2013 | $655,725 | $288,716 | $0 | $944,441 | $944,441 |
| 2012 | $664,890 | $288,716 | $0 | $953,606 | $953,606 |
| 2011 | $671,807 | $360,670 | $0 | $1,032,477 | $1,032,477 |
| 2010 | $676,969 | $439,846 | $0 | $1,116,815 | $1,116,815 |
| 2009 | $750,821 | $472,869 | $0 | $1,223,690 | $1,223,690 |
| 2008 | $703,063 | $403,060 | $0 | $1,106,123 | $1,106,123 |
| 2007 | $647,108 | $402,868 | $0 | $1,049,976 | $1,049,976 |
Deed and Sales History
| 1 | 10/20/2022 | WD | Warranty Deed | HINE TTEE, EUGENE S | ROSTAD TTEE, STEVEN W. | | | $2,345,000.00 | 54928 | 4552859 |
| 2 | 11/09/2021 | QCD | Quit Claim Deed | HINE, EUGENE S | HINE TTEE, EUGENE S | | | $0.00 | 51024 | 4534256 |
| 3 | 10/10/2016 | WD | Warranty Deed | POLLOCK, MARK A | HINE, EUGENE S | | | $1,469,020.00 | 26545 | 4409321 |
| 4 | 07/26/2012 | CCOMPROP | Create Community Property | POLLOCK, MARK A | POLLOCK, MARK A | | | $0.00 | 8400 | 4320283 |
| 5 | 05/20/2006 | WD | Warranty Deed | JOHNSON, MARK A | POLLOCK, MARK A | | | $477,000.00 | 62563 | 4173039 |
| 6 | 05/26/2006 | DECREE | Divorce Decree/Legal Separation | JOHNSON, MARK A | JOHNSON, MARK A | | | $0.00 | 62562 | 4173038 |
| 7 | 06/21/1999 | WD | Warranty Deed | HANNA, JOHN R | JOHNSON, MARK A | | | $168,500.00 | 92505 | 99015127 |
| 8 | 09/01/1988 | WD | Warranty Deed | STONEMAN, JON D | HANNA, JOHN R | | | $62,000.00 | 83047 | 88011380 |
| 9 | 05/01/1987 | WD | Warranty Deed | HOME, SAVINGS & | STONEMAN, JON D | | | $12,600.00 | 71451 | 87006985 |
| 10 | 06/01/1983 | TRUSTEED | Trustee's Deed | CPM, INC | HOME, SAVINGS & | | | $0.00 | 31682 | 0 |
| 11 | 05/01/1980 | CD | DNU - Correction Deed | Unknown | CPM, INC | | | $0.00 | 1484 | 368281 |
Payout Agreement
| No payout information available.. |