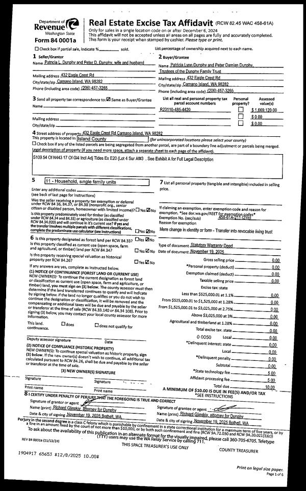
Property
Account |
| Property ID: | 75304 | Abbreviated Legal Description: | S109.54' OF N443.17' OF GL4 INCL ADJ TIDES EX E20' (LOT 4 SUR AF#347840) |
| Geographic ID: | R23110-485-4420 | Agent Code: | |
| Type: | Real | | |
| Tax Area: | 512 - APPRAISER-Stan/Cam Schl Dist, improved, greater than 1 acre | Land Use Code | 11 |
| Open Space: | N | DFL | N |
| Historic Property: | N | Remodel Property: | N |
| Multi-Family Redevelopment: | N | | |
| Township: | 31 | Section: | 10 |
| Range: | R2 |
Location |
| Address: | 432 EAGLE CREST RD CAMANO ISLAND, WA 98282 | Mapsco: | |
| Neighborhood: | Cycle 5 | Map ID: | 468 |
| Neighborhood CD: | 5 |
Owner |
| Name: | DUNPHY, PATRICIA L | Owner ID: | 197508 |
| Mailing Address: | PETER D DUNPHY 432 EAGLE CREST RD CAMANO ISLAND, WA 98282 | % Ownership: | 100.0000000000% |
| | | Exemptions: | |
Taxes and Assessment Details
Values
| (+) Improvement Homesite Value: | + | $0 | |
| (+) Improvement Non-Homesite Value: | + | $1,059,605 | |
| (+) Land Homesite Value: | + | $0 | |
| (+) Land Non-Homesite Value: | + | $600,900 | |
| (+) Curr Use (HS): | + | $0 | $0 |
| (+) Curr Use (NHS): | + | $0 | $0 |
| | | -------------------------- | |
| (=) Market Value: | = | $1,660,505 | |
| (–) Productivity Loss: | – | $0 | |
| | | -------------------------- | |
| (=) Subtotal: | = | $1,660,505 | |
| (+) Senior Appraised Value: | + | $0 | |
| (+) Non-Senior Appraised Value: | + | $1,660,505 | |
| | | -------------------------- | |
| (=) Total Appraised Value: | = | $1,660,505 | |
| (–) Senior Exemption Loss: | – | $0 | |
| (–) Exemption Loss: | – | $0 | |
| | | -------------------------- | |
| (=) Taxable Value: | = | $1,660,505 | |
Taxing Jurisdiction
| Owner: | DUNPHY, PATRICIA L | | |
| % Ownership: | 100.0000000000% | | |
| Total Value: | $1,660,505 | | |
| Tax Area: | 512 - APPRAISER-Stan/Cam Schl Dist, improved, greater than 1 acre |
| CF | Conservation Futures | 0.0313996660 | $1,660,505 | $1,660,505 | $52.14 | | |
| EMS1 | Fire & Rescue Dist #1 Camano GEN (EMS) | 0.4998471806 | $1,660,505 | $1,660,505 | $830.00 | | |
| FIRE1 | Fire & Rescue Dist #1 Camano GEN | 1.2496603404 | $1,660,505 | $1,660,505 | $2,075.07 | | |
| FIRE1BOND | Fire & Rescue Dist #1 Camano BOND | 0.1630371212 | $1,660,505 | $1,660,505 | $270.72 | | |
| CE | County Current Expense | 0.3674210519 | $1,660,505 | $1,660,505 | $610.10 | | |
| CR | County Roads | 0.4614296361 | $1,660,505 | $1,660,505 | $766.21 | | |
| LIB | Library Sno-Isle GEN | 0.3039084203 | $1,660,505 | $1,660,505 | $504.64 | | |
| SCH205_401 | School 205-401 Enrichment | 1.3697998934 | $1,660,505 | $1,660,505 | $2,274.56 | | |
| SCH205BOND | School 205-401 BOND | 0.9354199323 | $1,660,505 | $1,660,505 | $1,553.27 | | |
| ST | State School | 1.4761226122 | $1,660,505 | $1,660,505 | $2,451.11 | | |
| ST2 | State School Part 2 | 0.7953803475 | $1,660,505 | $1,660,505 | $1,320.73 | | |
| | Total Tax Rate: | 7.6534262019 | | | | | |
| | | | | Taxes w/Current Exemptions: | $12,708.55 | | |
| | | | | Taxes w/o Exemptions: | $12,708.55 | | |
Improvement / Building
| Improvement #1: | RESIDENTIAL | State Code: | Y | 4153.5 sqft | Value: | $1,059,605 |
| Bathrooms: | 2.5 | Bedrooms: | 3 | | Ceiling: | DRYWALL PAINTED | Cooling: | HEAT PUMP/CONV/V | | Exterior Wall/Cover: | CEMENT FIBER | Floor Covering: | HARDWOOD/CARP 60-40 | | Floor Structure: | WOOD W/SUBFLOOR | Foundation: | CONCRETE | | Interior Finish: | DRYWALL PAINT | Plumbing Fixture Cnt: | 15 | | Roof Slope: | 6" IN 12" | Roof Structure/Cover: | CJ ASPHALT |
|
| | Type | Description | Class CD | Sub Class CD | Year Built | Area |
| | BAS | BASE/MAIN FLOOR | 6 | 0 | 2013 | 2502.1 |
| | UPS | UPPER STORY | 6 | 0 | 2013 | 1651.4 |
| | BIG | BUILT IN GARAGE | 6 | 0 | 2013 | 1013.8 |
| | BAR | BALCONY W/ROOF | 6 | 0 | 2013 | 111.0 |
| | OP4 | OPEN PORCH W/CEILING-ROOF | 6 | 0 | 2013 | 44.0 |
| | OP1 | OPEN PORCH SLAB | 6 | 0 | 2013 | 4267.1 |
Sketch
Property Image
Land
| 1 | HB | HIGH BLUFF | 5.7700 | 251341.20 | 109.00 | 0.00 | 1.00 | $600,000 | $0 |
| 2 | 55 | TIDES | 0.0000 | 0.00 | 110.00 | 0.00 | 1.00 | $900 | $0 |
Roll Value History
| 2026 | N/A | N/A | N/A | N/A | N/A |
| 2025 | $1,059,605 | $600,900 | $0 | $1,660,505 | $1,660,505 |
| 2024 | $1,068,220 | $600,900 | $0 | $1,669,120 | $1,669,120 |
| 2023 | $1,076,833 | $600,900 | $0 | $1,677,733 | $1,677,733 |
| 2022 | $982,873 | $550,900 | $0 | $1,533,773 | $1,533,773 |
| 2021 | $827,534 | $400,900 | $0 | $1,228,434 | $1,228,434 |
| 2020 | $804,572 | $400,900 | $0 | $1,205,472 | $1,205,472 |
| 2019 | $758,113 | $400,900 | $0 | $1,159,013 | $1,159,013 |
| 2018 | $760,124 | $400,900 | $0 | $1,161,024 | $1,161,024 |
| 2017 | $764,147 | $300,900 | $0 | $1,065,047 | $1,065,047 |
| 2016 | $772,189 | $300,900 | $0 | $1,073,089 | $1,073,089 |
| 2015 | $693,449 | $300,900 | $0 | $994,349 | $994,349 |
| 2014 | $700,599 | $350,900 | $0 | $1,051,499 | $1,051,499 |
| 2013 | $714,896 | $176,396 | $0 | $891,292 | $891,292 |
| 2012 | $1,530 | $176,396 | $0 | $177,926 | $177,926 |
| 2011 | $1,530 | $220,270 | $0 | $221,800 | $221,800 |
| 2010 | $1,530 | $268,625 | $0 | $270,155 | $270,155 |
| 2009 | $1,620 | $286,371 | $0 | $287,991 | $287,991 |
| 2008 | $1,740 | $392,060 | $0 | $393,800 | $393,800 |
| 2007 | $1,830 | $395,868 | $0 | $397,698 | $397,698 |
Deed and Sales History
| 1 | 11/19/2025 | WD | Warranty Deed | DUNPHY, PATRICIA L | DUNPHY FAMILY TRUST | | | $0.00 | 65653 | 4594386 |
| 2 | 08/21/2006 | WD | Warranty Deed | CABRERA, LUIS FELIPE | DUNPHY, PATRICIA L | | | $585,000.00 | 63806 | 4180702 |
| 3 | 07/10/1999 | WD | Warranty Deed | WORTHAM, E D | CABRERA, LUIS FELIPE | | | $180,000.00 | 93050 | 99017839 |
| 4 | 12/01/1988 | WD | Warranty Deed | MURAKAMI, AYAKO, M | WORTHAM, E D | | | $59,950.00 | 84336 | 88016165 |
| 5 | 05/01/1988 | QCD | Quit Claim Deed | MURAKAMI, AYAKO E | MURAKAMI, AYAKO, M | | | $0.00 | 81349 | 88005075 |
| 6 | 04/01/1988 | QCD | Quit Claim Deed | CPM, INC | MURAKAMI, AYAKO E | | | $0.00 | 81976 | 88007300 |
| 7 | 01/01/1980 | CD | DNU - Correction Deed | MURAKAMI, AYAKO, M | CPM, INC | | | $0.00 | 154 | 363982 |
| 8 | 01/01/1980 | TRUSTEED | Trustee's Deed | MARTINA, BRUCE | MURAKAMI, AYAKO, M | | | $50,000.00 | 85 | 363767 |
| 9 | 05/01/1979 | OTHER | Other - Misc. Documents | Unknown | MARTINA, BRUCE | | | $46,000.00 | 92184 | 352134 |
Payout Agreement
| No payout information available.. |