Property
Account |
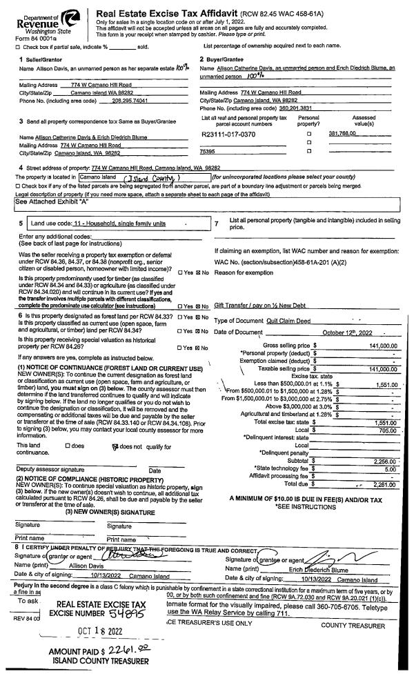
| Property ID: | 75395 | Abbreviated Legal Description: | 38 - IN SW SW: BG SEC CR COM TO SECS 10, 11, 14 & 15 E270.5' TPB N215' E140' S215' W140' TPB |
| Geographic ID: | R23111-017-0370 | Agent Code: | |
| Type: | Real | | |
| Tax Area: | 510 - APPRAISER-Stan/Cam Schl Dist, improved & 1 acre or less | Land Use Code | 11 |
| Open Space: | N | DFL | N |
| Historic Property: | N | Remodel Property: | N |
| Multi-Family Redevelopment: | N | | |
| Township: | 31 | Section: | 11 |
| Range: | R2 |
Location |
| Address: | 774 CAMANO HILL RD CAMANO ISLAND, WA 98282 | Mapsco: | |
| Neighborhood: | Cycle 5 | Map ID: | 469 |
| Neighborhood CD: | 5 |
Owner |
| Name: | DAVIS, ALLISON C | Owner ID: | 306384 |
| Mailing Address: | ERICH D BLUME 774 W CAMANO HILL RD CAMANO ISLAND, WA 98282 | % Ownership: | 100.0000000000% |
| | | Exemptions: | |
Taxes and Assessment Details
Values
| (+) Improvement Homesite Value: | + | $0 | |
| (+) Improvement Non-Homesite Value: | + | $182,423 | |
| (+) Land Homesite Value: | + | $0 | |
| (+) Land Non-Homesite Value: | + | $250,000 | |
| (+) Curr Use (HS): | + | $0 | $0 |
| (+) Curr Use (NHS): | + | $0 | $0 |
| | | -------------------------- | |
| (=) Market Value: | = | $432,423 | |
| (–) Productivity Loss: | – | $0 | |
| | | -------------------------- | |
| (=) Subtotal: | = | $432,423 | |
| (+) Senior Appraised Value: | + | $0 | |
| (+) Non-Senior Appraised Value: | + | $432,423 | |
| | | -------------------------- | |
| (=) Total Appraised Value: | = | $432,423 | |
| (–) Senior Exemption Loss: | – | $0 | |
| (–) Exemption Loss: | – | $0 | |
| | | -------------------------- | |
| (=) Taxable Value: | = | $432,423 | |
Taxing Jurisdiction
| Owner: | DAVIS, ALLISON C | | |
| % Ownership: | 100.0000000000% | | |
| Total Value: | $432,423 | | |
| Tax Area: | 510 - APPRAISER-Stan/Cam Schl Dist, improved & 1 acre or less |
| CF | Conservation Futures | 0.0313996660 | $432,423 | $432,423 | $13.58 | | |
| EMS1 | Fire & Rescue Dist #1 Camano GEN (EMS) | 0.4998471806 | $432,423 | $432,423 | $216.15 | | |
| FIRE1 | Fire & Rescue Dist #1 Camano GEN | 1.2496603404 | $432,423 | $432,423 | $540.38 | | |
| FIRE1BOND | Fire & Rescue Dist #1 Camano BOND | 0.1630371212 | $432,423 | $432,423 | $70.50 | | |
| CE | County Current Expense | 0.3674210519 | $432,423 | $432,423 | $158.88 | | |
| CR | County Roads | 0.4614296361 | $432,423 | $432,423 | $199.53 | | |
| LIB | Library Sno-Isle GEN | 0.3039084203 | $432,423 | $432,423 | $131.42 | | |
| SCH205_401 | School 205-401 Enrichment | 1.3697998934 | $432,423 | $432,423 | $592.33 | | |
| SCH205BOND | School 205-401 BOND | 0.9354199323 | $432,423 | $432,423 | $404.50 | | |
| ST | State School | 1.4761226122 | $432,423 | $432,423 | $638.31 | | |
| ST2 | State School Part 2 | 0.7953803475 | $432,423 | $432,423 | $343.94 | | |
| | Total Tax Rate: | 7.6534262019 | | | | | |
| | | | | Taxes w/Current Exemptions: | $3,309.52 | | |
| | | | | Taxes w/o Exemptions: | $3,309.52 | | |
Improvement / Building
| Improvement #1: | RESIDENTIAL | State Code: | Y | 1134.0 sqft | Value: | $182,423 |
| Bathrooms: | 1 | Bedrooms: | 3 | | Ceiling: | DRYWALL PAINTED | Exterior Wall/Cover: | ASBESTOES/ASPHALT | | Floor Covering: | CARPET/VINYL 20-80 | Floor Structure: | WOOD W/SUBFLOOR | | Foundation: | WOOD BLOCKS | Heating: | FHA ELECTRIC | | Interior Finish: | DRYWALL PAINT | Plumbing Fixture Cnt: | 6 | | Roof Slope: | 5" IN 12" | Roof Structure/Cover: | CJ ASPHALT |
|
| | Type | Description | Class CD | Sub Class CD | Year Built | Area |
| | BAS | BASE/MAIN FLOOR | 3 | 0 | 1959 | 1134.0 |
| | OWP | OPEN WOOD PORCH W/STEPS | 3 | 0 | 1959 | 576.0 |
| | OWC | OPEN WOOD PORCH W/STEPS/ROOF/C | 3 | 0 | 1959 | 18.0 |
| | UTY | STORAGE/UTILITY | 3 | 0 | 1959 | 670.0 |
Sketch
Property Image
Land
| 1 | 16 | AC (00.51-01.00) | 0.6300 | 27442.80 | 0.00 | 0.00 | 1.00 | $250,000 | $0 |
Roll Value History
| 2026 | N/A | N/A | N/A | N/A | N/A |
| 2025 | $182,423 | $250,000 | $0 | $432,423 | $432,423 |
| 2024 | $184,848 | $230,000 | $0 | $414,848 | $414,848 |
| 2023 | $187,270 | $230,000 | $0 | $417,270 | $417,270 |
| 2022 | $171,766 | $210,000 | $0 | $381,766 | $381,766 |
| 2021 | $149,363 | $150,000 | $0 | $299,363 | $299,363 |
| 2020 | $130,969 | $120,000 | $0 | $250,969 | $250,969 |
| 2019 | $93,434 | $160,000 | $0 | $253,434 | $253,434 |
| 2018 | $93,758 | $120,000 | $0 | $213,758 | $213,758 |
| 2017 | $94,405 | $100,000 | $0 | $194,405 | $194,405 |
| 2016 | $95,698 | $100,000 | $0 | $195,698 | $195,698 |
| 2015 | $68,781 | $65,000 | $0 | $133,781 | $133,781 |
| 2014 | $69,897 | $65,000 | $0 | $134,897 | $134,897 |
| 2013 | $71,013 | $41,600 | $0 | $112,613 | $112,613 |
| 2012 | $72,129 | $41,600 | $0 | $113,729 | $113,729 |
| 2011 | $73,244 | $52,000 | $0 | $125,244 | $125,244 |
| 2010 | $78,161 | $52,000 | $0 | $130,161 | $130,161 |
| 2009 | $43,472 | $90,000 | $0 | $133,472 | $133,472 |
| 2008 | $44,343 | $124,875 | $0 | $169,218 | $169,218 |
| 2007 | $45,924 | $124,165 | $0 | $170,089 | $170,089 |
Deed and Sales History
| 1 | 10/12/2022 | QCD | Quit Claim Deed | DAVIS, ALLISON | DAVIS, ALLISON C | | | $141,000.00 | 54895 | 4552701 |
| 2 | 10/05/2022 | QCD | Quit Claim Deed | BRIEN, JASON | DAVIS, ALLISON | | | $0.00 | 54814 | 4552369 |
| 3 | 04/07/2020 | WD | Warranty Deed | CAMANO ISLAND INN LLC | BRIEN, JASON | | | $291,000.00 | 42639 | 4484719 |
| 4 | 08/05/2010 | WD | Warranty Deed | SKILLINGS, JESSE | CAMANO ISLAND INN LLC | | | $152,500.00 | 1951 | 4278477 |
| 5 | 03/04/2008 | CD | DNU - Correction Deed | GOODRICH LE, CATHERINE A | SKILLINGS, JESSE | | | $0.00 | 80658 | 0 |
| 6 | 01/09/2008 | QCD | Quit Claim Deed | GOODRICH, CATHERINE A | GOODRICH LE, CATHERINE A | | | $44,493.00 | 80119 | 4219835 |
| 7 | 03/18/2003 | PRD | Personal Representatives Deed | GOODRICH, LAURENCE R | GOODRICH, CATHERINE A | | | $0.00 | 31151 | 4051933 |
| 8 | 08/01/1989 | WD | Warranty Deed | GOODRICH, LAURENCE R | GOODRICH, LAURENCE R | | | $42,000.00 | 93388 | 89011355 |
| 9 | 08/01/1989 | WD | Warranty Deed | BUCHOLZ, IVAN B | GOODRICH, LAURENCE R | | | $0.00 | 93723 | 89012429 |
| 10 | 07/01/1977 | EXECUTORD | Executor Deed | BUCHOLZ, IVAN B | BUCHOLZ, IVAN B | | | $0.00 | 73052 | 0 |
| 11 | 01/01/1900 | OTHER | Other - Misc. Documents | Unknown | BUCHOLZ, IVAN B | | | $0.00 | 0 | 0 |
Payout Agreement
| No payout information available.. |