Property
Account |
| Property ID: | 755114 | Abbreviated Legal Description: | DOMERUDE BCH LOT 53 BLK 1 FR 01052-0 |
| Geographic ID: | S6480-00-01053-0 | Agent Code: | |
| Type: | Real | | |
| Tax Area: | 580 - APPRAISER-Stan/Cam Schl Dist, Special Dist, improved & less than 1 acre | Land Use Code | 99 |
| Open Space: | N | DFL | N |
| Historic Property: | N | Remodel Property: | N |
| Multi-Family Redevelopment: | N | | |
| Township: | | Section: | |
| Range: | |
Location |
| Address: | JUNIPER POINTE LN CAMANO ISLAND, WA 98282 | Mapsco: | |
| Neighborhood: | Cycle 5 | Map ID: | 980 |
| Neighborhood CD: | 5 |
Owner |
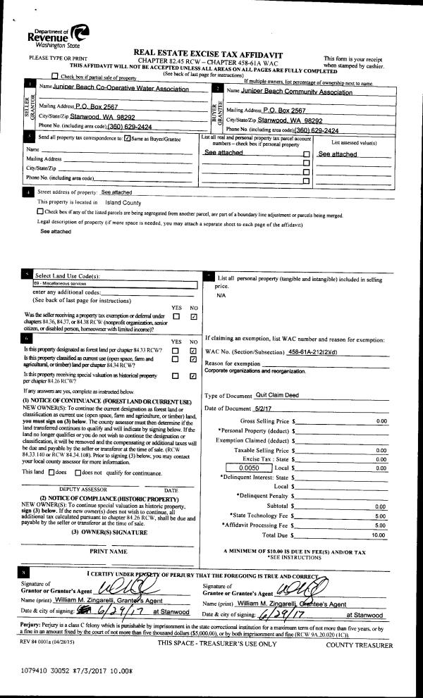
| Name: | JUNIPER BEACH COMMUNITY ASSOCIATION | Owner ID: | 280722 |
| Mailing Address: | PO BOX 2567 STANWOOD, WA 98292 | % Ownership: | 100.0000000000% |
| | | Exemptions: | |
Taxes and Assessment Details
Values
| (+) Improvement Homesite Value: | + | $0 | |
| (+) Improvement Non-Homesite Value: | + | $0 | |
| (+) Land Homesite Value: | + | $0 | |
| (+) Land Non-Homesite Value: | + | $12,000 | |
| (+) Curr Use (HS): | + | $0 | $0 |
| (+) Curr Use (NHS): | + | $0 | $0 |
| | | -------------------------- | |
| (=) Market Value: | = | $12,000 | |
| (–) Productivity Loss: | – | $0 | |
| | | -------------------------- | |
| (=) Subtotal: | = | $12,000 | |
| (+) Senior Appraised Value: | + | $0 | |
| (+) Non-Senior Appraised Value: | + | $12,000 | |
| | | -------------------------- | |
| (=) Total Appraised Value: | = | $12,000 | |
| (–) Senior Exemption Loss: | – | $0 | |
| (–) Exemption Loss: | – | $0 | |
| | | -------------------------- | |
| (=) Taxable Value: | = | $12,000 | |
Taxing Jurisdiction
| Owner: | JUNIPER BEACH COMMUNITY ASSOCIATION | | |
| % Ownership: | 100.0000000000% | | |
| Total Value: | $12,000 | | |
| Tax Area: | 580 - APPRAISER-Stan/Cam Schl Dist, Special Dist, improved & less than 1 acre |
| CF | Conservation Futures | 0.0313996660 | $12,000 | $12,000 | $0.38 | | |
| EMS1 | Fire & Rescue Dist #1 Camano GEN (EMS) | 0.4998471806 | $12,000 | $12,000 | $6.00 | | |
| FIRE1 | Fire & Rescue Dist #1 Camano GEN | 1.2496603404 | $12,000 | $12,000 | $15.00 | | |
| FIRE1BOND | Fire & Rescue Dist #1 Camano BOND | 0.1630371212 | $12,000 | $12,000 | $1.96 | | |
| CE | County Current Expense | 0.3674210519 | $12,000 | $12,000 | $4.41 | | |
| CR | County Roads | 0.4614296361 | $12,000 | $12,000 | $5.54 | | |
| LIB | Library Sno-Isle GEN | 0.3039084203 | $12,000 | $12,000 | $3.65 | | |
| SCH205_401 | School 205-401 Enrichment | 1.3697998934 | $12,000 | $12,000 | $16.44 | | |
| SCH205BOND | School 205-401 BOND | 0.9354199323 | $12,000 | $12,000 | $11.23 | | |
| ST | State School | 1.4761226122 | $12,000 | $12,000 | $17.71 | | |
| ST2 | State School Part 2 | 0.7953803475 | $12,000 | $12,000 | $9.54 | | |
| | Total Tax Rate: | 7.6534262019 | | | | | |
| | | | | Taxes w/Current Exemptions: | $91.86 | | |
| | | | | Taxes w/o Exemptions: | $91.86 | | |
Improvement / Building
Sketch
| No sketches available for this property. |
Property Image
Land
| 1 | 12 | SQ (00000-06000) | 0.0000 | 0.00 | 0.00 | 0.00 | 1.00 | $12,000 | $0 |
Roll Value History
| 2026 | N/A | N/A | N/A | N/A | N/A |
| 2025 | $0 | $12,000 | $0 | $12,000 | $12,000 |
| 2024 | $0 | $12,000 | $0 | $12,000 | $12,000 |
| 2023 | $0 | $9,000 | $0 | $9,000 | $9,000 |
| 2022 | $0 | $9,000 | $0 | $9,000 | $9,000 |
| 2021 | $0 | $7,000 | $0 | $7,000 | $7,000 |
| 2020 | $0 | $7,000 | $0 | $7,000 | $7,000 |
| 2019 | $0 | $7,000 | $0 | $7,000 | $7,000 |
| 2018 | $0 | $7,000 | $0 | $7,000 | $7,000 |
| 2017 | $0 | $10,000 | $0 | $10,000 | $10,000 |
| 2016 | $0 | $10,000 | $0 | $10,000 | $10,000 |
| 2015 | $0 | $10,000 | $0 | $10,000 | $10,000 |
| 2014 | $0 | $10,000 | $0 | $10,000 | $10,000 |
| 2013 | $0 | $10,000 | $0 | $10,000 | $10,000 |
| 2012 | $0 | $10,000 | $0 | $10,000 | $10,000 |
| 2011 | $0 | $10,000 | $0 | $10,000 | $10,000 |
| 2010 | $0 | $10,000 | $0 | $10,000 | $10,000 |
| 2009 | $0 | $49,500 | $0 | $49,500 | $49,500 |
| 2008 | $0 | $44,550 | $0 | $44,550 | $44,550 |
| 2007 | $0 | $45,900 | $0 | $45,900 | $45,900 |
Deed and Sales History
| 1 | 05/02/2017 | QCD | Quit Claim Deed | JUNIPER BCH CO-OP WATER ASN | JUNIPER BEACH COMMUNITY ASSOCIATION | | | $0.00 | 30052 | 4425575 |
| 2 | 08/01/1997 | SEG | DNU - Segregation | JUNIPER, BCH C | JUNIPER, BCH C | | | $0.00 | 67552 | 0 |
| 3 | 01/01/1900 | OTHER | Other - Misc. Documents | Unknown | JUNIPER, BCH C | | | $0.00 | 0 | 0 |
Payout Agreement
| No payout information available.. |