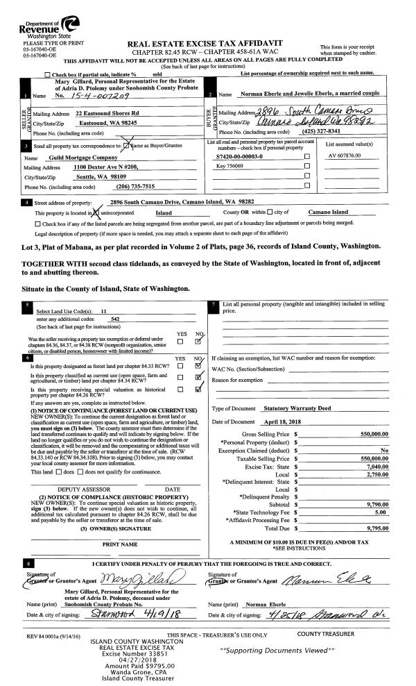
Property
Account |
| Property ID: | 756060 | Abbreviated Legal Description: | MABANA LOT 3 INCL ADJ |
| Geographic ID: | S7420-00-00003-0 | Agent Code: | |
| Type: | Real | | |
| Tax Area: | 542 - APPRAISER-Stan/Cam Schl Dist, Special Dist, improved, greater than 1 acre | Land Use Code | 11 |
| Open Space: | N | DFL | N |
| Historic Property: | N | Remodel Property: | N |
| Multi-Family Redevelopment: | N | | |
| Township: | | Section: | |
| Range: | |
Location |
| Address: | 2896 SOUTH CAMANO DR CAMANO IS, WA 98282 | Mapsco: | |
| Neighborhood: | Cycle 5 | Map ID: | 861 |
| Neighborhood CD: | 5 |
Owner |
| Name: | EBERLE, NORMAN | Owner ID: | 284775 |
| Mailing Address: | JEWELIE EBERLE 2896 SOUTH CAMANO DR CAMANO ISLAND, WA 98282 | % Ownership: | 100.0000000000% |
| | | Exemptions: | |
Taxes and Assessment Details
Values
| (+) Improvement Homesite Value: | + | $0 | |
| (+) Improvement Non-Homesite Value: | + | $298,391 | |
| (+) Land Homesite Value: | + | $0 | |
| (+) Land Non-Homesite Value: | + | $752,000 | |
| (+) Curr Use (HS): | + | $0 | $0 |
| (+) Curr Use (NHS): | + | $0 | $0 |
| | | -------------------------- | |
| (=) Market Value: | = | $1,050,391 | |
| (–) Productivity Loss: | – | $0 | |
| | | -------------------------- | |
| (=) Subtotal: | = | $1,050,391 | |
| (+) Senior Appraised Value: | + | $0 | |
| (+) Non-Senior Appraised Value: | + | $1,050,391 | |
| | | -------------------------- | |
| (=) Total Appraised Value: | = | $1,050,391 | |
| (–) Senior Exemption Loss: | – | $0 | |
| (–) Exemption Loss: | – | $0 | |
| | | -------------------------- | |
| (=) Taxable Value: | = | $1,050,391 | |
Taxing Jurisdiction
| Owner: | EBERLE, NORMAN | | |
| % Ownership: | 100.0000000000% | | |
| Total Value: | $1,050,391 | | |
| Tax Area: | 542 - APPRAISER-Stan/Cam Schl Dist, Special Dist, improved, greater than 1 acre |
| CF | Conservation Futures | 0.0313996660 | $1,050,391 | $1,050,391 | $32.98 | | |
| EMS1 | Fire & Rescue Dist #1 Camano GEN (EMS) | 0.4998471806 | $1,050,391 | $1,050,391 | $525.03 | | |
| FIRE1 | Fire & Rescue Dist #1 Camano GEN | 1.2496603404 | $1,050,391 | $1,050,391 | $1,312.63 | | |
| FIRE1BOND | Fire & Rescue Dist #1 Camano BOND | 0.1630371212 | $1,050,391 | $1,050,391 | $171.25 | | |
| CE | County Current Expense | 0.3674210519 | $1,050,391 | $1,050,391 | $385.94 | | |
| CR | County Roads | 0.4614296361 | $1,050,391 | $1,050,391 | $484.68 | | |
| LIB | Library Sno-Isle GEN | 0.3039084203 | $1,050,391 | $1,050,391 | $319.22 | | |
| SCH205_401 | School 205-401 Enrichment | 1.3697998934 | $1,050,391 | $1,050,391 | $1,438.83 | | |
| SCH205BOND | School 205-401 BOND | 0.9354199323 | $1,050,391 | $1,050,391 | $982.56 | | |
| ST | State School | 1.4761226122 | $1,050,391 | $1,050,391 | $1,550.51 | | |
| ST2 | State School Part 2 | 0.7953803475 | $1,050,391 | $1,050,391 | $835.46 | | |
| | Total Tax Rate: | 7.6534262019 | | | | | |
| | | | | Taxes w/Current Exemptions: | $8,039.09 | | |
| | | | | Taxes w/o Exemptions: | $8,039.09 | | |
Improvement / Building
| Improvement #1: | RESIDENTIAL | State Code: | Y | 1711.6 sqft | Value: | $298,391 |
| Bathrooms: | 1 | Bedrooms: | 2 | | Ceiling: | DRYWALL PAINTED | Exterior Wall/Cover: | PLYWD/WD OR ST STUDS | | Floor Covering: | LAMINATE/LVP | Floor Structure: | WOOD W/SUBFLOOR | | Foundation: | CONCRETE | Heating: | RADIANT FLOOR | | Interior Finish: | DRYWALL PAINT | Plumbing Fixture Cnt: | 1 | | Roof Slope: | 5" IN 12" | Roof Structure/Cover: | CJ ALUMINIUM HEAVY |
|
| | Type | Description | Class CD | Sub Class CD | Year Built | Area |
| | BAS | BASE/MAIN FLOOR | 4 | 0 | 1965 | 1711.6 |
| | OP4 | OPEN PORCH W/CEILING-ROOF | 4 | 0 | 1965 | 118.9 |
| | DGR | DETACHED GARAGE | 4 | 0 | 1965 | 400.0 |
| | OCP | OPEN CARPORT | 4 | 0 | 1965 | 297.0 |
| | DGR | DETACHED GARAGE | 4 | 0 | 1965 | 900.0 |
| | OWC | OPEN WOOD PORCH W/STEPS/ROOF/C | 4 | 0 | 2025 | 324.0 |
| | OP4 | OPEN PORCH W/CEILING-ROOF | 4 | 0 | 2025 | 192.0 |
Sketch
Property Image
Land
| 1 | HB | HIGH BLUFF | 3.4400 | 149846.40 | 200.00 | 0.00 | 1.00 | $750,000 | $0 |
| 2 | 55 | TIDES | 0.0000 | 0.00 | 200.00 | 0.00 | 1.00 | $2,000 | $0 |
Roll Value History
| 2026 | N/A | N/A | N/A | N/A | N/A |
| 2025 | $298,391 | $752,000 | $0 | $1,050,391 | $1,050,391 |
| 2024 | $237,352 | $752,000 | $0 | $989,352 | $989,352 |
| 2023 | $239,298 | $752,000 | $0 | $991,298 | $991,298 |
| 2022 | $209,353 | $702,000 | $0 | $911,353 | $911,353 |
| 2021 | $185,763 | $567,000 | $0 | $752,763 | $752,763 |
| 2020 | $112,403 | $567,000 | $0 | $679,403 | $679,403 |
| 2019 | $86,338 | $577,000 | $0 | $663,338 | $663,338 |
| 2018 | $86,658 | $552,000 | $0 | $638,658 | $638,658 |
| 2017 | $105,876 | $502,000 | $0 | $607,876 | $607,876 |
| 2016 | $100,981 | $502,000 | $0 | $602,981 | $602,981 |
| 2015 | $102,342 | $502,000 | $0 | $604,342 | $604,342 |
| 2014 | $103,819 | $502,000 | $0 | $605,819 | $605,819 |
| 2013 | $105,299 | $516,949 | $0 | $622,248 | $262,676 |
| 2012 | $106,776 | $516,949 | $0 | $623,725 | $262,676 |
| 2011 | $108,256 | $645,686 | $0 | $753,942 | $262,676 |
| 2010 | $122,179 | $645,686 | $0 | $767,865 | $262,676 |
| 2009 | $125,128 | $784,564 | $0 | $909,692 | $262,676 |
| 2008 | $127,332 | $784,564 | $0 | $911,896 | $262,676 |
| 2007 | $129,627 | $783,164 | $0 | $912,791 | $262,676 |
Deed and Sales History
| 1 | 04/18/2018 | WD | Warranty Deed | PTOLEMY, ADRIA D | EBERLE, NORMAN | | | $550,000.00 | 33851 | 4443342 |
| 2 | 08/01/1997 | OTHER | Other - Misc. Documents | PTOLEMY, GORDON D | PTOLEMY, ADRIA D | | | $0.00 | 67565 | 97012853 |
| 3 | 01/01/1900 | OTHER | Other - Misc. Documents | Unknown | PTOLEMY, GORDON D | | | $0.00 | 0 | 0 |
Payout Agreement
| No payout information available.. |