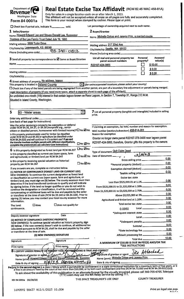
Property
Account |
| Property ID: | 756293 | Abbreviated Legal Description: | 5-1 - LOT 5 BLK 1 OF SURVEY V4 P84-85 AF#307607 FMLY TL 5 WELCHER DC UNDIV 1/9 INT OF 28 ACS |
| Geographic ID: | R23107-424-3955 | Agent Code: | |
| Type: | Real | | |
| Tax Area: | 310 - APPRAISER-Cpvl Schl Dist, outside Cpvl, improved & 1 acre or less | Land Use Code | 93 |
| Open Space: | N | DFL | N |
| Historic Property: | N | Remodel Property: | N |
| Multi-Family Redevelopment: | N | | |
| Township: | 31 | Section: | 07 |
| Range: | R2 |
Location |
| Address: | | Mapsco: | |
| Neighborhood: | Cycle 2 | Map ID: | |
| Neighborhood CD: | 2 |
Owner |
| Name: | DIRKSE, MICHELLE | Owner ID: | 310798 |
| Mailing Address: | JEREMY PRIM 217 32ND AVE SEATTLE, WA 98122 | % Ownership: | 100.0000000000% |
| | | Exemptions: | U500 |
Taxes and Assessment Details
Values
| (+) Improvement Homesite Value: | + | $0 | |
| (+) Improvement Non-Homesite Value: | + | $0 | |
| (+) Land Homesite Value: | + | $0 | |
| (+) Land Non-Homesite Value: | + | $450 | |
| (+) Curr Use (HS): | + | $0 | $0 |
| (+) Curr Use (NHS): | + | $0 | $0 |
| | | -------------------------- | |
| (=) Market Value: | = | $450 | |
| (–) Productivity Loss: | – | $0 | |
| | | -------------------------- | |
| (=) Subtotal: | = | $450 | |
| (+) Senior Appraised Value: | + | $0 | |
| (+) Non-Senior Appraised Value: | + | $450 | |
| | | -------------------------- | |
| (=) Total Appraised Value: | = | $450 | |
| (–) Senior Exemption Loss: | – | $0 | |
| (–) Exemption Loss: | – | $450 | |
| | | -------------------------- | |
| (=) Taxable Value: | = | $0 | |
Taxing Jurisdiction
| Owner: | DIRKSE, MICHELLE | | |
| % Ownership: | 100.0000000000% | | |
| Total Value: | $450 | | |
| Tax Area: | 310 - APPRAISER-Cpvl Schl Dist, outside Cpvl, improved & 1 acre or less |
| CF | Conservation Futures | 0.0313996660 | $450 | $0 | $0.00 | | |
| CEM2 | Cemetery #2 | 0.0092609791 | $450 | $0 | $0.00 | | |
| FIRE5 | Fire & Rescue Dist #5 C Whidbey GEN | 1.1892169230 | $450 | $0 | $0.00 | | |
| FIRE5BOND | Fire & Rescue Dist #5 C Whidbey BOND | 0.1394359503 | $450 | $0 | $0.00 | | |
| HOBOND | Hospital BOND | 0.1893405597 | $450 | $0 | $0.00 | | |
| HOGEN | Hospital GEN | 0.3848777722 | $450 | $0 | $0.00 | | |
| CE | County Current Expense | 0.3674210519 | $450 | $0 | $0.00 | | |
| CR | County Roads | 0.4614296361 | $450 | $0 | $0.00 | | |
| ISLANDEMS | Hospital GEN (EMS) | 0.4952018576 | $450 | $0 | $0.00 | | |
| LIB | Library Sno-Isle GEN | 0.3039084203 | $450 | $0 | $0.00 | | |
| LIBCAP | Library Sno-Isle BOND (Cap Fac Imp Area) | 0.0528562629 | $450 | $0 | $0.00 | | |
| POCOUP | Port of Coupeville GEN | 0.1065226063 | $450 | $0 | $0.00 | | |
| POCOUPIDD | Port of Coupeville IDD | 0.3353038577 | $450 | $0 | $0.00 | | |
| COUPSDTECH | School 204 CP (TECH) | 0.1215123397 | $450 | $0 | $0.00 | | |
| SCH204MO | School 204 Enrichment | 0.6416662518 | $450 | $0 | $0.00 | | |
| ST | State School | 1.4761226122 | $450 | $0 | $0.00 | | |
| ST2 | State School Part 2 | 0.7953803475 | $450 | $0 | $0.00 | | |
| | Total Tax Rate: | 7.1008570943 | | | | | |
| | | | | Taxes w/Current Exemptions: | $0.00 | | |
| | | | | Taxes w/o Exemptions: | $3.19 | | |
Improvement / Building
Sketch
| No sketches available for this property. |
Property Image
Land
| 1 | 53 | CRITICAL AREAS | 28.0000 | 1219680.00 | 0.00 | 0.00 | 1.00 | $450 | $0 |
Roll Value History
| 2026 | N/A | N/A | N/A | N/A | N/A |
| 2025 | $0 | $450 | $0 | $450 | $0 |
| 2024 | $0 | $50 | $0 | $50 | $0 |
| 2023 | $0 | $50 | $0 | $50 | $0 |
| 2022 | $0 | $50 | $0 | $50 | $0 |
| 2021 | $0 | $50 | $0 | $50 | $0 |
| 2020 | $0 | $50 | $0 | $50 | $0 |
| 2019 | $0 | $50 | $0 | $50 | $0 |
| 2018 | $0 | $1,057 | $0 | $1,057 | $1,057 |
| 2017 | $0 | $1,057 | $0 | $1,057 | $1,057 |
| 2016 | $0 | $1,057 | $0 | $1,057 | $1,057 |
| 2015 | $0 | $1,057 | $0 | $1,057 | $1,057 |
| 2014 | $0 | $1,057 | $0 | $1,057 | $1,057 |
| 2013 | $0 | $1,057 | $0 | $1,057 | $1,057 |
| 2012 | $0 | $1,057 | $0 | $1,057 | $1,057 |
| 2011 | $0 | $1,244 | $0 | $1,244 | $1,244 |
| 2010 | $0 | $1,244 | $0 | $1,244 | $1,244 |
| 2009 | $0 | $1,244 | $0 | $1,244 | $1,244 |
| 2008 | $0 | $1,244 | $0 | $1,244 | $1,244 |
| 2007 | $0 | $1,244 | $0 | $1,244 | $1,244 |
Deed and Sales History
| 1 | 11/10/2023 | QCD | Quit Claim Deed | LEE TTEE, DON H | DIRKSE, MICHELLE | | | $0.00 | 58637 | 4567166 |
| 2 | 07/17/2020 | PRD | Personal Representatives Deed | LEE, DONALD | LEE TTEE, DON H | | | $0.00 | 43877 | 4491686 |
| 3 | 02/22/2019 | OTHER | Other - Misc. Documents | LEE, DONALD & ANN | LEE, DONALD | | | | 87979 | |
| 4 | 09/01/1997 | QCD | Quit Claim Deed | DAVIS, FREDERICK W | LEE, DONALD & | | | $0.00 | 73362 | 97015873 |
| 5 | 04/01/1997 | WD | Warranty Deed | KELLEMS, VAN G | DAVIS, FREDERICK W | | | $1,200.00 | 71311 | 97005935 |
| 6 | 01/01/1900 | OTHER | Other - Misc. Documents | Unknown | KELLEMS, VAN G | | | $0.00 | 44275 | 94022092 |
Payout Agreement
| No payout information available.. |