Property
Account |
| Property ID: | 757531 | Abbreviated Legal Description: | BEACHCOMBERS 5 LOT 1 |
| Geographic ID: | S6095-05-00001-0 | Agent Code: | |
| Type: | Real | | |
| Tax Area: | 310 - APPRAISER-Cpvl Schl Dist, outside Cpvl, improved & 1 acre or less | Land Use Code | 11 |
| Open Space: | N | DFL | N |
| Historic Property: | N | Remodel Property: | N |
| Multi-Family Redevelopment: | N | | |
| Township: | | Section: | |
| Range: | |
Location |
| Address: | 916 CUTHBERT DR GREENBANK, WA 98253 | Mapsco: | |
| Neighborhood: | Cycle 2 | Map ID: | 530 |
| Neighborhood CD: | 2 |
Owner |
| Name: | O'BANION, CHARLES | Owner ID: | 312625 |
| Mailing Address: | 916 CUTHBERT DR GREENBANK, WA 98253 | % Ownership: | 100.0000000000% |
| | | Exemptions: | |
Taxes and Assessment Details
Values
| (+) Improvement Homesite Value: | + | N/A | |
| (+) Improvement Non-Homesite Value: | + | N/A | |
| (+) Land Homesite Value: | + | N/A | |
| (+) Land Non-Homesite Value: | + | N/A | Ag / Timber Use Value |
| (+) Curr Use (HS): | + | N/A | N/A |
| (+) Curr Use (NHS): | + | N/A | N/A |
| | | -------------------------- | |
| (=) Market Value: | = | N/A | |
| (–) Productivity Loss: | – | N/A | |
| | | -------------------------- | |
| (=) Subtotal: | = | N/A | |
| (+) Senior Appraised Value: | + | N/A | |
| (+) Non-Senior Appraised Value: | + | N/A | |
| | | -------------------------- | |
| (=) Total Appraised Value: | = | N/A | |
| (–) Senior Exemption Loss: | – | N/A | |
| (–) Exemption Loss: | – | N/A | |
| | | -------------------------- | |
| (=) Taxable Value: | = | N/A | |
Taxing Jurisdiction
| Owner: | O'BANION, CHARLES | | |
| % Ownership: | 100.0000000000% | | |
| Total Value: | N/A | | |
| Tax Area: | 310 - APPRAISER-Cpvl Schl Dist, outside Cpvl, improved & 1 acre or less |
| CF | Conservation Futures | N/A | N/A | N/A | N/A | | |
| WCD | Whidbey Conservation District | N/A | N/A | N/A | N/A | | |
| CEM2 | Cemetery #2 | N/A | N/A | N/A | N/A | | |
| FIRE5 | Fire & Rescue Dist #5 C Whidbey GEN | N/A | N/A | N/A | N/A | | |
| FIRE5BOND | Fire & Rescue Dist #5 C Whidbey BOND | N/A | N/A | N/A | N/A | | |
| HOBOND | Hospital BOND | N/A | N/A | N/A | N/A | | |
| HOGEN | Hospital GEN | N/A | N/A | N/A | N/A | | |
| CE | County Current Expense | N/A | N/A | N/A | N/A | | |
| CR | County Roads | N/A | N/A | N/A | N/A | | |
| ISLANDEMS | Hospital GEN (EMS) | N/A | N/A | N/A | N/A | | |
| LIB | Library Sno-Isle GEN | N/A | N/A | N/A | N/A | | |
| LIBCAP | Library Sno-Isle BOND (Cap Fac Imp Area) | N/A | N/A | N/A | N/A | | |
| POCOUP | Port of Coupeville GEN | N/A | N/A | N/A | N/A | | |
| COUPSDTECH | School 204 CP (TECH) | N/A | N/A | N/A | N/A | | |
| SCH204MO | School 204 Enrichment | N/A | N/A | N/A | N/A | | |
| ST | State School | N/A | N/A | N/A | N/A | | |
| ST2 | State School Part 2 | N/A | N/A | N/A | N/A | | |
| | Total Tax Rate: | N/A | | | | | |
| | | | | Taxes w/Current Exemptions: | N/A | | |
| | | | | Taxes w/o Exemptions: | N/A | | |
Improvement / Building
| Improvement #1: | RESIDENTIAL | State Code: | Y | 0.0 sqft | Value: | N/A |
Sketch
Property Image
Land
| 1 | 13 | SQ (06001-08000) | 0.1770 | 7710.12 | 0.00 | 0.00 | 1.00 | N/A | N/A |
Roll Value History
| 2026 | N/A | N/A | N/A | N/A | N/A |
| 2025 | $10,725 | $200,000 | $0 | $210,725 | $210,725 |
| 2024 | $20,160 | $180,000 | $0 | $200,160 | $200,160 |
| 2023 | $20,160 | $180,000 | $0 | $200,160 | $200,160 |
| 2022 | $20,160 | $170,000 | $0 | $190,160 | $70,064 |
| 2021 | $20,160 | $130,000 | $0 | $150,160 | $60,064 |
| 2020 | $20,160 | $120,000 | $0 | $140,160 | $56,064 |
| 2019 | $20,160 | $155,000 | $0 | $175,160 | $70,064 |
| 2018 | $15,098 | $135,000 | $0 | $150,098 | $150,098 |
| 2017 | $15,098 | $100,000 | $0 | $115,098 | $115,098 |
| 2016 | $15,098 | $90,000 | $0 | $105,098 | $105,098 |
| 2015 | $15,098 | $95,000 | $0 | $110,098 | $110,098 |
| 2014 | $15,098 | $95,000 | $0 | $110,098 | $110,098 |
| 2013 | $15,098 | $85,000 | $0 | $100,098 | $100,098 |
| 2012 | $15,328 | $36,575 | $0 | $51,903 | $51,903 |
| 2011 | $15,328 | $38,500 | $0 | $53,828 | $53,828 |
| 2010 | $15,952 | $38,500 | $0 | $54,452 | $0 |
| 2009 | $16,355 | $54,700 | $0 | $71,055 | $0 |
| 2008 | $16,761 | $26,135 | $0 | $42,896 | $0 |
| 2007 | $11,740 | $31,741 | $0 | $43,481 | $0 |
Deed and Sales History
| 1 | 06/03/2024 | WD | Warranty Deed | CUTHBERT, VICKIE LEE | O'BANION, CHARLES | | | $160,000.00 | 60187 | 4573064 |
|   | |
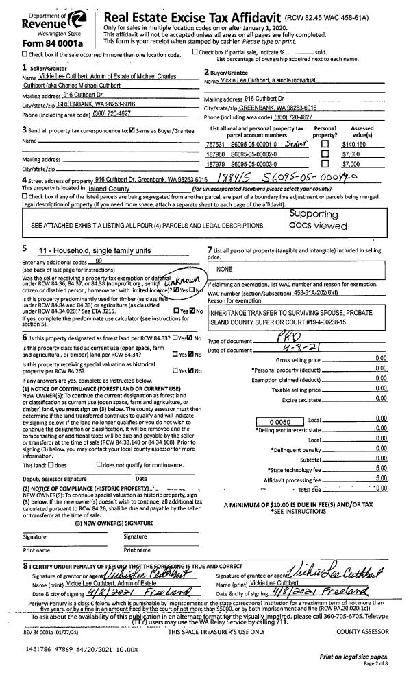
| 2 | 04/20/2021 | PRD | Personal Representatives Deed | CUTHBERT, MIKE | CUTHBERT, VICKIE LEE | | | $0.00 | 47869 | 4516998 |
| 3 | 03/01/1995 | WD | Warranty Deed | DAUBENSCHMIDT, THOMAS A | CUTHBERT, MIKE | | | $0.00 | 50716 | 95003322 |
| 4 | 02/01/1995 | QCD | Quit Claim Deed | JONES, LON E | DAUBENSCHMIDT, THOMAS A | | | $32,000.00 | 50715 | 95003321 |
| 5 | 07/01/1993 | WD | Warranty Deed | HOLMBERG, CARL M | JONES, LON E | | | $26,000.00 | 32949 | 93015191 |
| 6 | 03/01/1986 | WD | Warranty Deed | DIETERLE, MARGARET A | HOLMBERG, CARL M | | | $10,300.00 | 60660 | 86003188 |
| 7 | 12/01/1983 | QCD | Quit Claim Deed | DAVIES, DION D | DIETERLE, MARGARET A | | | $0.00 | 33637 | 418663 |
| 8 | 05/01/1982 | EXECUTORD | Executor Deed | DIETERLE, MARGARET | DAVIES, DION D | | | $17,500.00 | 21181 | 396466 |
| 9 | 01/01/1900 | OTHER | Other - Misc. Documents | Unknown | DIETERLE, MARGARET | | | $0.00 | 0 | 0 |
Payout Agreement
| No payout information available.. |