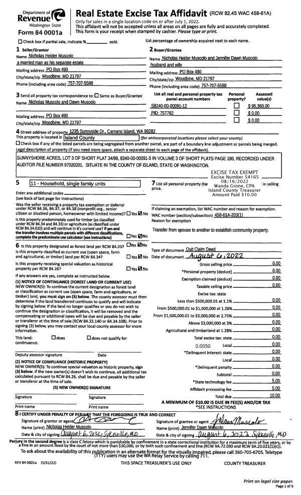
Property
Account |
| Property ID: | 757782 | Abbreviated Legal Description: | SUNNY SH AC LOT 3 SP 34-96.8240.00.00091-5 V3 SP P180 AF#97020201 |
| Geographic ID: | S8240-00-00091-12 | Agent Code: | |
| Type: | Real | | |
| Tax Area: | 540 - APPRAISER-Stan/Cam Schl Dist, Special Dist, improved & less than 1 acre | Land Use Code | 11 |
| Open Space: | N | DFL | N |
| Historic Property: | N | Remodel Property: | N |
| Multi-Family Redevelopment: | N | | |
| Township: | | Section: | |
| Range: | |
Location |
| Address: | 1235 SUNNYSHORE DR CAMANO ISLAND, WA 98282 | Mapsco: | |
| Neighborhood: | Cycle 5 | Map ID: | 865 |
| Neighborhood CD: | 5 |
Owner |
| Name: | MUSCOLO, NICHOLAS HEIDER | Owner ID: | 269347 |
| Mailing Address: | JENNIFER DAWN MUSCOLO PO BOX 217 STANWOOD, WA 98292 | % Ownership: | 100.0000000000% |
| | | Exemptions: | |
Taxes and Assessment Details
Values
| (+) Improvement Homesite Value: | + | $0 | |
| (+) Improvement Non-Homesite Value: | + | $462,756 | |
| (+) Land Homesite Value: | + | $0 | |
| (+) Land Non-Homesite Value: | + | $230,000 | |
| (+) Curr Use (HS): | + | $0 | $0 |
| (+) Curr Use (NHS): | + | $0 | $0 |
| | | -------------------------- | |
| (=) Market Value: | = | $692,756 | |
| (–) Productivity Loss: | – | $0 | |
| | | -------------------------- | |
| (=) Subtotal: | = | $692,756 | |
| (+) Senior Appraised Value: | + | $0 | |
| (+) Non-Senior Appraised Value: | + | $692,756 | |
| | | -------------------------- | |
| (=) Total Appraised Value: | = | $692,756 | |
| (–) Senior Exemption Loss: | – | $0 | |
| (–) Exemption Loss: | – | $0 | |
| | | -------------------------- | |
| (=) Taxable Value: | = | $692,756 | |
Taxing Jurisdiction
| Owner: | MUSCOLO, NICHOLAS HEIDER | | |
| % Ownership: | 100.0000000000% | | |
| Total Value: | $692,756 | | |
| Tax Area: | 540 - APPRAISER-Stan/Cam Schl Dist, Special Dist, improved & less than 1 acre |
| CF | Conservation Futures | 0.0313996660 | $692,756 | $692,756 | $21.75 | | |
| EMS1 | Fire & Rescue Dist #1 Camano GEN (EMS) | 0.4998471806 | $692,756 | $692,756 | $346.27 | | |
| FIRE1 | Fire & Rescue Dist #1 Camano GEN | 1.2496603404 | $692,756 | $692,756 | $865.71 | | |
| FIRE1BOND | Fire & Rescue Dist #1 Camano BOND | 0.1630371212 | $692,756 | $692,756 | $112.94 | | |
| CE | County Current Expense | 0.3674210519 | $692,756 | $692,756 | $254.53 | | |
| CR | County Roads | 0.4614296361 | $692,756 | $692,756 | $319.66 | | |
| LIB | Library Sno-Isle GEN | 0.3039084203 | $692,756 | $692,756 | $210.53 | | |
| SCH205_401 | School 205-401 Enrichment | 1.3697998934 | $692,756 | $692,756 | $948.94 | | |
| SCH205BOND | School 205-401 BOND | 0.9354199323 | $692,756 | $692,756 | $648.02 | | |
| ST | State School | 1.4761226122 | $692,756 | $692,756 | $1,022.59 | | |
| ST2 | State School Part 2 | 0.7953803475 | $692,756 | $692,756 | $551.00 | | |
| | Total Tax Rate: | 7.6534262019 | | | | | |
| | | | | Taxes w/Current Exemptions: | $5,301.94 | | |
| | | | | Taxes w/o Exemptions: | $5,301.94 | | |
Improvement / Building
| Improvement #1: | RESIDENTIAL | State Code: | Y | 2410.1 sqft | Value: | $462,756 |
| Bathrooms: | 2.5 | Bedrooms: | 3 | | Ceiling: | DRYWALL PAINTED | Cooling: | HEAT PUMP/CONV/V | | Exterior Wall/Cover: | CEMENT FIBER | Floor Covering: | VINYL TILE | | Floor Structure: | WOOD W/SUBFLOOR | Foundation: | CONCRETE | | Interior Finish: | DRYWALL PAINT | Plumbing Fixture Cnt: | 12 | | Roof Slope: | 6" IN 12" | Roof Structure/Cover: | CJ ASPHALT |
|
| | Type | Description | Class CD | Sub Class CD | Year Built | Area |
| | BAS | BASE/MAIN FLOOR | 3 | 0 | 2023 | 2410.1 |
| | AGR | ATTACHED GARAGE | 3 | 0 | 2023 | 800.0 |
| | OWP | OPEN WOOD PORCH W/STEPS | 3 | 0 | 2023 | 672.0 |
| | OWC | OPEN WOOD PORCH W/STEPS/ROOF/C | 3 | 0 | 2023 | 71.9 |
| | DGR | DETACHED GARAGE | 3 | 0 | 2023 | 768.0 |
Sketch
Property Image
Land
| 1 | 16 | AC (00.51-01.00) | 1.0000 | 43560.00 | 0.00 | 0.00 | 1.00 | $230,000 | $0 |
Roll Value History
| 2026 | N/A | N/A | N/A | N/A | N/A |
| 2025 | $462,756 | $230,000 | $0 | $692,756 | $692,756 |
| 2024 | $470,890 | $220,000 | $0 | $690,890 | $690,890 |
| 2023 | $133,297 | $90,000 | $0 | $223,297 | $223,297 |
| 2022 | $15,360 | $80,000 | $0 | $95,360 | $95,360 |
| 2021 | $15,360 | $70,000 | $0 | $85,360 | $85,360 |
| 2020 | $15,360 | $70,000 | $0 | $85,360 | $85,360 |
| 2019 | $15,360 | $65,000 | $0 | $80,360 | $80,360 |
| 2018 | $15,360 | $65,000 | $0 | $80,360 | $80,360 |
| 2017 | $15,360 | $30,000 | $0 | $45,360 | $45,360 |
| 2016 | $0 | $30,000 | $0 | $30,000 | $30,000 |
| 2015 | $0 | $45,000 | $0 | $45,000 | $45,000 |
| 2014 | $0 | $45,000 | $0 | $45,000 | $45,000 |
| 2013 | $0 | $53,120 | $0 | $53,120 | $53,120 |
| 2012 | $0 | $53,120 | $0 | $53,120 | $53,120 |
| 2011 | $0 | $53,120 | $0 | $53,120 | $53,120 |
| 2010 | $0 | $53,120 | $0 | $53,120 | $53,120 |
| 2009 | $0 | $86,400 | $0 | $86,400 | $86,400 |
| 2008 | $0 | $71,280 | $0 | $71,280 | $71,280 |
| 2007 | $0 | $75,000 | $0 | $75,000 | $75,000 |
Deed and Sales History
| 1 | 08/06/2022 | QCD | Quit Claim Deed | MUSCOLO, NICHOLAS HEIDER | MUSCOLO, NICHOLAS HEIDER | | | $0.00 | 54165 | 4549711 |
| 2 | 01/21/2015 | QCD | Quit Claim Deed | MUSCOLO, VINCENT E | MUSCOLO, NICHOLAS HEIDER | | | $0.00 | 18626 | 4374063 |
Payout Agreement
| No payout information available.. |