Property
Account |
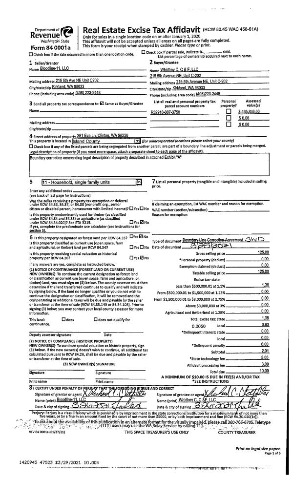
| Property ID: | 757853 | Abbreviated Legal Description: | 5.1600 Acres ins Section 18s Township 29s Range R3s LOT E BLC AF#4514873;s |
| Geographic ID: | R32918-087-3750 | Agent Code: | |
| Type: | Real | | |
| Tax Area: | 812 - APPRAISER-S Whid Schl Dist, outside Langley, improved, greater than 1 acre | Land Use Code | 11 |
| Open Space: | N | DFL | N |
| Historic Property: | N | Remodel Property: | N |
| Multi-Family Redevelopment: | N | | |
| Township: | 29 | Section: | 18 |
| Range: | R3 |
Location |
| Address: | 2691 EVA LN CLINTON, WA 98236 | Mapsco: | |
| Neighborhood: | Cycle 4 | Map ID: | 784 |
| Neighborhood CD: | 4 |
Owner |
| Name: | WHIDBEY C, C & F LLC | Owner ID: | 273114 |
| Mailing Address: | 215 5th AV NE UNIT C-202 KIRKLAND, WA 98033 | % Ownership: | 100.0000000000% |
| | | Exemptions: | |
Taxes and Assessment Details
Values
| (+) Improvement Homesite Value: | + | $0 | |
| (+) Improvement Non-Homesite Value: | + | $296,473 | |
| (+) Land Homesite Value: | + | $0 | |
| (+) Land Non-Homesite Value: | + | $420,000 | |
| (+) Curr Use (HS): | + | $0 | $0 |
| (+) Curr Use (NHS): | + | $0 | $0 |
| | | -------------------------- | |
| (=) Market Value: | = | $716,473 | |
| (–) Productivity Loss: | – | $0 | |
| | | -------------------------- | |
| (=) Subtotal: | = | $716,473 | |
| (+) Senior Appraised Value: | + | $0 | |
| (+) Non-Senior Appraised Value: | + | $716,473 | |
| | | -------------------------- | |
| (=) Total Appraised Value: | = | $716,473 | |
| (–) Senior Exemption Loss: | – | $0 | |
| (–) Exemption Loss: | – | $0 | |
| | | -------------------------- | |
| (=) Taxable Value: | = | $716,473 | |
Taxing Jurisdiction
| Owner: | WHIDBEY C, C & F LLC | | |
| % Ownership: | 100.0000000000% | | |
| Total Value: | $716,473 | | |
| Tax Area: | 812 - APPRAISER-S Whid Schl Dist, outside Langley, improved, greater than 1 acre |
| CF | Conservation Futures | 0.0313996660 | $716,473 | $716,473 | $22.50 | | |
| FIRE3 | Fire & Rescue Dist #3 S Whidbey GEN | 1.2130821753 | $716,473 | $716,473 | $869.14 | | |
| HOBOND | Hospital BOND | 0.1893405597 | $716,473 | $716,473 | $135.66 | | |
| HOGEN | Hospital GEN | 0.3848777722 | $716,473 | $716,473 | $275.75 | | |
| CE | County Current Expense | 0.3674210519 | $716,473 | $716,473 | $263.25 | | |
| CR | County Roads | 0.4614296361 | $716,473 | $716,473 | $330.60 | | |
| ISLANDEMS | Hospital GEN (EMS) | 0.4952018576 | $716,473 | $716,473 | $354.80 | | |
| LIB | Library Sno-Isle GEN | 0.3039084203 | $716,473 | $716,473 | $217.74 | | |
| PORTWHID | Port of S Whidbey GEN | 0.1086004714 | $716,473 | $716,473 | $77.81 | | |
| SCH206BOND | School 206 BOND | 0.5960237832 | $716,473 | $716,473 | $427.03 | | |
| SCH206CAP | School 206 CP | 0.3066144020 | $716,473 | $716,473 | $219.68 | | |
| SCH206MO | School 206 Enrichment | 0.4808755445 | $716,473 | $716,473 | $344.53 | | |
| ST | State School | 1.4761226122 | $716,473 | $716,473 | $1,057.60 | | |
| ST2 | State School Part 2 | 0.7953803475 | $716,473 | $716,473 | $569.87 | | |
| SWHIDPRBD | P & R S Whidbey BOND | 0.0144185398 | $716,473 | $716,473 | $10.33 | | |
| SWHIDPRBD3 | P & R S Whidbey BOND3 | 0.1483535547 | $716,473 | $716,473 | $106.29 | | |
| SWHIDPRMT | P & R S Whidbey GEN | 0.4600000000 | $716,473 | $716,473 | $329.58 | | |
| | Total Tax Rate: | 7.8330503944 | | | | | |
| | | | | Taxes w/Current Exemptions: | $5,612.16 | | |
| | | | | Taxes w/o Exemptions: | $5,612.16 | | |
Improvement / Building
| Improvement #1: | RESIDENTIAL | State Code: | Y | 1419.0 sqft | Value: | $296,473 |
| Bathrooms: | 2.5 | Bedrooms: | 3 | | Ceiling: | DRY WALL SPRAYED | Cooling: | HEAT PUMP/CONV/V | | Exterior Wall/Cover: | WOOD SIDING | Floor Covering: | VINYL 100% | | Floor Structure: | WOOD W/SUBFLOOR | Foundation: | CONCRETE | | Interior Finish: | DRYWALL PAINT | Plumbing Fixture Cnt: | 11 | | Roof Slope: | 6" IN 12" | Roof Structure/Cover: | CJ ALUMINIUM HEAVY |
|
| | Type | Description | Class CD | Sub Class CD | Year Built | Area |
| | BAS | BASE/MAIN FLOOR | 3 | 0 | 1950 | 1419.0 |
| | UB6 | BASEMENT UNFINISHED 6" | 3 | 0 | 1950 | 650.0 |
| | OP4 | OPEN PORCH W/CEILING-ROOF | 3 | 0 | 1950 | 48.0 |
| | OWC | OPEN WOOD PORCH W/STEPS/ROOF/C | 3 | 0 | 1950 | 278.2 |
| | ENP | ENCLOSED PORCH | 3 | 0 | 1950 | 278.2 |
| | AGR | ATTACHED GARAGE | 3 | 0 | 1950 | 480.0 |
Sketch
Property Image
Land
| 1 | 32 | AC (03.01-09.99) | 5.0000 | 217800.00 | 0.00 | 0.00 | 1.00 | $420,000 | $0 |
Roll Value History
| 2026 | N/A | N/A | N/A | N/A | N/A |
| 2025 | $296,473 | $420,000 | $0 | $716,473 | $716,473 |
| 2024 | $300,576 | $390,000 | $0 | $690,576 | $690,576 |
| 2023 | $304,680 | $350,000 | $0 | $654,680 | $654,680 |
| 2022 | $279,598 | $350,000 | $0 | $629,598 | $629,598 |
| 2021 | $246,363 | $300,000 | $0 | $546,363 | $546,363 |
| 2020 | $205,836 | $260,000 | $0 | $465,836 | $465,836 |
| 2019 | $146,917 | $300,000 | $0 | $446,917 | $446,917 |
| 2018 | $147,463 | $250,000 | $0 | $397,463 | $397,463 |
| 2017 | $139,293 | $200,000 | $0 | $339,293 | $339,293 |
| 2016 | $116,417 | $165,000 | $0 | $281,417 | $281,417 |
| 2015 | $80,751 | $165,000 | $0 | $245,751 | $245,751 |
| 2014 | $150,520 | $225,000 | $0 | $375,520 | $375,520 |
| 2013 | $152,675 | $138,060 | $0 | $290,735 | $290,735 |
| 2012 | $154,828 | $135,000 | $1,877 | $156,705 | $156,705 |
| 2011 | $156,984 | $203,060 | $1,877 | $158,861 | $158,861 |
| 2010 | $175,923 | $203,060 | $1,877 | $177,800 | $177,800 |
| 2009 | $182,572 | $254,937 | $1,877 | $437,509 | $437,509 |
| 2008 | $186,278 | $249,937 | $1,877 | $436,215 | $436,215 |
| 2007 | $189,612 | $204,687 | $1,877 | $394,299 | $394,299 |
Deed and Sales History
| 1 | 03/25/2021 | WD | Warranty Deed | BLOODLINE-11, LLC | WHIDBEY C, C & F LLC | | | $125.00 | 47523 | |
| 2 | 12/11/2015 | CHGOFIDENT | DNU - Change In Identity | CLOTFELTER, RICHARD C | WHIDBEY C, C & F LLC | | | $0.00 | 22470 | 4391030 |
| 3 | 12/29/2014 | SPWARDEED | Special Warranty Deed | GABELEIN, EVA MAE | CLOTFELTER, RICHARD C | | | $360,000.00 | 18052 | 4370891 |
| 4 | 02/21/2005 | QCD | Quit Claim Deed | GABELEIN, RAYMOND A | GABELEIN, EVA MAE | | | $0.00 | 53212 | 4139877 |
| 5 | 01/01/1900 | OTHER | Other - Misc. Documents | Unknown | GABELEIN, RAYMOND A | | | $0.00 | 0 | 0 |
Payout Agreement
| No payout information available.. |