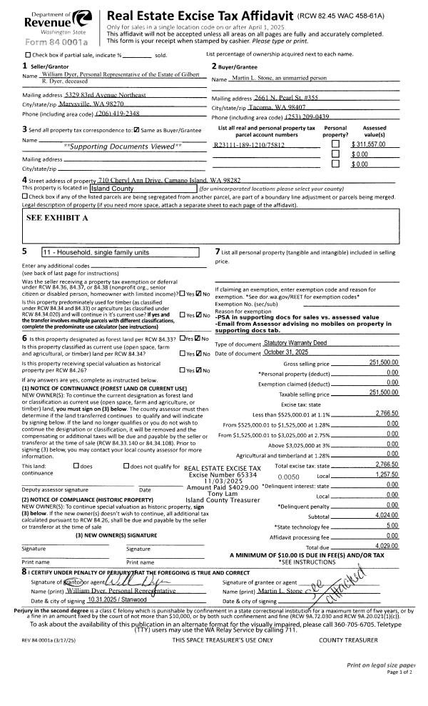
Property
Account |
| Property ID: | 75812 | Abbreviated Legal Description: | 77 - NE SE NW SW EX W30' TO IS CO AF#204441 |
| Geographic ID: | R23111-189-1210 | Agent Code: | |
| Type: | Real | | |
| Tax Area: | 512 - APPRAISER-Stan/Cam Schl Dist, improved, greater than 1 acre | Land Use Code | 11 |
| Open Space: | N | DFL | N |
| Historic Property: | N | Remodel Property: | N |
| Multi-Family Redevelopment: | N | | |
| Township: | 31 | Section: | 11 |
| Range: | R2 |
Location |
| Address: | 710 CHERYL ANN DR CAMANO ISLAND, WA 98282 | Mapsco: | |
| Neighborhood: | Cycle 5 | Map ID: | 469 |
| Neighborhood CD: | 5 |
Owner |
| Name: | DYER, GILBERT R | Owner ID: | 188834 |
| Mailing Address: | 5329 83RD AVE NE MARYSVILLE, WA 98270 | % Ownership: | 100.0000000000% |
| | | Exemptions: | |
Taxes and Assessment Details
Values
| (+) Improvement Homesite Value: | + | $0 | |
| (+) Improvement Non-Homesite Value: | + | $4,000 | |
| (+) Land Homesite Value: | + | $0 | |
| (+) Land Non-Homesite Value: | + | $170,000 | |
| (+) Curr Use (HS): | + | $0 | $0 |
| (+) Curr Use (NHS): | + | $0 | $0 |
| | | -------------------------- | |
| (=) Market Value: | = | $174,000 | |
| (–) Productivity Loss: | – | $0 | |
| | | -------------------------- | |
| (=) Subtotal: | = | $174,000 | |
| (+) Senior Appraised Value: | + | $0 | |
| (+) Non-Senior Appraised Value: | + | $174,000 | |
| | | -------------------------- | |
| (=) Total Appraised Value: | = | $174,000 | |
| (–) Senior Exemption Loss: | – | $0 | |
| (–) Exemption Loss: | – | $0 | |
| | | -------------------------- | |
| (=) Taxable Value: | = | $174,000 | |
Taxing Jurisdiction
| Owner: | DYER, GILBERT R | | |
| % Ownership: | 100.0000000000% | | |
| Total Value: | $174,000 | | |
| Tax Area: | 512 - APPRAISER-Stan/Cam Schl Dist, improved, greater than 1 acre |
| CF | Conservation Futures | 0.0313996660 | $174,000 | $174,000 | $5.46 | | |
| EMS1 | Fire & Rescue Dist #1 Camano GEN (EMS) | 0.4998471806 | $174,000 | $174,000 | $86.97 | | |
| FIRE1 | Fire & Rescue Dist #1 Camano GEN | 1.2496603404 | $174,000 | $174,000 | $217.44 | | |
| FIRE1BOND | Fire & Rescue Dist #1 Camano BOND | 0.1630371212 | $174,000 | $174,000 | $28.37 | | |
| CE | County Current Expense | 0.3674210519 | $174,000 | $174,000 | $63.93 | | |
| CR | County Roads | 0.4614296361 | $174,000 | $174,000 | $80.29 | | |
| LIB | Library Sno-Isle GEN | 0.3039084203 | $174,000 | $174,000 | $52.88 | | |
| SCH205_401 | School 205-401 Enrichment | 1.3697998934 | $174,000 | $174,000 | $238.35 | | |
| SCH205BOND | School 205-401 BOND | 0.9354199323 | $174,000 | $174,000 | $162.76 | | |
| ST | State School | 1.4761226122 | $174,000 | $174,000 | $256.85 | | |
| ST2 | State School Part 2 | 0.7953803475 | $174,000 | $174,000 | $138.40 | | |
| | Total Tax Rate: | 7.6534262019 | | | | | |
| | | | | Taxes w/Current Exemptions: | $1,331.70 | | |
| | | | | Taxes w/o Exemptions: | $1,331.70 | | |
Improvement / Building
| Improvement #1: | RESIDENTIAL | State Code: | Y | 0.0 sqft | Value: | $4,000 |
Sketch
| No sketches available for this property. |
Property Image
Land
| 1 | 18 | AC (02.01-03.00) | 2.2700 | 98881.20 | 0.00 | 0.00 | 1.00 | $170,000 | $0 |
Roll Value History
| 2026 | N/A | N/A | N/A | N/A | N/A |
| 2025 | $4,000 | $170,000 | $0 | $174,000 | $174,000 |
| 2024 | $11,876 | $280,000 | $0 | $291,876 | $291,876 |
| 2023 | $12,007 | $270,000 | $0 | $282,007 | $282,007 |
| 2022 | $11,469 | $260,000 | $0 | $271,469 | $271,469 |
| 2021 | $10,745 | $180,000 | $0 | $190,745 | $190,745 |
| 2020 | $10,803 | $150,000 | $0 | $160,803 | $160,803 |
| 2019 | $9,099 | $200,000 | $0 | $209,099 | $209,099 |
| 2018 | $9,586 | $150,000 | $0 | $159,586 | $159,586 |
| 2017 | $10,366 | $135,000 | $0 | $145,366 | $145,366 |
| 2016 | $10,853 | $140,000 | $0 | $150,853 | $150,853 |
| 2015 | $10,893 | $59,408 | $0 | $70,301 | $70,301 |
| 2014 | $10,940 | $59,408 | $0 | $70,348 | $70,348 |
| 2013 | $10,988 | $59,408 | $0 | $70,396 | $70,396 |
| 2012 | $11,035 | $59,408 | $0 | $70,443 | $70,443 |
| 2011 | $11,083 | $74,260 | $0 | $85,343 | $85,343 |
| 2010 | $11,292 | $74,260 | $0 | $85,552 | $85,552 |
| 2009 | $15,177 | $122,500 | $0 | $137,677 | $137,677 |
| 2008 | $15,256 | $117,735 | $0 | $132,991 | $132,991 |
| 2007 | $15,384 | $117,735 | $0 | $133,119 | $133,119 |
Deed and Sales History
| 1 | 10/31/2025 | WD | Warranty Deed | DYER, GILBERT R | STONE, MARTIN L | | | $251,500.00 | 65334 | 4592988 |
| 2 | 10/01/1995 | OTHER | Other - Misc. Documents | DYER, GILBERT R | DYER, GILBERT R | | | $0.00 | 66682 | 204441 |
| 3 | 01/01/1900 | OTHER | Other - Misc. Documents | DYER, GILBERT R | DYER, GILBERT R | | | $0.00 | 0 | 0 |
| 4 | 01/01/1900 | OTHER | Other - Misc. Documents | DYER, GILBERT R | DYER, GILBERT R | | | $0.00 | 0 | 0 |
| 5 | 01/01/1900 | OTHER | Other - Misc. Documents | Unknown | DYER, GILBERT R | | | $0.00 | 0 | 0 |
Payout Agreement
| No payout information available.. |