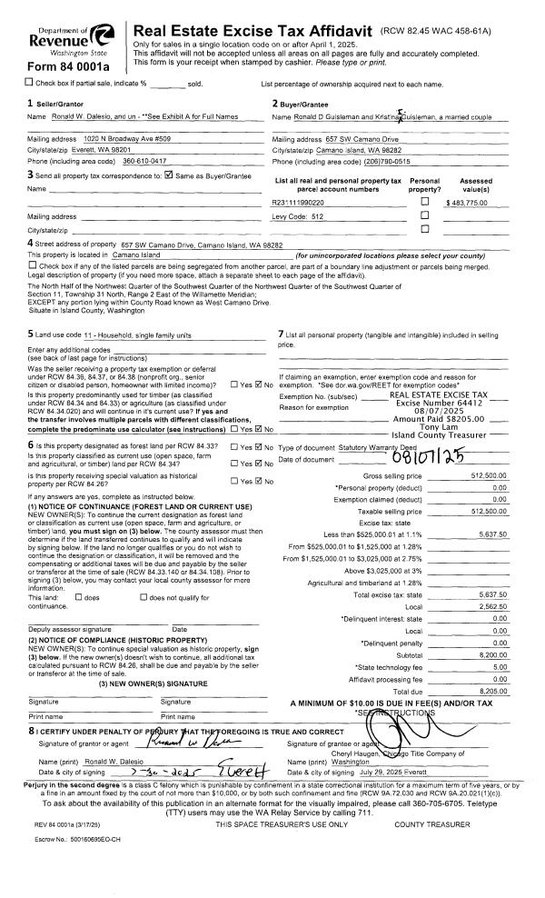
Property
Account |
| Property ID: | 75876 | Abbreviated Legal Description: | 72 - N/2 NW SW NW SW EX RD & SUBJ TO EZ W30' |
| Geographic ID: | R23111-199-0220 | Agent Code: | |
| Type: | Real | | |
| Tax Area: | 512 - APPRAISER-Stan/Cam Schl Dist, improved, greater than 1 acre | Land Use Code | 11 |
| Open Space: | N | DFL | N |
| Historic Property: | N | Remodel Property: | N |
| Multi-Family Redevelopment: | N | | |
| Township: | 31 | Section: | 11 |
| Range: | R2 |
Location |
| Address: | 657 S WEST CAMANO DR CAMANO ISLAND, WA 98282 | Mapsco: | |
| Neighborhood: | Cycle 5 | Map ID: | 469 |
| Neighborhood CD: | 5 |
Owner |
| Name: | DALESIO, RONALD | Owner ID: | 3388 |
| Mailing Address: | PATRICIA A OETJENS 1020 N BROADWAY #509 EVERETT, WA 98201 | % Ownership: | 100.0000000000% |
| | | Exemptions: | |
Taxes and Assessment Details
Values
| (+) Improvement Homesite Value: | + | $0 | |
| (+) Improvement Non-Homesite Value: | + | $223,775 | |
| (+) Land Homesite Value: | + | $0 | |
| (+) Land Non-Homesite Value: | + | $260,000 | |
| (+) Curr Use (HS): | + | $0 | $0 |
| (+) Curr Use (NHS): | + | $0 | $0 |
| | | -------------------------- | |
| (=) Market Value: | = | $483,775 | |
| (–) Productivity Loss: | – | $0 | |
| | | -------------------------- | |
| (=) Subtotal: | = | $483,775 | |
| (+) Senior Appraised Value: | + | $0 | |
| (+) Non-Senior Appraised Value: | + | $483,775 | |
| | | -------------------------- | |
| (=) Total Appraised Value: | = | $483,775 | |
| (–) Senior Exemption Loss: | – | $0 | |
| (–) Exemption Loss: | – | $0 | |
| | | -------------------------- | |
| (=) Taxable Value: | = | $483,775 | |
Taxing Jurisdiction
| Owner: | DALESIO, RONALD | | |
| % Ownership: | 100.0000000000% | | |
| Total Value: | $483,775 | | |
| Tax Area: | 512 - APPRAISER-Stan/Cam Schl Dist, improved, greater than 1 acre |
| CF | Conservation Futures | 0.0313996660 | $483,775 | $483,775 | $15.19 | | |
| EMS1 | Fire & Rescue Dist #1 Camano GEN (EMS) | 0.4998471806 | $483,775 | $483,775 | $241.81 | | |
| FIRE1 | Fire & Rescue Dist #1 Camano GEN | 1.2496603404 | $483,775 | $483,775 | $604.55 | | |
| FIRE1BOND | Fire & Rescue Dist #1 Camano BOND | 0.1630371212 | $483,775 | $483,775 | $78.87 | | |
| CE | County Current Expense | 0.3674210519 | $483,775 | $483,775 | $177.75 | | |
| CR | County Roads | 0.4614296361 | $483,775 | $483,775 | $223.23 | | |
| LIB | Library Sno-Isle GEN | 0.3039084203 | $483,775 | $483,775 | $147.02 | | |
| SCH205_401 | School 205-401 Enrichment | 1.3697998934 | $483,775 | $483,775 | $662.67 | | |
| SCH205BOND | School 205-401 BOND | 0.9354199323 | $483,775 | $483,775 | $452.53 | | |
| ST | State School | 1.4761226122 | $483,775 | $483,775 | $714.11 | | |
| ST2 | State School Part 2 | 0.7953803475 | $483,775 | $483,775 | $384.79 | | |
| | Total Tax Rate: | 7.6534262019 | | | | | |
| | | | | Taxes w/Current Exemptions: | $3,702.52 | | |
| | | | | Taxes w/o Exemptions: | $3,702.52 | | |
Improvement / Building
| Improvement #1: | RESIDENTIAL | State Code: | Y | 1644.0 sqft | Value: | $223,775 |
| Bathrooms: | 1.5 | Bedrooms: | 2 | | Ceiling: | DRYWALL PAINTED | Exterior Wall/Cover: | PLY/HARDBOARD T-111 | | Floor Covering: | CARPET/VINYL 80-20 | Floor Structure: | WOOD W/SUBFLOOR | | Foundation: | CONCRETE | Heating: | WALL HEAT ELECTRIC | | Interior Finish: | DRYWALL PAINT | Plumbing Fixture Cnt: | 8 | | Roof Slope: | 4" IN 12" | Roof Structure/Cover: | CJ ASPHALT |
|
| | Type | Description | Class CD | Sub Class CD | Year Built | Area |
| | BAS | BASE/MAIN FLOOR | 3 | 0 | 1993 | 704.0 |
| | UPS | UPPER STORY | 3 | 0 | 1993 | 640.0 |
| | OWC | OPEN WOOD PORCH W/STEPS/ROOF/C | 3 | 0 | 1993 | 120.0 |
| | OWC | OPEN WOOD PORCH W/STEPS/ROOF/C | 3 | 0 | 1993 | 48.0 |
| | UTY | STORAGE/UTILITY | 3 | 0 | 1993 | 320.0 |
| | BAS | BASE/MAIN FLOOR | 3 | 0 | 1993 | 300.0 |
Sketch
Property Image
Land
| 1 | 17 | AC (01.01-02.00) | 1.1700 | 50965.20 | 0.00 | 0.00 | 1.00 | $260,000 | $0 |
Roll Value History
| 2026 | N/A | N/A | N/A | N/A | N/A |
| 2025 | $223,775 | $260,000 | $0 | $483,775 | $483,775 |
| 2024 | $226,671 | $240,000 | $0 | $466,671 | $466,671 |
| 2023 | $229,567 | $230,000 | $0 | $459,567 | $459,567 |
| 2022 | $210,497 | $240,000 | $0 | $450,497 | $450,497 |
| 2021 | $178,264 | $170,000 | $0 | $348,264 | $348,264 |
| 2020 | $174,032 | $150,000 | $0 | $324,032 | $324,032 |
| 2019 | $126,828 | $200,000 | $0 | $326,828 | $326,828 |
| 2018 | $127,227 | $150,000 | $0 | $277,227 | $277,227 |
| 2017 | $128,027 | $135,000 | $0 | $263,027 | $263,027 |
| 2016 | $129,629 | $130,000 | $0 | $259,629 | $259,629 |
| 2015 | $123,179 | $49,200 | $0 | $172,379 | $172,379 |
| 2014 | $124,568 | $49,200 | $0 | $173,768 | $173,768 |
| 2013 | $125,956 | $49,200 | $0 | $175,156 | $175,156 |
| 2012 | $127,345 | $49,200 | $0 | $176,545 | $176,545 |
| 2011 | $128,734 | $61,500 | $0 | $190,234 | $190,234 |
| 2010 | $133,592 | $61,500 | $0 | $195,092 | $195,092 |
| 2009 | $137,902 | $130,000 | $0 | $267,902 | $267,902 |
| 2008 | $139,667 | $87,423 | $0 | $227,090 | $227,090 |
| 2007 | $141,394 | $87,423 | $0 | $228,817 | $228,817 |
Deed and Sales History
| 1 | 08/07/2025 | WD | Warranty Deed | DALESIO, RONALD | GUISLEMAN, RONALD D | | | $512,500.00 | 64412 | 4589313 |
| 2 | 12/14/2009 | OTHER | Other - Misc. Documents | DALESIO, RONALD | DALESIO, RONALD W | | | $0.00 | 81445 | 0 |
| 3 | 08/01/2000 | WD | Warranty Deed | GLENN, DAVID M | DALESIO, RONALD | | | $114,242.00 | 2875 | 20013536 |
| 4 | 07/01/1978 | OTHER | Other - Misc. Documents | Unknown | GLENN, DAVID M | | | $7,400.00 | 83289 | 336097 |
Payout Agreement
| No payout information available.. |