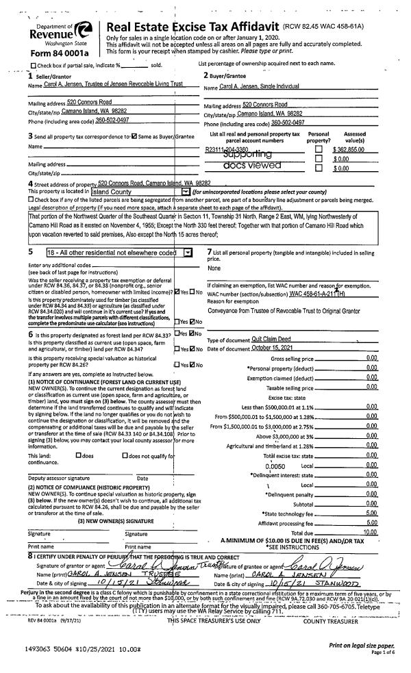
Property
Account |
| Property ID: | 75901 | Abbreviated Legal Description: | 14.0900 Acres ins Section 11s Township 31s Range R2s PARCEL S UNREG SEG AF#4488812;s |
| Geographic ID: | R23111-204-3360 | Agent Code: | |
| Type: | Real | | |
| Tax Area: | 512 - APPRAISER-Stan/Cam Schl Dist, improved, greater than 1 acre | Land Use Code | 11 |
| Open Space: | N | DFL | N |
| Historic Property: | N | Remodel Property: | N |
| Multi-Family Redevelopment: | N | | |
| Township: | 31 | Section: | 11 |
| Range: | R2 |
Location |
| Address: | 520 CONNORS RD CAMANO ISLAND, WA 98282 | Mapsco: | |
| Neighborhood: | Cycle 5 | Map ID: | 470 |
| Neighborhood CD: | 5 |
Owner |
| Name: | JENSEN, CAROL A | Owner ID: | 301710 |
| Mailing Address: | 520 CONNORS RD CAMANO ISLAND, WA 98282 | % Ownership: | 100.0000000000% |
| | | Exemptions: | SNR/DSBL |
Taxes and Assessment Details
Values
| (+) Improvement Homesite Value: | + | $185,874 | |
| (+) Improvement Non-Homesite Value: | + | $0 | |
| (+) Land Homesite Value: | + | $131,299 | |
| (+) Land Non-Homesite Value: | + | $238,701 | |
| (+) Curr Use (HS): | + | $0 | $0 |
| (+) Curr Use (NHS): | + | $0 | $0 |
| | | -------------------------- | |
| (=) Market Value: | = | $555,874 | |
| (–) Productivity Loss: | – | $0 | |
| | | -------------------------- | |
| (=) Subtotal: | = | $555,874 | |
| (+) Senior Appraised Value: | + | $220,925 | |
| (+) Non-Senior Appraised Value: | + | $238,701 | |
| | | -------------------------- | |
| (=) Total Appraised Value: | = | $459,626 | |
| (–) Senior Exemption Loss: | – | $132,555 | |
| (–) Exemption Loss: | – | $0 | |
| | | -------------------------- | |
| (=) Taxable Value: | = | $327,071 | |
Taxing Jurisdiction
| Owner: | JENSEN, CAROL A | | |
| % Ownership: | 100.0000000000% | | |
| Total Value: | $555,874 | | |
| Tax Area: | 512 - APPRAISER-Stan/Cam Schl Dist, improved, greater than 1 acre |
| CF | Conservation Futures | 0.0313996660 | $555,874 | $327,071 | $10.27 | | |
| EMS1 | Fire & Rescue Dist #1 Camano GEN (EMS) | 0.4998471806 | $555,874 | $327,071 | $163.49 | | |
| FIRE1 | Fire & Rescue Dist #1 Camano GEN | 1.2496603404 | $555,874 | $327,071 | $408.73 | | |
| FIRE1BOND | Fire & Rescue Dist #1 Camano BOND | 0.0000000000 | $555,874 | $238,701 | $38.92 | | |
| CE | County Current Expense | 0.3674210519 | $555,874 | $327,071 | $120.17 | | |
| CR | County Roads | 0.4614296361 | $555,874 | $327,071 | $150.92 | | |
| LIB | Library Sno-Isle GEN | 0.3039084203 | $555,874 | $327,071 | $99.40 | | |
| SCH205_401 | School 205-401 Enrichment | 0.0000000000 | $555,874 | $238,701 | $326.97 | | |
| SCH205BOND | School 205-401 BOND | 0.0000000000 | $555,874 | $238,701 | $223.29 | | |
| ST | State School | 1.4761226122 | $555,874 | $327,071 | $482.80 | | |
| ST2 | State School Part 2 | 0.0000000000 | $555,874 | $238,701 | $189.86 | | |
| | Total Tax Rate: | 4.3897889075 | | | | | |
| | | | | Taxes w/Current Exemptions: | $2,214.82 | | |
| | | | | Taxes w/o Exemptions: | $4,254.34 | | |
Improvement / Building
| Improvement #1: | MANUFACTURED HOME | State Code: | Y | 1920.0 sqft | Value: | $185,874 |
| Bathrooms: | 0 | Bedrooms: | 0 | | Ceiling: | PLASTER PAINTED | Cooling: | EVAP NO DUCT | | Exterior Wall/Cover: | VINYL | Floor Covering: | CARPET 100% | | Floor Structure: | SLAB ON GRADE | Foundation: | SLAB | | Heating: | FHA ELECTRIC | Interior Finish: | PLASTER | | Plumbing Fixture Cnt: | 1 | Roof Slope: | FLAT | | Roof Structure/Cover: | CJ ALUMINIUM HEAVY |   |   |
|
| | Type | Description | Class CD | Sub Class CD | Year Built | Area |
| | BAS | BASE/MAIN FLOOR | 4 | 0 | 2011 | 1920.0 |
| | OWC | OPEN WOOD PORCH W/STEPS/ROOF/C | 4 | 0 | 2011 | 195.0 |
| | OWP | OPEN WOOD PORCH W/STEPS | 4 | 0 | 2011 | 308.0 |
| | oOBD | Out Buildings | 4 | 0 | 2011 | 0.0 |
Sketch
Property Image
Land
| 1 | 35 | AC (10.00-30.99) | 14.0900 | 613760.40 | 0.00 | 0.00 | 1.00 | $370,000 | $0 |
Roll Value History
| 2026 | N/A | N/A | N/A | N/A | N/A |
| 2025 | $185,874 | $370,000 | $0 | $555,874 | $327,071 |
| 2024 | $190,217 | $340,000 | $0 | $530,217 | $307,717 |
| 2023 | $170,498 | $300,000 | $0 | $470,498 | $281,912 |
| 2022 | $157,036 | $290,000 | $0 | $447,036 | $408,015 |
| 2021 | $142,855 | $220,000 | $0 | $362,855 | $362,855 |
| 2020 | $142,065 | $200,000 | $0 | $342,065 | $342,065 |
| 2019 | $119,273 | $300,000 | $0 | $419,273 | $419,273 |
| 2018 | $121,256 | $270,000 | $0 | $391,256 | $391,256 |
| 2017 | $122,248 | $270,000 | $0 | $392,248 | $392,248 |
| 2016 | $123,241 | $250,000 | $0 | $373,241 | $373,241 |
| 2015 | $110,763 | $208,067 | $0 | $318,830 | $318,830 |
| 2014 | $111,522 | $281,667 | $0 | $393,189 | $393,189 |
| 2013 | $112,279 | $281,667 | $0 | $393,946 | $393,946 |
| 2012 | $113,038 | $281,667 | $0 | $394,705 | $394,705 |
| 2011 | $123,038 | $352,084 | $9,427 | $132,465 | $132,465 |
| 2010 | $103,503 | $352,084 | $9,427 | $112,930 | $112,930 |
| 2009 | $111,315 | $468,667 | $9,427 | $579,982 | $579,982 |
| 2008 | $116,675 | $439,390 | $9,427 | $556,065 | $556,065 |
| 2007 | $121,040 | $439,390 | $9,427 | $560,430 | $560,430 |
Deed and Sales History
| 1 | 10/15/2021 | QCD | Quit Claim Deed | JENSEN TRUSTEE, GARY D | JENSEN, CAROL A | | | $0.00 | 50604 | 4532150 |
| 2 | 10/20/2003 | 5 | DNU - Marriage License/Name Change | JENSEN, GARY D | JENSEN TRUSTEE, GARY D | | | $0.00 | 35204 | 4083321 |
| 3 | 02/01/1976 | EXECUTORD | Executor Deed | JENSEN, GARY D | JENSEN, GARY D | | | $0.00 | 60408 | 0 |
| 4 | 01/01/1900 | OTHER | Other - Misc. Documents | SANDBERG, CARL A | JENSEN, GARY D | | | $15,648.00 | 0 | 0 |
| 5 | 01/01/1900 | OTHER | Other - Misc. Documents | Unknown | SANDBERG, CARL A | | | $0.00 | 0 | 0 |
Payout Agreement
| No payout information available.. |