Property
Account |
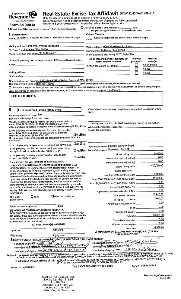
| Property ID: | 759076 | Abbreviated Legal Description: | MUTINY SANDS LOTS 4, 5 & 6 BLK 2 LOT 1 PLA 284/97 V13 PLATS P173 AF#98003495 |
| Geographic ID: | S7555-00-02005-1 | Agent Code: | |
| Type: | Real | | |
| Tax Area: | 710 - APPRAISER-S Whid Schl Dist, outside Langley, improved & 1 acre or less | Land Use Code | 11 |
| Open Space: | N | DFL | N |
| Historic Property: | N | Remodel Property: | N |
| Multi-Family Redevelopment: | N | | |
| Township: | | Section: | |
| Range: | |
Location |
| Address: | 5522 BEACH BLUFF DR FREELAND, WA 98249 | Mapsco: | |
| Neighborhood: | Cycle 3 | Map ID: | 305 |
| Neighborhood CD: | 3 |
Owner |
| Name: | KRAJEWSKI, KENNETH J | Owner ID: | 302172 |
| Mailing Address: | SETTIE M SAFA 9901 NE 4TH ST BELLEVUE, WA 98004 | % Ownership: | 100.0000000000% |
| | | Exemptions: | |
Taxes and Assessment Details
Values
| (+) Improvement Homesite Value: | + | $0 | |
| (+) Improvement Non-Homesite Value: | + | $822,961 | |
| (+) Land Homesite Value: | + | $0 | |
| (+) Land Non-Homesite Value: | + | $520,000 | |
| (+) Curr Use (HS): | + | $0 | $0 |
| (+) Curr Use (NHS): | + | $0 | $0 |
| | | -------------------------- | |
| (=) Market Value: | = | $1,342,961 | |
| (–) Productivity Loss: | – | $0 | |
| | | -------------------------- | |
| (=) Subtotal: | = | $1,342,961 | |
| (+) Senior Appraised Value: | + | $0 | |
| (+) Non-Senior Appraised Value: | + | $1,342,961 | |
| | | -------------------------- | |
| (=) Total Appraised Value: | = | $1,342,961 | |
| (–) Senior Exemption Loss: | – | $0 | |
| (–) Exemption Loss: | – | $0 | |
| | | -------------------------- | |
| (=) Taxable Value: | = | $1,342,961 | |
Taxing Jurisdiction
| Owner: | KRAJEWSKI, KENNETH J | | |
| % Ownership: | 100.0000000000% | | |
| Total Value: | $1,342,961 | | |
| Tax Area: | 710 - APPRAISER-S Whid Schl Dist, outside Langley, improved & 1 acre or less |
| CF | Conservation Futures | 0.0313996660 | $1,342,961 | $1,342,961 | $42.17 | | |
| FIRE3 | Fire & Rescue Dist #3 S Whidbey GEN | 1.2130821753 | $1,342,961 | $1,342,961 | $1,629.12 | | |
| HOBOND | Hospital BOND | 0.1893405597 | $1,342,961 | $1,342,961 | $254.28 | | |
| HOGEN | Hospital GEN | 0.3848777722 | $1,342,961 | $1,342,961 | $516.88 | | |
| CE | County Current Expense | 0.3674210519 | $1,342,961 | $1,342,961 | $493.43 | | |
| CR | County Roads | 0.4614296361 | $1,342,961 | $1,342,961 | $619.68 | | |
| ISLANDEMS | Hospital GEN (EMS) | 0.4952018576 | $1,342,961 | $1,342,961 | $665.04 | | |
| LIB | Library Sno-Isle GEN | 0.3039084203 | $1,342,961 | $1,342,961 | $408.14 | | |
| PORTWHID | Port of S Whidbey GEN | 0.1086004714 | $1,342,961 | $1,342,961 | $145.85 | | |
| SCH206BOND | School 206 BOND | 0.5960237832 | $1,342,961 | $1,342,961 | $800.44 | | |
| SCH206CAP | School 206 CP | 0.3066144020 | $1,342,961 | $1,342,961 | $411.77 | | |
| SCH206MO | School 206 Enrichment | 0.4808755445 | $1,342,961 | $1,342,961 | $645.80 | | |
| ST | State School | 1.4761226122 | $1,342,961 | $1,342,961 | $1,982.38 | | |
| ST2 | State School Part 2 | 0.7953803475 | $1,342,961 | $1,342,961 | $1,068.16 | | |
| SWHIDPRBD | P & R S Whidbey BOND | 0.0144185398 | $1,342,961 | $1,342,961 | $19.36 | | |
| SWHIDPRBD3 | P & R S Whidbey BOND3 | 0.1483535547 | $1,342,961 | $1,342,961 | $199.23 | | |
| SWHIDPRMT | P & R S Whidbey GEN | 0.4600000000 | $1,342,961 | $1,342,961 | $617.76 | | |
| | Total Tax Rate: | 7.8330503944 | | | | | |
| | | | | Taxes w/Current Exemptions: | $10,519.49 | | |
| | | | | Taxes w/o Exemptions: | $10,519.49 | | |
Improvement / Building
| Improvement #1: | RESIDENTIAL | State Code: | Y | 5641.4 sqft | Value: | $822,961 |
| Bathrooms: | 2.5 | Bedrooms: | 4 | | Ceiling: | BEAM PAINTED | Cooling: | HEAT PUMP/CONV/V | | Exterior Wall/Cover: | WOOD SIDING | Floor Covering: | CERAMIC TILE/CPT 40-60 | | Floor Structure: | WOOD W/SUBFLOOR | Foundation: | CONCRETE | | Interior Finish: | DRYWALL PAINT | Plumbing Fixture Cnt: | 13 | | Roof Slope: | 4" IN 12" | Roof Structure/Cover: | BEAM ASPHALT |
|
| | Type | Description | Class CD | Sub Class CD | Year Built | Area |
| | BAS | BASE/MAIN FLOOR | 4 | 0 | 1961 | 3311.8 |
| | AGR | ATTACHED GARAGE | 4 | 0 | 1961 | 1132.0 |
| | OWC | OPEN WOOD PORCH W/STEPS/ROOF/C | 4 | 0 | 1961 | 741.3 |
| | DWN | DOWNSTAIRS LIVING AREA | 4 | 0 | 1961 | 2329.6 |
Sketch
Property Image
Land
| 1 | 16 | AC (00.51-01.00) | 0.0000 | 0.00 | 0.00 | 0.00 | 1.00 | $520,000 | $0 |
Roll Value History
| 2026 | N/A | N/A | N/A | N/A | N/A |
| 2025 | $822,961 | $520,000 | $0 | $1,342,961 | $1,342,961 |
| 2024 | $819,672 | $490,000 | $0 | $1,309,672 | $1,309,672 |
| 2023 | $819,178 | $490,000 | $0 | $1,309,178 | $1,309,178 |
| 2022 | $755,407 | $490,000 | $0 | $1,245,407 | $1,245,407 |
| 2021 | $642,135 | $350,000 | $0 | $992,135 | $992,135 |
| 2020 | $628,490 | $280,000 | $0 | $908,490 | $908,490 |
| 2019 | $591,259 | $270,000 | $0 | $861,259 | $861,259 |
| 2018 | $551,842 | $250,000 | $0 | $801,842 | $801,842 |
| 2017 | $544,850 | $200,000 | $0 | $744,850 | $744,850 |
| 2016 | $467,504 | $200,000 | $0 | $667,504 | $667,504 |
| 2015 | $465,569 | $180,000 | $0 | $645,569 | $645,569 |
| 2014 | $471,860 | $175,000 | $0 | $646,860 | $646,860 |
| 2013 | $506,821 | $175,000 | $0 | $681,821 | $681,821 |
| 2012 | $513,489 | $175,000 | $0 | $688,489 | $688,489 |
| 2011 | $520,158 | $175,000 | $0 | $695,158 | $695,158 |
| 2010 | $577,378 | $175,000 | $0 | $752,378 | $752,378 |
| 2009 | $602,286 | $200,000 | $0 | $802,286 | $802,286 |
| 2008 | $609,503 | $225,000 | $0 | $834,503 | $834,503 |
| 2007 | $567,999 | $225,000 | $0 | $792,999 | $792,999 |
Deed and Sales History
| 1 | 11/17/2021 | WD | Warranty Deed | TINKHAM, JOHN R | KRAJEWSKI, KENNETH J | | | $1,400,000.00 | 51126 | 4534872 |
| 2 | 10/31/2016 | WD | Warranty Deed | CN REAL ESTATE LLC | TINKHAM, JOHN R | | | $640,000.00 | 26744 | 4410526 |
| 3 | 06/09/2016 | CHGOFIDENT | DNU - Change In Identity | NAGEL, CHARLES LEE | CN REAL ESTATE LLC | | | $0.00 | 24876 | 4401663 |
| 4 | 03/01/2016 | QCD | Quit Claim Deed | NAGEL, CHARLES LEE | NAGEL, CHARLES LEE | | | $0.00 | 23557 | 4395973 |
| 5 | 03/10/2016 | TRUSTEED | Trustee's Deed | HANSEN, MICHAEL D | NAGEL, CHARLES LEE | | | $404,500.00 | 23556 | 4395792 |
| 6 | 04/26/2005 | WD | Warranty Deed | PELTON, BONNIE E | HANSEN, MICHAEL D | | | $599,000.00 | 51795 | 4132618 |
| 7 | 08/15/1999 | WD | Warranty Deed | YEAKEL, RICHARD B | PELTON, BONNIE E | | | $424,074.00 | 94032 | 99022325 |
| 8 | 12/14/1998 | QCD | Quit Claim Deed | YEAKEL, RICHARD B | YEAKEL, RICHARD B | | | $0.00 | 85053 | 98027640 |
| 9 | 03/01/1998 | BLA | DNU - Boundary Line Adjustment | YEAKEL, RICHARD B | YEAKEL, RICHARD B | | | $0.00 | 67830 | 98003495 |
| 10 | 01/01/1900 | OTHER | Other - Misc. Documents | Unknown | YEAKEL, RICHARD B | | | $0.00 | 67309 | 97001437 |
Payout Agreement
| No payout information available.. |