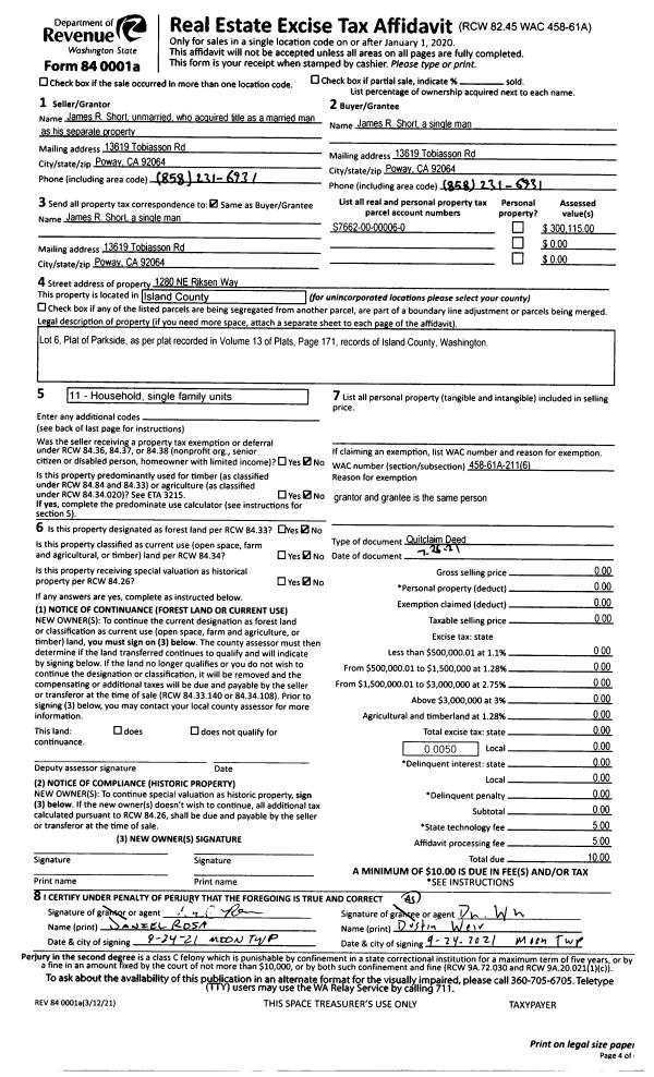
Property
Account |
| Property ID: | 759539 | Abbreviated Legal Description: | PARKSIDE LOT 6 |
| Geographic ID: | S7662-00-00006-0 | Agent Code: | |
| Type: | Real | | |
| Tax Area: | 100 - APPRAISER-OH Schl Dist, in OH | Land Use Code | 11 |
| Open Space: | N | DFL | N |
| Historic Property: | N | Remodel Property: | N |
| Multi-Family Redevelopment: | N | | |
| Township: | | Section: | |
| Range: | |
Location |
| Address: | 1280 NE RIKSEN WAY OAK HARBOR, WA 98277 | Mapsco: | |
| Neighborhood: | Cycle 1 | Map ID: | 262 |
| Neighborhood CD: | 1 |
Owner |
| Name: | SHORT, JAMES R | Owner ID: | 301733 |
| Mailing Address: | 13619 TOBIASSON RD POWAY, CA 92064 | % Ownership: | 100.0000000000% |
| | | Exemptions: | |
Taxes and Assessment Details
Values
| (+) Improvement Homesite Value: | + | $0 | |
| (+) Improvement Non-Homesite Value: | + | $251,592 | |
| (+) Land Homesite Value: | + | $0 | |
| (+) Land Non-Homesite Value: | + | $180,000 | |
| (+) Curr Use (HS): | + | $0 | $0 |
| (+) Curr Use (NHS): | + | $0 | $0 |
| | | -------------------------- | |
| (=) Market Value: | = | $431,592 | |
| (–) Productivity Loss: | – | $0 | |
| | | -------------------------- | |
| (=) Subtotal: | = | $431,592 | |
| (+) Senior Appraised Value: | + | $0 | |
| (+) Non-Senior Appraised Value: | + | $431,592 | |
| | | -------------------------- | |
| (=) Total Appraised Value: | = | $431,592 | |
| (–) Senior Exemption Loss: | – | $0 | |
| (–) Exemption Loss: | – | $0 | |
| | | -------------------------- | |
| (=) Taxable Value: | = | $431,592 | |
Taxing Jurisdiction
| Owner: | SHORT, JAMES R | | |
| % Ownership: | 100.0000000000% | | |
| Total Value: | $431,592 | | |
| Tax Area: | 100 - APPRAISER-OH Schl Dist, in OH |
| CF | Conservation Futures | 0.0313996660 | $431,592 | $431,592 | $13.55 | | |
| CEM1 | Cemetery #1 | 0.0040018856 | $431,592 | $431,592 | $1.73 | | |
| COH | City of Oak Harbor | 2.3090730572 | $431,592 | $431,592 | $996.58 | | |
| OAKBOND | City of Oak Harbor BOND | 0.1902260131 | $431,592 | $431,592 | $82.10 | | |
| HOBOND | Hospital BOND | 0.1893405597 | $431,592 | $431,592 | $81.72 | | |
| HOGEN | Hospital GEN | 0.3848777722 | $431,592 | $431,592 | $166.11 | | |
| CE | County Current Expense | 0.3674210519 | $431,592 | $431,592 | $158.58 | | |
| ISLANDEMS | Hospital GEN (EMS) | 0.4952018576 | $431,592 | $431,592 | $213.73 | | |
| LIB | Library Sno-Isle GEN | 0.3039084203 | $431,592 | $431,592 | $131.16 | | |
| NWHIDPRMT | P & R N Whidbey GEN | 0.1990272349 | $431,592 | $431,592 | $85.90 | | |
| SCH201MO | School 201 Enrichment | 2.3851112745 | $431,592 | $431,592 | $1,029.39 | | |
| ST | State School | 1.4761226122 | $431,592 | $431,592 | $637.08 | | |
| ST2 | State School Part 2 | 0.7953803475 | $431,592 | $431,592 | $343.28 | | |
| | Total Tax Rate: | 9.1310917527 | | | | | |
| | | | | Taxes w/Current Exemptions: | $3,940.91 | | |
| | | | | Taxes w/o Exemptions: | $3,940.91 | | |
Improvement / Building
| Improvement #1: | RESIDENTIAL | State Code: | Y | 1486.0 sqft | Value: | $251,592 |
| Bathrooms: | 2.5 | Bedrooms: | 3 | | Ceiling: | DRYWALL PAINTED | Exterior Wall/Cover: | CEMENT FIBER | | Floor Covering: | CARPET/VINYL 80-20 | Floor Structure: | WOOD W/SUBFLOOR | | Foundation: | CONCRETE | Heating: | FHA GAS | | Interior Finish: | DRYWALL PAINT | Plumbing Fixture Cnt: | 11 | | Roof Slope: | 5" IN 12" | Roof Structure/Cover: | CJ ASPHALT |
|
| | Type | Description | Class CD | Sub Class CD | Year Built | Area |
| | BAS | BASE/MAIN FLOOR | 3 | 0 | 1998 | 886.0 |
| | AGR | ATTACHED GARAGE | 3 | 0 | 1998 | 506.0 |
| | UPS | UPPER STORY | 3 | 0 | 1998 | 600.0 |
| | OWP | OPEN WOOD PORCH W/STEPS | 3 | 0 | 1998 | 96.0 |
| | OWR | OPEN WOOD PORCH W/STEPS/ROOF | 3 | 0 | 1998 | 60.0 |
Sketch
Property Image
Land
| 1 | 14 | SQ (08001-12000) | 0.0000 | 0.00 | 0.00 | 0.00 | 1.00 | $180,000 | $0 |
Roll Value History
| 2026 | N/A | N/A | N/A | N/A | N/A |
| 2025 | $251,592 | $180,000 | $0 | $431,592 | $431,592 |
| 2024 | $254,807 | $170,000 | $0 | $424,807 | $424,807 |
| 2023 | $254,807 | $170,000 | $0 | $424,807 | $424,807 |
| 2022 | $233,639 | $160,000 | $0 | $393,639 | $393,639 |
| 2021 | $205,702 | $125,000 | $0 | $330,702 | $330,702 |
| 2020 | $200,115 | $100,000 | $0 | $300,115 | $300,115 |
| 2019 | $143,783 | $140,000 | $0 | $283,783 | $283,783 |
| 2018 | $144,215 | $125,000 | $0 | $269,215 | $269,215 |
| 2017 | $138,170 | $110,000 | $0 | $248,170 | $248,170 |
| 2016 | $139,899 | $90,000 | $0 | $229,899 | $229,899 |
| 2015 | $141,625 | $80,000 | $0 | $221,625 | $221,625 |
| 2014 | $143,353 | $80,000 | $0 | $223,353 | $223,353 |
| 2013 | $145,079 | $80,000 | $0 | $225,079 | $225,079 |
| 2012 | $146,807 | $70,000 | $0 | $216,807 | $216,807 |
| 2011 | $154,057 | $80,000 | $0 | $234,057 | $234,057 |
| 2010 | $160,697 | $80,000 | $0 | $240,697 | $240,697 |
| 2009 | $167,723 | $97,000 | $0 | $264,723 | $264,723 |
| 2008 | $169,859 | $97,000 | $0 | $266,859 | $266,859 |
| 2007 | $172,109 | $97,000 | $0 | $269,109 | $269,109 |
Deed and Sales History
| 1 | 07/26/2021 | QCD | Quit Claim Deed | SHORT, JAMES R | SHORT, JAMES R | | | $0.00 | 50624 | 4532405 |
| 2 | 04/22/2003 | ESTSEPPROP | Establish Separate Property | SHORT, JAMES R | SHORT, JAMES R | | | $0.00 | 31874 | 4057703 |
| 3 | 05/13/1998 | WD | Warranty Deed | SHORT, JAMES R | SHORT, JAMES R | | | $151,900.00 | 81794 | 98009603 |
| 4 | 01/01/1998 | WD | Warranty Deed | PICULELL, ARTHUR C | SCHARNIKOW, HARRY J | | | $42,300.00 | 80286 | 98001454 |
| 5 | 01/01/1900 | OTHER | Other - Misc. Documents | Unknown | PICULELL, ARTHUR C | | | $0.00 | 70152 | 97000587 |
| 6 | 01/01/1900 | OTHER | Other - Misc. Documents | SCHARNIKOW, HARRY J | SHORT, JAMES R | | | $0.00 | 81794 | 98009603 |
Payout Agreement
| No payout information available.. |