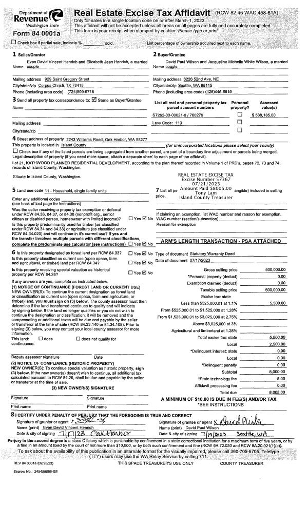
Property
Account |
| Property ID: | 760279 | Abbreviated Legal Description: | KATHWOOD - PRD LOT 21 |
| Geographic ID: | S7262-00-00021-0 | Agent Code: | |
| Type: | Real | | |
| Tax Area: | 110 - APPRAISER-OH Schl Dist, outside OH, improved & 1 acre or less | Land Use Code | 11 |
| Open Space: | N | DFL | N |
| Historic Property: | N | Remodel Property: | N |
| Multi-Family Redevelopment: | N | | |
| Township: | | Section: | |
| Range: | |
Location |
| Address: | 2243 WILLIAMS RD OAK HARBOR, WA 98277 | Mapsco: | |
| Neighborhood: | Cycle 1 | Map ID: | 139 |
| Neighborhood CD: | 1 |
Owner |
| Name: | WILSON, DAVID PAUL | Owner ID: | 309371 |
| Mailing Address: | JACQUELINE MICHELLE WHITE WILSON 6226 52ND AVE NE SEATTLE, WA 98115 | % Ownership: | 100.0000000000% |
| | | Exemptions: | |
Taxes and Assessment Details
Values
| (+) Improvement Homesite Value: | + | $0 | |
| (+) Improvement Non-Homesite Value: | + | $310,176 | |
| (+) Land Homesite Value: | + | $0 | |
| (+) Land Non-Homesite Value: | + | $180,000 | |
| (+) Curr Use (HS): | + | $0 | $0 |
| (+) Curr Use (NHS): | + | $0 | $0 |
| | | -------------------------- | |
| (=) Market Value: | = | $490,176 | |
| (–) Productivity Loss: | – | $0 | |
| | | -------------------------- | |
| (=) Subtotal: | = | $490,176 | |
| (+) Senior Appraised Value: | + | $0 | |
| (+) Non-Senior Appraised Value: | + | $490,176 | |
| | | -------------------------- | |
| (=) Total Appraised Value: | = | $490,176 | |
| (–) Senior Exemption Loss: | – | $0 | |
| (–) Exemption Loss: | – | $0 | |
| | | -------------------------- | |
| (=) Taxable Value: | = | $490,176 | |
Taxing Jurisdiction
| Owner: | WILSON, DAVID PAUL | | |
| % Ownership: | 100.0000000000% | | |
| Total Value: | $490,176 | | |
| Tax Area: | 110 - APPRAISER-OH Schl Dist, outside OH, improved & 1 acre or less |
| CF | Conservation Futures | 0.0313996660 | $490,176 | $490,176 | $15.39 | | |
| CEM1 | Cemetery #1 | 0.0040018856 | $490,176 | $490,176 | $1.96 | | |
| FIRE2 | Fire & Rescue Dist #2 N Whidbey GEN | 0.5381486274 | $490,176 | $490,176 | $263.79 | | |
| HOBOND | Hospital BOND | 0.1893405597 | $490,176 | $490,176 | $92.81 | | |
| HOGEN | Hospital GEN | 0.3848777722 | $490,176 | $490,176 | $188.66 | | |
| CE | County Current Expense | 0.3674210519 | $490,176 | $490,176 | $180.10 | | |
| CR | County Roads | 0.4614296361 | $490,176 | $490,176 | $226.18 | | |
| ISLANDEMS | Hospital GEN (EMS) | 0.4952018576 | $490,176 | $490,176 | $242.74 | | |
| LIB | Library Sno-Isle GEN | 0.3039084203 | $490,176 | $490,176 | $148.97 | | |
| NWHIDPRMT | P & R N Whidbey GEN | 0.1990272349 | $490,176 | $490,176 | $97.56 | | |
| SCH201MO | School 201 Enrichment | 2.3851112745 | $490,176 | $490,176 | $1,169.12 | | |
| ST | State School | 1.4761226122 | $490,176 | $490,176 | $723.56 | | |
| ST2 | State School Part 2 | 0.7953803475 | $490,176 | $490,176 | $389.88 | | |
| | Total Tax Rate: | 7.6313709459 | | | | | |
| | | | | Taxes w/Current Exemptions: | $3,740.72 | | |
| | | | | Taxes w/o Exemptions: | $3,740.72 | | |
Improvement / Building
| Improvement #1: | RESIDENTIAL | State Code: | Y | 1882.0 sqft | Value: | $310,176 |
| Bathrooms: | 2.75 | Bedrooms: | 3 | | Ceiling: | DRYWALL PAINTED | Cooling: | HEAT PUMP/CONV/V | | Exterior Wall/Cover: | CEMENT FIBER | Floor Covering: | HARDWOOD/CARP 20-80 | | Floor Structure: | WOOD W/SUBFLOOR | Foundation: | CONCRETE | | Interior Finish: | DRYWALL PAINT | Plumbing Fixture Cnt: | 12 | | Roof Slope: | 6" IN 12" | Roof Structure/Cover: | CJ ASPHALT |
|
| | Type | Description | Class CD | Sub Class CD | Year Built | Area |
| | BAS | BASE/MAIN FLOOR | 3 | 0 | 2004 | 1332.0 |
| | BIG | BUILT IN GARAGE | 3 | 0 | 2004 | 672.0 |
| | OWP | OPEN WOOD PORCH W/STEPS | 3 | 0 | 2004 | 275.5 |
| | DWN | DOWNSTAIRS LIVING AREA | 3 | 0 | 2004 | 550.0 |
| | OWP | OPEN WOOD PORCH W/STEPS | 3 | 0 | 2004 | 66.0 |
Sketch
Property Image
Land
| 1 | 14 | SQ (08001-12000) | 0.0000 | 0.00 | 0.00 | 0.00 | 1.00 | $180,000 | $0 |
Roll Value History
| 2026 | N/A | N/A | N/A | N/A | N/A |
| 2025 | $310,176 | $180,000 | $0 | $490,176 | $490,176 |
| 2024 | $313,902 | $180,000 | $0 | $493,902 | $493,902 |
| 2023 | $348,185 | $190,000 | $0 | $538,185 | $538,185 |
| 2022 | $319,068 | $190,000 | $0 | $509,068 | $509,068 |
| 2021 | $280,753 | $120,000 | $0 | $400,753 | $400,753 |
| 2020 | $273,259 | $100,000 | $0 | $373,259 | $373,259 |
| 2019 | $203,251 | $150,000 | $0 | $353,251 | $353,251 |
| 2018 | $203,833 | $130,000 | $0 | $333,833 | $333,833 |
| 2017 | $197,663 | $110,000 | $0 | $307,663 | $307,663 |
| 2016 | $199,909 | $100,000 | $0 | $299,909 | $299,909 |
| 2015 | $202,156 | $55,000 | $0 | $257,156 | $257,156 |
| 2014 | $204,402 | $55,000 | $0 | $259,402 | $259,402 |
| 2013 | $206,647 | $55,000 | $0 | $261,647 | $261,647 |
| 2012 | $208,894 | $63,750 | $0 | $272,644 | $272,644 |
| 2011 | $219,113 | $75,000 | $0 | $294,113 | $294,113 |
| 2010 | $226,515 | $75,000 | $0 | $301,515 | $301,515 |
| 2009 | $235,817 | $80,000 | $0 | $315,817 | $315,817 |
| 2008 | $238,235 | $85,000 | $0 | $323,235 | $323,235 |
| 2007 | $101,846 | $85,650 | $0 | $187,496 | $187,496 |
Deed and Sales History
| 1 | 07/17/2023 | WD | Warranty Deed | HENRICH, EVAN DAVID VINCENT | WILSON, DAVID PAUL | | | $500,000.00 | 57367 | 456504 |
| 2 | 06/16/2020 | WD | Warranty Deed | KUNETKA, ERIC L | HENRICH, EVAN DAVID VINCENT | | | $399,000.00 | 43414 | 4489151 |
| 3 | 08/17/2016 | WD | Warranty Deed | VAUGHAN, NATHAN H | KUNETKA, ERIC L | | | $311,000.00 | 25764 | 4405576 |
| 4 | 08/26/2014 | WD | Warranty Deed | ROCKEY, JON PAUL | VAUGHAN, NATHAN H | | | $259,000.00 | 16569 | 4364593 |
| 5 | 10/21/2011 | WD | Warranty Deed | PEARCE, RANDAL A | ROCKEY, JON PAUL | | | $201,000.00 | 5999 | 4303728 |
| 6 | 07/14/2011 | DECREE | Divorce Decree/Legal Separation | PEARCE, RANDAL A | PEARCE, RANDAL A | | | $0.00 | 4942 | 4297979 |
| 7 | 12/29/2004 | WD | Warranty Deed | WALDRON CONSTRUCTION INC, | PEARCE, RANDAL A | | | $185,000.00 | 50022 | 4122307 |
| 8 | 09/24/2003 | TRUSTEED | Trustee's Deed | PACIFIC NORTHWEST BANK, | WALDRON CONSTRUCTION INC, | | | $28,350.00 | 34320 | 4076751 |
| 9 | 04/12/2002 | TRUSTEED | Trustee's Deed | SELF HELP HOUSING INC, | PACIFIC NORTHWEST BANK, | | | $0.00 | 21343 | 4016627 |
| 10 | 02/01/1999 | WD | Warranty Deed | KATHWOOD, INC | SELF HELP HOUSING INC, | | | $47,751.00 | 90529 | 99003626 |
| 11 | 01/01/1900 | OTHER | Other - Misc. Documents | Unknown | KATHWOOD, INC | | | $0.00 | 71897 | 97008706 |
Payout Agreement
| No payout information available.. |