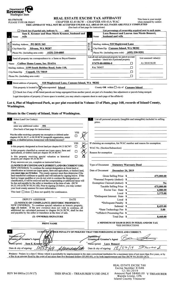
Property
Account |
| Property ID: | 760457 | Abbreviated Legal Description: | MAPLEWOOD PARK LOT 6 |
| Geographic ID: | S7479-00-00006-0 | Agent Code: | |
| Type: | Real | | |
| Tax Area: | 592 - APPRAISER-Stan/Cam Schl Dist, Special Dist, improved, greater than 1 acre | Land Use Code | 11 |
| Open Space: | N | DFL | N |
| Historic Property: | N | Remodel Property: | N |
| Multi-Family Redevelopment: | N | | |
| Township: | | Section: | |
| Range: | |
Location |
| Address: | 510 MAPLEWOOD LN CAMANO ISLAND, WA 98282 | Mapsco: | |
| Neighborhood: | Cycle 5 | Map ID: | 989 |
| Neighborhood CD: | 5 |
Owner |
| Name: | BONACCI, LUCA | Owner ID: | 293052 |
| Mailing Address: | LAUREN ANN NICOLE BONACCI 510 MAPLEWOOD LN CAMANO ISLAND, WA 98282 | % Ownership: | 100.0000000000% |
| | | Exemptions: | |
Taxes and Assessment Details
Values
| (+) Improvement Homesite Value: | + | $0 | |
| (+) Improvement Non-Homesite Value: | + | $394,810 | |
| (+) Land Homesite Value: | + | $0 | |
| (+) Land Non-Homesite Value: | + | $310,000 | |
| (+) Curr Use (HS): | + | $0 | $0 |
| (+) Curr Use (NHS): | + | $0 | $0 |
| | | -------------------------- | |
| (=) Market Value: | = | $704,810 | |
| (–) Productivity Loss: | – | $0 | |
| | | -------------------------- | |
| (=) Subtotal: | = | $704,810 | |
| (+) Senior Appraised Value: | + | $0 | |
| (+) Non-Senior Appraised Value: | + | $704,810 | |
| | | -------------------------- | |
| (=) Total Appraised Value: | = | $704,810 | |
| (–) Senior Exemption Loss: | – | $0 | |
| (–) Exemption Loss: | – | $0 | |
| | | -------------------------- | |
| (=) Taxable Value: | = | $704,810 | |
Taxing Jurisdiction
| Owner: | BONACCI, LUCA | | |
| % Ownership: | 100.0000000000% | | |
| Total Value: | $704,810 | | |
| Tax Area: | 592 - APPRAISER-Stan/Cam Schl Dist, Special Dist, improved, greater than 1 acre |
| CF | Conservation Futures | 0.0313996660 | $704,810 | $704,810 | $22.13 | | |
| EMS1 | Fire & Rescue Dist #1 Camano GEN (EMS) | 0.4998471806 | $704,810 | $704,810 | $352.30 | | |
| FIRE1 | Fire & Rescue Dist #1 Camano GEN | 1.2496603404 | $704,810 | $704,810 | $880.77 | | |
| FIRE1BOND | Fire & Rescue Dist #1 Camano BOND | 0.1630371212 | $704,810 | $704,810 | $114.91 | | |
| CE | County Current Expense | 0.3674210519 | $704,810 | $704,810 | $258.96 | | |
| CR | County Roads | 0.4614296361 | $704,810 | $704,810 | $325.22 | | |
| LIB | Library Sno-Isle GEN | 0.3039084203 | $704,810 | $704,810 | $214.20 | | |
| SCH205_401 | School 205-401 Enrichment | 1.3697998934 | $704,810 | $704,810 | $965.45 | | |
| SCH205BOND | School 205-401 BOND | 0.9354199323 | $704,810 | $704,810 | $659.29 | | |
| ST | State School | 1.4761226122 | $704,810 | $704,810 | $1,040.39 | | |
| ST2 | State School Part 2 | 0.7953803475 | $704,810 | $704,810 | $560.59 | | |
| | Total Tax Rate: | 7.6534262019 | | | | | |
| | | | | Taxes w/Current Exemptions: | $5,394.21 | | |
| | | | | Taxes w/o Exemptions: | $5,394.21 | | |
Improvement / Building
| Improvement #1: | RESIDENTIAL | State Code: | Y | 2085.0 sqft | Value: | $394,810 |
| Bathrooms: | 2.5 | Bedrooms: | 3 | | Ceiling: | DRYWALL PAINTED | Exterior Wall/Cover: | CEMENT FIBER | | Floor Covering: | CERAMIC TILE/CPT 40-60 | Floor Structure: | WOOD W/SUBFLOOR | | Foundation: | CONCRETE | Heating: | FHA GAS | | Interior Finish: | DRYWALL PAINT | Plumbing Fixture Cnt: | 14 | | Roof Slope: | 6" IN 12" | Roof Structure/Cover: | CJ ASPHALT |
|
| | Type | Description | Class CD | Sub Class CD | Year Built | Area |
| | BAS | BASE/MAIN FLOOR | 4 | 0 | 1999 | 1045.0 |
| | AGR | ATTACHED GARAGE | 4 | 0 | 1999 | 528.0 |
| | UPS | UPPER STORY | 4 | 0 | 1999 | 1040.0 |
| | OWP | OPEN WOOD PORCH W/STEPS | 4 | 0 | 1999 | 32.0 |
| | OWC | OPEN WOOD PORCH W/STEPS/ROOF/C | 4 | 0 | 1999 | 219.0 |
| | OP1 | OPEN PORCH SLAB | 4 | 0 | 1999 | 576.0 |
Sketch
Property Image
Land
| 1 | 17 | AC (01.01-02.00) | 1.4900 | 64904.40 | 0.00 | 0.00 | 1.00 | $310,000 | $0 |
Roll Value History
| 2026 | N/A | N/A | N/A | N/A | N/A |
| 2025 | $394,810 | $310,000 | $0 | $704,810 | $704,810 |
| 2024 | $399,731 | $300,000 | $0 | $699,731 | $699,731 |
| 2023 | $404,650 | $300,000 | $0 | $704,650 | $704,650 |
| 2022 | $370,874 | $260,000 | $0 | $630,874 | $630,874 |
| 2021 | $272,975 | $190,000 | $0 | $462,975 | $462,975 |
| 2020 | $265,763 | $150,000 | $0 | $415,763 | $415,763 |
| 2019 | $201,156 | $180,000 | $0 | $381,156 | $381,156 |
| 2018 | $201,739 | $150,000 | $0 | $351,739 | $351,739 |
| 2017 | $202,905 | $135,000 | $0 | $337,905 | $337,905 |
| 2016 | $205,237 | $135,000 | $0 | $340,237 | $340,237 |
| 2015 | $208,456 | $100,000 | $0 | $308,456 | $308,456 |
| 2014 | $210,824 | $100,000 | $0 | $310,824 | $310,824 |
| 2013 | $213,194 | $100,000 | $0 | $313,194 | $313,194 |
| 2012 | $215,562 | $80,000 | $0 | $295,562 | $295,562 |
| 2011 | $217,930 | $100,000 | $0 | $317,930 | $317,930 |
| 2010 | $211,213 | $100,000 | $0 | $311,213 | $311,213 |
| 2009 | $220,164 | $100,000 | $0 | $320,164 | $320,164 |
| 2008 | $222,636 | $108,000 | $0 | $330,636 | $330,636 |
| 2007 | $225,087 | $108,000 | $0 | $333,087 | $333,087 |
Deed and Sales History
| 1 | 12/26/2019 | WD | Warranty Deed | KRAMER, SAM E | BONACCI, LUCA | | | $475,000.00 | 41646 | 4478380 |
| 2 | 09/21/1998 | WD | Warranty Deed | LANGBERG, T S | KRAMER, SAM E | | | $58,500.00 | 83973 | 98021387 |
| 3 | 10/01/1997 | QCD | Quit Claim Deed | BRUNNER, F M | LANGBERG, T S | | | $4,750.00 | 73596 | 97016977 |
| 4 | 01/01/1900 | OTHER | Other - Misc. Documents | Unknown | BRUNNER, F M | | | $0.00 | 44300 | 94022182 |
Payout Agreement
| No payout information available.. |