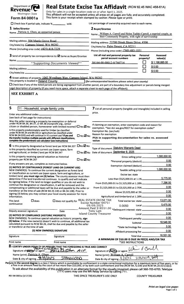
Property
Account |
| Property ID: | 760714 | Abbreviated Legal Description: | BRENTWOOD #1 - PRD LOT 12 |
| Geographic ID: | S6164-00-00012-0 | Agent Code: | |
| Type: | Real | | |
| Tax Area: | 510 - APPRAISER-Stan/Cam Schl Dist, improved & 1 acre or less | Land Use Code | 11 |
| Open Space: | N | DFL | N |
| Historic Property: | N | Remodel Property: | N |
| Multi-Family Redevelopment: | N | | |
| Township: | | Section: | |
| Range: | |
Location |
| Address: | 1043 WYNDHAM WAY CAMANO ISLAND, WA 98282 | Mapsco: | |
| Neighborhood: | North Camano | Map ID: | 557 |
| Neighborhood CD: | 06-C |
Owner |
| Name: | OLSEN, PATRICIA A | Owner ID: | 281477 |
| Mailing Address: | 1043 WYNDHAM WAY CAMANO ISLAND, WA 98282 | % Ownership: | 100.0000000000% |
| | | Exemptions: | |
Taxes and Assessment Details
Values
| (+) Improvement Homesite Value: | + | $0 | |
| (+) Improvement Non-Homesite Value: | + | $517,882 | |
| (+) Land Homesite Value: | + | $0 | |
| (+) Land Non-Homesite Value: | + | $670,000 | |
| (+) Curr Use (HS): | + | $0 | $0 |
| (+) Curr Use (NHS): | + | $0 | $0 |
| | | -------------------------- | |
| (=) Market Value: | = | $1,187,882 | |
| (–) Productivity Loss: | – | $0 | |
| | | -------------------------- | |
| (=) Subtotal: | = | $1,187,882 | |
| (+) Senior Appraised Value: | + | $0 | |
| (+) Non-Senior Appraised Value: | + | $1,187,882 | |
| | | -------------------------- | |
| (=) Total Appraised Value: | = | $1,187,882 | |
| (–) Senior Exemption Loss: | – | $0 | |
| (–) Exemption Loss: | – | $0 | |
| | | -------------------------- | |
| (=) Taxable Value: | = | $1,187,882 | |
Taxing Jurisdiction
| Owner: | OLSEN, PATRICIA A | | |
| % Ownership: | 100.0000000000% | | |
| Total Value: | $1,187,882 | | |
| Tax Area: | 510 - APPRAISER-Stan/Cam Schl Dist, improved & 1 acre or less |
| CF | Conservation Futures | 0.0313996660 | $1,187,882 | $1,187,882 | $37.30 | | |
| EMS1 | Fire & Rescue Dist #1 Camano GEN (EMS) | 0.4998471806 | $1,187,882 | $1,187,882 | $593.76 | | |
| FIRE1 | Fire & Rescue Dist #1 Camano GEN | 1.2496603404 | $1,187,882 | $1,187,882 | $1,484.45 | | |
| FIRE1BOND | Fire & Rescue Dist #1 Camano BOND | 0.1630371212 | $1,187,882 | $1,187,882 | $193.67 | | |
| CE | County Current Expense | 0.3674210519 | $1,187,882 | $1,187,882 | $436.45 | | |
| CR | County Roads | 0.4614296361 | $1,187,882 | $1,187,882 | $548.12 | | |
| LIB | Library Sno-Isle GEN | 0.3039084203 | $1,187,882 | $1,187,882 | $361.01 | | |
| SCH205_401 | School 205-401 Enrichment | 1.3697998934 | $1,187,882 | $1,187,882 | $1,627.16 | | |
| SCH205BOND | School 205-401 BOND | 0.9354199323 | $1,187,882 | $1,187,882 | $1,111.17 | | |
| ST | State School | 1.4761226122 | $1,187,882 | $1,187,882 | $1,753.46 | | |
| ST2 | State School Part 2 | 0.7953803475 | $1,187,882 | $1,187,882 | $944.82 | | |
| | Total Tax Rate: | 7.6534262019 | | | | | |
| | | | | Taxes w/Current Exemptions: | $9,091.37 | | |
| | | | | Taxes w/o Exemptions: | $9,091.37 | | |
Improvement / Building
| Improvement #1: | RESIDENTIAL | State Code: | Y | 2154.7 sqft | Value: | $517,882 |
| Bathrooms: | 2 | Bedrooms: | 3 | | Ceiling: | DRYWALL PAINTED | Exterior Wall/Cover: | WOOD SIDING | | Floor Covering: | HARDWOOD/CARP 60-40 | Floor Structure: | WOOD W/SUBFLOOR | | Foundation: | CONCRETE | Heating: | FHA GAS | | Interior Finish: | DRYWALL PAINT | Plumbing Fixture Cnt: | 12 | | Roof Slope: | 6" IN 12" | Roof Structure/Cover: | CJ ASPHALT |
|
| | Type | Description | Class CD | Sub Class CD | Year Built | Area |
| | BAS | BASE/MAIN FLOOR | 4 | 0 | 2003 | 2154.7 |
| | OP4 | OPEN PORCH W/CEILING-ROOF | 4 | 0 | 2003 | 75.3 |
| | AGR | ATTACHED GARAGE | 4 | 0 | 2003 | 600.0 |
| | OWP | OPEN WOOD PORCH W/STEPS | 4 | 0 | 2003 | 177.2 |
| | OWR | OPEN WOOD PORCH W/STEPS/ROOF | 4 | 0 | 2003 | 60.0 |
Sketch
Property Image
Land
| 1 | 15 | SQ (12001-21780) | 0.0000 | 0.00 | 0.00 | 0.00 | 1.00 | $670,000 | $0 |
Roll Value History
| 2026 | N/A | N/A | N/A | N/A | N/A |
| 2025 | $517,882 | $670,000 | $0 | $1,187,882 | $1,187,882 |
| 2024 | $523,885 | $675,000 | $0 | $1,198,885 | $1,198,885 |
| 2023 | $529,890 | $675,000 | $0 | $1,204,890 | $1,204,890 |
| 2022 | $458,074 | $450,000 | $0 | $908,074 | $908,074 |
| 2021 | $403,058 | $220,000 | $0 | $623,058 | $623,058 |
| 2020 | $392,726 | $220,000 | $0 | $612,726 | $612,726 |
| 2019 | $294,884 | $290,000 | $0 | $584,884 | $584,884 |
| 2018 | $295,729 | $250,000 | $0 | $545,729 | $545,729 |
| 2017 | $297,257 | $180,000 | $0 | $477,257 | $477,257 |
| 2016 | $290,499 | $175,000 | $0 | $465,499 | $465,499 |
| 2015 | $293,878 | $150,000 | $0 | $443,878 | $443,878 |
| 2014 | $297,257 | $150,000 | $0 | $447,257 | $447,257 |
| 2013 | $300,634 | $150,000 | $0 | $450,634 | $450,634 |
| 2012 | $304,012 | $160,000 | $0 | $464,012 | $464,012 |
| 2011 | $307,389 | $200,000 | $0 | $507,389 | $507,389 |
| 2010 | $304,232 | $200,000 | $0 | $504,232 | $504,232 |
| 2009 | $317,120 | $250,000 | $0 | $567,120 | $567,120 |
| 2008 | $324,045 | $300,000 | $0 | $624,045 | $624,045 |
| 2007 | $324,373 | $300,000 | $0 | $624,373 | $624,373 |
Deed and Sales History
| 1 | 09/08/2025 | WD | Warranty Deed | OLSEN, PATRICIA A | CARROLL, WILLIAM | | | $1,095,000.00 | 64751 | 4590666 |
| 2 | 08/08/2017 | QCD | Quit Claim Deed | OLSEN, RONALD J | OLSEN, PATRICIA A | | | $0.00 | 30587 | 4428385 |
| 3 | 06/24/2001 | WD | Warranty Deed | CREC, 401(K) P | OLSEN, RONALD J | | | $135,000.00 | 12459 | 20036179 |
| 4 | 01/01/1900 | OTHER | Other - Misc. Documents | Unknown | CREC, 401(K) P | | | $0.00 | 52982 | 97018034 |
Payout Agreement
| No payout information available.. |