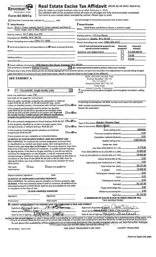
Property
Account |
| Property ID: | 760723 | Abbreviated Legal Description: | BRENTWOOD #1 - PRD LOT 13 |
| Geographic ID: | S6164-00-00013-0 | Agent Code: | |
| Type: | Real | | |
| Tax Area: | 510 - APPRAISER-Stan/Cam Schl Dist, improved & 1 acre or less | Land Use Code | 11 |
| Open Space: | N | DFL | N |
| Historic Property: | N | Remodel Property: | N |
| Multi-Family Redevelopment: | N | | |
| Township: | | Section: | |
| Range: | |
Location |
| Address: | 1051 WYNDHAM WAY CAMANO ISLAND, WA 98282 | Mapsco: | |
| Neighborhood: | North Camano | Map ID: | 557 |
| Neighborhood CD: | 06-C |
Owner |
| Name: | WEIDERSTROM, GERALD S | Owner ID: | 154755 |
| Mailing Address: | KAREN WEIDERSTROM 1051 WYNDHAM WAY CAMANO ISLAND, WA 98282-8625 | % Ownership: | 100.0000000000% |
| | | Exemptions: | |
Taxes and Assessment Details
Values
| (+) Improvement Homesite Value: | + | $0 | |
| (+) Improvement Non-Homesite Value: | + | $600,149 | |
| (+) Land Homesite Value: | + | $0 | |
| (+) Land Non-Homesite Value: | + | $670,000 | |
| (+) Curr Use (HS): | + | $0 | $0 |
| (+) Curr Use (NHS): | + | $0 | $0 |
| | | -------------------------- | |
| (=) Market Value: | = | $1,270,149 | |
| (–) Productivity Loss: | – | $0 | |
| | | -------------------------- | |
| (=) Subtotal: | = | $1,270,149 | |
| (+) Senior Appraised Value: | + | $0 | |
| (+) Non-Senior Appraised Value: | + | $1,270,149 | |
| | | -------------------------- | |
| (=) Total Appraised Value: | = | $1,270,149 | |
| (–) Senior Exemption Loss: | – | $0 | |
| (–) Exemption Loss: | – | $0 | |
| | | -------------------------- | |
| (=) Taxable Value: | = | $1,270,149 | |
Taxing Jurisdiction
| Owner: | WEIDERSTROM, GERALD S | | |
| % Ownership: | 100.0000000000% | | |
| Total Value: | $1,270,149 | | |
| Tax Area: | 510 - APPRAISER-Stan/Cam Schl Dist, improved & 1 acre or less |
| CF | Conservation Futures | 0.0313996660 | $1,270,149 | $1,270,149 | $39.88 | | |
| EMS1 | Fire & Rescue Dist #1 Camano GEN (EMS) | 0.4998471806 | $1,270,149 | $1,270,149 | $634.88 | | |
| FIRE1 | Fire & Rescue Dist #1 Camano GEN | 1.2496603404 | $1,270,149 | $1,270,149 | $1,587.25 | | |
| FIRE1BOND | Fire & Rescue Dist #1 Camano BOND | 0.1630371212 | $1,270,149 | $1,270,149 | $207.08 | | |
| CE | County Current Expense | 0.3674210519 | $1,270,149 | $1,270,149 | $466.68 | | |
| CR | County Roads | 0.4614296361 | $1,270,149 | $1,270,149 | $586.08 | | |
| LIB | Library Sno-Isle GEN | 0.3039084203 | $1,270,149 | $1,270,149 | $386.01 | | |
| SCH205_401 | School 205-401 Enrichment | 1.3697998934 | $1,270,149 | $1,270,149 | $1,739.85 | | |
| SCH205BOND | School 205-401 BOND | 0.9354199323 | $1,270,149 | $1,270,149 | $1,188.12 | | |
| ST | State School | 1.4761226122 | $1,270,149 | $1,270,149 | $1,874.90 | | |
| ST2 | State School Part 2 | 0.7953803475 | $1,270,149 | $1,270,149 | $1,010.25 | | |
| | Total Tax Rate: | 7.6534262019 | | | | | |
| | | | | Taxes w/Current Exemptions: | $9,720.98 | | |
| | | | | Taxes w/o Exemptions: | $9,720.98 | | |
Improvement / Building
| Improvement #1: | RESIDENTIAL | State Code: | Y | 2668.3 sqft | Value: | $600,149 |
| Bathrooms: | 3.5 | Bedrooms: | 3 | | Ceiling: | DRYWALL PAINTED | Cooling: | HEAT PUMP/CONV/V | | Exterior Wall/Cover: | WOOD SIDING | Floor Covering: | HARDWOOD/CARP 60-40 | | Floor Structure: | WOOD W/SUBFLOOR | Foundation: | CONCRETE | | Interior Finish: | DRYWALL PAINT | Plumbing Fixture Cnt: | 17 | | Roof Slope: | 5" IN 12" | Roof Structure/Cover: | CJ ASPHALT |
|
| | Type | Description | Class CD | Sub Class CD | Year Built | Area |
| | BAS | BASE/MAIN FLOOR | 4 | 0 | 1998 | 2668.3 |
| | OP4 | OPEN PORCH W/CEILING-ROOF | 4 | 0 | 1998 | 160.0 |
| | AGR | ATTACHED GARAGE | 4 | 0 | 1998 | 880.0 |
| | OWP | OPEN WOOD PORCH W/STEPS | 4 | 0 | 1998 | 537.3 |
Sketch
Property Image
Land
| 1 | 16 | AC (00.51-01.00) | 0.0000 | 0.00 | 0.00 | 0.00 | 1.00 | $670,000 | $0 |
Roll Value History
| 2026 | N/A | N/A | N/A | N/A | N/A |
| 2025 | $600,149 | $670,000 | $0 | $1,270,149 | $1,270,149 |
| 2024 | $607,273 | $675,000 | $0 | $1,282,273 | $1,282,273 |
| 2023 | $614,397 | $675,000 | $0 | $1,289,397 | $1,289,397 |
| 2022 | $530,549 | $450,000 | $0 | $980,549 | $980,549 |
| 2021 | $466,947 | $220,000 | $0 | $686,947 | $686,947 |
| 2020 | $454,744 | $220,000 | $0 | $674,744 | $674,744 |
| 2019 | $343,751 | $290,000 | $0 | $633,751 | $633,751 |
| 2018 | $344,759 | $250,000 | $0 | $594,759 | $594,759 |
| 2017 | $346,310 | $180,000 | $0 | $526,310 | $526,310 |
| 2016 | $338,157 | $175,000 | $0 | $513,157 | $513,157 |
| 2015 | $342,331 | $150,000 | $0 | $492,331 | $492,331 |
| 2014 | $346,507 | $150,000 | $0 | $496,507 | $496,507 |
| 2013 | $350,682 | $150,000 | $0 | $500,682 | $500,682 |
| 2012 | $354,856 | $160,000 | $0 | $514,856 | $514,856 |
| 2011 | $359,031 | $200,000 | $0 | $559,031 | $559,031 |
| 2010 | $349,151 | $200,000 | $0 | $549,151 | $549,151 |
| 2009 | $364,019 | $250,000 | $0 | $614,019 | $614,019 |
| 2008 | $381,796 | $300,000 | $0 | $681,796 | $681,796 |
| 2007 | $386,111 | $300,000 | $0 | $686,111 | $686,111 |
Deed and Sales History
| 1 | 01/01/1998 | WD | Warranty Deed | CREC, 401(K) P | WEIDERSTROM, GERALD S | | | $150,000.00 | 80209 | 98000962 |
| 2 | 01/01/1900 | OTHER | Other - Misc. Documents | Unknown | CREC, 401(K) P | | | $0.00 | 52982 | 97018034 |
Payout Agreement
| No payout information available.. |