Property
Account |
| Property ID: | 760894 | Abbreviated Legal Description: | LOT 1 SP 291-97.32907.298-3110 V3 SP P193 AF#98003144 |
| Geographic ID: | R32907-281-3110 | Agent Code: | |
| Type: | Real | | |
| Tax Area: | 712 - APPRAISER-S Whid Schl Dist, outside Langley, improved, greater than 1 acre | Land Use Code | 11 |
| Open Space: | N | DFL | N |
| Historic Property: | N | Remodel Property: | N |
| Multi-Family Redevelopment: | N | | |
| Township: | 29 | Section: | 07 |
| Range: | R3 |
Location |
| Address: | 2575 THOMPSON RD LANGLEY, WA 98260 | Mapsco: | |
| Neighborhood: | Cycle 4 | Map ID: | 745 |
| Neighborhood CD: | 4 |
Owner |
| Name: | GREEN, SHANEN | Owner ID: | 309098 |
| Mailing Address: | BRIAN J GREEN 2575 THOMPSON RD LANGLEY, WA 98260 | % Ownership: | 100.0000000000% |
| | | Exemptions: | |
Taxes and Assessment Details
Values
| (+) Improvement Homesite Value: | + | $0 | |
| (+) Improvement Non-Homesite Value: | + | $336,269 | |
| (+) Land Homesite Value: | + | $0 | |
| (+) Land Non-Homesite Value: | + | $380,000 | |
| (+) Curr Use (HS): | + | $0 | $0 |
| (+) Curr Use (NHS): | + | $0 | $0 |
| | | -------------------------- | |
| (=) Market Value: | = | $716,269 | |
| (–) Productivity Loss: | – | $0 | |
| | | -------------------------- | |
| (=) Subtotal: | = | $716,269 | |
| (+) Senior Appraised Value: | + | $0 | |
| (+) Non-Senior Appraised Value: | + | $716,269 | |
| | | -------------------------- | |
| (=) Total Appraised Value: | = | $716,269 | |
| (–) Senior Exemption Loss: | – | $0 | |
| (–) Exemption Loss: | – | $0 | |
| | | -------------------------- | |
| (=) Taxable Value: | = | $716,269 | |
Taxing Jurisdiction
| Owner: | GREEN, SHANEN | | |
| % Ownership: | 100.0000000000% | | |
| Total Value: | $716,269 | | |
| Tax Area: | 712 - APPRAISER-S Whid Schl Dist, outside Langley, improved, greater than 1 acre |
| CF | Conservation Futures | 0.0313996660 | $716,269 | $716,269 | $22.49 | | |
| FIRE3 | Fire & Rescue Dist #3 S Whidbey GEN | 1.2130821753 | $716,269 | $716,269 | $868.89 | | |
| HOBOND | Hospital BOND | 0.1893405597 | $716,269 | $716,269 | $135.62 | | |
| HOGEN | Hospital GEN | 0.3848777722 | $716,269 | $716,269 | $275.68 | | |
| CE | County Current Expense | 0.3674210519 | $716,269 | $716,269 | $263.17 | | |
| CR | County Roads | 0.4614296361 | $716,269 | $716,269 | $330.51 | | |
| ISLANDEMS | Hospital GEN (EMS) | 0.4952018576 | $716,269 | $716,269 | $354.70 | | |
| LIB | Library Sno-Isle GEN | 0.3039084203 | $716,269 | $716,269 | $217.68 | | |
| PORTWHID | Port of S Whidbey GEN | 0.1086004714 | $716,269 | $716,269 | $77.79 | | |
| SCH206BOND | School 206 BOND | 0.5960237832 | $716,269 | $716,269 | $426.91 | | |
| SCH206CAP | School 206 CP | 0.3066144020 | $716,269 | $716,269 | $219.62 | | |
| SCH206MO | School 206 Enrichment | 0.4808755445 | $716,269 | $716,269 | $344.44 | | |
| ST | State School | 1.4761226122 | $716,269 | $716,269 | $1,057.30 | | |
| ST2 | State School Part 2 | 0.7953803475 | $716,269 | $716,269 | $569.71 | | |
| SWHIDPRBD | P & R S Whidbey BOND | 0.0144185398 | $716,269 | $716,269 | $10.33 | | |
| SWHIDPRBD3 | P & R S Whidbey BOND3 | 0.1483535547 | $716,269 | $716,269 | $106.26 | | |
| SWHIDPRMT | P & R S Whidbey GEN | 0.4600000000 | $716,269 | $716,269 | $329.48 | | |
| | Total Tax Rate: | 7.8330503944 | | | | | |
| | | | | Taxes w/Current Exemptions: | $5,610.58 | | |
| | | | | Taxes w/o Exemptions: | $5,610.58 | | |
Improvement / Building
| Improvement #1: | RESIDENTIAL | State Code: | Y | 1832.1 sqft | Value: | $336,269 |
| Bathrooms: | 1.5 | Bedrooms: | 4 | | Ceiling: | DRYWALL PAINTED | Cooling: | HEAT PUMP/CONV/V | | Exterior Wall/Cover: | VINYL | Floor Covering: | HARDWOOD/CARP 60-40 | | Floor Structure: | WOOD W/SUBFLOOR | Foundation: | CONCRETE BLOCKS | | Interior Finish: | DRYWALL PAINT | Plumbing Fixture Cnt: | 8 | | Roof Slope: | 8" IN 12" | Roof Structure/Cover: | CJ ASPHALT |
|
| | Type | Description | Class CD | Sub Class CD | Year Built | Area |
| | BAS | BASE/MAIN FLOOR | 3 | 0 | 1902 | 975.3 |
| | UB6 | BASEMENT UNFINISHED 6" | 3 | 0 | 1902 | 856.8 |
| | UPS | UPPER STORY | 3 | 0 | 1902 | 856.8 |
| | OWC | OPEN WOOD PORCH W/STEPS/ROOF/C | 3 | 0 | 1902 | 378.2 |
| | ENP | ENCLOSED PORCH | 3 | 0 | 1902 | 402.0 |
| | oPOL | POLE BARN | 3 | 0 | 1902 | 0.0 |
| | oUTI | UTILITY | 3 | 0 | 1902 | 0.0 |
Sketch
Property Image
Land
| 1 | 32 | AC (03.01-09.99) | 3.6200 | 0.00 | 0.00 | 0.00 | 1.00 | $380,000 | $0 |
Roll Value History
| 2026 | N/A | N/A | N/A | N/A | N/A |
| 2025 | $336,269 | $380,000 | $0 | $716,269 | $716,269 |
| 2024 | $340,507 | $350,000 | $0 | $690,507 | $690,507 |
| 2023 | $292,320 | $330,000 | $0 | $622,320 | $622,320 |
| 2022 | $269,542 | $290,000 | $0 | $559,542 | $559,542 |
| 2021 | $239,199 | $230,000 | $0 | $469,199 | $469,199 |
| 2020 | $234,358 | $190,000 | $0 | $424,358 | $424,358 |
| 2019 | $178,587 | $250,000 | $0 | $428,587 | $428,587 |
| 2018 | $179,155 | $210,000 | $0 | $389,155 | $389,155 |
| 2017 | $180,233 | $190,000 | $0 | $370,233 | $370,233 |
| 2016 | $182,501 | $135,000 | $0 | $317,501 | $317,501 |
| 2015 | $184,766 | $135,000 | $0 | $319,766 | $319,766 |
| 2014 | $114,263 | $90,900 | $0 | $205,163 | $205,163 |
| 2013 | $116,574 | $123,480 | $0 | $240,054 | $240,054 |
| 2012 | $118,886 | $123,480 | $0 | $242,366 | $242,366 |
| 2011 | $121,200 | $123,480 | $0 | $244,680 | $244,680 |
| 2010 | $137,633 | $123,480 | $0 | $261,113 | $261,113 |
| 2009 | $144,401 | $159,680 | $0 | $304,081 | $304,081 |
| 2008 | $143,724 | $181,400 | $0 | $325,124 | $325,124 |
| 2007 | $146,821 | $139,770 | $0 | $286,591 | $286,591 |
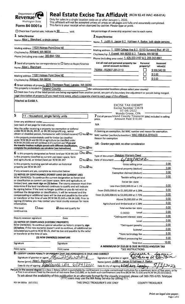
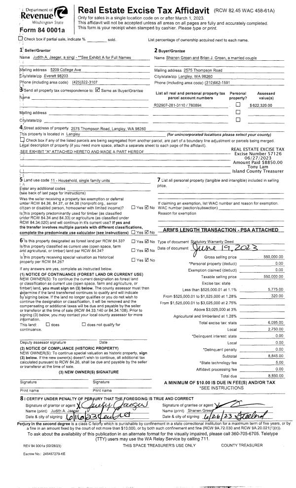
Deed and Sales History
| 1 | 06/19/2023 | WD | Warranty Deed | JAEGER, JUDITH A | GREEN, SHANEN | | | $550,000.00 | 57126 | 4561569 |
| 2 | 03/15/2023 | WD | Warranty Deed | JAEGER, JUDITH A | JAEGER, JUDITH A | | | $0.00 | 56145 | 4557876 |
| 3 | 06/29/2022 | WD | Warranty Deed | BLANCHARD, ALICE L | JAEGER, JUDITH A | | | $0.00 | 53678 | 760894 |
| 4 | 04/12/2001 | WD | Warranty Deed | US BANK TRUST NAT'L ASSOC, | BLANCHARD, ALICE L | | | $152,000.00 | 11227 | 20029609 |
| 5 | 11/03/2000 | TRUSTEED | Trustee's Deed | PAULIN, ROBERT E | US BANK TRUST NAT'L ASSOC, | | | $200,000.00 | 4311 | 20019748 |
| 6 | 01/01/1900 | OTHER | Other - Misc. Documents | Unknown | PAULIN, ROBERT E | | | $0.00 | 31260 | 93006626 |
Payout Agreement
| No payout information available.. |