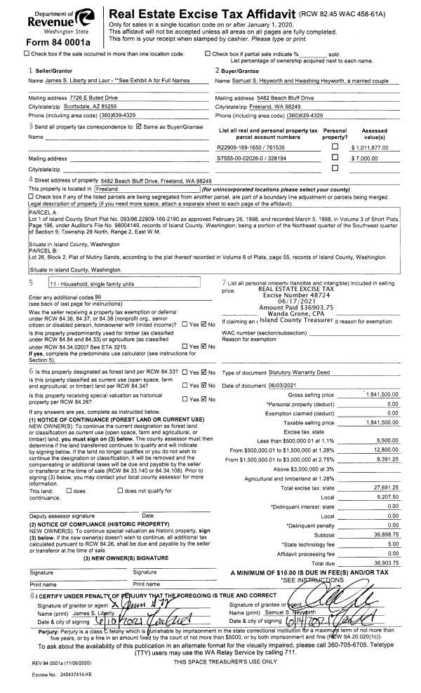
Property
Account |
| Property ID: | 761535 | Abbreviated Legal Description: | LOT 1 SP 93-96.22909.166-2190 V3 SP P196 AF#98004149 |
| Geographic ID: | R22909-169-1650 | Agent Code: | |
| Type: | Real | | |
| Tax Area: | 712 - APPRAISER-S Whid Schl Dist, outside Langley, improved, greater than 1 acre | Land Use Code | 11 |
| Open Space: | N | DFL | N |
| Historic Property: | N | Remodel Property: | N |
| Multi-Family Redevelopment: | N | | |
| Township: | 29 | Section: | 09 |
| Range: | R2 |
Location |
| Address: | 5482 BEACH BLUFF DR FREELAND, WA 98249 | Mapsco: | |
| Neighborhood: | Cycle 3 | Map ID: | 305 |
| Neighborhood CD: | 3 |
Owner |
| Name: | HEYWORTH, SAMUEL S | Owner ID: | 299825 |
| Mailing Address: | HWASHING HEYWORTH 5482 BEACH BLUFF DR FREELAND, WA 98249 | % Ownership: | 100.0000000000% |
| | | Exemptions: | |
Taxes and Assessment Details
Values
| (+) Improvement Homesite Value: | + | $0 | |
| (+) Improvement Non-Homesite Value: | + | $1,011,499 | |
| (+) Land Homesite Value: | + | $0 | |
| (+) Land Non-Homesite Value: | + | $380,000 | |
| (+) Curr Use (HS): | + | $0 | $0 |
| (+) Curr Use (NHS): | + | $0 | $0 |
| | | -------------------------- | |
| (=) Market Value: | = | $1,391,499 | |
| (–) Productivity Loss: | – | $0 | |
| | | -------------------------- | |
| (=) Subtotal: | = | $1,391,499 | |
| (+) Senior Appraised Value: | + | $0 | |
| (+) Non-Senior Appraised Value: | + | $1,391,499 | |
| | | -------------------------- | |
| (=) Total Appraised Value: | = | $1,391,499 | |
| (–) Senior Exemption Loss: | – | $0 | |
| (–) Exemption Loss: | – | $0 | |
| | | -------------------------- | |
| (=) Taxable Value: | = | $1,391,499 | |
Taxing Jurisdiction
| Owner: | HEYWORTH, SAMUEL S | | |
| % Ownership: | 100.0000000000% | | |
| Total Value: | $1,391,499 | | |
| Tax Area: | 712 - APPRAISER-S Whid Schl Dist, outside Langley, improved, greater than 1 acre |
| CF | Conservation Futures | 0.0313996660 | $1,391,499 | $1,391,499 | $43.69 | | |
| FIRE3 | Fire & Rescue Dist #3 S Whidbey GEN | 1.2130821753 | $1,391,499 | $1,391,499 | $1,688.00 | | |
| HOBOND | Hospital BOND | 0.1893405597 | $1,391,499 | $1,391,499 | $263.47 | | |
| HOGEN | Hospital GEN | 0.3848777722 | $1,391,499 | $1,391,499 | $535.56 | | |
| CE | County Current Expense | 0.3674210519 | $1,391,499 | $1,391,499 | $511.27 | | |
| CR | County Roads | 0.4614296361 | $1,391,499 | $1,391,499 | $642.08 | | |
| ISLANDEMS | Hospital GEN (EMS) | 0.4952018576 | $1,391,499 | $1,391,499 | $689.07 | | |
| LIB | Library Sno-Isle GEN | 0.3039084203 | $1,391,499 | $1,391,499 | $422.89 | | |
| PORTWHID | Port of S Whidbey GEN | 0.1086004714 | $1,391,499 | $1,391,499 | $151.12 | | |
| SCH206BOND | School 206 BOND | 0.5960237832 | $1,391,499 | $1,391,499 | $829.37 | | |
| SCH206CAP | School 206 CP | 0.3066144020 | $1,391,499 | $1,391,499 | $426.65 | | |
| SCH206MO | School 206 Enrichment | 0.4808755445 | $1,391,499 | $1,391,499 | $669.14 | | |
| ST | State School | 1.4761226122 | $1,391,499 | $1,391,499 | $2,054.02 | | |
| ST2 | State School Part 2 | 0.7953803475 | $1,391,499 | $1,391,499 | $1,106.77 | | |
| SWHIDPRBD | P & R S Whidbey BOND | 0.0144185398 | $1,391,499 | $1,391,499 | $20.06 | | |
| SWHIDPRBD3 | P & R S Whidbey BOND3 | 0.1483535547 | $1,391,499 | $1,391,499 | $206.43 | | |
| SWHIDPRMT | P & R S Whidbey GEN | 0.4600000000 | $1,391,499 | $1,391,499 | $640.09 | | |
| | Total Tax Rate: | 7.8330503944 | | | | | |
| | | | | Taxes w/Current Exemptions: | $10,899.68 | | |
| | | | | Taxes w/o Exemptions: | $10,899.68 | | |
Improvement / Building
| Improvement #1: | RESIDENTIAL | State Code: | Y | 4902.9 sqft | Value: | $1,011,499 |
| Bathrooms: | 3 | Bedrooms: | 4 | | Ceiling: | DRYWALL PAINTED | Exterior Wall/Cover: | WOOD SIDING | | Floor Covering: | CERAMIC TILE/CPT 40-60 | Floor Structure: | WOOD W/SUBFLOOR | | Foundation: | CONCRETE | Heating: | RADIANT FLOOR | | Interior Finish: | DRYWALL PAINT | Plumbing Fixture Cnt: | 16 | | Roof Slope: | 4" IN 12" | Roof Structure/Cover: | CJ CLAY TILE |
|
| | Type | Description | Class CD | Sub Class CD | Year Built | Area |
| | BAS | BASE/MAIN FLOOR | 5 | 0 | 1991 | 3389.7 |
| | OP1 | OPEN PORCH SLAB | 5 | 0 | 1991 | 479.6 |
| | OP4 | OPEN PORCH W/CEILING-ROOF | 5 | 0 | 1991 | 34.4 |
| | AGR | ATTACHED GARAGE | 5 | 0 | 1991 | 1000.0 |
| | UB8 | BASEMENT UNFINISHED 8" | 5 | 0 | 1991 | 224.3 |
| | OWP | OPEN WOOD PORCH W/STEPS | 5 | 0 | 1991 | 1197.6 |
| | OWC | OPEN WOOD PORCH W/STEPS/ROOF/C | 5 | 0 | 1991 | 134.7 |
| | DWN | DOWNSTAIRS LIVING AREA | 5 | 0 | 1991 | 1513.2 |
Sketch
Property Image
Land
| 1 | 18 | AC (02.01-03.00) | 0.0000 | 0.00 | 0.00 | 0.00 | 1.00 | $380,000 | $0 |
Roll Value History
| 2026 | N/A | N/A | N/A | N/A | N/A |
| 2025 | $1,011,499 | $380,000 | $0 | $1,391,499 | $1,391,499 |
| 2024 | $1,023,365 | $360,000 | $0 | $1,383,365 | $1,383,365 |
| 2023 | $1,035,230 | $330,000 | $0 | $1,365,230 | $1,365,230 |
| 2022 | $948,152 | $280,000 | $0 | $1,228,152 | $1,228,152 |
| 2021 | $833,826 | $250,000 | $0 | $1,083,826 | $1,083,826 |
| 2020 | $811,877 | $200,000 | $0 | $1,011,877 | $1,011,877 |
| 2019 | $749,486 | $260,000 | $0 | $1,009,486 | $1,009,486 |
| 2018 | $751,540 | $250,000 | $0 | $1,001,540 | $1,001,540 |
| 2017 | $755,659 | $250,000 | $0 | $1,005,659 | $1,005,659 |
| 2016 | $763,873 | $250,000 | $0 | $1,013,873 | $1,013,873 |
| 2015 | $568,776 | $200,000 | $0 | $768,776 | $768,776 |
| 2014 | $575,547 | $200,000 | $0 | $775,547 | $775,547 |
| 2013 | $620,174 | $150,000 | $0 | $770,174 | $770,174 |
| 2012 | $628,052 | $161,500 | $0 | $789,552 | $789,552 |
| 2011 | $635,931 | $190,000 | $0 | $825,931 | $825,931 |
| 2010 | $690,818 | $190,000 | $0 | $880,818 | $880,818 |
| 2009 | $720,605 | $225,000 | $0 | $945,605 | $945,605 |
| 2008 | $729,599 | $255,000 | $0 | $984,599 | $984,599 |
| 2007 | $768,673 | $255,000 | $0 | $1,023,673 | $1,023,673 |
Deed and Sales History
| 1 | 06/03/2021 | WD | Warranty Deed | LIBERTY, JAMES S | HEYWORTH, SAMUEL S | | | $1,841,500.00 | 48724 | 4522089 |
|   | |
| 2 | 05/16/2016 | WD | Warranty Deed | CHAPMAN, LAWRENCE E | LIBERTY, JAMES S | | | $1,079,000.00 | 24696 | 4400887 |
|   | |
| 3 | 04/26/1999 | WD | Warranty Deed | KING, GEORGE V | CHAPMAN, LAWRENCE E | | | $582,500.00 | 91639 | 99010413 |
| 4 | 01/01/1900 | OTHER | Other - Misc. Documents | Unknown | KING, GEORGE V | | | $0.00 | 31302 | 93006812 |
Payout Agreement
| No payout information available.. |