Property
Account |
| Property ID: | 76321 | Abbreviated Legal Description: | 95 - E/2 N/2 S/2 NE NE EX RDS |
| Geographic ID: | R23111-454-5010 | Agent Code: | |
| Type: | Real | | |
| Tax Area: | 512 - APPRAISER-Stan/Cam Schl Dist, improved, greater than 1 acre | Land Use Code | 11 |
| Open Space: | N | DFL | N |
| Historic Property: | N | Remodel Property: | N |
| Multi-Family Redevelopment: | N | | |
| Township: | 31 | Section: | 11 |
| Range: | R2 |
Location |
| Address: | | Mapsco: | |
| Neighborhood: | Cycle 5 | Map ID: | 472 |
| Neighborhood CD: | 5 |
Owner |
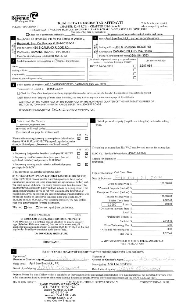
| Name: | BRODNICKI, APRIL L | Owner ID: | 289662 |
| Mailing Address: | 460 S CAMANO RIDGE RD CAMANO ISLAND, WA 98282 | % Ownership: | 100.0000000000% |
| | | Exemptions: | SNR/DSBL |
Taxes and Assessment Details
Values
| (+) Improvement Homesite Value: | + | $194,470 | |
| (+) Improvement Non-Homesite Value: | + | $0 | |
| (+) Land Homesite Value: | + | $330,000 | |
| (+) Land Non-Homesite Value: | + | $0 | |
| (+) Curr Use (HS): | + | $0 | $0 |
| (+) Curr Use (NHS): | + | $0 | $0 |
| | | -------------------------- | |
| (=) Market Value: | = | $524,470 | |
| (–) Productivity Loss: | – | $0 | |
| | | -------------------------- | |
| (=) Subtotal: | = | $524,470 | |
| (+) Senior Appraised Value: | + | $345,025 | |
| (+) Non-Senior Appraised Value: | + | $0 | |
| | | -------------------------- | |
| (=) Total Appraised Value: | = | $345,025 | |
| (–) Senior Exemption Loss: | – | $207,015 | |
| (–) Exemption Loss: | – | $0 | |
| | | -------------------------- | |
| (=) Taxable Value: | = | $138,010 | |
Taxing Jurisdiction
| Owner: | BRODNICKI, APRIL L | | |
| % Ownership: | 100.0000000000% | | |
| Total Value: | $524,470 | | |
| Tax Area: | 512 - APPRAISER-Stan/Cam Schl Dist, improved, greater than 1 acre |
| CF | Conservation Futures | 0.0313996660 | $524,470 | $138,010 | $4.33 | | |
| EMS1 | Fire & Rescue Dist #1 Camano GEN (EMS) | 0.4998471806 | $524,470 | $138,010 | $68.98 | | |
| FIRE1 | Fire & Rescue Dist #1 Camano GEN | 1.2496603404 | $524,470 | $138,010 | $172.47 | | |
| FIRE1BOND | Fire & Rescue Dist #1 Camano BOND | 0.0000000000 | $524,470 | $0 | $0.00 | | |
| CE | County Current Expense | 0.3674210519 | $524,470 | $138,010 | $50.71 | | |
| CR | County Roads | 0.4614296361 | $524,470 | $138,010 | $63.68 | | |
| LIB | Library Sno-Isle GEN | 0.3039084203 | $524,470 | $138,010 | $41.94 | | |
| SCH205_401 | School 205-401 Enrichment | 0.0000000000 | $524,470 | $0 | $0.00 | | |
| SCH205BOND | School 205-401 BOND | 0.0000000000 | $524,470 | $0 | $0.00 | | |
| ST | State School | 1.4761226122 | $524,470 | $138,010 | $203.72 | | |
| ST2 | State School Part 2 | 0.0000000000 | $524,470 | $0 | $0.00 | | |
| | Total Tax Rate: | 4.3897889075 | | | | | |
| | | | | Taxes w/Current Exemptions: | $605.83 | | |
| | | | | Taxes w/o Exemptions: | $4,013.99 | | |
Improvement / Building
| Improvement #1: | RESIDENTIAL | State Code: | Y | 1440.0 sqft | Value: | $194,470 |
| Bathrooms: | 1.75 | Bedrooms: | 3 | | Ceiling: | DRYWALL PAINTED | Cooling: | HEAT PUMP/CONV/V | | Exterior Wall/Cover: | PLY/HARDBOARD T-111 | Floor Covering: | CARPET/VINYL 80-20 | | Floor Structure: | WOOD W/SUBFLOOR | Foundation: | CONCRETE | | Interior Finish: | DRYWALL PAINT | Plumbing Fixture Cnt: | 9 | | Roof Slope: | 4" IN 12" | Roof Structure/Cover: | CJ ASPHALT |
|
| | Type | Description | Class CD | Sub Class CD | Year Built | Area |
| | BAS | BASE/MAIN FLOOR | 3 | 0 | 1973 | 1440.0 |
| | OWP | OPEN WOOD PORCH W/STEPS | 3 | 0 | 1973 | 200.0 |
| | OWR | OPEN WOOD PORCH W/STEPS/ROOF | 3 | 0 | 1973 | 110.0 |
| | OWR | OPEN WOOD PORCH W/STEPS/ROOF | 3 | 0 | 1973 | 88.0 |
| | ENP | ENCLOSED PORCH | 3 | 0 | 1973 | 110.0 |
| | CPD | OPEN CARPORT DIRT FLOOR | 3 | 0 | 1973 | 216.0 |
| | UTY | STORAGE/UTILITY | 3 | 0 | 1973 | 216.0 |
Sketch
Property Image
Land
| 1 | 32 | AC (03.01-09.99) | 4.7800 | 0.00 | 0.00 | 0.00 | 1.00 | $330,000 | $0 |
Roll Value History
| 2026 | N/A | N/A | N/A | N/A | N/A |
| 2025 | $194,470 | $330,000 | $0 | $524,470 | $138,010 |
| 2024 | $197,495 | $300,000 | $0 | $497,495 | $138,010 |
| 2023 | $198,044 | $290,000 | $0 | $488,044 | $137,034 |
| 2022 | $182,031 | $290,000 | $0 | $472,031 | $137,034 |
| 2021 | $160,644 | $190,000 | $0 | $350,644 | $137,034 |
| 2020 | $156,835 | $160,000 | $0 | $316,835 | $126,734 |
| 2019 | $112,584 | $230,000 | $0 | $342,584 | $137,034 |
| 2018 | $112,984 | $175,000 | $0 | $287,984 | $126,378 |
| 2017 | $113,786 | $150,000 | $0 | $263,786 | $126,378 |
| 2016 | $115,388 | $150,000 | $0 | $265,388 | $126,378 |
| 2015 | $87,356 | $107,072 | $0 | $194,428 | $126,378 |
| 2014 | $88,645 | $107,072 | $0 | $195,717 | $195,717 |
| 2013 | $89,932 | $107,072 | $0 | $197,004 | $197,004 |
| 2012 | $91,220 | $107,072 | $0 | $198,292 | $198,292 |
| 2011 | $92,506 | $133,840 | $0 | $226,346 | $226,346 |
| 2010 | $99,517 | $133,840 | $0 | $233,357 | $233,357 |
| 2009 | $103,753 | $152,960 | $0 | $256,713 | $256,713 |
| 2008 | $105,107 | $141,966 | $0 | $247,073 | $247,073 |
| 2007 | $106,462 | $141,966 | $0 | $248,428 | $248,428 |
Deed and Sales History
| 1 | 05/06/2019 | QCD | Quit Claim Deed | BRODNICKI, WALTER J | BRODNICKI, APRIL L | | | $158,000.00 | 37639 | 4459488 |
| 2 | 01/01/1900 | OTHER | Other - Misc. Documents | Unknown | BRODNICKI, WALTER J | | | $0.00 | 0 | 0 |
Payout Agreement
| No payout information available.. |