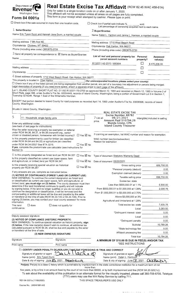
Property
Account |
| Property ID: | 77366 | Abbreviated Legal Description: | 30 - IN NW NW: BG NWCR SEC 12 E320.94' S658.12' W320' M/L TO WLN SEC 12 N658.12' TPB EX W30' CO RD SUB EZ N30' & S30' |
| Geographic ID: | R23112-505-0180 | Agent Code: | |
| Type: | Real | | |
| Tax Area: | 512 - APPRAISER-Stan/Cam Schl Dist, improved, greater than 1 acre | Land Use Code | 11 |
| Open Space: | N | DFL | N |
| Historic Property: | N | Remodel Property: | N |
| Multi-Family Redevelopment: | N | | |
| Township: | 31 | Section: | 12 |
| Range: | R2 |
Location |
| Address: | 385 COOK RD CAMANO ISLAND, WA 98282 | Mapsco: | |
| Neighborhood: | Cycle 5 | Map ID: | 475 |
| Neighborhood CD: | 5 |
Owner |
| Name: | DUNCAN, SARI | Owner ID: | 299867 |
| Mailing Address: | CAROL WINGATE 385 COOK RD CAMANO ISLAND, WA 98282 | % Ownership: | 100.0000000000% |
| | | Exemptions: | |
Taxes and Assessment Details
Values
| (+) Improvement Homesite Value: | + | $0 | |
| (+) Improvement Non-Homesite Value: | + | $497,809 | |
| (+) Land Homesite Value: | + | $0 | |
| (+) Land Non-Homesite Value: | + | $330,000 | |
| (+) Curr Use (HS): | + | $0 | $0 |
| (+) Curr Use (NHS): | + | $0 | $0 |
| | | -------------------------- | |
| (=) Market Value: | = | $827,809 | |
| (–) Productivity Loss: | – | $0 | |
| | | -------------------------- | |
| (=) Subtotal: | = | $827,809 | |
| (+) Senior Appraised Value: | + | $0 | |
| (+) Non-Senior Appraised Value: | + | $827,809 | |
| | | -------------------------- | |
| (=) Total Appraised Value: | = | $827,809 | |
| (–) Senior Exemption Loss: | – | $0 | |
| (–) Exemption Loss: | – | $0 | |
| | | -------------------------- | |
| (=) Taxable Value: | = | $827,809 | |
Taxing Jurisdiction
| Owner: | DUNCAN, SARI | | |
| % Ownership: | 100.0000000000% | | |
| Total Value: | $827,809 | | |
| Tax Area: | 512 - APPRAISER-Stan/Cam Schl Dist, improved, greater than 1 acre |
| CF | Conservation Futures | 0.0313996660 | $827,809 | $827,809 | $25.99 | | |
| EMS1 | Fire & Rescue Dist #1 Camano GEN (EMS) | 0.4998471806 | $827,809 | $827,809 | $413.78 | | |
| FIRE1 | Fire & Rescue Dist #1 Camano GEN | 1.2496603404 | $827,809 | $827,809 | $1,034.48 | | |
| FIRE1BOND | Fire & Rescue Dist #1 Camano BOND | 0.1630371212 | $827,809 | $827,809 | $134.96 | | |
| CE | County Current Expense | 0.3674210519 | $827,809 | $827,809 | $304.15 | | |
| CR | County Roads | 0.4614296361 | $827,809 | $827,809 | $381.98 | | |
| LIB | Library Sno-Isle GEN | 0.3039084203 | $827,809 | $827,809 | $251.58 | | |
| SCH205_401 | School 205-401 Enrichment | 1.3697998934 | $827,809 | $827,809 | $1,133.93 | | |
| SCH205BOND | School 205-401 BOND | 0.9354199323 | $827,809 | $827,809 | $774.35 | | |
| ST | State School | 1.4761226122 | $827,809 | $827,809 | $1,221.95 | | |
| ST2 | State School Part 2 | 0.7953803475 | $827,809 | $827,809 | $658.42 | | |
| | Total Tax Rate: | 7.6534262019 | | | | | |
| | | | | Taxes w/Current Exemptions: | $6,335.57 | | |
| | | | | Taxes w/o Exemptions: | $6,335.57 | | |
Improvement / Building
| Improvement #1: | RESIDENTIAL | State Code: | Y | 1931.0 sqft | Value: | $497,809 |
| Bathrooms: | 2 | Bedrooms: | 3 | | Ceiling: | DRYWALL PAINTED | Cooling: | HEAT PUMP/CONV/V | | Exterior Wall/Cover: | PLY/HARDBOARD T-111 | Floor Covering: | VINYL 100% | | Floor Structure: | WOOD W/SUBFLOOR | Foundation: | SLAB | | Interior Finish: | DRYWALL PAINT | Plumbing Fixture Cnt: | 10 | | Roof Slope: | 8" IN 12" | Roof Structure/Cover: | CJ ASPHALT |
|
| | Type | Description | Class CD | Sub Class CD | Year Built | Area |
| | BAS | BASE/MAIN FLOOR | 4 | 0 | 2022 | 1931.0 |
| | AGR | ATTACHED GARAGE | 4 | 0 | 2022 | 682.0 |
| | OWC | OPEN WOOD PORCH W/STEPS/ROOF/C | 4 | 0 | 2022 | 160.0 |
| | OP4 | OPEN PORCH W/CEILING-ROOF | 4 | 0 | 2022 | 140.0 |
| | DGR | DETACHED GARAGE | 4 | 0 | 2022 | 864.0 |
Sketch
Property Image
Land
| 1 | 32 | AC (03.01-09.99) | 4.4000 | 0.00 | 0.00 | 0.00 | 1.00 | $330,000 | $0 |
Roll Value History
| 2026 | N/A | N/A | N/A | N/A | N/A |
| 2025 | $497,809 | $330,000 | $0 | $827,809 | $827,809 |
| 2024 | $503,036 | $300,000 | $0 | $803,036 | $803,036 |
| 2023 | $512,182 | $290,000 | $0 | $802,182 | $802,182 |
| 2022 | $425,937 | $180,000 | $0 | $605,937 | $605,937 |
| 2021 | $0 | $140,000 | $0 | $140,000 | $140,000 |
| 2020 | $0 | $120,000 | $0 | $120,000 | $120,000 |
| 2019 | $0 | $130,000 | $0 | $130,000 | $130,000 |
| 2018 | $0 | $120,000 | $0 | $120,000 | $120,000 |
| 2017 | $0 | $90,000 | $0 | $90,000 | $90,000 |
| 2016 | $0 | $80,000 | $0 | $80,000 | $80,000 |
| 2015 | $0 | $88,000 | $0 | $88,000 | $88,000 |
| 2014 | $0 | $88,000 | $0 | $88,000 | $88,000 |
| 2013 | $0 | $105,600 | $0 | $105,600 | $105,600 |
| 2012 | $0 | $105,600 | $0 | $105,600 | $105,600 |
| 2011 | $0 | $105,600 | $0 | $105,600 | $105,600 |
| 2010 | $0 | $105,600 | $0 | $105,600 | $105,600 |
| 2009 | $0 | $132,000 | $0 | $132,000 | $132,000 |
| 2008 | $0 | $134,200 | $0 | $134,200 | $134,200 |
| 2007 | $0 | $114,400 | $0 | $114,400 | $114,400 |
Deed and Sales History
| 1 | 06/14/2021 | WD | Warranty Deed | OVERVOLD, EDGAR | DUNCAN, SARI | | | $160,000.00 | 48771 | 4522298 |
| 2 | 07/01/1992 | QCD | Quit Claim Deed | OVERVOLD, EDGAR & | OVERVOLD, EDGAR | | | $0.00 | 23956 | 92019197 |
| 3 | 01/01/1900 | OTHER | Other - Misc. Documents | Unknown | OVERVOLD, EDGAR & | | | $0.00 | 0 | 0 |
Payout Agreement
| No payout information available.. |