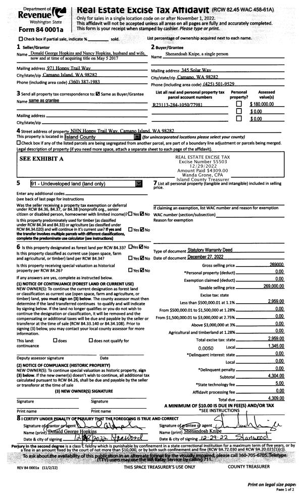
Property
Account |
| Property ID: | 77981 | Abbreviated Legal Description: | 24 - S/2 SE SW NW TGW & SUBJ TO EZ 299344 |
| Geographic ID: | R23113-284-1050 | Agent Code: | |
| Type: | Real | | |
| Tax Area: | 519 - APPRAISER-Stan/Cam Schl Dist, vacant & 50 acres or less | Land Use Code | 91 |
| Open Space: | N | DFL | N |
| Historic Property: | N | Remodel Property: | N |
| Multi-Family Redevelopment: | N | | |
| Township: | 31 | Section: | 13 |
| Range: | R2 |
Location |
| Address: | | Mapsco: | |
| Neighborhood: | Cycle 5 | Map ID: | 479 |
| Neighborhood CD: | 5 |
Owner |
| Name: | KNIPE, SHENANDOAH | Owner ID: | 307067 |
| Mailing Address: | 345 SOLAR WAY CAMANO ISLAND, WA 98282 | % Ownership: | 100.0000000000% |
| | | Exemptions: | |
Taxes and Assessment Details
Values
| (+) Improvement Homesite Value: | + | $0 | |
| (+) Improvement Non-Homesite Value: | + | $0 | |
| (+) Land Homesite Value: | + | $0 | |
| (+) Land Non-Homesite Value: | + | $240,000 | |
| (+) Curr Use (HS): | + | $0 | $0 |
| (+) Curr Use (NHS): | + | $0 | $0 |
| | | -------------------------- | |
| (=) Market Value: | = | $240,000 | |
| (–) Productivity Loss: | – | $0 | |
| | | -------------------------- | |
| (=) Subtotal: | = | $240,000 | |
| (+) Senior Appraised Value: | + | $0 | |
| (+) Non-Senior Appraised Value: | + | $240,000 | |
| | | -------------------------- | |
| (=) Total Appraised Value: | = | $240,000 | |
| (–) Senior Exemption Loss: | – | $0 | |
| (–) Exemption Loss: | – | $0 | |
| | | -------------------------- | |
| (=) Taxable Value: | = | $240,000 | |
Taxing Jurisdiction
| Owner: | KNIPE, SHENANDOAH | | |
| % Ownership: | 100.0000000000% | | |
| Total Value: | $240,000 | | |
| Tax Area: | 519 - APPRAISER-Stan/Cam Schl Dist, vacant & 50 acres or less |
| CF | Conservation Futures | 0.0313996660 | $240,000 | $240,000 | $7.54 | | |
| EMS1 | Fire & Rescue Dist #1 Camano GEN (EMS) | 0.4998471806 | $240,000 | $240,000 | $119.96 | | |
| CE | County Current Expense | 0.3674210519 | $240,000 | $240,000 | $88.18 | | |
| CR | County Roads | 0.4614296361 | $240,000 | $240,000 | $110.74 | | |
| LIB | Library Sno-Isle GEN | 0.3039084203 | $240,000 | $240,000 | $72.94 | | |
| SCH205_401 | School 205-401 Enrichment | 1.3697998934 | $240,000 | $240,000 | $328.75 | | |
| SCH205BOND | School 205-401 BOND | 0.9354199323 | $240,000 | $240,000 | $224.50 | | |
| ST | State School | 1.4761226122 | $240,000 | $240,000 | $354.27 | | |
| ST2 | State School Part 2 | 0.7953803475 | $240,000 | $240,000 | $190.89 | | |
| | Total Tax Rate: | 6.2407287403 | | | | | |
| | | | | Taxes w/Current Exemptions: | $1,497.77 | | |
| | | | | Taxes w/o Exemptions: | $1,497.77 | | |
Improvement / Building
Sketch
| No sketches available for this property. |
Property Image
Land
| 1 | 32 | AC (03.01-09.99) | 4.9555 | 215863.00 | 0.00 | 0.00 | 1.00 | $240,000 | $0 |
Roll Value History
| 2026 | N/A | N/A | N/A | N/A | N/A |
| 2025 | $0 | $240,000 | $0 | $240,000 | $240,000 |
| 2024 | $0 | $220,000 | $0 | $220,000 | $220,000 |
| 2023 | $0 | $200,000 | $0 | $200,000 | $200,000 |
| 2022 | $0 | $180,000 | $0 | $180,000 | $180,000 |
| 2021 | $0 | $140,000 | $0 | $140,000 | $140,000 |
| 2020 | $0 | $120,000 | $0 | $120,000 | $120,000 |
| 2019 | $0 | $130,000 | $0 | $130,000 | $130,000 |
| 2018 | $0 | $120,000 | $0 | $120,000 | $120,000 |
| 2017 | $0 | $90,000 | $0 | $90,000 | $90,000 |
| 2016 | $0 | $80,000 | $0 | $80,000 | $80,000 |
| 2015 | $0 | $100,000 | $0 | $100,000 | $100,000 |
| 2014 | $0 | $100,000 | $0 | $100,000 | $100,000 |
| 2013 | $0 | $120,000 | $0 | $120,000 | $120,000 |
| 2012 | $0 | $120,000 | $0 | $120,000 | $120,000 |
| 2011 | $0 | $120,000 | $0 | $120,000 | $120,000 |
| 2010 | $0 | $120,000 | $0 | $120,000 | $120,000 |
| 2009 | $0 | $150,000 | $0 | $150,000 | $150,000 |
| 2008 | $0 | $152,500 | $0 | $152,500 | $152,500 |
| 2007 | $0 | $130,000 | $0 | $130,000 | $130,000 |
Deed and Sales History
| 1 | 12/27/2022 | WD | Warranty Deed | HOPKINS, DONALD GEORGE | KNIPE, SHENANDOAH | | | $269,000.00 | 55503 | 4555236 |
| 2 | 02/01/1999 | QCD | Quit Claim Deed | HOPKINS, STEVEN ROSS | HOPKINS, DONALD GEORGE | | | $0.00 | 24584 | 4422000 |
| 3 | 02/01/1999 | QCD | Quit Claim Deed | HOPKINS, FORREST F | HOPKINS, STEVEN ROSS | | | $0.00 | 90430 | 99002751 |
| 4 | 04/01/1996 | QCD | Quit Claim Deed | HOPKINS, FORREST O | HOPKINS, FORREST F | | | $0.00 | 61514 | 96007551 |
| 5 | 06/01/1994 | QCD | Quit Claim Deed | HOPKINS, FORREST O | HOPKINS, FORREST O | | | $0.00 | 61511 | 96007548 |
| 6 | 03/01/1979 | OTHER | Other - Misc. Documents | Unknown | HOPKINS, FORREST O | | | $3,500.00 | 91019 | 348657 |
Payout Agreement
| No payout information available.. |