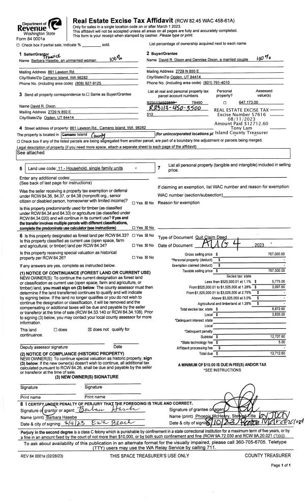
Property
Account |
| Property ID: | 78490 | Abbreviated Legal Description: | 20-1 - LOT 20 BLK 1 CAMANO SUNRISE #1 V3 SUR P90 AF#300279 TGW EZ |
| Geographic ID: | R23113-450-3500 | Agent Code: | |
| Type: | Real | | |
| Tax Area: | 512 - APPRAISER-Stan/Cam Schl Dist, improved, greater than 1 acre | Land Use Code | 11 |
| Open Space: | N | DFL | N |
| Historic Property: | N | Remodel Property: | N |
| Multi-Family Redevelopment: | N | | |
| Township: | 31 | Section: | 13 |
| Range: | R2 |
Location |
| Address: | 861 LAWSON RD CAMANO ISLAND, WA 98282 | Mapsco: | |
| Neighborhood: | Cycle 5 | Map ID: | 480 |
| Neighborhood CD: | 5 |
Owner |
| Name: | DIXON, DAVID R | Owner ID: | 309658 |
| Mailing Address: | DENNISE DIXON 861 LAWSON RD CAMANO ISLAND, WA 98282 | % Ownership: | 100.0000000000% |
| | | Exemptions: | |
Taxes and Assessment Details
Values
| (+) Improvement Homesite Value: | + | $0 | |
| (+) Improvement Non-Homesite Value: | + | $440,900 | |
| (+) Land Homesite Value: | + | $0 | |
| (+) Land Non-Homesite Value: | + | $330,000 | |
| (+) Curr Use (HS): | + | $0 | $0 |
| (+) Curr Use (NHS): | + | $0 | $0 |
| | | -------------------------- | |
| (=) Market Value: | = | $770,900 | |
| (–) Productivity Loss: | – | $0 | |
| | | -------------------------- | |
| (=) Subtotal: | = | $770,900 | |
| (+) Senior Appraised Value: | + | $0 | |
| (+) Non-Senior Appraised Value: | + | $770,900 | |
| | | -------------------------- | |
| (=) Total Appraised Value: | = | $770,900 | |
| (–) Senior Exemption Loss: | – | $0 | |
| (–) Exemption Loss: | – | $0 | |
| | | -------------------------- | |
| (=) Taxable Value: | = | $770,900 | |
Taxing Jurisdiction
| Owner: | DIXON, DAVID R | | |
| % Ownership: | 100.0000000000% | | |
| Total Value: | $770,900 | | |
| Tax Area: | 512 - APPRAISER-Stan/Cam Schl Dist, improved, greater than 1 acre |
| CF | Conservation Futures | 0.0313996660 | $770,900 | $770,900 | $24.21 | | |
| EMS1 | Fire & Rescue Dist #1 Camano GEN (EMS) | 0.4998471806 | $770,900 | $770,900 | $385.33 | | |
| FIRE1 | Fire & Rescue Dist #1 Camano GEN | 1.2496603404 | $770,900 | $770,900 | $963.36 | | |
| FIRE1BOND | Fire & Rescue Dist #1 Camano BOND | 0.1630371212 | $770,900 | $770,900 | $125.69 | | |
| CE | County Current Expense | 0.3674210519 | $770,900 | $770,900 | $283.24 | | |
| CR | County Roads | 0.4614296361 | $770,900 | $770,900 | $355.72 | | |
| LIB | Library Sno-Isle GEN | 0.3039084203 | $770,900 | $770,900 | $234.28 | | |
| SCH205_401 | School 205-401 Enrichment | 1.3697998934 | $770,900 | $770,900 | $1,055.98 | | |
| SCH205BOND | School 205-401 BOND | 0.9354199323 | $770,900 | $770,900 | $721.12 | | |
| ST | State School | 1.4761226122 | $770,900 | $770,900 | $1,137.94 | | |
| ST2 | State School Part 2 | 0.7953803475 | $770,900 | $770,900 | $613.16 | | |
| | Total Tax Rate: | 7.6534262019 | | | | | |
| | | | | Taxes w/Current Exemptions: | $5,900.03 | | |
| | | | | Taxes w/o Exemptions: | $5,900.03 | | |
Improvement / Building
| Improvement #1: | RESIDENTIAL | State Code: | Y | 3253.1 sqft | Value: | $440,900 |
| Bathrooms: | 2.75 | Bedrooms: | 6 | | Ceiling: | BEAM PAINTED | Cooling: | HEAT PUMP/CONV/V | | Exterior Wall/Cover: | WOOD SIDING | Floor Covering: | HARDWOOD/CARP 20-80 | | Floor Structure: | WOOD W/SUBFLOOR | Foundation: | CONCRETE | | Interior Finish: | DRYWALL PAINT | Plumbing Fixture Cnt: | 16 | | Roof Slope: | 6" IN 12" | Roof Structure/Cover: | BEAM WOOD SHAKES |
|
| | Type | Description | Class CD | Sub Class CD | Year Built | Area |
| | BAS | BASE/MAIN FLOOR | 3 | 0 | 1980 | 1398.2 |
| | AGR | ATTACHED GARAGE | 3 | 0 | 1980 | 529.0 |
| | UPS | UPPER STORY | 3 | 0 | 1980 | 552.0 |
| | OWP | OPEN WOOD PORCH W/STEPS | 3 | 0 | 1980 | 405.1 |
| | OWP | OPEN WOOD PORCH W/STEPS | 3 | 0 | 1980 | 67.0 |
| | OWR | OPEN WOOD PORCH W/STEPS/ROOF | 3 | 0 | 1980 | 38.3 |
| | ENP | ENCLOSED PORCH | 3 | 0 | 1980 | 90.0 |
| | DWN | DOWNSTAIRS LIVING AREA | 3 | 0 | 1980 | 1302.9 |
| | UTY | STORAGE/UTILITY | 3 | 0 | 1980 | 448.0 |
Sketch
Property Image
Land
| 1 | 32 | AC (03.01-09.99) | 5.0000 | 0.00 | 0.00 | 0.00 | 1.00 | $330,000 | $0 |
Roll Value History
| 2026 | N/A | N/A | N/A | N/A | N/A |
| 2025 | $440,900 | $330,000 | $0 | $770,900 | $770,900 |
| 2024 | $439,099 | $300,000 | $0 | $739,099 | $739,099 |
| 2023 | $389,128 | $290,000 | $0 | $679,128 | $679,128 |
| 2022 | $357,173 | $290,000 | $0 | $647,173 | $647,173 |
| 2021 | $291,557 | $190,000 | $0 | $481,557 | $481,557 |
| 2020 | $285,346 | $160,000 | $0 | $445,346 | $445,346 |
| 2019 | $231,898 | $230,000 | $0 | $461,898 | $461,898 |
| 2018 | $232,690 | $175,000 | $0 | $407,690 | $407,690 |
| 2017 | $234,273 | $150,000 | $0 | $384,273 | $384,273 |
| 2016 | $237,438 | $125,000 | $0 | $362,438 | $362,438 |
| 2015 | $228,109 | $125,000 | $0 | $353,109 | $353,109 |
| 2014 | $231,564 | $125,000 | $0 | $356,564 | $356,564 |
| 2013 | $235,022 | $112,000 | $0 | $347,022 | $347,022 |
| 2012 | $238,477 | $112,000 | $0 | $350,477 | $350,477 |
| 2011 | $241,933 | $140,000 | $0 | $381,933 | $381,933 |
| 2010 | $259,069 | $140,000 | $0 | $399,069 | $399,069 |
| 2009 | $280,965 | $160,000 | $0 | $440,965 | $440,965 |
| 2008 | $284,612 | $215,000 | $0 | $499,612 | $499,612 |
| 2007 | $288,260 | $147,500 | $0 | $435,760 | $435,760 |
Deed and Sales History
| 1 | 08/04/2023 | QCD | Quit Claim Deed | HASEBE, EDWIN NORIO | DIXON, DAVID R | | | $767,000.00 | 57616 | 4563395 |
| 2 | 01/27/2016 | WD | Warranty Deed | HOLM, RICHARD E / KRISTINE F | HASEBE, EDWIN NORIO | | | $367,999.00 | 23011 | 4393393 |
| 3 | 06/01/1996 | WD | Warranty Deed | HOLM, RICHARD E | HOLM, RICHARD E | | | $169,000.00 | 62268 | 96011208 |
| 4 | 06/01/1996 | QCD | Quit Claim Deed | WOOLWORTH, RICHARD A | HOLM, RICHARD E | | | $0.00 | 62269 | 96011209 |
| 5 | 01/01/1987 | WD | Warranty Deed | AMERICAN, SAVINGS & | WOOLWORTH, RICHARD A | | | $86,000.00 | 70145 | 87000959 |
| 6 | 04/01/1985 | TRUSTEED | Trustee's Deed | DOCKINS, STEVEN W | AMERICAN, SAVINGS & | | | $0.00 | 51101 | 85004470 |
| 7 | 07/01/1983 | QCD | Quit Claim Deed | DOCKINS, STEVEN W | DOCKINS, STEVEN W | | | $67,500.00 | 32167 | 412990 |
| 8 | 07/01/1980 | EXECUTORD | Executor Deed | BARRY, DICK P | DOCKINS, STEVEN W | | | $35,000.00 | 2323 | 371019 |
| 9 | 01/01/1900 | OTHER | Other - Misc. Documents | Unknown | BARRY, DICK P | | | $0.00 | 0 | 0 |
Payout Agreement
| No payout information available.. |