Property
Account |
| Property ID: | 78613 | Abbreviated Legal Description: | 26 - S/2 NE NW NW TGW & SUBJ TO EZ |
| Geographic ID: | R23113-483-1070 | Agent Code: | |
| Type: | Real | | |
| Tax Area: | 512 - APPRAISER-Stan/Cam Schl Dist, improved, greater than 1 acre | Land Use Code | 11 |
| Open Space: | N | DFL | N |
| Historic Property: | N | Remodel Property: | N |
| Multi-Family Redevelopment: | N | | |
| Township: | 31 | Section: | 13 |
| Range: | R2 |
Location |
| Address: | 847 HOPPY TRAIL WAY CAMANO ISLAND, WA 98282 | Mapsco: | |
| Neighborhood: | Cycle 5 | Map ID: | 479 |
| Neighborhood CD: | 5 |
Owner |
| Name: | MCCOOL, JOSEPH M | Owner ID: | 298334 |
| Mailing Address: | MACKENZIE A MCCOOL 2716 SANDY DRIVE CAMANO ISLAND, WA 98282 | % Ownership: | 100.0000000000% |
| | | Exemptions: | |
Taxes and Assessment Details
Values
| (+) Improvement Homesite Value: | + | $0 | |
| (+) Improvement Non-Homesite Value: | + | $692,179 | |
| (+) Land Homesite Value: | + | $0 | |
| (+) Land Non-Homesite Value: | + | $330,000 | |
| (+) Curr Use (HS): | + | $0 | $0 |
| (+) Curr Use (NHS): | + | $0 | $0 |
| | | -------------------------- | |
| (=) Market Value: | = | $1,022,179 | |
| (–) Productivity Loss: | – | $0 | |
| | | -------------------------- | |
| (=) Subtotal: | = | $1,022,179 | |
| (+) Senior Appraised Value: | + | $0 | |
| (+) Non-Senior Appraised Value: | + | $1,022,179 | |
| | | -------------------------- | |
| (=) Total Appraised Value: | = | $1,022,179 | |
| (–) Senior Exemption Loss: | – | $0 | |
| (–) Exemption Loss: | – | $0 | |
| | | -------------------------- | |
| (=) Taxable Value: | = | $1,022,179 | |
Taxing Jurisdiction
| Owner: | MCCOOL, JOSEPH M | | |
| % Ownership: | 100.0000000000% | | |
| Total Value: | $1,022,179 | | |
| Tax Area: | 512 - APPRAISER-Stan/Cam Schl Dist, improved, greater than 1 acre |
| CF | Conservation Futures | 0.0313996660 | $1,022,179 | $1,022,179 | $32.10 | | |
| EMS1 | Fire & Rescue Dist #1 Camano GEN (EMS) | 0.4998471806 | $1,022,179 | $1,022,179 | $510.93 | | |
| FIRE1 | Fire & Rescue Dist #1 Camano GEN | 1.2496603404 | $1,022,179 | $1,022,179 | $1,277.38 | | |
| FIRE1BOND | Fire & Rescue Dist #1 Camano BOND | 0.1630371212 | $1,022,179 | $1,022,179 | $166.65 | | |
| CE | County Current Expense | 0.3674210519 | $1,022,179 | $1,022,179 | $375.57 | | |
| CR | County Roads | 0.4614296361 | $1,022,179 | $1,022,179 | $471.66 | | |
| LIB | Library Sno-Isle GEN | 0.3039084203 | $1,022,179 | $1,022,179 | $310.65 | | |
| SCH205_401 | School 205-401 Enrichment | 1.3697998934 | $1,022,179 | $1,022,179 | $1,400.18 | | |
| SCH205BOND | School 205-401 BOND | 0.9354199323 | $1,022,179 | $1,022,179 | $956.17 | | |
| ST | State School | 1.4761226122 | $1,022,179 | $1,022,179 | $1,508.86 | | |
| ST2 | State School Part 2 | 0.7953803475 | $1,022,179 | $1,022,179 | $813.02 | | |
| | Total Tax Rate: | 7.6534262019 | | | | | |
| | | | | Taxes w/Current Exemptions: | $7,823.17 | | |
| | | | | Taxes w/o Exemptions: | $7,823.17 | | |
Improvement / Building
| Improvement #1: | RESIDENTIAL | State Code: | Y | 4229.9 sqft | Value: | $692,179 |
| Bathrooms: | 3.5 | Bedrooms: | 5 | | Ceiling: | DRYWALL PAINTED | Exterior Wall/Cover: | STL/ALM/WD OR ST STD | | Floor Covering: | CARPET/VINYL 60-40 | Floor Structure: | WOOD W/SUBFLOOR | | Foundation: | SLAB | Heating: | FHA GAS | | Interior Finish: | DRYWALL PAINT | Plumbing Fixture Cnt: | 15 | | Roof Slope: | 8" IN 12" | Roof Structure/Cover: | CJ ALUMINIUM HEAVY |
|
| | Type | Description | Class CD | Sub Class CD | Year Built | Area |
| | BAS | BASE/MAIN FLOOR | 5 | 0 | 2022 | 3485.9 |
| | LOF | LOFT | 5 | 0 | 2022 | 744.0 |
| | AGR | ATTACHED GARAGE | 5 | 0 | 2022 | 752.1 |
| | OP4 | OPEN PORCH W/CEILING-ROOF | 5 | 0 | 2022 | 42.9 |
| | OP4 | OPEN PORCH W/CEILING-ROOF | 5 | 0 | 2022 | 508.8 |
| | AGR | ATTACHED GARAGE | 5 | 0 | 2022 | 1400.0 |
Sketch
Property Image
Land
| 1 | 32 | AC (03.01-09.99) | 5.0000 | 0.00 | 0.00 | 0.00 | 1.00 | $330,000 | $0 |
Roll Value History
| 2026 | N/A | N/A | N/A | N/A | N/A |
| 2025 | $692,179 | $330,000 | $0 | $1,022,179 | $1,022,179 |
| 2024 | $699,446 | $300,000 | $0 | $999,446 | $999,446 |
| 2023 | $712,165 | $290,000 | $0 | $1,002,165 | $1,002,165 |
| 2022 | $513,382 | $180,000 | $0 | $693,382 | $693,382 |
| 2021 | $0 | $140,000 | $0 | $140,000 | $140,000 |
| 2020 | $0 | $120,000 | $0 | $120,000 | $120,000 |
| 2019 | $0 | $130,000 | $0 | $130,000 | $130,000 |
| 2018 | $0 | $120,000 | $0 | $120,000 | $120,000 |
| 2017 | $0 | $90,000 | $0 | $90,000 | $90,000 |
| 2016 | $0 | $80,000 | $0 | $80,000 | $80,000 |
| 2015 | $0 | $100,000 | $0 | $100,000 | $100,000 |
| 2014 | $0 | $100,000 | $0 | $100,000 | $100,000 |
| 2013 | $0 | $118,625 | $0 | $118,625 | $118,625 |
| 2012 | $0 | $118,625 | $0 | $118,625 | $118,625 |
| 2011 | $0 | $118,625 | $0 | $118,625 | $118,625 |
| 2010 | $0 | $118,625 | $0 | $118,625 | $118,625 |
| 2009 | $0 | $148,625 | $0 | $148,625 | $148,625 |
| 2008 | $0 | $151,125 | $0 | $151,125 | $151,125 |
| 2007 | $0 | $128,625 | $0 | $128,625 | $128,625 |
Deed and Sales History
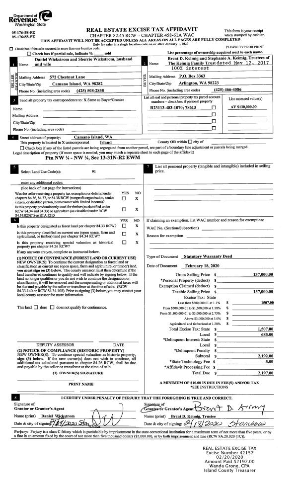
| 1 | 02/25/2021 | WD | Warranty Deed | KEIMIG TTEE, BRENT D | MCCOOL, JOSEPH M | | | $205,000.00 | 47181 | 4512485 |
| 2 | 02/18/2020 | WD | Warranty Deed | WICKSTROM, DANIEL | KEIMIG TTEE, BRENT D | | | $137,000.00 | 42157 | 4481597 |
| 3 | 07/24/2018 | WD | Warranty Deed | LANGBERG JTWROS, MORRIS M | WICKSTROM, DANIEL | | | $425,000.00 | 35221 | 4448947 |
|   | |
| 4 | 01/01/1900 | OTHER | Other - Misc. Documents | Unknown | LANGBERG, MORRIS M | | | $0.00 | 0 | 0 |
Payout Agreement
| No payout information available.. |