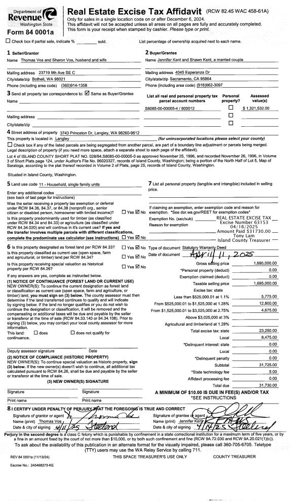
Property
Account |
| Property ID: | 800012 | Abbreviated Legal Description: | SARATOGA LOT 4 SP 28-94.8085.00.00005-0 V3 SP P124 AF#96020327 |
| Geographic ID: | S8085-00-00005-4 | Agent Code: | |
| Type: | Real | | |
| Tax Area: | 732 - APPRAISER-S Whid Schl Dist, Special District, improved, greater than 1 acre | Land Use Code | 11 |
| Open Space: | N | DFL | N |
| Historic Property: | N | Remodel Property: | N |
| Multi-Family Redevelopment: | N | | |
| Township: | | Section: | |
| Range: | |
Location |
| Address: | 3743 PRINCETON DR LANGLEY, WA 98260 | Mapsco: | |
| Neighborhood: | Cycle 4 | Map ID: | 879 |
| Neighborhood CD: | 4 |
Owner |
| Name: | KENT, JENNIFER | Owner ID: | 316145 |
| Mailing Address: | SHAWN KENT 4045 ESPERANZA DR SACRAMENTO, CA 95864 | % Ownership: | 100.0000000000% |
| | | Exemptions: | |
Taxes and Assessment Details
Values
| (+) Improvement Homesite Value: | + | $0 | |
| (+) Improvement Non-Homesite Value: | + | $939,964 | |
| (+) Land Homesite Value: | + | $0 | |
| (+) Land Non-Homesite Value: | + | $370,000 | |
| (+) Curr Use (HS): | + | $0 | $0 |
| (+) Curr Use (NHS): | + | $0 | $0 |
| | | -------------------------- | |
| (=) Market Value: | = | $1,309,964 | |
| (–) Productivity Loss: | – | $0 | |
| | | -------------------------- | |
| (=) Subtotal: | = | $1,309,964 | |
| (+) Senior Appraised Value: | + | $0 | |
| (+) Non-Senior Appraised Value: | + | $1,309,964 | |
| | | -------------------------- | |
| (=) Total Appraised Value: | = | $1,309,964 | |
| (–) Senior Exemption Loss: | – | $0 | |
| (–) Exemption Loss: | – | $0 | |
| | | -------------------------- | |
| (=) Taxable Value: | = | $1,309,964 | |
Taxing Jurisdiction
| Owner: | KENT, JENNIFER | | |
| % Ownership: | 100.0000000000% | | |
| Total Value: | $1,309,964 | | |
| Tax Area: | 732 - APPRAISER-S Whid Schl Dist, Special District, improved, greater than 1 acre |
| CF | Conservation Futures | 0.0313996660 | $1,309,964 | $1,309,964 | $41.13 | | |
| FIRE3 | Fire & Rescue Dist #3 S Whidbey GEN | 1.2130821753 | $1,309,964 | $1,309,964 | $1,589.09 | | |
| HOBOND | Hospital BOND | 0.1893405597 | $1,309,964 | $1,309,964 | $248.03 | | |
| HOGEN | Hospital GEN | 0.3848777722 | $1,309,964 | $1,309,964 | $504.18 | | |
| CE | County Current Expense | 0.3674210519 | $1,309,964 | $1,309,964 | $481.31 | | |
| CR | County Roads | 0.4614296361 | $1,309,964 | $1,309,964 | $604.46 | | |
| ISLANDEMS | Hospital GEN (EMS) | 0.4952018576 | $1,309,964 | $1,309,964 | $648.70 | | |
| LIB | Library Sno-Isle GEN | 0.3039084203 | $1,309,964 | $1,309,964 | $398.11 | | |
| PORTWHID | Port of S Whidbey GEN | 0.1086004714 | $1,309,964 | $1,309,964 | $142.26 | | |
| SCH206BOND | School 206 BOND | 0.5960237832 | $1,309,964 | $1,309,964 | $780.77 | | |
| SCH206CAP | School 206 CP | 0.3066144020 | $1,309,964 | $1,309,964 | $401.65 | | |
| SCH206MO | School 206 Enrichment | 0.4808755445 | $1,309,964 | $1,309,964 | $629.93 | | |
| ST | State School | 1.4761226122 | $1,309,964 | $1,309,964 | $1,933.67 | | |
| ST2 | State School Part 2 | 0.7953803475 | $1,309,964 | $1,309,964 | $1,041.92 | | |
| SWHIDPRBD | P & R S Whidbey BOND | 0.0144185398 | $1,309,964 | $1,309,964 | $18.89 | | |
| SWHIDPRBD3 | P & R S Whidbey BOND3 | 0.1483535547 | $1,309,964 | $1,309,964 | $194.34 | | |
| SWHIDPRMT | P & R S Whidbey GEN | 0.4600000000 | $1,309,964 | $1,309,964 | $602.58 | | |
| | Total Tax Rate: | 7.8330503944 | | | | | |
| | | | | Taxes w/Current Exemptions: | $10,261.02 | | |
| | | | | Taxes w/o Exemptions: | $10,261.02 | | |
Improvement / Building
| Improvement #1: | RESIDENTIAL | State Code: | Y | 4282.2 sqft | Value: | $939,964 |
| Bathrooms: | 2.25 | Bedrooms: | 3 | | Ceiling: | DRYWALL PAINTED | Cooling: | HEAT PUMP/CONV/V | | Exterior Wall/Cover: | WOOD SIDING | Floor Covering: | VINYL/HARDWOOD 20-80 | | Floor Structure: | WOOD W/SUBFLOOR | Foundation: | CONCRETE | | Interior Finish: | DRYWALL PAINT | Plumbing Fixture Cnt: | 14 | | Roof Slope: | 12" IN 12" | Roof Structure/Cover: | CJ ASPHALT |
|
| | Type | Description | Class CD | Sub Class CD | Year Built | Area |
| | BAS | BASE/MAIN FLOOR | 5 | 0 | 2004 | 2944.1 |
| | UB8 | BASEMENT UNFINISHED 8" | 5 | 0 | 2004 | 652.8 |
| | UB8 | BASEMENT UNFINISHED 8" | 5 | 0 | 2004 | 88.0 |
| | OP4 | OPEN PORCH W/CEILING-ROOF | 5 | 0 | 2004 | 20.0 |
| | OP4 | OPEN PORCH W/CEILING-ROOF | 5 | 0 | 2004 | 472.5 |
| | DGR | DETACHED GARAGE | 5 | 0 | 2004 | 798.0 |
| | UPS | UPPER STORY | 5 | 0 | 2004 | 432.0 |
| | OWP | OPEN WOOD PORCH W/STEPS | 5 | 0 | 2004 | 156.1 |
| | OWP | OPEN WOOD PORCH W/STEPS | 5 | 0 | 2004 | 136.5 |
| | OWP | OPEN WOOD PORCH W/STEPS | 5 | 0 | 2004 | 294.0 |
| | OWR | OPEN WOOD PORCH W/STEPS/ROOF | 5 | 0 | 2004 | 75.0 |
| | OWC | OPEN WOOD PORCH W/STEPS/ROOF/C | 5 | 0 | 2004 | 399.0 |
| | CPD | OPEN CARPORT DIRT FLOOR | 5 | 0 | 2004 | 35.0 |
| | DWN | DOWNSTAIRS LIVING AREA | 5 | 0 | 2004 | 906.1 |
Sketch
Property Image
Land
| 1 | 18 | AC (02.01-03.00) | 0.0000 | 0.00 | 0.00 | 0.00 | 1.00 | $370,000 | $0 |
Roll Value History
| 2026 | N/A | N/A | N/A | N/A | N/A |
| 2025 | $939,964 | $370,000 | $0 | $1,309,964 | $1,309,964 |
| 2024 | $951,532 | $370,000 | $0 | $1,321,532 | $1,321,532 |
| 2023 | $963,101 | $380,000 | $0 | $1,343,101 | $1,343,101 |
| 2022 | $882,569 | $280,000 | $0 | $1,162,569 | $1,162,569 |
| 2021 | $776,540 | $240,000 | $0 | $1,016,540 | $1,016,540 |
| 2020 | $758,629 | $240,000 | $0 | $998,629 | $998,629 |
| 2019 | $681,122 | $260,000 | $0 | $941,122 | $941,122 |
| 2018 | $683,072 | $160,000 | $0 | $843,072 | $843,072 |
| 2017 | $686,896 | $135,000 | $0 | $821,896 | $821,896 |
| 2016 | $694,702 | $135,000 | $0 | $829,702 | $829,702 |
| 2015 | $702,510 | $135,000 | $0 | $837,510 | $837,510 |
| 2014 | $761,769 | $100,000 | $0 | $861,769 | $861,769 |
| 2013 | $770,322 | $100,000 | $0 | $870,322 | $870,322 |
| 2012 | $778,872 | $97,750 | $0 | $876,622 | $876,622 |
| 2011 | $787,424 | $115,000 | $0 | $902,424 | $902,424 |
| 2010 | $808,968 | $115,000 | $0 | $923,968 | $923,968 |
| 2009 | $851,474 | $175,000 | $0 | $1,026,474 | $1,026,474 |
| 2008 | $852,062 | $195,000 | $0 | $1,047,062 | $1,047,062 |
| 2007 | $861,301 | $195,000 | $0 | $1,056,301 | $1,056,301 |
Deed and Sales History
| 1 | 04/11/2025 | WD | Warranty Deed | VOS, THOMAS | KENT, JENNIFER | | | $1,695,000.00 | 63153 | 4584580 |
| 2 | 11/07/2001 | WD | Warranty Deed | Unknown | VOS, THOMAS | | | $152,000.00 | 14311 | 4002437 |
Payout Agreement
| No payout information available.. |