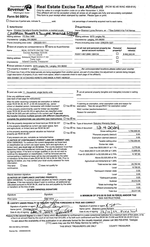
Property
Account |
| Property ID: | 800134 | Abbreviated Legal Description: | N/2 S/2 SW SW EX W30' FOR RD TGW E/2 S/2 S/2 SW SW |
| Geographic ID: | R32911-067-0990 | Agent Code: | |
| Type: | Real | | |
| Tax Area: | 712 - APPRAISER-S Whid Schl Dist, outside Langley, improved, greater than 1 acre | Land Use Code | 11 |
| Open Space: | N | DFL | N |
| Historic Property: | N | Remodel Property: | N |
| Multi-Family Redevelopment: | N | | |
| Township: | 29 | Section: | 11 |
| Range: | R3 |
Location |
| Address: | 5575 LANGLEY RD LANGLEY, WA 98260 | Mapsco: | |
| Neighborhood: | Cycle 4 | Map ID: | 758 |
| Neighborhood CD: | 4 |
Owner |
| Name: | ROMANO, SHANNON LYNNE | Owner ID: | 314808 |
| Mailing Address: | GUNILLA LOUISE ERIKSSON 5575 LANGLEY RD LANGLEY, WA 98260 | % Ownership: | 100.0000000000% |
| | | Exemptions: | |
Taxes and Assessment Details
Values
| (+) Improvement Homesite Value: | + | $0 | |
| (+) Improvement Non-Homesite Value: | + | $809,999 | |
| (+) Land Homesite Value: | + | $0 | |
| (+) Land Non-Homesite Value: | + | $400,000 | |
| (+) Curr Use (HS): | + | $0 | $0 |
| (+) Curr Use (NHS): | + | $0 | $0 |
| | | -------------------------- | |
| (=) Market Value: | = | $1,209,999 | |
| (–) Productivity Loss: | – | $0 | |
| | | -------------------------- | |
| (=) Subtotal: | = | $1,209,999 | |
| (+) Senior Appraised Value: | + | $0 | |
| (+) Non-Senior Appraised Value: | + | $1,209,999 | |
| | | -------------------------- | |
| (=) Total Appraised Value: | = | $1,209,999 | |
| (–) Senior Exemption Loss: | – | $0 | |
| (–) Exemption Loss: | – | $0 | |
| | | -------------------------- | |
| (=) Taxable Value: | = | $1,209,999 | |
Taxing Jurisdiction
| Owner: | ROMANO, SHANNON LYNNE | | |
| % Ownership: | 100.0000000000% | | |
| Total Value: | $1,209,999 | | |
| Tax Area: | 712 - APPRAISER-S Whid Schl Dist, outside Langley, improved, greater than 1 acre |
| CF | Conservation Futures | 0.0313996660 | $1,209,999 | $1,209,999 | $37.99 | | |
| FIRE3 | Fire & Rescue Dist #3 S Whidbey GEN | 1.2130821753 | $1,209,999 | $1,209,999 | $1,467.83 | | |
| HOBOND | Hospital BOND | 0.1893405597 | $1,209,999 | $1,209,999 | $229.10 | | |
| HOGEN | Hospital GEN | 0.3848777722 | $1,209,999 | $1,209,999 | $465.70 | | |
| CE | County Current Expense | 0.3674210519 | $1,209,999 | $1,209,999 | $444.58 | | |
| CR | County Roads | 0.4614296361 | $1,209,999 | $1,209,999 | $558.33 | | |
| ISLANDEMS | Hospital GEN (EMS) | 0.4952018576 | $1,209,999 | $1,209,999 | $599.19 | | |
| LIB | Library Sno-Isle GEN | 0.3039084203 | $1,209,999 | $1,209,999 | $367.73 | | |
| PORTWHID | Port of S Whidbey GEN | 0.1086004714 | $1,209,999 | $1,209,999 | $131.41 | | |
| SCH206BOND | School 206 BOND | 0.5960237832 | $1,209,999 | $1,209,999 | $721.19 | | |
| SCH206CAP | School 206 CP | 0.3066144020 | $1,209,999 | $1,209,999 | $371.00 | | |
| SCH206MO | School 206 Enrichment | 0.4808755445 | $1,209,999 | $1,209,999 | $581.86 | | |
| ST | State School | 1.4761226122 | $1,209,999 | $1,209,999 | $1,786.11 | | |
| ST2 | State School Part 2 | 0.7953803475 | $1,209,999 | $1,209,999 | $962.41 | | |
| SWHIDPRBD | P & R S Whidbey BOND | 0.0144185398 | $1,209,999 | $1,209,999 | $17.45 | | |
| SWHIDPRBD3 | P & R S Whidbey BOND3 | 0.1483535547 | $1,209,999 | $1,209,999 | $179.51 | | |
| SWHIDPRMT | P & R S Whidbey GEN | 0.4600000000 | $1,209,999 | $1,209,999 | $556.60 | | |
| | Total Tax Rate: | 7.8330503944 | | | | | |
| | | | | Taxes w/Current Exemptions: | $9,477.99 | | |
| | | | | Taxes w/o Exemptions: | $9,477.99 | | |
Improvement / Building
| Improvement #1: | RESIDENTIAL | State Code: | Y | 3030.0 sqft | Value: | $809,999 |
| Bathrooms: | 3 | Bedrooms: | 3 | | Ceiling: | DRYWALL PAINTED | Exterior Wall/Cover: | WOOD SIDING | | Floor Covering: | HARDWOOD/CARP 60-40 | Floor Structure: | WOOD W/SUBFLOOR | | Foundation: | CONCRETE | Heating: | WALL HEAT ELECTRIC | | Interior Finish: | DRYWALL PAINT | Plumbing Fixture Cnt: | 15 | | Roof Slope: | 8" IN 12" | Roof Structure/Cover: | CJ METAL |
|
| | Type | Description | Class CD | Sub Class CD | Year Built | Area |
| | BAS | BASE/MAIN FLOOR | 5 | 0 | 1988 | 2214.0 |
| | UPS | UPPER STORY | 5 | 0 | 1988 | 816.0 |
| | OWP | OPEN WOOD PORCH W/STEPS | 5 | 0 | 1988 | 780.0 |
| | OWR | OPEN WOOD PORCH W/STEPS/ROOF | 5 | 0 | 1988 | 224.0 |
| | oBAR | BARN | 3 | 0 | 1988 | 816.0 |
| | UTY | STORAGE/UTILITY | 5 | 0 | 1988 | 280.0 |
| | OWP | OPEN WOOD PORCH W/STEPS | 5 | 0 | 1988 | 182.0 |
| | oHAY | HAY SHED | 3 | 0 | 1988 | 240.0 |
| | OP4 | OPEN PORCH W/CEILING-ROOF | 5 | 0 | 1988 | 309.0 |
Sketch
| No sketches available for this property. |
Property Image
Land
| 1 | 35 | AC (10.00-30.99) | 13.6000 | 592416.00 | 0.00 | 0.00 | 1.00 | $400,000 | $0 |
Roll Value History
| 2026 | N/A | N/A | N/A | N/A | N/A |
| 2025 | $809,999 | $400,000 | $0 | $1,209,999 | $1,209,999 |
| 2024 | $532,345 | $360,000 | $0 | $892,345 | $892,345 |
| 2023 | $538,860 | $360,000 | $0 | $898,860 | $898,860 |
| 2022 | $494,749 | $350,000 | $0 | $844,749 | $844,749 |
| 2021 | $436,602 | $250,000 | $0 | $686,602 | $686,602 |
| 2020 | $438,376 | $250,000 | $0 | $688,376 | $688,376 |
| 2019 | $329,751 | $300,000 | $0 | $629,751 | $629,751 |
| 2018 | $238,379 | $245,000 | $0 | $483,379 | $483,379 |
| 2017 | $235,560 | $200,000 | $0 | $435,560 | $435,560 |
| 2016 | $238,371 | $200,000 | $0 | $438,371 | $438,371 |
| 2015 | $228,111 | $200,000 | $0 | $428,111 | $428,111 |
| 2014 | $229,656 | $204,000 | $0 | $433,656 | $433,656 |
| 2013 | $232,250 | $204,000 | $0 | $436,250 | $436,250 |
| 2012 | $234,843 | $204,000 | $0 | $438,843 | $438,843 |
| 2011 | $237,438 | $204,000 | $0 | $441,438 | $441,438 |
| 2010 | $250,629 | $204,000 | $0 | $454,629 | $454,629 |
| 2009 | $261,140 | $244,800 | $0 | $505,940 | $505,940 |
| 2008 | $230,560 | $276,080 | $0 | $506,640 | $506,640 |
| 2007 | $233,983 | $276,080 | $0 | $510,063 | $510,063 |
Deed and Sales History
| 1 | 12/04/2024 | WD | Warranty Deed | HARRETT, CHRISTIAN | ROMANO, SHANNON LYNNE | | | $1,750,000.00 | 62036 | 4580251 |
| 2 | 05/14/2024 | QCD | Quit Claim Deed | BUTTERS-HARRETT, SUSAN | HARRETT, CHRISTIAN | | | $0.00 | 60932 | 4575806 |
| 3 | 08/23/2018 | WD | Warranty Deed | ZWOLINSKI, EUGENE A | BUTTERS-HARRETT, SUSAN | | | $772,500.00 | 35826 | 4451426 |
| 4 | 08/28/1998 | BLA | DNU - Boundary Line Adjustment | Unknown | ZWOLINSKI, EUGENE A | | | $0.00 | 67995 | 98011275 |
Payout Agreement
| No payout information available.. |