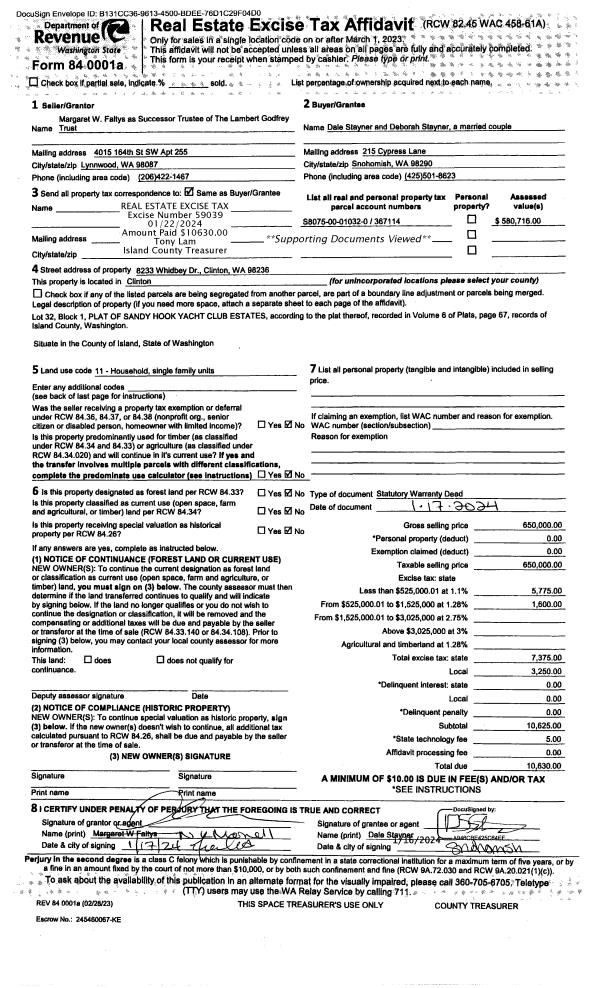
Property
Account |
| Property ID: | 800141 | Abbreviated Legal Description: | 1997 OAKWOOD 27X48 VIN # GWOR23N18750 |
| Geographic ID: | M905000001980 | Agent Code: | |
| Type: | Mobile Home | | |
| Tax Area: | 100 - APPRAISER-OH Schl Dist, in OH | Land Use Code | 11 |
| Open Space: | N | DFL | N |
| Historic Property: | N | Remodel Property: | N |
| Multi-Family Redevelopment: | N | | |
| Township: | | Section: | |
| Range: | |
Location |
| Address: | 1320 N OAK HARBOR ST # 198 OAK HARBOR, WA 98277 | Mapsco: | |
| Neighborhood: | Cycle 1 | Map ID: | |
| Neighborhood CD: | 1 |
Owner |
| Name: | MORRIS, CLENTEN | Owner ID: | 300195 |
| Mailing Address: | 1320 N OAK HARBOR ST #198 OAK HARBOR, WA 98277 | % Ownership: | 100.0000000000% |
| | | Exemptions: | |
Taxes and Assessment Details
Values
| (+) Improvement Homesite Value: | + | $0 | |
| (+) Improvement Non-Homesite Value: | + | $39,433 | |
| (+) Land Homesite Value: | + | $0 | |
| (+) Land Non-Homesite Value: | + | $0 | |
| (+) Curr Use (HS): | + | $0 | $0 |
| (+) Curr Use (NHS): | + | $0 | $0 |
| | | -------------------------- | |
| (=) Market Value: | = | $39,433 | |
| (–) Productivity Loss: | – | $0 | |
| | | -------------------------- | |
| (=) Subtotal: | = | $39,433 | |
| (+) Senior Appraised Value: | + | $0 | |
| (+) Non-Senior Appraised Value: | + | $39,433 | |
| | | -------------------------- | |
| (=) Total Appraised Value: | = | $39,433 | |
| (–) Senior Exemption Loss: | – | $0 | |
| (–) Exemption Loss: | – | $0 | |
| | | -------------------------- | |
| (=) Taxable Value: | = | $39,433 | |
Taxing Jurisdiction
| Owner: | MORRIS, CLENTEN | | |
| % Ownership: | 100.0000000000% | | |
| Total Value: | $39,433 | | |
| Tax Area: | 100 - APPRAISER-OH Schl Dist, in OH |
| CF | Conservation Futures | 0.0313996660 | $39,433 | $39,433 | $1.24 | | |
| CEM1 | Cemetery #1 | 0.0040018856 | $39,433 | $39,433 | $0.16 | | |
| COH | City of Oak Harbor | 2.3090730572 | $39,433 | $39,433 | $91.05 | | |
| OAKBOND | City of Oak Harbor BOND | 0.1902260131 | $39,433 | $39,433 | $7.50 | | |
| HOBOND | Hospital BOND | 0.1893405597 | $39,433 | $39,433 | $7.47 | | |
| HOGEN | Hospital GEN | 0.3848777722 | $39,433 | $39,433 | $15.18 | | |
| CE | County Current Expense | 0.3674210519 | $39,433 | $39,433 | $14.49 | | |
| ISLANDEMS | Hospital GEN (EMS) | 0.4952018576 | $39,433 | $39,433 | $19.53 | | |
| LIB | Library Sno-Isle GEN | 0.3039084203 | $39,433 | $39,433 | $11.98 | | |
| NWHIDPRMT | P & R N Whidbey GEN | 0.1990272349 | $39,433 | $39,433 | $7.85 | | |
| SCH201MO | School 201 Enrichment | 2.3851112745 | $39,433 | $39,433 | $94.05 | | |
| ST | State School | 1.4761226122 | $39,433 | $39,433 | $58.21 | | |
| ST2 | State School Part 2 | 0.7953803475 | $39,433 | $39,433 | $31.36 | | |
| | Total Tax Rate: | 9.1310917527 | | | | | |
| | | | | Taxes w/Current Exemptions: | $360.07 | | |
| | | | | Taxes w/o Exemptions: | $360.07 | | |
Improvement / Building
| Improvement #1: | MANUFACTURED HOME | State Code: | Y | 1313.0 sqft | Value: | $39,433 |
| Bathrooms: | 0 | Bedrooms: | 0 | | Ceiling: | PLASTER PAINTED | Exterior Wall/Cover: | VINYL | | Floor Covering: | CARPET 100% | Floor Structure: | SLAB ON GRADE | | Foundation: | SLAB | Heating: | FHA ELECTRIC | | Interior Finish: | PLASTER | Plumbing Fixture Cnt: | 1 | | Roof Slope: | FLAT | Roof Structure/Cover: | CJ ALUMINIUM HEAVY |
|
Sketch
Property Image
Land
No land segments exist for this property.
Roll Value History
| 2026 | N/A | N/A | N/A | N/A | N/A |
| 2025 | $39,433 | $0 | $0 | $39,433 | $39,433 |
| 2024 | $24,552 | $0 | $0 | $24,552 | $24,552 |
| 2023 | $22,587 | $0 | $0 | $22,587 | $22,587 |
| 2022 | $21,529 | $0 | $0 | $21,529 | $21,529 |
| 2021 | $19,346 | $0 | $0 | $19,346 | $19,346 |
| 2020 | $19,388 | $0 | $0 | $19,388 | $19,388 |
| 2019 | $15,748 | $0 | $0 | $15,748 | $15,748 |
| 2018 | $16,225 | $0 | $0 | $16,225 | $16,225 |
| 2017 | $16,702 | $0 | $0 | $16,702 | $16,702 |
| 2016 | $17,179 | $0 | $0 | $17,179 | $17,179 |
| 2015 | $17,418 | $0 | $0 | $17,418 | $17,418 |
| 2014 | $17,895 | $0 | $0 | $17,895 | $17,895 |
| 2013 | $18,372 | $0 | $0 | $18,372 | $18,372 |
| 2012 | $18,849 | $0 | $0 | $18,849 | $18,849 |
| 2011 | $31,608 | $0 | $0 | $31,608 | $31,608 |
| 2010 | $32,459 | $0 | $0 | $32,459 | $32,459 |
| 2009 | $34,433 | $0 | $0 | $34,433 | $34,433 |
| 2008 | $35,383 | $0 | $0 | $35,383 | $35,383 |
| 2007 | $35,906 | $0 | $0 | $35,906 | $35,906 |
Deed and Sales History
| 1 | 07/14/2021 | MANHOME | Manufactured Home | KROTZ, MARTHA | MORRIS, CLENTEN | | | $0.00 | 49143 | |
| 2 | 10/06/2004 | OTHER | Other - Misc. Documents | EVA, BRIAN | KROTZ, MARTHA | | | $45,000.00 | 44717 | 0 |
| 3 | 01/01/1900 | OTHER | Other - Misc. Documents | Unknown | EVA, BRIAN | | | $0.00 | 0 | 0 |
Payout Agreement
| No payout information available.. |