Property
Account |
| Property ID: | 800336 | Abbreviated Legal Description: | 5.2500 Acres ins Section 13s Township 31s Range R1s LOT A BLA 028-20 AF#4488321 LOT 1 SP 475-97 AF#98018997;s |
| Geographic ID: | R13113-239-1540 | Agent Code: | |
| Type: | Real | | |
| Tax Area: | 312 - APPRAISER-Cpvl Schl Dist, outside Cpvl, improved, greater than 1 acre | Land Use Code | 11 |
| Open Space: | N | DFL | N |
| Historic Property: | N | Remodel Property: | N |
| Multi-Family Redevelopment: | N | | |
| Township: | 31 | Section: | 13 |
| Range: | R1 |
Location |
| Address: | 15341 SR20 COUPEVILLE, WA 98239 | Mapsco: | |
| Neighborhood: | Cycle 2 | Map ID: | 58 |
| Neighborhood CD: | 2 |
Owner |
| Name: | SAWYER, LANCE ROBERT | Owner ID: | 294616 |
| Mailing Address: | JULIE LYNN MARIAH SAWYER 15341 SR 20 COUPEVILLE, WA 98239 | % Ownership: | 100.0000000000% |
| | | Exemptions: | |
Taxes and Assessment Details
Values
| (+) Improvement Homesite Value: | + | $0 | |
| (+) Improvement Non-Homesite Value: | + | $608,236 | |
| (+) Land Homesite Value: | + | $0 | |
| (+) Land Non-Homesite Value: | + | $372,938 | |
| (+) Curr Use (HS): | + | $0 | $0 |
| (+) Curr Use (NHS): | + | $0 | $0 |
| | | -------------------------- | |
| (=) Market Value: | = | $981,174 | |
| (–) Productivity Loss: | – | $0 | |
| | | -------------------------- | |
| (=) Subtotal: | = | $981,174 | |
| (+) Senior Appraised Value: | + | $0 | |
| (+) Non-Senior Appraised Value: | + | $981,174 | |
| | | -------------------------- | |
| (=) Total Appraised Value: | = | $981,174 | |
| (–) Senior Exemption Loss: | – | $0 | |
| (–) Exemption Loss: | – | $0 | |
| | | -------------------------- | |
| (=) Taxable Value: | = | $981,174 | |
Taxing Jurisdiction
| Owner: | SAWYER, LANCE ROBERT | | |
| % Ownership: | 100.0000000000% | | |
| Total Value: | $981,174 | | |
| Tax Area: | 312 - APPRAISER-Cpvl Schl Dist, outside Cpvl, improved, greater than 1 acre |
| CF | Conservation Futures | 0.0313996660 | $981,174 | $981,174 | $30.81 | | |
| CEM2 | Cemetery #2 | 0.0092609791 | $981,174 | $981,174 | $9.09 | | |
| FIRE5 | Fire & Rescue Dist #5 C Whidbey GEN | 1.1892169230 | $981,174 | $981,174 | $1,166.83 | | |
| FIRE5BOND | Fire & Rescue Dist #5 C Whidbey BOND | 0.1394359503 | $981,174 | $981,174 | $136.81 | | |
| HOBOND | Hospital BOND | 0.1893405597 | $981,174 | $981,174 | $185.78 | | |
| HOGEN | Hospital GEN | 0.3848777722 | $981,174 | $981,174 | $377.63 | | |
| CE | County Current Expense | 0.3674210519 | $981,174 | $981,174 | $360.50 | | |
| CR | County Roads | 0.4614296361 | $981,174 | $981,174 | $452.74 | | |
| ISLANDEMS | Hospital GEN (EMS) | 0.4952018576 | $981,174 | $981,174 | $485.88 | | |
| LIB | Library Sno-Isle GEN | 0.3039084203 | $981,174 | $981,174 | $298.19 | | |
| LIBCAP | Library Sno-Isle BOND (Cap Fac Imp Area) | 0.0528562629 | $981,174 | $981,174 | $51.86 | | |
| POCOUP | Port of Coupeville GEN | 0.1065226063 | $981,174 | $981,174 | $104.52 | | |
| POCOUPIDD | Port of Coupeville IDD | 0.3353038577 | $981,174 | $981,174 | $328.99 | | |
| COUPSDTECH | School 204 CP (TECH) | 0.1215123397 | $981,174 | $981,174 | $119.22 | | |
| SCH204MO | School 204 Enrichment | 0.6416662518 | $981,174 | $981,174 | $629.59 | | |
| ST | State School | 1.4761226122 | $981,174 | $981,174 | $1,448.33 | | |
| ST2 | State School Part 2 | 0.7953803475 | $981,174 | $981,174 | $780.41 | | |
| | Total Tax Rate: | 7.1008570943 | | | | | |
| | | | | Taxes w/Current Exemptions: | $6,967.18 | | |
| | | | | Taxes w/o Exemptions: | $6,967.18 | | |
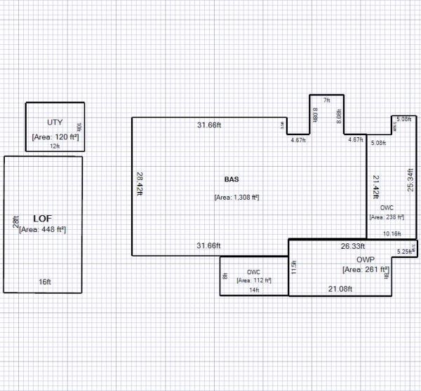
Improvement / Building
| Improvement #1: | RESIDENTIAL | State Code: | Y | 3127.0 sqft | Value: | $608,236 |
| Bathrooms: | 2.5 | Bedrooms: | 3 | | Ceiling: | DRYWALL PAINTED | Exterior Wall/Cover: | STUCCO | | Floor Covering: | VINYL/HARDWOOD 20-80 | Floor Structure: | WOOD W/SUBFLOOR | | Foundation: | CONCRETE | Heating: | RADIANT FLOOR | | Interior Finish: | DRYWALL PAINT | Plumbing Fixture Cnt: | 17 | | Roof Slope: | 6" IN 12" | Roof Structure/Cover: | BEAM ASPHALT |
|
| | Type | Description | Class CD | Sub Class CD | Year Built | Area |
| | BAS | BASE/MAIN FLOOR | 4 | 0 | 1998 | 3127.0 |
| | AGR | ATTACHED GARAGE | 4 | 0 | 1998 | 822.0 |
| | OWP | OPEN WOOD PORCH W/STEPS | 4 | 0 | 1998 | 1298.8 |
| | oUTI | UTILITY | 3 | 0 | 1998 | 720.0 |
| | oCAR | CARPORT | 3 | 0 | 1998 | 1080.0 |
Sketch
Property Image
Land
| 1 | HS | HOMESITE | 1.0000 | 43560.00 | 0.00 | 0.00 | 1.00 | $340,000 | $0 |
| 2 | 91 | UNDEVELOPED LAND-METES AND BOUNDS | 4.2500 | 185130.00 | 0.00 | 0.00 | 1.00 | $32,938 | $0 |
Roll Value History
| 2026 | N/A | N/A | N/A | N/A | N/A |
| 2025 | $608,236 | $372,938 | $0 | $981,174 | $981,174 |
| 2024 | $620,882 | $360,000 | $0 | $980,882 | $980,882 |
| 2023 | $628,815 | $350,000 | $0 | $978,815 | $978,815 |
| 2022 | $576,588 | $310,000 | $0 | $886,588 | $886,588 |
| 2021 | $507,625 | $260,000 | $0 | $767,625 | $767,625 |
| 2020 | $495,246 | $240,000 | $0 | $735,246 | $735,246 |
| 2019 | $386,621 | $300,000 | $0 | $686,621 | $686,621 |
| 2018 | $364,383 | $250,000 | $0 | $614,383 | $614,383 |
| 2017 | $366,494 | $250,000 | $0 | $616,494 | $616,494 |
| 2016 | $370,888 | $250,000 | $0 | $620,888 | $620,888 |
| 2015 | $375,282 | $200,000 | $0 | $575,282 | $575,282 |
| 2014 | $379,675 | $200,000 | $0 | $579,675 | $579,675 |
| 2013 | $384,069 | $200,000 | $0 | $584,069 | $584,069 |
| 2012 | $433,544 | $244,800 | $0 | $678,344 | $678,344 |
| 2011 | $288,000 | $272,000 | $0 | $560,000 | $560,000 |
| 2010 | $471,002 | $272,000 | $0 | $743,002 | $743,002 |
| 2009 | $490,512 | $299,200 | $0 | $789,712 | $789,712 |
| 2008 | $496,623 | $299,200 | $0 | $795,823 | $795,823 |
| 2007 | $502,903 | $239,360 | $0 | $742,263 | $742,263 |
Deed and Sales History
| 1 | 06/11/2020 | WD | Warranty Deed | PENWELL TTEE, GEORGE S | SAWYER, LANCE ROBERT | | | $725,000.00 | 43382 | 4488913 |
| 2 | 05/29/2019 | QCD | Quit Claim Deed | PENWELL, GEORGE & INGER | PENWELL TTEE, GEORGE S | | | $0.00 | 38834 | 4464755 |
| 3 | 11/30/1998 | QCD | Quit Claim Deed | Unknown | PENWELL REV LIV TRUST, GEORGE | | | $0.00 | 84768 | 98026169 |
Payout Agreement
| No payout information available.. |